Hallöchen,
meine Frau und ich haben letztes Jahr ein Grundstück (Gartenbebauung nach geändertem Bebauungsplan) erstanden (im Plan gekennzeichnet mit Nummer 2018) und wollen jetzt die Planung weiter voran treiben. Ob wir das Vorhaben jetzt direkt zeitnah umsetzten, wissen wir noch nicht, aber wir möchten zumindest die Planung fertig stellen.
Der Plan ist genordet, d. h. das Haus hätte fast Nord-/Süd Ausrichtung
Bebauungsplan/Einschränkungen
612 qm + Zufahrt (ca. 85 qm)
Hang -> nein
Grundflächenzahl -> 0,3
Geschossflächenzahl -> 0,6
Baufenster, Baulinie und -grenze -> siehe Abbildung (3m Abstand, Garage darf auf Grenze, max. 15 m, davon 9 am Stück) Wo auf dem Grundstück das Haus zu stehen kommt ist egal.

Randbebauung -> nein
Anzahl Stellplatz -> keine Vorgabe
Geschossigkeit -> 2
Dachform -> ab 15 °, keine bestimmte Form, nur kein Flachdach
Stilrichtung -> nicht gefordert
Ausrichtung -> keine Vorgabe
Maximale Höhen/Begrenzungen -> FH 9 M
Besondere Anforderungen an Lärmschutz wg. BAB und L-Straße
Anforderungen der Bauherren
Stilrichtung, Dachform, Gebäudetyp -> klassisch Einfamilienhaus, Satteldach, Massivhaus mit Klinker
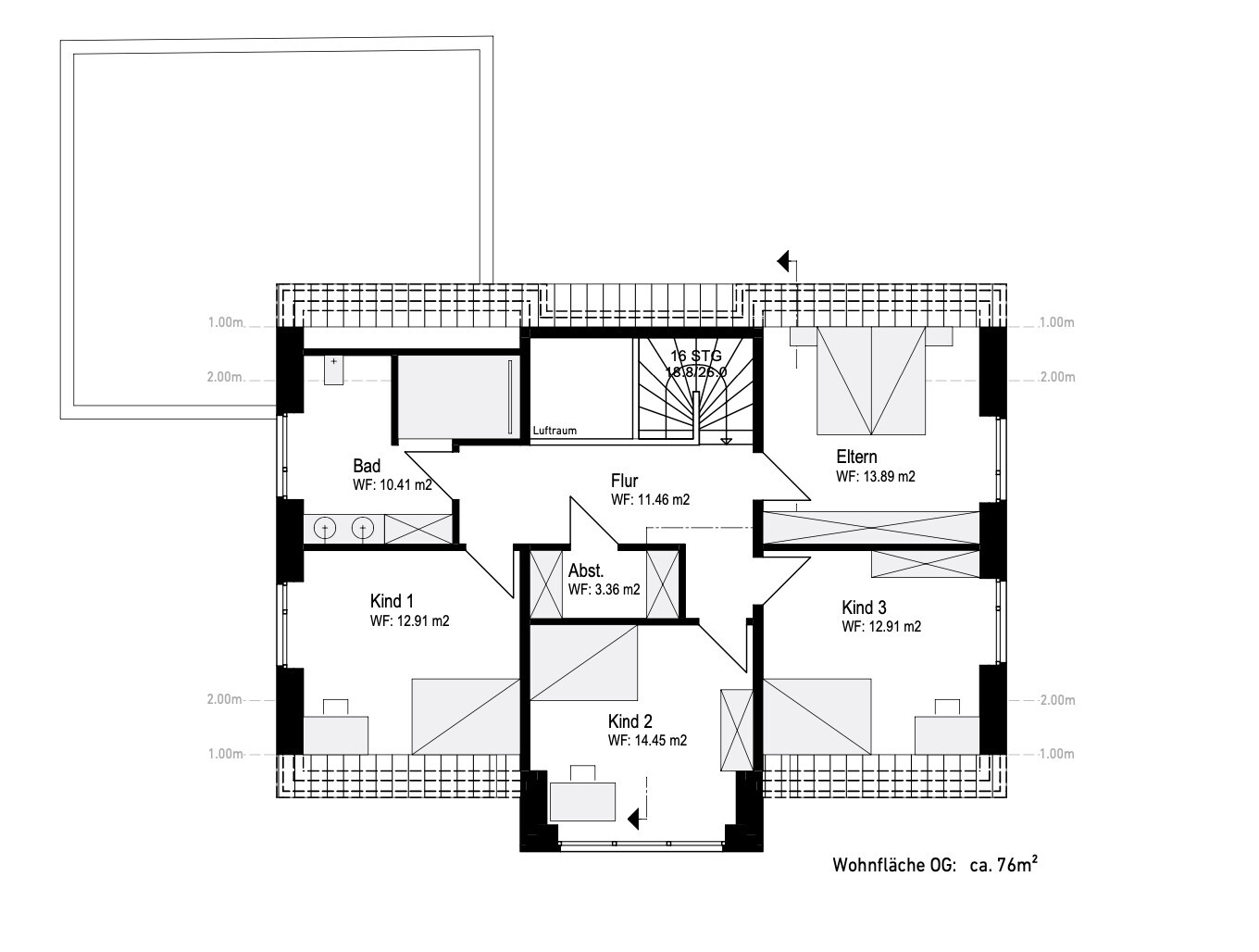
Keller, Geschosse -> Keller würden wir gerne, aber nicht realistisch, 1,5 Geschosse
Anzahl der Personen, Alter -> z. Zt. 3 (32, 28, 1) ... wir planen mit 3 Kinderzimmern
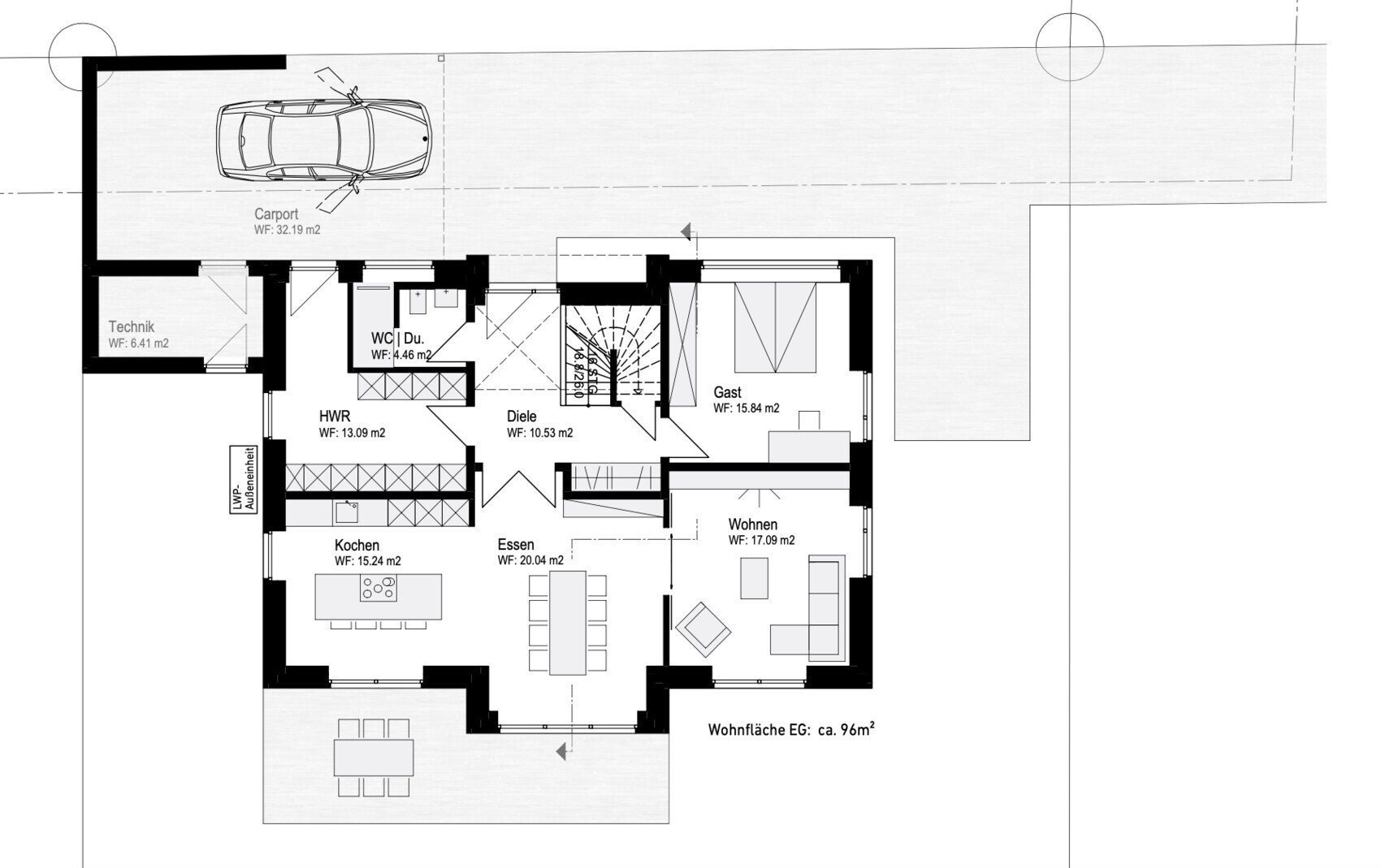
Raumbedarf im EG, OG -> EG: WR, Küche, Essen, Wohnen, WC mit Dusche, Gästezimmer/Kinderspielzimmer // OG: Eltern, 3 x Kind, Abstellraum, Bad
Büro: Familiennutzung oder Homeoffice? -> beides (beide können teilweise Home-Office erledigen, aber nicht dauerhaft)
Schlafgäste pro Jahr -> nicht nennenswert
offene oder geschlossene Architektur -> Küche/Essen offen und groß, Wohnzimmer klein und abgetrennt
konservativ oder moderne Bauweise -> konservativ
offene Küche, Kochinsel -> offene Küche ja, Kochinsel wenn es passt
Anzahl Essplätze -> 6-8 (Ausziehtisch)
Kamin -> nein
Musik/Stereowand -> wenn möglich ja
Balkon, Dachterrasse -> nicht erforderlich
Garage, Carport -> Kombi aus beidem -> Unser Auto muss kein Dach haben, jedoch hätten wir gerne einen geschlossenen Raum für Fahrräder, Werkstatt usw.
Nutzgarten, Treibhaus -> Rasen
weitere Wünsche/Besonderheiten/Tagesablauf, gern auch Begründungen, warum dieses oder das nicht sein soll
--> Bei uns die Küche/Essbereich der Lebensmittelpunkt, auch wenn Gäste da sind. Das Wohnzimmer soll ein relativ privater Bereich sein.
- Die Kinderzimmer müssen nicht extrem groß sein. Elternzimmer ist der unwichtigste Raum für uns.
- Im Bad ist keine Badewanne erforderlich.
- Wir wollen auf jeden Fall einen zweiten Eingang haben, wo die Kinder (und wir) unsere Dreckschuhe usw. ablegen können.
- Der "Haupteingang" ist dann für Gäste gedacht.
- Technikraum soll gerne außerhalb des Hauses, um nicht "wertvollen" Platz und teure Wohnqm zu verschwenden. Ist das Sinnvoll?
- Die Treppe soll nicht direkt neben der Haustür sein. Das ist aktuell in unserer Doppelhaushälfte so und man trägt immer den Dreck von vor der Haustür ins OG
- Gerne kann der Grundriss so angelegt sein, dass theoretisch irgendwann mal zwei Wohnungen (EG/OG) entstehen können.
Hausentwurf
Von wem stammt die Planung:
-Architekt (2. Runde)
Was gefällt besonders? Warum? -> Die Raumaufteilung gefällt uns so schon sehr gut, insbesondere das OG wird ideal genutzt und die Räume gleichmäßig verteilt
Was gefällt nicht? Warum? -> Der Bereich Hauswirtschaftsraum/Nebeneingang/Carport/Garage ist noch nicht so ideal
Preisschätzung lt Architekt/Planer: -> ganz grober Daumen ca. 400.000
Persönliches Preislimit fürs Haus, inkl. Ausstattung: 500.000 je Nach Zinsanstieg
favorisierte Heiztechnik: Luft-Wasser-Wärmepumpe und Kontrollierte-Wohnraumlüftung
Wenn Ihr verzichten müsst, auf welche Details/Ausbauten
-könnt Ihr verzichten: bisher nichts, es ist auch nicht besonders Detailreich
-könnt Ihr nicht verzichten: -
Warum ist der Entwurf so geworden, wie er jetzt ist? ZB
-> Nach Gesprächen mit Architekt mit unseren Wunschvorstellungen ist der Entwurf entstanden. Wir haben seit wir den Zuschlag zum Grundstück haben (> 1 Jahr) sämtliche Grundrisse im Netz durchforstet und daran unsere Pros/Cons abgewogen.
Was ist die wichtigste/grundlegende Frage zum Grundriss in 130 Zeichen zusammengefasst?
Habt ihr noch konkrete Verbesserungsvorschläge? Wie groß sollte der Abstand Haus/Nordgrenze sein, um neben einem parkenden Auto noch bequem in die Garage zu kommen?


Vielen Dank für eure Ideen
Beste Grüße
meine Frau und ich haben letztes Jahr ein Grundstück (Gartenbebauung nach geändertem Bebauungsplan) erstanden (im Plan gekennzeichnet mit Nummer 2018) und wollen jetzt die Planung weiter voran treiben. Ob wir das Vorhaben jetzt direkt zeitnah umsetzten, wissen wir noch nicht, aber wir möchten zumindest die Planung fertig stellen.
Der Plan ist genordet, d. h. das Haus hätte fast Nord-/Süd Ausrichtung
Bebauungsplan/Einschränkungen
612 qm + Zufahrt (ca. 85 qm)
Hang -> nein
Grundflächenzahl -> 0,3
Geschossflächenzahl -> 0,6
Baufenster, Baulinie und -grenze -> siehe Abbildung (3m Abstand, Garage darf auf Grenze, max. 15 m, davon 9 am Stück) Wo auf dem Grundstück das Haus zu stehen kommt ist egal.
Randbebauung -> nein
Anzahl Stellplatz -> keine Vorgabe
Geschossigkeit -> 2
Dachform -> ab 15 °, keine bestimmte Form, nur kein Flachdach
Stilrichtung -> nicht gefordert
Ausrichtung -> keine Vorgabe
Maximale Höhen/Begrenzungen -> FH 9 M
Besondere Anforderungen an Lärmschutz wg. BAB und L-Straße
Anforderungen der Bauherren
Stilrichtung, Dachform, Gebäudetyp -> klassisch Einfamilienhaus, Satteldach, Massivhaus mit Klinker
Keller, Geschosse -> Keller würden wir gerne, aber nicht realistisch, 1,5 Geschosse
Anzahl der Personen, Alter -> z. Zt. 3 (32, 28, 1) ... wir planen mit 3 Kinderzimmern
Raumbedarf im EG, OG -> EG: WR, Küche, Essen, Wohnen, WC mit Dusche, Gästezimmer/Kinderspielzimmer // OG: Eltern, 3 x Kind, Abstellraum, Bad
Büro: Familiennutzung oder Homeoffice? -> beides (beide können teilweise Home-Office erledigen, aber nicht dauerhaft)
Schlafgäste pro Jahr -> nicht nennenswert
offene oder geschlossene Architektur -> Küche/Essen offen und groß, Wohnzimmer klein und abgetrennt
konservativ oder moderne Bauweise -> konservativ
offene Küche, Kochinsel -> offene Küche ja, Kochinsel wenn es passt
Anzahl Essplätze -> 6-8 (Ausziehtisch)
Kamin -> nein
Musik/Stereowand -> wenn möglich ja
Balkon, Dachterrasse -> nicht erforderlich
Garage, Carport -> Kombi aus beidem -> Unser Auto muss kein Dach haben, jedoch hätten wir gerne einen geschlossenen Raum für Fahrräder, Werkstatt usw.
Nutzgarten, Treibhaus -> Rasen
weitere Wünsche/Besonderheiten/Tagesablauf, gern auch Begründungen, warum dieses oder das nicht sein soll
--> Bei uns die Küche/Essbereich der Lebensmittelpunkt, auch wenn Gäste da sind. Das Wohnzimmer soll ein relativ privater Bereich sein.
- Die Kinderzimmer müssen nicht extrem groß sein. Elternzimmer ist der unwichtigste Raum für uns.
- Im Bad ist keine Badewanne erforderlich.
- Wir wollen auf jeden Fall einen zweiten Eingang haben, wo die Kinder (und wir) unsere Dreckschuhe usw. ablegen können.
- Der "Haupteingang" ist dann für Gäste gedacht.
- Technikraum soll gerne außerhalb des Hauses, um nicht "wertvollen" Platz und teure Wohnqm zu verschwenden. Ist das Sinnvoll?
- Die Treppe soll nicht direkt neben der Haustür sein. Das ist aktuell in unserer Doppelhaushälfte so und man trägt immer den Dreck von vor der Haustür ins OG
- Gerne kann der Grundriss so angelegt sein, dass theoretisch irgendwann mal zwei Wohnungen (EG/OG) entstehen können.
Hausentwurf
Von wem stammt die Planung:
-Architekt (2. Runde)
Was gefällt besonders? Warum? -> Die Raumaufteilung gefällt uns so schon sehr gut, insbesondere das OG wird ideal genutzt und die Räume gleichmäßig verteilt
Was gefällt nicht? Warum? -> Der Bereich Hauswirtschaftsraum/Nebeneingang/Carport/Garage ist noch nicht so ideal
Preisschätzung lt Architekt/Planer: -> ganz grober Daumen ca. 400.000
Persönliches Preislimit fürs Haus, inkl. Ausstattung: 500.000 je Nach Zinsanstieg
favorisierte Heiztechnik: Luft-Wasser-Wärmepumpe und Kontrollierte-Wohnraumlüftung
Wenn Ihr verzichten müsst, auf welche Details/Ausbauten
-könnt Ihr verzichten: bisher nichts, es ist auch nicht besonders Detailreich
-könnt Ihr nicht verzichten: -
Warum ist der Entwurf so geworden, wie er jetzt ist? ZB
-> Nach Gesprächen mit Architekt mit unseren Wunschvorstellungen ist der Entwurf entstanden. Wir haben seit wir den Zuschlag zum Grundstück haben (> 1 Jahr) sämtliche Grundrisse im Netz durchforstet und daran unsere Pros/Cons abgewogen.
Was ist die wichtigste/grundlegende Frage zum Grundriss in 130 Zeichen zusammengefasst?
Habt ihr noch konkrete Verbesserungsvorschläge? Wie groß sollte der Abstand Haus/Nordgrenze sein, um neben einem parkenden Auto noch bequem in die Garage zu kommen?
Vielen Dank für eure Ideen
Beste Grüße
K
K a t j a22.10.22 21:46Solider Grundriss - so kann man bauen.
Eher einige (Hinter-)Fragen zu den Wünschen:
- 2. Eingang find ich Käse. Mir ist nicht so klar, wie das Leben dann funktioniert. Im Hauswirtschaftsraum können alle ihren Dreck einfach abschmeißen und liegen lassen und im Haupteingang nebenan liegt dann der teure Perser, um Gäste zu beeindrucken? Oder ist der Hauswirtschaftsraum deckenhoch gefliest und kann notfalls mit nem Schlauch ausgespritzt werden? Wo sollen denn die Jacken und Schuhe hängen, am Eingang 1 oder Eingang 2? Die Technik wird extra ausgelagert um den teuren Platz nicht zu verschwenden und dann baut man einen Tunneleingang neben dem Haupteingang, der imho völlig überflüssig ist? Mmmh.
- 3 Kinder und keine Badewanne? Das fühlt sich falsch an. Sollen die Kleinkinder dann duschen, statt fröhlich mit der Quietscheente im Wasser zu plantschen? Ab davon ist diese Monsterdusche total kalt und ungemütlich. Das fühlt sich an, wie im Schwimmbad. Das ist nicht schön.
- Die Fenster / WC-Rückwand -Situation im Gäste-WC sieht bislang seltsam aus. Halbhohe Wände werden üblicherweise andersfarbig dargestellt. Aber das ist eher unwichtig.
- Die bisher gebauten Häuser sehen aus, als müssten sie zwingend an eine Baulinie bauen. Sicher, dass das bei Euch nicht der Fall ist?
Eher einige (Hinter-)Fragen zu den Wünschen:
- 2. Eingang find ich Käse. Mir ist nicht so klar, wie das Leben dann funktioniert. Im Hauswirtschaftsraum können alle ihren Dreck einfach abschmeißen und liegen lassen und im Haupteingang nebenan liegt dann der teure Perser, um Gäste zu beeindrucken? Oder ist der Hauswirtschaftsraum deckenhoch gefliest und kann notfalls mit nem Schlauch ausgespritzt werden? Wo sollen denn die Jacken und Schuhe hängen, am Eingang 1 oder Eingang 2? Die Technik wird extra ausgelagert um den teuren Platz nicht zu verschwenden und dann baut man einen Tunneleingang neben dem Haupteingang, der imho völlig überflüssig ist? Mmmh.
- 3 Kinder und keine Badewanne? Das fühlt sich falsch an. Sollen die Kleinkinder dann duschen, statt fröhlich mit der Quietscheente im Wasser zu plantschen? Ab davon ist diese Monsterdusche total kalt und ungemütlich. Das fühlt sich an, wie im Schwimmbad. Das ist nicht schön.
- Die Fenster / WC-Rückwand -Situation im Gäste-WC sieht bislang seltsam aus. Halbhohe Wände werden üblicherweise andersfarbig dargestellt. Aber das ist eher unwichtig.
- Die bisher gebauten Häuser sehen aus, als müssten sie zwingend an eine Baulinie bauen. Sicher, dass das bei Euch nicht der Fall ist?
M
Myrna_Loy22.10.22 21:47Schöner Grundriss. Gefällt mir gut, wobei: wenn Ihr aufs Geld gucken müsst, dann würde ich erst einmal mit zwei Kinderzimmern und Büro planen und den Luftraum weglassen. Und ähm, der Architekt plant noch mit 2500 €/qm??? Aktuell ist 3000 €/ qm realistisch. Und ich hätte eher versucht, das Gäste-WC mit Dusche an den Nebeneingang mit Mudroom anzubinden. Wenn man schon so einen Raum plant. Dann sollten schmutzige Kinder oder Hunde auch gleich abgeduscht werden können und nicht erst in den Gästeflur müssen.
K a t j a schrieb:
Solider Grundriss - so kann man bauen.
Eher einige (Hinter-)Fragen zu den Wünschen:
- 2. Eingang find ich Käse. Mir ist nicht so klar, wie das Leben dann funktioniert. Im Hauswirtschaftsraum können alle ihren Dreck einfach abschmeißen und liegen lassen und im Haupteingang nebenan liegt dann der teure Perser, um Gäste zu beeindrucken? Oder ist der Hauswirtschaftsraum deckenhoch gefliest und kann notfalls mit nem Schlauch ausgespritzt werden? Wo sollen denn die Jacken und Schuhe hängen, am Eingang 1 oder Eingang 2? Die Technik wird extra ausgelagert um den teuren Platz nicht zu verschwenden und dann baut man einen Tunneleingang neben dem Haupteingang, der imho völlig überflüssig ist? Mmmh.
- 3 Kinder und keine Badewanne? Das fühlt sich falsch an. Sollen die Kleinkinder dann duschen, statt fröhlich mit der Quietscheente im Wasser zu plantschen? Ab davon ist diese Monsterdusche total kalt und ungemütlich. Das fühlt sich an, wie im Schwimmbad. Das ist nicht schön.
- Die Fenster / WC-Rückwand -Situation im Gäste-WC sieht bislang seltsam aus. Halbhohe Wände werden üblicherweise andersfarbig dargestellt. Aber das ist eher unwichtig.
- Die bisher gebauten Häuser sehen aus, als müssten sie zwingend an eine Baulinie bauen. Sicher, dass das bei Euch nicht der Fall ist?-> so richtig glücklich sind wir mit der Gestaltung des Hauswirtschaftsraum/zweiten Eingangs da ja auch noch nicht, danke für die Anregungen.
-> Badewanne sind wir uns sicher nicht zu benötigen, die Dusche erscheint uns aber auch ziemlich groß, mal schauen was hier noch machbar ist
-> Es gibt aus dem ersten Entwurf noch eine bessere Anordnung Hauswirtschaftsraum/Gäste-WC, wo das auch besser gelöst ist
-> Die Blau-Schwarze Kennzeichnung ist die Baugrenze, nicht die Linie. Da alle anderen Häuser aus den 40-50-60-70ern sind, sind alle direkten Straßenanliegenden Plätze bebaut. Der Bebauungsplan wurde Anfang des Jahres neu aufgestellt für eine Nachverdichtung.
K
K a t j a22.10.22 22:23Noch vergessen: für 2 spätere Wohnungen müsste der Luftraum wegfallen und die Treppe gedreht werden. Gäste-WC müsste mit Hauswirtschaftsraum die Plätze tauschen und wäre u.U. recht groß. Das ist bislang nicht durchdacht.
markusla schrieb:
Badewanne sind wir uns sicher nicht zu benötigen,sagen die, die noch keinen Muskelkater von der Gartenarbeit auskurieren müssen. Oder mal eine Decke oder andere Wäsche einweichen müssen.Aber ich bin es leid, hier Menschen zu erzählen, was sie brauchen oder nicht. Das erste Haus baut man für seinen Feind.
markusla schrieb:
Wir wollen auf jeden Fall einen zweiten Eingang haben, wo die Kinder (und wir) unsere Dreckschuhe usw. ablegen können.
- Der "Haupteingang" ist dann für Gäste gedacht.Ich nehme diesen Satz zum Anlass, d‘accord mit @K a t j a s Beitrag zu gehen. Dieser Nebenflur ergibt keinen Sinn.markusla schrieb:
Die Treppe soll nicht direkt neben der Haustür sein. Das ist aktuell in unserer Doppelhaushälfte so und man trägt immer den Dreck von vor der Haustür ins OGIst doch jetzt genauso: Dreck wird bis zum garderobenschrank getragen…oder wo werden die Schuhe ausgezogen? Soll das beim Nebeneingang passieren? Gleich neben der Weisswäsche, die dort gewaschen wird?markusla schrieb:
Wie groß sollte der Abstand Haus/Nordgrenze sein, um neben einem parkenden Auto noch bequem in die Garage zu kommen?Welche Garage meinst Du? Zeichne mal bitte Dein Haus in das Grundstück ein. Wo ist denn die Zufahrt von den besagten 85qm?Ansonsten finde ich den Grundriss baubar Und auch ok.
Ähnliche Themen