ᐅ Grundrissänderungen Reihenendhaus von Bauträger
Erstellt am: 25.04.23 19:30
mayglow25.04.23 19:30
Hallo allerseits,
wir sind aktuell dabei zu schauen, ob wir Änderungen an dem Standardgrundriss unseres Bauträgers für unser Reihenendhaus vornehmen wollen. Wir haben dabei stärkere Vorgaben, bei denen ich mir jetzt schon sicher bin, dass sie einige Forenmitglieder unglücklich machen werden. Genannt wurde grob: Außenwände, sowie Fassade sind nicht anpassbar (Fenster, Außentüren), sowie tragende Wände sind nicht verschiebbar. Genannt wurde hier vorwiegend die Treppe/Treppenwand. Der Großteil der anderen Innenwände ist nach unserem Kenntnisstand verschiebbar. Prinzipiell können wir uns auch vorstellen in den ungeänderten Standardgrundriss so einzuziehen, sehen aber bei 1-2 Punkten Optimierungspotenzial (aber vielleicht füttern wir damit ja doch nur am Ende den Typenhaus bauen - kleine Änderungen, unbeabsichtigte Nebenwirkungen Post).
Ich fülle trotzdem mal den Fragebogen aus, auch wenn das meißte davon für uns nicht änderbar ist. (insbesondere Abschnitt 1 zum Bebauungsplan ist eher BT-Sache)
Bebauungsplan/Einschränkungen
Größe des Grundstücks - 207qm
Hang - leichtes Gefälle, genaue Vermessung hab ich nicht vorliegen, aber an Hausautritten können wir auch nichts ändern.
Grundflächenzahl - 0,4
Geschossflächenzahl - 0,8
Baufenster, Baulinie und -grenze - nicht relevant, da wir Außenhülle nicht ändern können
Randbebauung - nicht relevant, da wir Außenhülle nicht ändern können
Anzahl Stellplatz (bereits enthalten) Garage + Stellplatz davor
Geschossigkeit - 2
Dachform - Satteldach
Stilrichtung -
Ausrichtung - Nord/Süd
Maximale Höhen/Begrenzungen - nicht relevant
Sonstige Festlegungen: Hainbuchen-Hecke zur Stichstraße hin auf unserem Grundstück (im Westen, in den Geschossplänen ist das planrechts, da sie nicht genorded sind)
Anforderungen der Bauherren
Stilrichtung, Dachform, Gebäudetyp: festgelegt durch Bauträger
Keller, Geschosse: Nutzkeller + 2 Vollgeschosse + ausgebautes Dach (durch BT bereits gegeben)
Anzahl der Personen, Alter: Aktuell 2 (31+32); in Planung 1-2 Kinder
Raumbedarf im EG, OG:
Büro: Familiennutzung oder Homeoffice? Homeoffice, beide im Teilhomeoffice. Irgendwo eine abgetrennte Nutzungsmöglichkeit für jeden wäre super, aber wenn das mit potentiell 2 Kindern nicht drin ist, ist das verkraftbar
Schlafgäste pro Jahr: circa 3-4mal im Jahr
offene oder geschlossene Architektur: Mittel? Offener Übergang zwischen Küche und Wohnen ist muss, aber insgesamt, darf es auch Wände geben.
konservativ oder moderne Bauweise: -
offene Küche, Kochinsel: tendenziell "nicht komplett geschlossen" (s.o.), aber wir brauchen nicht unbedingt ne Insel o.ä., wenn was anderes praktischer/preiswerter ist.
Anzahl Essplätze: für 4 Personen
Kamin: nein
Musik/Stereowand: nein
Balkon, Dachterrasse: nein
Garage, Carport: Garage ist inbegriffen
Nutzgarten, Treibhaus: nein (ggf nen kleines Beet später selbst angelegt)
weitere Wünsche/Besonderheiten/Tagesablauf, gern auch Begründungen, warum dieses oder das nicht sein soll:
Wir sind beide teilweise im Homeoffice. Aktuell haben wir dafür ein Büro und einen Schreibtisch im Wohnzimmer. Wenn möglich, würde ich nicht weiter im Wohnzimmer sitzen wollen. Wenn wir zu zweit einziehen ist das auch erstmal absolut null Problem, mit 1 Kind ist es vermutlich auch null Problem, mit 2 Kindern... naja bis dahin sieht die Welt ggf eh schon wieder anders aus. Ich hab das Gefühl, dann findet sich schon eine Möglichkeit und wenn sich jemand in die 4qm-Kammer im 1. OG einschließt (hier sind die Wände aber auch noch anpassbar) oder nen Schreibtisch im Schlafzimmer kriegt.
Hausentwurf





Zum Umfeld: Südlich sind die Garagen der Nachbarreihenhäuser, dann ein Wendeplatz (Ende der Stichstraße), danach kommen noch einzelne Bäume und wieder andere Einzelhäuser. Östlich ist natürlich erstmal unser Block. Dann ein paar Bäumchen und dann eine Bahntrasse (liegt ein paar Meter tiefer). Nach Westen haben wir noch auf unserem Grundstück eine von der Stadt verpflichtete Hainbuchenhecke, wir werden da versuchen auszuhandeln, dass wir nen Durchgang zur Straße kriegen (für Fahrräder und co) (da der zweite Rettungsweg EG über Terrasse ist, sehe ich da Chancen, aber die Stadt ist nicht immer so einfach)
Von wem stammt die Planung:
-Bauträger
Was gefällt besonders? Warum?
- Ich sehe den Plan sowohl für uns funktionieren, falls die Familienplanung nicht klappt (dann in mega großzügig) als auch mit 1-2 Kindern.
Was gefällt nicht? Warum?
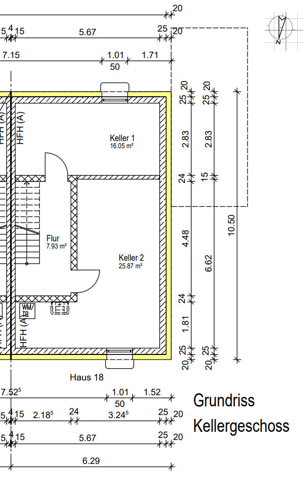
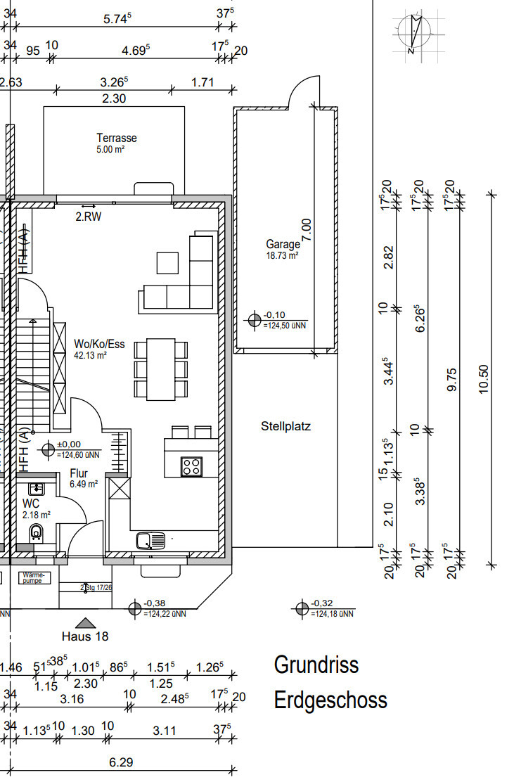
- EG: (Hauptschmerzpunkt) Eingang relativ eng/wenig Garderobe. Die Halbinsel in der Küche wirkt für mich zu klein zum gut funktionieren (und bedingt vermutlich teuren Abzug in der Insel), der Abstand vom sofa zum Fernseher ist riesig, der Abgang in den Keller ist im Wohnzimmer. Eine "irgendwie" Einrichtung fürs EG kriegen wir vermutlich hin, aber aktuell stellt sich kein "jup, so ist super"-Gefühl ein.
- OG: Waren am hin und her überlegen, ob man die 4qm-Kammer etwas größer zieht, um es ggf später als Ausweich-Office zu haben, aber eigentlich finden wir so wie es jetzt geplant ist, gar nicht so schlecht (und zunächst praktischer)
- Dach: Die "Landing" hier wäre mit Kind(ern) ein weiterer potentieller Office-Platz, hier waren wir am hin- und her-überlegen ob man das bereits mit Wand und Tür abteilt oder einfach erstmal so lässt wie eingezeichnet.
Also eigentlich: Bis auf das EG sind wir recht zu frieden, alles andere ist im Bereich "also wenn wir die Eierlegende Wollmilchsau wollen, könnte man ggf nochmal was ändern - oder man lässt es erstmal so und guckt dann, wenn der Bedarf wirklich entsteht"
Wenn Ihr verzichten müsst, auf welche Details/Ausbauten
-könnt Ihr verzichten: Änderungen am OG und Dach
-könnt Ihr nicht verzichten: Mindestens 1 Büro
Warum ist der Entwurf so geworden, wie er jetzt ist? ZB
Standardentwurf vom Bauträger
Was macht ihn in Euren Augen besonders gut oder schlecht? Ich finde, es ist nen solider Grundriss für junge Familien, aber das EG macht mir etwas Bauchschmerzen. Ich habe das Gefühl, vielleicht hätte eine andere Treppenform geholfen, die ist aber soweit mir das bisher kommuniziert wurde, nicht änderbar.
Was ist die wichtigste/grundlegende Frage zum Grundriss in 130 Zeichen zusammengefasst?
Wie richtet man das EG ein? Sollten wir hier noch etwas ändern?
Entwürfe für potentielle Änderungen am EG
Eventuell die Küche verkleinern und die Wand im Flur gerade ziehen? (Idee hatten wir im Forum für Küchen schonmal durchüberlegt, aber waren noch nicht beim Planer) Die Planung ist hier nicht gut skaliert (meine schränke sind glaube ich zu groß). Rohbaumaß ist eigentlich in der Küche am schmalsten Punkt 248cm, also sagen wir grob ~240cm minus ~130cm für beide Küchenseiten wären 110cm Zeilenabstand. Außerdem wäre das Fenster in der Ecke gerückt. Dafür wäre im Flur mehr Garderobenplatz. Doofe Idee? Meinungen?

Andere Frage ist so ein bisschen... kriegen wir den Abstand Fernseher zu Sofa etwas verkleinert? Ich habe einfach mal unsere aktuellen Möbel eingezeichnet, das sähe etwa so aus (Sofa 275x220)

Ideen gehen in Richtung, Regal hinters Sofa (blockiert aber mehr die Terrassentür), sonst noch Ideen?
Liebe Grüße
wir sind aktuell dabei zu schauen, ob wir Änderungen an dem Standardgrundriss unseres Bauträgers für unser Reihenendhaus vornehmen wollen. Wir haben dabei stärkere Vorgaben, bei denen ich mir jetzt schon sicher bin, dass sie einige Forenmitglieder unglücklich machen werden. Genannt wurde grob: Außenwände, sowie Fassade sind nicht anpassbar (Fenster, Außentüren), sowie tragende Wände sind nicht verschiebbar. Genannt wurde hier vorwiegend die Treppe/Treppenwand. Der Großteil der anderen Innenwände ist nach unserem Kenntnisstand verschiebbar. Prinzipiell können wir uns auch vorstellen in den ungeänderten Standardgrundriss so einzuziehen, sehen aber bei 1-2 Punkten Optimierungspotenzial (aber vielleicht füttern wir damit ja doch nur am Ende den Typenhaus bauen - kleine Änderungen, unbeabsichtigte Nebenwirkungen Post).
Ich fülle trotzdem mal den Fragebogen aus, auch wenn das meißte davon für uns nicht änderbar ist. (insbesondere Abschnitt 1 zum Bebauungsplan ist eher BT-Sache)
Bebauungsplan/Einschränkungen
Größe des Grundstücks - 207qm
Hang - leichtes Gefälle, genaue Vermessung hab ich nicht vorliegen, aber an Hausautritten können wir auch nichts ändern.
Grundflächenzahl - 0,4
Geschossflächenzahl - 0,8
Baufenster, Baulinie und -grenze - nicht relevant, da wir Außenhülle nicht ändern können
Randbebauung - nicht relevant, da wir Außenhülle nicht ändern können
Anzahl Stellplatz (bereits enthalten) Garage + Stellplatz davor
Geschossigkeit - 2
Dachform - Satteldach
Stilrichtung -
Ausrichtung - Nord/Süd
Maximale Höhen/Begrenzungen - nicht relevant
Sonstige Festlegungen: Hainbuchen-Hecke zur Stichstraße hin auf unserem Grundstück (im Westen, in den Geschossplänen ist das planrechts, da sie nicht genorded sind)
Anforderungen der Bauherren
Stilrichtung, Dachform, Gebäudetyp: festgelegt durch Bauträger
Keller, Geschosse: Nutzkeller + 2 Vollgeschosse + ausgebautes Dach (durch BT bereits gegeben)
Anzahl der Personen, Alter: Aktuell 2 (31+32); in Planung 1-2 Kinder
Raumbedarf im EG, OG:
Büro: Familiennutzung oder Homeoffice? Homeoffice, beide im Teilhomeoffice. Irgendwo eine abgetrennte Nutzungsmöglichkeit für jeden wäre super, aber wenn das mit potentiell 2 Kindern nicht drin ist, ist das verkraftbar
Schlafgäste pro Jahr: circa 3-4mal im Jahr
offene oder geschlossene Architektur: Mittel? Offener Übergang zwischen Küche und Wohnen ist muss, aber insgesamt, darf es auch Wände geben.
konservativ oder moderne Bauweise: -
offene Küche, Kochinsel: tendenziell "nicht komplett geschlossen" (s.o.), aber wir brauchen nicht unbedingt ne Insel o.ä., wenn was anderes praktischer/preiswerter ist.
Anzahl Essplätze: für 4 Personen
Kamin: nein
Musik/Stereowand: nein
Balkon, Dachterrasse: nein
Garage, Carport: Garage ist inbegriffen
Nutzgarten, Treibhaus: nein (ggf nen kleines Beet später selbst angelegt)
weitere Wünsche/Besonderheiten/Tagesablauf, gern auch Begründungen, warum dieses oder das nicht sein soll:
Wir sind beide teilweise im Homeoffice. Aktuell haben wir dafür ein Büro und einen Schreibtisch im Wohnzimmer. Wenn möglich, würde ich nicht weiter im Wohnzimmer sitzen wollen. Wenn wir zu zweit einziehen ist das auch erstmal absolut null Problem, mit 1 Kind ist es vermutlich auch null Problem, mit 2 Kindern... naja bis dahin sieht die Welt ggf eh schon wieder anders aus. Ich hab das Gefühl, dann findet sich schon eine Möglichkeit und wenn sich jemand in die 4qm-Kammer im 1. OG einschließt (hier sind die Wände aber auch noch anpassbar) oder nen Schreibtisch im Schlafzimmer kriegt.
Hausentwurf
Zum Umfeld: Südlich sind die Garagen der Nachbarreihenhäuser, dann ein Wendeplatz (Ende der Stichstraße), danach kommen noch einzelne Bäume und wieder andere Einzelhäuser. Östlich ist natürlich erstmal unser Block. Dann ein paar Bäumchen und dann eine Bahntrasse (liegt ein paar Meter tiefer). Nach Westen haben wir noch auf unserem Grundstück eine von der Stadt verpflichtete Hainbuchenhecke, wir werden da versuchen auszuhandeln, dass wir nen Durchgang zur Straße kriegen (für Fahrräder und co) (da der zweite Rettungsweg EG über Terrasse ist, sehe ich da Chancen, aber die Stadt ist nicht immer so einfach)
Von wem stammt die Planung:
-Bauträger
Was gefällt besonders? Warum?
- Ich sehe den Plan sowohl für uns funktionieren, falls die Familienplanung nicht klappt (dann in mega großzügig) als auch mit 1-2 Kindern.
Was gefällt nicht? Warum?
- EG: (Hauptschmerzpunkt) Eingang relativ eng/wenig Garderobe. Die Halbinsel in der Küche wirkt für mich zu klein zum gut funktionieren (und bedingt vermutlich teuren Abzug in der Insel), der Abstand vom sofa zum Fernseher ist riesig, der Abgang in den Keller ist im Wohnzimmer. Eine "irgendwie" Einrichtung fürs EG kriegen wir vermutlich hin, aber aktuell stellt sich kein "jup, so ist super"-Gefühl ein.
- OG: Waren am hin und her überlegen, ob man die 4qm-Kammer etwas größer zieht, um es ggf später als Ausweich-Office zu haben, aber eigentlich finden wir so wie es jetzt geplant ist, gar nicht so schlecht (und zunächst praktischer)
- Dach: Die "Landing" hier wäre mit Kind(ern) ein weiterer potentieller Office-Platz, hier waren wir am hin- und her-überlegen ob man das bereits mit Wand und Tür abteilt oder einfach erstmal so lässt wie eingezeichnet.
Also eigentlich: Bis auf das EG sind wir recht zu frieden, alles andere ist im Bereich "also wenn wir die Eierlegende Wollmilchsau wollen, könnte man ggf nochmal was ändern - oder man lässt es erstmal so und guckt dann, wenn der Bedarf wirklich entsteht"
Wenn Ihr verzichten müsst, auf welche Details/Ausbauten
-könnt Ihr verzichten: Änderungen am OG und Dach
-könnt Ihr nicht verzichten: Mindestens 1 Büro
Warum ist der Entwurf so geworden, wie er jetzt ist? ZB
Standardentwurf vom Bauträger
Was macht ihn in Euren Augen besonders gut oder schlecht? Ich finde, es ist nen solider Grundriss für junge Familien, aber das EG macht mir etwas Bauchschmerzen. Ich habe das Gefühl, vielleicht hätte eine andere Treppenform geholfen, die ist aber soweit mir das bisher kommuniziert wurde, nicht änderbar.
Was ist die wichtigste/grundlegende Frage zum Grundriss in 130 Zeichen zusammengefasst?
Wie richtet man das EG ein? Sollten wir hier noch etwas ändern?
Entwürfe für potentielle Änderungen am EG
Eventuell die Küche verkleinern und die Wand im Flur gerade ziehen? (Idee hatten wir im Forum für Küchen schonmal durchüberlegt, aber waren noch nicht beim Planer) Die Planung ist hier nicht gut skaliert (meine schränke sind glaube ich zu groß). Rohbaumaß ist eigentlich in der Küche am schmalsten Punkt 248cm, also sagen wir grob ~240cm minus ~130cm für beide Küchenseiten wären 110cm Zeilenabstand. Außerdem wäre das Fenster in der Ecke gerückt. Dafür wäre im Flur mehr Garderobenplatz. Doofe Idee? Meinungen?
Andere Frage ist so ein bisschen... kriegen wir den Abstand Fernseher zu Sofa etwas verkleinert? Ich habe einfach mal unsere aktuellen Möbel eingezeichnet, das sähe etwa so aus (Sofa 275x220)
Ideen gehen in Richtung, Regal hinters Sofa (blockiert aber mehr die Terrassentür), sonst noch Ideen?
Liebe Grüße
kbt0925.04.23 21:27
Ja 😉 ... ich bin ja absoluter Fan von Küche an Terrassentür ... Sofa/Fernsehen dann da, wo jetzt Küche ist, da dürften dann die Abstände passen und es ist ruhig und gemütlich. Dann passt der Kellerabgang auch besser. Garderobe ist aber auch da ein Problemchen.
2. Büroarbeitsplatz könnte dann planlinks in einer "Stauraumwand" zum Treppenhaus hin untergebracht werden. Eine zweite Arbeitsecke liesse sich aber auch im Studio durch Einbauen einer Trennwand erreichen. Der zweite Arbeitsplatz im Durchgangsflur ist dann nicht ideal, aber auf jeden Fall stiller gelegen als im Allraum unten. Evtl. könnte man dann die Wand zum Treppenhaus zumindest als erweitertern Garderobenstauraum nutzen, also im Flur wirklich nur das tägliche in der Nische und dort an der Treppenwand den "Nachschub".
Im OG würde ich für den Abstellraum wohl auf jeden Fall Wasseranschluss für evtl. Waschmaschine vorsehen wollen.
2. Büroarbeitsplatz könnte dann planlinks in einer "Stauraumwand" zum Treppenhaus hin untergebracht werden. Eine zweite Arbeitsecke liesse sich aber auch im Studio durch Einbauen einer Trennwand erreichen. Der zweite Arbeitsplatz im Durchgangsflur ist dann nicht ideal, aber auf jeden Fall stiller gelegen als im Allraum unten. Evtl. könnte man dann die Wand zum Treppenhaus zumindest als erweitertern Garderobenstauraum nutzen, also im Flur wirklich nur das tägliche in der Nische und dort an der Treppenwand den "Nachschub".
Im OG würde ich für den Abstellraum wohl auf jeden Fall Wasseranschluss für evtl. Waschmaschine vorsehen wollen.
ypg25.04.23 21:28
mayglow schrieb:
Wir haben dabei stärkere Vorgaben, bei denen ich mir jetzt schon sicher bin, dass sie einige Forenmitglieder unglücklich machen werden.Du magst es kaum glauben, aber ich bin immer froh, wenn irgendetwas eingegrenzt wird und es auch eingehalten werden muss. Kein „ich wollte aber Pinterest-Bild verwirklichen“, sondern „ich arrangiere mich“ und mache das Beste daraus.Da sind wir auch schon bei den Optimierungen:
mayglow schrieb:
EG: (Hauptschmerzpunkt)Du kannst es ändern, indem Du einen Zweizeiler als Küche machst. 2,40 werden da im Optimum gebraucht. Dann hast Du mehr Platz für Garderobe/Kommode im Flur. Wenn man nicht unbedingt eine Insel haben möchte, finde ich die Lösung genauso gut wie eine angedockte Insel.Du könntest aber auch Kü und WZ tauschen, wenn TV bei Euch kleiner könnte und das Kochen eher zelebriert wird. Dann hast Du eine Art Wohnküche nahe der Terrasse.
Eine Treppendrehung mit Wendelunganpassung wäre von der Lage auch möglich: Treppenantritt im Essbereich, im OG eine Anpassung, DG tauscht die Räume. Keller wird auch funktionieren.
Allerdings: Du musst da nichts ändern. Das Reihenhaus wird prima funktionieren.
Wenn TV zu weit weg, dann ziehe doch das Sofa vor und dahinter dann Regale oder ein Sideboard. Bei Ikea sieht man so etwas öfters. Bei Treppendrehung gibt es mehr Möglichkeiten.
Vielleicht kommt der TV auch gedreht in das Esszimmer-Regal?
Was ich aber versuchen würde zu ändern, wäre ein zusätzliches Fenster im Westen. Hatten wir auch im RH, zwar zum Norden hin, aber es war zu den Mittelhäusern ein großer Unterschied.
Sorge macht mir persönlich das Bad. Ich finde es für 4 sehr klein.
Die Quer-Anordnung der Räume macht wohl ein größeres Bad möglich, zumindest ergeben sich andere Wandmaße. Auf die Trennwand zw Wanne und Toi würde ich verzichten.
kbt0925.04.23 21:29
Stimmt, ein Fenster Richtung Stellplatz fände ich auch in jedweder Konstellation sinnvoll.
mayglow25.04.23 21:47
kbt09 schrieb:
Fenster Richtung StellplatzIch werde nochmal anklopfen, aber bei unsererer letzten Fensterfrage hieß es, Fassade ist nicht anpassbar. Da gings aber auch um die Fenster an der kurzen Wand (hatten ne Frage wegen Brüstungshöhen) und dass man die nicht im Vergleich zu den anderen Reihenhäusern anpassen will, ist ja auch ggf was anderes. Ich werde nochmal fragen, im schlimmsten Fall heißt es halt "geht nicht" oder es wird nen Preis genannt, den wir nicht zahlen wollen. Würdet ihr ein Fenster dann relativ nah an die Garage setzen für bessere Beleuchtung des "Mittelteils" oder eher in den (aktuell) Küchenbereich?kbt0925.04.23 22:23
Da würde ich dann erst mal planen. Pi mal Daumen würde ich wohl so ca. 1 m von der Garage weg ein Fenster, keine bodentiefes, planen.
Ähnliche Themen