ᐅ Grundriss und Hauspositionierung Bungalow mit 120qm auf Eckgrundstück
Erstellt am: 27.11.25 08:58
L
Lurchi2025L
Lurchi202527.11.25 08:58Hallo lieber Forengemeinde,
ich bin schon länger eine stille Mitleserin im Forum und möchte euch jetzt selbst um Hilfe bitten. Wir planen derzeit unseren Hausbau und haben gestern den ersten Entwurf der Architektin unseres GU bekommen, welchen ich hier zur Diskussion stellen möchte.
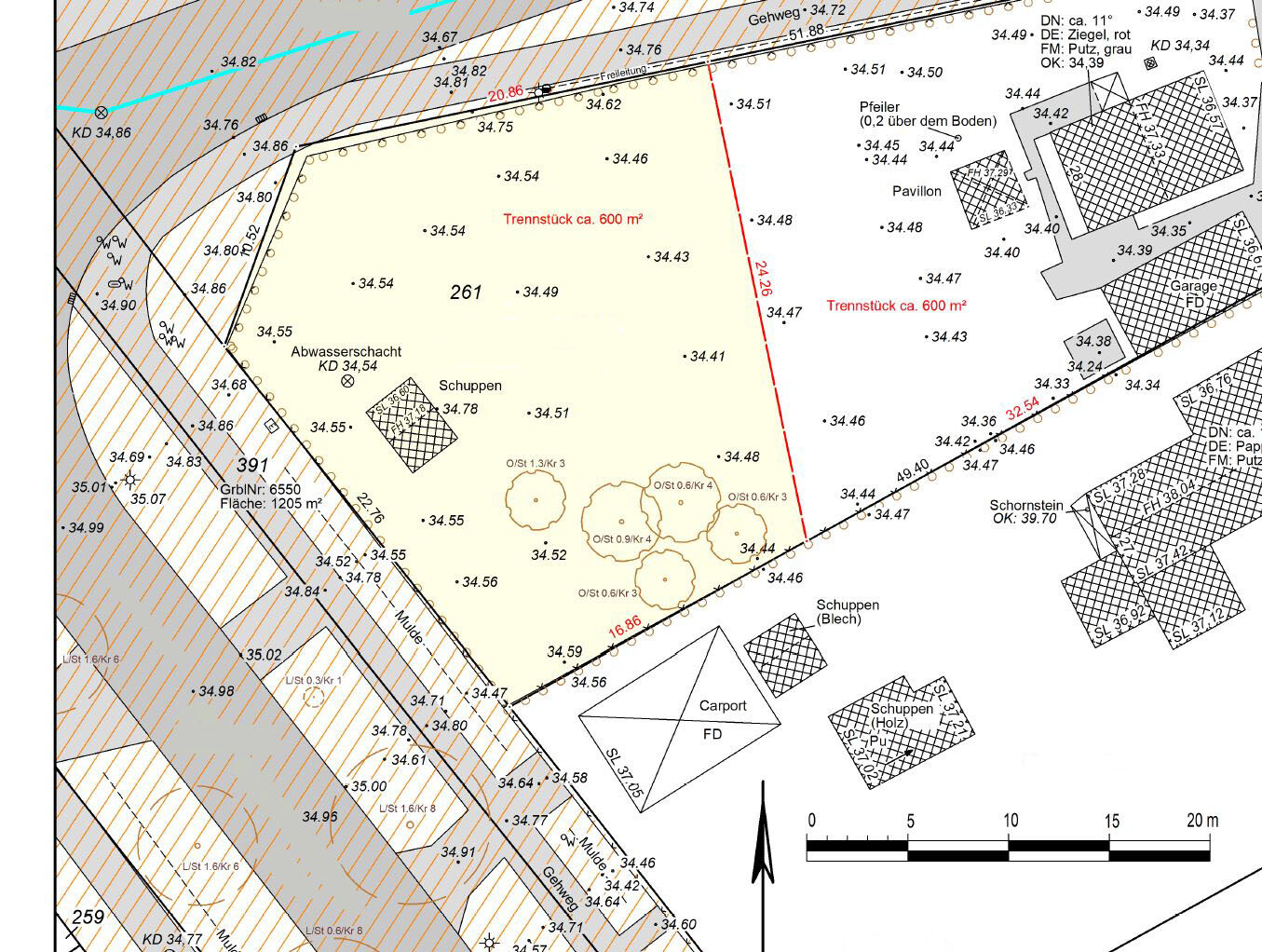
Darüber hinaus erhoffe ich mir etwas Input bei der Positionierung des Hauses auf dem Grundstück. Ich war mir bislang sicher, dass wir das Haus an der nördlichen Nebenstraße positionieren, die Einfahrt an der östlichen neuen Grenze. Der Bauherr hätte das Haus jedoch lieber an der westlichen Hauptstraße, weil man dann mehr Garten hat, die „tote Ecke“ im Nordwesten genutzt werden kann und das Haus auch Sicht- und Lärmschutz zur Hauptstraße im Westen bringt. Ich habe hier jedoch Angst, dass es im Haus zu dunkel wird.
Der ALP ist genordet, genauso wie das Luftbild.
Bebauungsplan/Einschränkungen
Größe des Grundstücks 600 qm
Hang kein Hang
Grundflächenzahl Es gilt §34, die Grundflächenzahl sollte jedoch 0,4 nicht übersteigen
Geschossflächenzahl
Baufenster, Baulinie und -grenze
Randbebauung
Anzahl Stellplatz 2 sind Pflicht, obwohl wir nur 1 benötigen
Geschossigkeit
Dachform
Stilrichtung
Ausrichtung
Maximale Höhen/Begrenzungen
weitere Vorgaben
Anforderungen der Bauherren
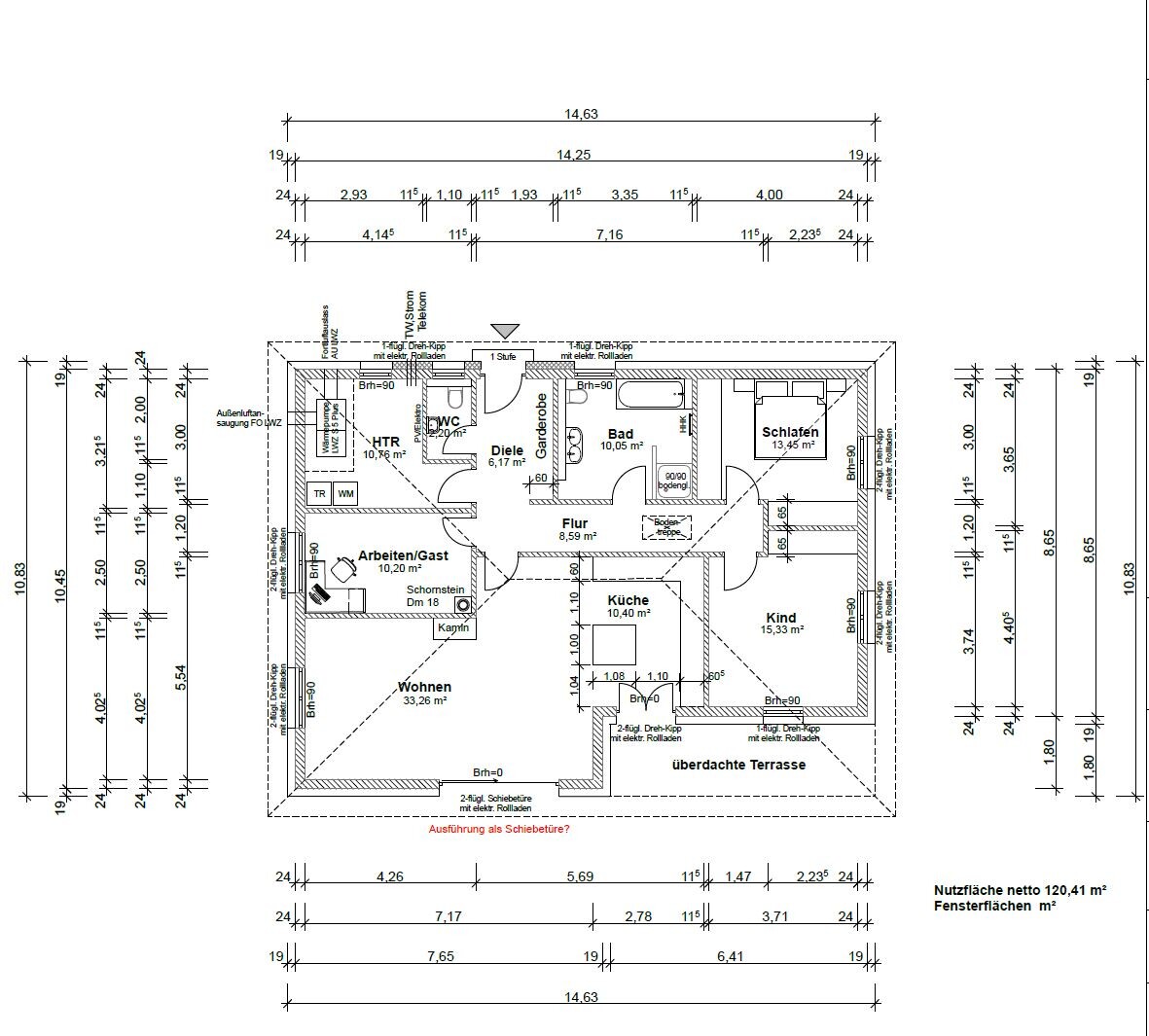
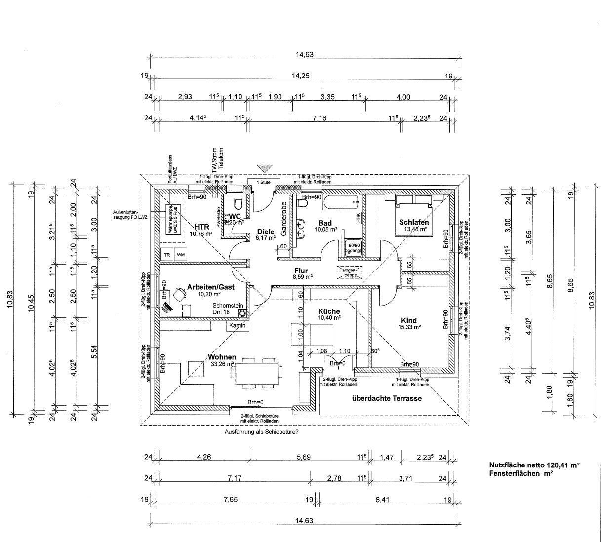
Stilrichtung, Dachform, Gebäudetyp Bungalow mit ca. 120qm
Keller, Geschosse nur EG
Anzahl der Personen, Alter 2 Erwachsene (40/43), 1 Kind (fast 4)
Raumbedarf im EG Wohnen/Essen/Kochen, Schlafzimmer, Kinderzimmer, Gästezimmer, Bad, Gäste-WC
Büro: Familiennutzung oder Homeoffice? Homeoffice an bis zu 2 Tagen, das Büro soll im Gästezimmer integriert sein
Schlafgäste pro Jahr mehrere im Jahr
offene oder geschlossene Architektur eher offen
konservativ oder moderne Bauweise modern
offene Küche, Kochinsel offene Küche mit Kochinsel
Anzahl Essplätze 6, erweiterbar auf bis zu 10
Kamin ja, gerne
Musik/Stereowand nein, aber 5.1-Anlage am TV
Balkon, Dachterrasse
Garage, Carport auf lange Sicht ein Carport
Nutzgarten, Treibhaus
weitere Wünsche/Besonderheiten/Tagesablauf, gern auch Begründungen, warum dieses oder das nicht sein soll: Uns ist das gemeinsame Kochen sehr wichtig, daher hätten wir gerne eine ausreichend große Küche, sehr gerne mit einer Kochinsel. Der Mann grillt das ganze Jahr, entsprechend wichtig ist ihm die Terrasse und der gesamte Außenbereich.
Hausentwurf
Von wem stammt die Planung:
-Planer eines Bauunternehmens Der Entwurf stammt von der Architektin unseres GU, basiert jedoch (leider, konnten wir bei unserem GU nicht anders) auf einer groben Skizze von uns
-Architekt
-Do-it-Yourself
Was gefällt besonders? Warum? Es basiert ja schon auf unserem groben Plan, mir gefällt der Garderobenplatz am Eingang (könnte aber wohl durchaus auch noch etwas kleiner sein) und die Größe des Kinderzimmers, wobei hier 1-2qm weniger auch ok wären.
Was gefällt nicht? Warum? Schlafzimmer kommt mir etwas beengt vor (Platz am Fußende vom Bett ausreichend? Das Bett ist hier nur 2x1,80m, aber das Kopfteil trägt ja auch noch auf), der Flur ist mit 1,20m eher eng, die Terrasse ist zu länglich, am Eingang zum Allraum hat man recht viel ungenutzte Freifläche und ich hätte gerne etwas Stellfläche im Gästezimmer hinter der Tür
Preisschätzung laut Architekt/Planer:
Persönliches Preislimit fürs Haus, inkl. Ausstattung: 430.000 €
favorisierte Heiztechnik: Wärmepumpe mit Kontrollierte-Wohnraumlüftung
Wenn Ihr verzichten müsst, auf welche Details/Ausbauten
-könnt Ihr verzichten: Bei der Garderobe gingen auch 1,5-2m Breite, das Kinderzimmer kann auch ruhig so 13-14qm haben, wenn man hierdurch wieder ein paar qm für anderswo „abzwacken“ kann
-könnt Ihr nicht verzichten: Eine gute Größe der Küche, die direkt an der Terrasse sein sollte
Warum ist der Entwurf so geworden, wie er jetzt ist? ZB
Standardentwurf vom Planer?
Entsprechende/Welche Wünsche wurden vom Architekten umgesetzt? Erster Entwurf basierend auf einer groben Skizze von uns. Diese basiert auf Grundrissbeispielen aus dem Freundes- und Bekanntenkreis und Standardentwürfen aus dem Netz
Ein Gemisch aus vielen Beispielen aus div. Magazinen...
Was macht ihn in Euren Augen besonders gut oder schlecht?



ich bin schon länger eine stille Mitleserin im Forum und möchte euch jetzt selbst um Hilfe bitten. Wir planen derzeit unseren Hausbau und haben gestern den ersten Entwurf der Architektin unseres GU bekommen, welchen ich hier zur Diskussion stellen möchte.
Darüber hinaus erhoffe ich mir etwas Input bei der Positionierung des Hauses auf dem Grundstück. Ich war mir bislang sicher, dass wir das Haus an der nördlichen Nebenstraße positionieren, die Einfahrt an der östlichen neuen Grenze. Der Bauherr hätte das Haus jedoch lieber an der westlichen Hauptstraße, weil man dann mehr Garten hat, die „tote Ecke“ im Nordwesten genutzt werden kann und das Haus auch Sicht- und Lärmschutz zur Hauptstraße im Westen bringt. Ich habe hier jedoch Angst, dass es im Haus zu dunkel wird.
Der ALP ist genordet, genauso wie das Luftbild.
Bebauungsplan/Einschränkungen
Größe des Grundstücks 600 qm
Hang kein Hang
Grundflächenzahl Es gilt §34, die Grundflächenzahl sollte jedoch 0,4 nicht übersteigen
Geschossflächenzahl
Baufenster, Baulinie und -grenze
Randbebauung
Anzahl Stellplatz 2 sind Pflicht, obwohl wir nur 1 benötigen
Geschossigkeit
Dachform
Stilrichtung
Ausrichtung
Maximale Höhen/Begrenzungen
weitere Vorgaben
Anforderungen der Bauherren
Stilrichtung, Dachform, Gebäudetyp Bungalow mit ca. 120qm
Keller, Geschosse nur EG
Anzahl der Personen, Alter 2 Erwachsene (40/43), 1 Kind (fast 4)
Raumbedarf im EG Wohnen/Essen/Kochen, Schlafzimmer, Kinderzimmer, Gästezimmer, Bad, Gäste-WC
Büro: Familiennutzung oder Homeoffice? Homeoffice an bis zu 2 Tagen, das Büro soll im Gästezimmer integriert sein
Schlafgäste pro Jahr mehrere im Jahr
offene oder geschlossene Architektur eher offen
konservativ oder moderne Bauweise modern
offene Küche, Kochinsel offene Küche mit Kochinsel
Anzahl Essplätze 6, erweiterbar auf bis zu 10
Kamin ja, gerne
Musik/Stereowand nein, aber 5.1-Anlage am TV
Balkon, Dachterrasse
Garage, Carport auf lange Sicht ein Carport
Nutzgarten, Treibhaus
weitere Wünsche/Besonderheiten/Tagesablauf, gern auch Begründungen, warum dieses oder das nicht sein soll: Uns ist das gemeinsame Kochen sehr wichtig, daher hätten wir gerne eine ausreichend große Küche, sehr gerne mit einer Kochinsel. Der Mann grillt das ganze Jahr, entsprechend wichtig ist ihm die Terrasse und der gesamte Außenbereich.
Hausentwurf
Von wem stammt die Planung:
-Planer eines Bauunternehmens Der Entwurf stammt von der Architektin unseres GU, basiert jedoch (leider, konnten wir bei unserem GU nicht anders) auf einer groben Skizze von uns
-Architekt
-Do-it-Yourself
Was gefällt besonders? Warum? Es basiert ja schon auf unserem groben Plan, mir gefällt der Garderobenplatz am Eingang (könnte aber wohl durchaus auch noch etwas kleiner sein) und die Größe des Kinderzimmers, wobei hier 1-2qm weniger auch ok wären.
Was gefällt nicht? Warum? Schlafzimmer kommt mir etwas beengt vor (Platz am Fußende vom Bett ausreichend? Das Bett ist hier nur 2x1,80m, aber das Kopfteil trägt ja auch noch auf), der Flur ist mit 1,20m eher eng, die Terrasse ist zu länglich, am Eingang zum Allraum hat man recht viel ungenutzte Freifläche und ich hätte gerne etwas Stellfläche im Gästezimmer hinter der Tür
Preisschätzung laut Architekt/Planer:
Persönliches Preislimit fürs Haus, inkl. Ausstattung: 430.000 €
favorisierte Heiztechnik: Wärmepumpe mit Kontrollierte-Wohnraumlüftung
Wenn Ihr verzichten müsst, auf welche Details/Ausbauten
-könnt Ihr verzichten: Bei der Garderobe gingen auch 1,5-2m Breite, das Kinderzimmer kann auch ruhig so 13-14qm haben, wenn man hierdurch wieder ein paar qm für anderswo „abzwacken“ kann
-könnt Ihr nicht verzichten: Eine gute Größe der Küche, die direkt an der Terrasse sein sollte
Warum ist der Entwurf so geworden, wie er jetzt ist? ZB
Standardentwurf vom Planer?
Entsprechende/Welche Wünsche wurden vom Architekten umgesetzt? Erster Entwurf basierend auf einer groben Skizze von uns. Diese basiert auf Grundrissbeispielen aus dem Freundes- und Bekanntenkreis und Standardentwürfen aus dem Netz
Ein Gemisch aus vielen Beispielen aus div. Magazinen...
Was macht ihn in Euren Augen besonders gut oder schlecht?
Lurchi2025 schrieb:
Ich war mir bislang sicher, dass wir das Haus an der nördlichen Nebenstraße positionieren, die Einfahrt an der östlichen neuen Grenze.Dann bitte mal entsprechend einzeichnen.Erster kurzer Eindruck ... Kinderzimmer an der Terrasse? Ist das so gut, wenn man als Eltern im Sommer abends nochmal etwas bleiben möchte.
Küche .. zeigt ja schon die Einzeichnung, toll ist die Insel nicht.
Wohnzimmer ... bitte mal möblieren, ich halte die Form für ungünstig.
Schöne Garderobe
H
hanghaus202327.11.25 11:48L
Lurchi202527.11.25 11:52Anbei die beiden möglichen Hauspositionen anhand des aktuellen Entwurfs. Terrasse an Kinderzimmer hatten wir jetzt einfach mal anhand der Himmelsrichtungen bei der Version "Haus an Nebenstraße" gelegt, wobei unser Junior einen recht tiefen Schlaf hat. Bei ihm kann man selbst vor dem Zelt Fußball-EM mit mehreren Leuten bejubeln und er pennt weiter.


H
hanghaus202327.11.25 12:12L
Lurchi202527.11.25 12:41Das östliche Nachbargrundstück wird ebenfalls neu bebaut, ebenfalls mit einem Bungalow von ca. 110qm. Soweit ich die Planungen kenne, orientieren sich diese Nachbarn an der nördlichen Grenze, also praktisch wie dein Vorschlag @hanghaus2023 . Diese Nachbarn hatten sogar vom Bauamt die Aussage bekommen, dass sie zur Straße nur 2 Meter Grenzabstand einhalten müssten.
Ich habe hier jetzt mal grob das Wohnzimmer möbliert, den Esstisch habe ich direkt großzügig dimensioniert mit 2x1m, die Kücheninsel ist ebenfalls auf 2x1m. So wirklich sagt mir das Wohnzimmer aber auch nicht zu.

Ich habe hier jetzt mal grob das Wohnzimmer möbliert, den Esstisch habe ich direkt großzügig dimensioniert mit 2x1m, die Kücheninsel ist ebenfalls auf 2x1m. So wirklich sagt mir das Wohnzimmer aber auch nicht zu.
Ähnliche Themen