ᐅ Grundriss Stadtvilla 190 m² auf Bodenplatte
Erstellt am: 23.10.20 09:43
Servus zusammen,
nun traue ich mich auch mal mit unserem Projekt in die Höhle der Löwen.
Die Entstehung kann man auch hier nachlesen:https://www.hausbau-forum.de/threads/efh-neubauvorhaben-von-tag-1-an-und-die-planung-beginnt.33766/
Bebauungsplan/Einschränkungen
Größe des Grundstücks: ca. 750m²
Hang: siehe Skizze
Grundflächenzahl: 0,3
Geschossflächenzahl: 0,6
Baufenster, Baulinie und -grenze: 3m; siehe Skizze
Randbebauung: Ja, Garage erlaubt
Anzahl Stellplatz: 1x Garage; 1-2 vor dem Haus
Geschossigkeit: 2 Vollgeschosse
Dachform: Walmdach 22°
Stilrichtung: Stadtvilla
Ausrichtung: südwesten
Maximale Höhen/Begrenzungen: TH maximal 7,50m, OK maximal = 10,0m (gemessen vom tiefsten Punkt der natürlichen Geländeoberfläche talseits)
weitere Vorgaben: keine

Anforderungen der Bauherren
Stilrichtung, Dachform, Gebäudetyp: s. o.
Keller, Geschosse: auf Bodenplatte; 2 Vollgeschosse
Anzahl der Personen, Alter: 32; 28; keine Kinder (geplant 2)
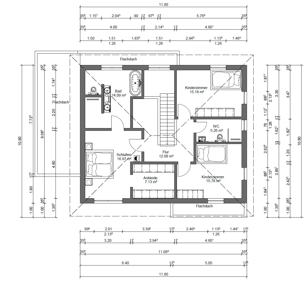
Raumbedarf im EG, OG: siehe Grundrissentwurf
Büro: 1 Homeoffice-Arbeitsplatz
Schlafgäste pro Jahr: keine
offene oder geschlossene Architektur: offen
konservativ oder moderne Bauweise: eher modern
offene Küche, Kochinsel: Ja, als Raumteiler
Anzahl Essplätze: 6-8
Kamin: Ja; vier-seitiger Panoramakamin als Raumteiler zw. Wohnen und Eingang bzw. Essen/Kochen
Musik/Stereowand: Nein
Balkon, Dachterrasse: Nein
Garage, Carport: 1 Einzelgarage mit Überlänge
Nutzgarten, Treibhaus: bislang nicht geplant
weitere Wünsche/Besonderheiten/Tagesablauf, gern auch Begründungen, warum dieses oder das nicht sein soll: offener Wohn-/Essbereich als Lebensmittelpunkt, Fernsehecke im Verhältnis eher kleiner und dadurch gemütlicher, Kamin, Büro im EG zum Garten, gerade geschlossene Treppe aus massiver Eiche, Galerie und Luftraum im OG, Kinder und Eltern getrennt im OG, Ankleide auf keinen Fall als Durchgangszimmer; statt Ankleide lieber eine Art begehbarer Kleiderschrank.
Hausentwurf
Von wem stammt die Planung: Basis "Herb" von Baufritz, eigene Planung in Zusammenarbeit mit GU und User des Forums
Was gefällt besonders? Büro zum Garten, Frühstücks- und Abendterrasse, offener Wohn- und Essbereich, Kamin als Raumteiler, Galerie im OG und Luftfraum über Eingangsbereich EG, getrennte Bereiche für Kinder und Eltern
Was gefällt nicht? Warum? Alles tutti
Preisschätzung lt Planer: 682' (Haus 505', Baunebenkosten 59', Grundstück 69', sonstige Kosten [inkl. Küche und Außenanlage] 49')
Persönliches Preislimit fürs Haus, inkl Ausstattung: 700' All-In
favorisierte Heiztechnik: Luft-Wasser-Wärmepumpe mit Split und FHB, Kontrollierte-Wohnraumlüftung
Wenn Ihr verzichten müsst, auf welche Details/Ausbauten
-könnt Ihr verzichten: ./.
-könnt Ihr nicht verzichten: ./.
Warum ist der Entwurf so geworden, wie er jetzt ist?
Auf Basis "Herb" von Baufritz an unsere Bedürfnisse und das Grundstück von uns angepasst. Anschließende Weiterentwicklung des Grundrisses mit GU und mit Hilfe der User dieses Forums. Prozessdauer: 8 Monate
Was ist die wichtigste/grundlegende Frage zum Grundriss in 130 Zeichen zusammengefasst?
Siehe "Was gefällt besonders?"


nun traue ich mich auch mal mit unserem Projekt in die Höhle der Löwen.
Die Entstehung kann man auch hier nachlesen:https://www.hausbau-forum.de/threads/efh-neubauvorhaben-von-tag-1-an-und-die-planung-beginnt.33766/
Bebauungsplan/Einschränkungen
Größe des Grundstücks: ca. 750m²
Hang: siehe Skizze
Grundflächenzahl: 0,3
Geschossflächenzahl: 0,6
Baufenster, Baulinie und -grenze: 3m; siehe Skizze
Randbebauung: Ja, Garage erlaubt
Anzahl Stellplatz: 1x Garage; 1-2 vor dem Haus
Geschossigkeit: 2 Vollgeschosse
Dachform: Walmdach 22°
Stilrichtung: Stadtvilla
Ausrichtung: südwesten
Maximale Höhen/Begrenzungen: TH maximal 7,50m, OK maximal = 10,0m (gemessen vom tiefsten Punkt der natürlichen Geländeoberfläche talseits)
weitere Vorgaben: keine
Anforderungen der Bauherren
Stilrichtung, Dachform, Gebäudetyp: s. o.
Keller, Geschosse: auf Bodenplatte; 2 Vollgeschosse
Anzahl der Personen, Alter: 32; 28; keine Kinder (geplant 2)
Raumbedarf im EG, OG: siehe Grundrissentwurf
Büro: 1 Homeoffice-Arbeitsplatz
Schlafgäste pro Jahr: keine
offene oder geschlossene Architektur: offen
konservativ oder moderne Bauweise: eher modern
offene Küche, Kochinsel: Ja, als Raumteiler
Anzahl Essplätze: 6-8
Kamin: Ja; vier-seitiger Panoramakamin als Raumteiler zw. Wohnen und Eingang bzw. Essen/Kochen
Musik/Stereowand: Nein
Balkon, Dachterrasse: Nein
Garage, Carport: 1 Einzelgarage mit Überlänge
Nutzgarten, Treibhaus: bislang nicht geplant
weitere Wünsche/Besonderheiten/Tagesablauf, gern auch Begründungen, warum dieses oder das nicht sein soll: offener Wohn-/Essbereich als Lebensmittelpunkt, Fernsehecke im Verhältnis eher kleiner und dadurch gemütlicher, Kamin, Büro im EG zum Garten, gerade geschlossene Treppe aus massiver Eiche, Galerie und Luftraum im OG, Kinder und Eltern getrennt im OG, Ankleide auf keinen Fall als Durchgangszimmer; statt Ankleide lieber eine Art begehbarer Kleiderschrank.
Hausentwurf
Von wem stammt die Planung: Basis "Herb" von Baufritz, eigene Planung in Zusammenarbeit mit GU und User des Forums
Was gefällt besonders? Büro zum Garten, Frühstücks- und Abendterrasse, offener Wohn- und Essbereich, Kamin als Raumteiler, Galerie im OG und Luftfraum über Eingangsbereich EG, getrennte Bereiche für Kinder und Eltern
Was gefällt nicht? Warum? Alles tutti
Preisschätzung lt Planer: 682' (Haus 505', Baunebenkosten 59', Grundstück 69', sonstige Kosten [inkl. Küche und Außenanlage] 49')
Persönliches Preislimit fürs Haus, inkl Ausstattung: 700' All-In
favorisierte Heiztechnik: Luft-Wasser-Wärmepumpe mit Split und FHB, Kontrollierte-Wohnraumlüftung
Wenn Ihr verzichten müsst, auf welche Details/Ausbauten
-könnt Ihr verzichten: ./.
-könnt Ihr nicht verzichten: ./.
Warum ist der Entwurf so geworden, wie er jetzt ist?
Auf Basis "Herb" von Baufritz an unsere Bedürfnisse und das Grundstück von uns angepasst. Anschließende Weiterentwicklung des Grundrisses mit GU und mit Hilfe der User dieses Forums. Prozessdauer: 8 Monate
Was ist die wichtigste/grundlegende Frage zum Grundriss in 130 Zeichen zusammengefasst?
Siehe "Was gefällt besonders?"
H
hampshire23.10.20 10:12Das ist ein gut bewohnbarer Entwurf mit sehr viel Verkehrsfläche. Letzteres muss man mögen.
Ich wäre nicht auf die Idee gekommen einen Entwurf für ein flaches Grundstück auf einen Hang zu setzen.
Ich wäre nicht auf die Idee gekommen einen Entwurf für ein flaches Grundstück auf einen Hang zu setzen.
A
Alessandro23.10.20 10:17gefällt mir sehr gut!
Lass dir die Option frei, zwischen Kamin und Treppe noch eine Tür einbauen zu können. Schiebetür oder Glastür etc.
Ein offener Flur mit Luftraum ist nicht jedermanns Sache bezügl. Geräuschentwicklung.
Das mit der Garage würde ich überdenken. Man sieht am Bild schon dass man kaum die Türen aufmachen kann um mal was ein- und auszuladen.
Ich würde ein offenes Carport machen.
Lass dir die Option frei, zwischen Kamin und Treppe noch eine Tür einbauen zu können. Schiebetür oder Glastür etc.
Ein offener Flur mit Luftraum ist nicht jedermanns Sache bezügl. Geräuschentwicklung.
Das mit der Garage würde ich überdenken. Man sieht am Bild schon dass man kaum die Türen aufmachen kann um mal was ein- und auszuladen.
Ich würde ein offenes Carport machen.
A
Alessandro23.10.20 10:20Garderobe sollte doch in den Hauswirtschaftsraum oder?
Ähnliche Themen