Hausbau - Ratgeber
Bauherrenhilfe
- Bauherrenhilfe vor Vertragsabschluss
-- Warum einen unabhängigen Baubetreuer?
-- Vertragsgrundlagen
-- Bausumme
-- Zahlungsplan zur Kostenkontrolle
-- Pflichten des Bauherren vor Vertragsabschluss
-- Unterlagen beim Hausbau vor Vertragsabschluss
- Bauherrenhilfe nach Vertragsabschluss
-- Bauantrag bei Behörden
-- Bau-Genehmigungsverfahren bei Baubehörden
-- Bauspezifische Versicherungen
-- Bauzeitenplan
-- Baubeginn - die Letzten Pflichten der Bauherrschaft
- Bauherrenhilfe während der Bauzeit
- Gewährleistungsansprüche
- Bauabnahme
Baufinanzierung
- Baufinanzierung - Allgemeine Fragen
- Kreditarten
- Kredit-Konditionen
- Bausparen
- Staatliche Förderungen
- Verkehrswert
- Haushaltsrechnung und Bonität
Hausbau Planung
- Haustypen
- Hausbau Vorbereitungsarbeiten
- Das Baugrundstück
- Baugrund beim Hausbau
- Baurecht
- Gebäudeschutz
- Erdarbeiten und Wasserhaltung
- Stützmauern
- Einfriedung
- Untergeschoss
- Kanalisation
- Tragende Elemente
- Nichttragende Innenwände
- Fundation / Fundament
- Deckenkonstruktionen
- Dächer
- Kaminanlagen
- Treppen Rampen Leitern
- Dachbeläge und Spengler
- Fenster
- Sonnen und Wetterschutz
- Aussenputze
- Einbauten, Küchen, Türen
- Bodenbeläge und Unterlagsböden
- Parkett
- Gips, Wand, Decke
Haustechnik und Energie
- Heiztechnik
- Lüftung und Klimatechnik
- Sanitärtechnik
- Elektrotechnik
- Erneuerbare Energie
Whirlpools / Jacuzzi
Hausbau Magazin
- Baufinanzierung trotz Krise?
- Das Blockhaus
- Moderne Dämmstoffe im Vergleich
- Erker Vor- und Nachteile
- Glasflächen beim Hausbau
- Günstig ein Haus Bauen
- Mediterraner Hausbaustil
- Mehrgenerationenhaus
- Moderne Architektur
- Gartengestaltung leicht gemacht
- Traditioneller Ziegelbau
- Villa als höchster Traum
- Im Eigenheim Ruhestand geniessen
- Altbau sanieren
- Kauf einer Holzgarage
- Immobilienmakler
- Arbeitshandschuhe für den Winter
- Zuhause verschönern
- Outdoor-Plissees
- Schlafzimmer planen
- Terrassenüberdachung
- Wohngebäudeversicherung
- Zaunarten und Eigenschaften
- Hauseingang gestalten
- Der perfekte Grundriss
- Sparsamer heizen im Altbau
- Einfamilienhaus smart finanzieren
- Planung einer PV-Anlage
- Neues Haus
- Immobilienfinanzierung
- Installation einer Photovoltaikanlage
- Asbest erkennen und entfernen
- Gartenpflege im Frühling – worauf achten
- Sauna im Fokus - Wellness zuhause
- Erfolgreich vermieten
- Die perfekte Winterbekleidung
- Das Niedrigenergiehaus
- Der April und seine Stürme
- Architektonische Vielfalt
- Ökologisch und nachhaltig bauen
- Das perfekte Schlafzimmer
- Nachhaltige Energieversorgung
- Zukunftsorientiert bauen
- Nachhaltigkeit beim Hausbau
- Tiny Houses
- Wärmepumpen als nachhaltige Heizvariante
- Maßgeschneiderten Kleiderschrank
- Der richtige Baukredit
- Ratgeber für erfolgreichen Hausbau
- Haus als Altersvorsorge
Do-it-yourself Anleitungen
- Verlegeanleitung für Bodenbeläge und Parkett
- Bodenbeläge und Parkett reinigen und pflegen
- Malerarbeiten am Haus
- Garten Tipps
- Umzug und Reinigung

ᐅ Grundriss-Optimierung: schmales 148 m2 Einfamilienhaus auf 504 m2 Grundstück

Erstellt am: 10.12.25 22:58
D
Drummer
Y
ypg
17.12.25 18:59
Drummer schrieb:

wenig Probleme mit Dachschrägen durch den 2,20 m hohen Kniestock und das 16° Walmdach
Ich würde erst einmal die Frage mit der Geschossigkeit klären und mich dann an einen Grundrissentwurf orientieren, der ähnlich schmal ist.
Mit annähernd 2,20 gibt es keinen Eingeschosser.
Drummer schrieb:

Gebäudetyp „Stadtvilla“
Halte ich für die schlechteste Option einer nachahmbare Vorlage. Ich sagte ja schon, dass der erste noch funktioniert, beim zweiten die meisten Räume so gar nicht.
Drummer schrieb:

Inspirierend fand ich an der Stelle eine 6,05 m x 14,80 m große Planung von Eco Systemhaus.
Der schon eher. Allerdings steht einem der Kniestock für die an der Wand laufende Treppe dagegen. Im Übrigen kann ich mich erinnern, dass auch beim Entwerfen des OGs auch die Schrägvariante im Flur für zwei Räume hatte.
Drummer schrieb:

Da wir mangels Keller etwas Stauraum-Knappheit haben werden, stürze ich mich gerne auf alles, was sich als Abstellraum anbietet.
Deshalb geht man dann auf ein „Dachbodenhaus“. Solch ein Gedanke kommt eigentlich vor der Planung. Dir mache ich da keinen Vorwurf - ich wundere mich immer nur, dass kein Planer daran denkt.

Wir werden in Hamburg oft mit diesen „Projektentwickler“ konfrontiert.
Meistens ist das wohl einfach nur ein Zwischenhändler/Investor, der etwas Geld verdienen möchte, oder? Kauft Grundstück, teilt sie und bietet DH an.
Oder kauft der gar nicht?
Gibt es noch eine Angebots-ID für IS24?
11ant17.12.25 20:34
Drummer schrieb:

wenig Probleme mit Dachschrägen durch den 2,20 m hohen Kniestock und das 16° Walmdach
Huch, das hatte ich wohl "überlesen": nein, das gibt große Probleme (statischer Natur). Kniestock und Walm sind eine üble Kombination.
ypg schrieb:

Ich würde erst einmal die Frage mit der Geschossigkeit klären und mich dann an einen Grundrissentwurf orientieren, der ähnlich schmal ist.
Mit annähernd 2,20 gibt es keinen Eingeschosser.
Ein Kniestock 220 ist praktisch kein Kniestock mehr, da reden wir eigentlich eher von einem kupierten Geradwand-OG. So flach ist die Kupierung auch wahrlich höchst zweifelhaft ausreichend, um die Vollgeschoßlatte nicht zu reißen. Vermutlich gelingt dies mit Knirschen und Knarzen rechnerisch theoretisch gerade so. Wenn dann der Statiker anregt, mindestens aus dem Walm ein Krüppelwalmdach zu machen (oder noch besser ein Satteldach), dann ist die schöne "Rechnung ohne den Wirt" kaputt, und der Nichtvollgeschoss-Nachweis platzt wie eine Seifenblase.
https://www.instagram.com/11antgmxde/
https://www.linkedin.com/company/bauen-jetzt/
D
Drummer
20.12.25 23:16
Vielen Dank @ypg und @11ant für die ausführlichen Warnungen zum Thema Eingeschossigkeit, auch in Bezug auf die Statik. Wenn meine Ansprechpartner aus dem Weihnachtsurlaub zurück sind, werde ich das klären. Virtus hat eigentlich viel Erfahrung mit dem Bau von genehmigungsfähigen eingeschossigen Häusern in Hamburg, mich wundert, dass sie beim Prüfen des Entwurfes nicht gemeckert haben. Wir sind mit denen aber sowieso noch sehr früh im Prozess, im Januar steht der erste Planungstermin an. Bisher lief alles planerische über den Projektentwickler, Virtus war vor allem mit Angebotskalkulationen für uns beschäftigt.
ypg schrieb:

Wir werden in Hamburg oft mit diesen „Projektentwickler“ konfrontiert.
Meistens ist das wohl einfach nur ein Zwischenhändler/Investor, der etwas Geld verdienen möchte, oder? Kauft Grundstück, teilt sie und bietet DH an.
Oder kauft der gar nicht?
Mir sind bei der Suche nach Immobilien in Hamburg auch einige über den Weg gelaufen.
Unser Entwickler rechnet nur seine Planungsleistungen an uns ab. Das Grundstück haben wir direkt vom Verkäufer (einer Erbengemeinschaft) gekauft.
Anders als bei anderen Projektentwicklern, die teilweise bei Baufirmen angestellt zu sein scheinen, konnten wir die Baufirma in diesem Falle selbst wählen.
ypg schrieb:

Gibt es noch eine Angebots-ID für IS24?
Auf IS24 gibt es seit Monaten nichts mehr dazu. Auf der Homepage des Entwicklers (stand heute) aber schon.
Name Projektentwickler: Bauidee Projektplanung
Name Projekt: Schöne Lage in Poppenbüttel nahe Alsterwanderweg. 950 m bis zur S1.Moderne Stadtvilla mit 6 Zimmern.
Projektnummer: 471
(Spoiler zum Preis/Budget: die angegebenen 815.000 € haben wir natürlich überschritten)
D
Drummer
20.12.25 23:50
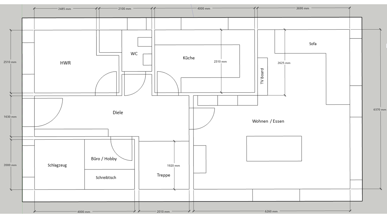
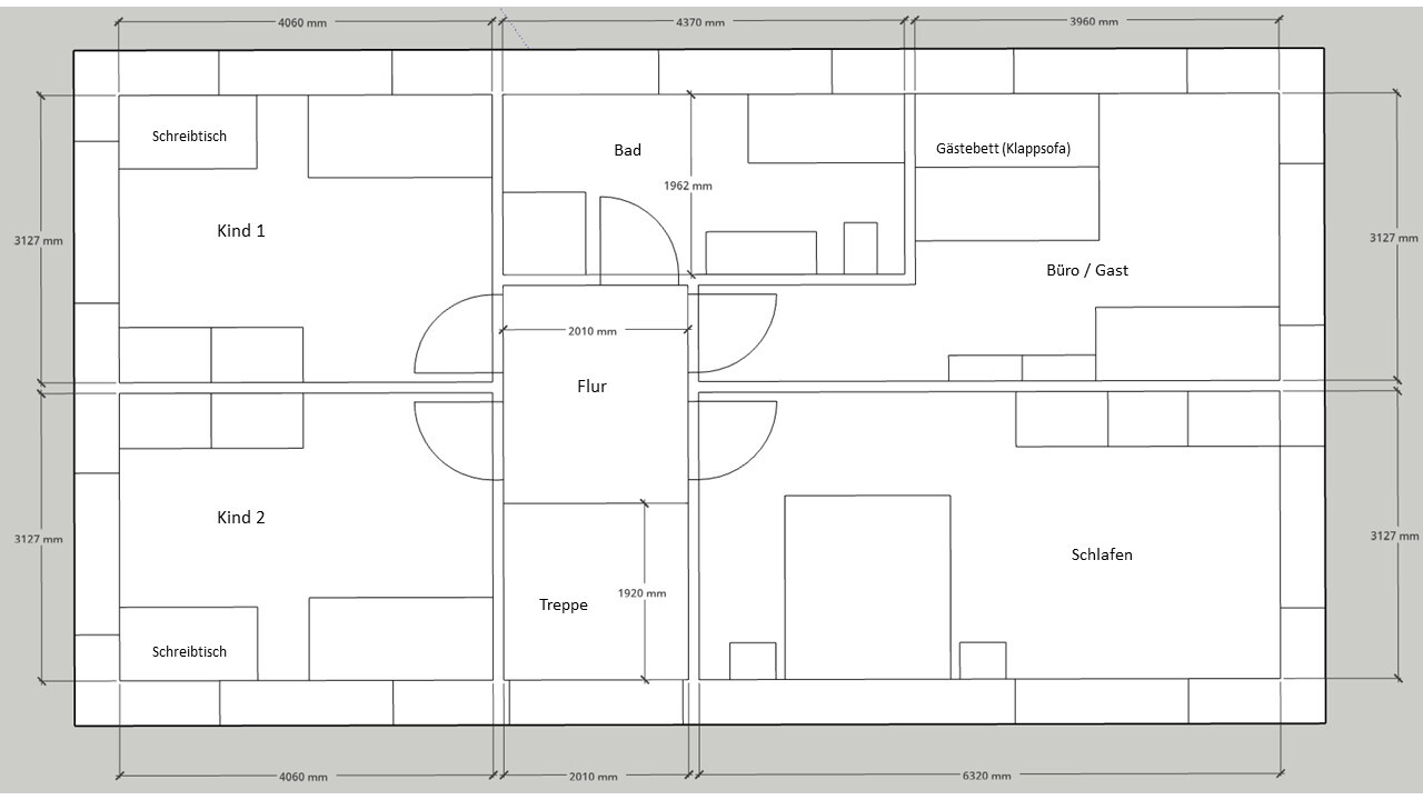
Wir haben in den letzten Tagen noch eine Variante durchgespielt, bei der sich der Hauseingang anstatt in Richtung Nord-Nordwest in Richtung West-Südwest (=zur Straße) befindet. Das Maß an Verschachtelungen ließ sich gefühlt deutlich reduzieren. Insgesamt haben wir den Eindruck, dass dieser Grundriss nochmal etwas runder ist, als der initiale Entwurf (Beitrag #9) und unsere Überarbeitung (Beitrag #1).

Besser als bei den vorigen zwei Varianten gefällt uns:
  • Knapp 3 m Garderobenwand in der Diele möglich
  • Hauswirtschaftsraum (7,58 m²) und Küche (10,04 m²) sind leicht vergrößert
  • Keine Zimmertüren/Durchgänge im Schmutzbereich des Hauseingangs
  • Symmetrischere Fensterlayouts zur Straße (=planlinks) sind möglich (die der Vollständigkeit halber eingezeichneten Fenster sind erstmal provisorisch)
  • Die Dusche im Bad des OG lässt sich leichter positionieren, falls noch Geld übrig ist, könnte man sie anstatt der 90x90 auch noch etwas breiter machen
Nicht optimal, aber (hoffentlich) verkraftbar:
  • Die Kinderzimmer (je 12,7 m²) sind von der Größe ok, aber auch nicht riesig
  • Die Küche könnte durch die Nord-Nordwestausrichtung etwas dunkel werden
  • Das Wohnzimmer (33,13 m²) hat Fläche verloren, fasst aber dennoch einen Esstisch, ein großes Sofa und ein paar Schränke (siehe Zeichnung)

Seht ihr diesen Entwurf als gleichwertige bzw. vielleicht bessere Alternative, oder haben wir etwas wichtiges übersehen?

Grundriss_V8_EG.png"]94351[/ATTACH]<br />
<br />
[ATTACH type="full" alt="Detaillierter Grundrissplan eines Hauses mit Kindzimmern, Bad, Flur, Treppe und Büro
Y
ypg
21.12.25 03:31
Drummer schrieb:

Name Projekt: Schöne Lage in Poppenbüttel nahe Alsterwanderweg. 950 m bis zur S1.Moderne Stadtvilla mit 6 Zimmern.
Projektnummer: 471
Drummer schrieb:

Hauseingang anstatt in Richtung Nord-Nordwest i
Entschuldige bitte die Nachfrage: nach der Offerte hat das Grundstück eine ganz andere Ausrichtung als das von Dir gezeigte in #1
Was ist denn jetzt richtig? Ich frage für einen Freund, denn die Ausrichtung ist ja ein großer Faktor für die Grundrissgestaltung.
D
Drummer
21.12.25 09:10
ypg schrieb:

nach der Offerte hat das Grundstück eine ganz andere Ausrichtung als das von Dir gezeigte in #1
Was ist denn jetzt richtig?
Danke fürs Nachfragen.
Korrekt sind die Infos zur Ausrichtung in Beitrag #1.
Aus Diskretionsgründen scheint die Lage auf der integrierten Karte in der Anzeige nur grob/auf PLZ-Ebene angegeben zu sein, nicht auf Straße und Flurstück genau.
is24kniestockprojektentwicklergrundstückwalmentwurfküche