ᐅ Grundriss-Planung Einfamilienhaus auf großem Grundstück mit Hanglage
Erstellt am: 18.08.21 19:45
M
marvel-onlineM
marvel-online18.08.21 19:45Hallo liebes Forum,
wir freuen uns auf euren Input für unsere Planung. Das Grundstück ist fix, der Entwurf, die Bauart (massiv/Holzständer) und das Vorgehen (GU, als Bauherr) noch völlig frei.
Untenstehend findet ihr unseren Fragebogen, ich hoffe er ist vollständig und nicht zu ausführlich beantwortet.
Bebauungsplan/Einschränkungen
Größe des Grundstücks 1000 m² bebaubare Fläche, insgesamt 3600 m² mit Wald und Wiesenflächen
Hang Hang ist vorhanden. Circa eine Geschosshöhe von Straße (Norden) Richtung Garten aufsteigend (Süden)
Grundflächenzahl ungeplanter Innenbereich, richtet sich nach Umgebungsbebauung
Geschossflächenzahl ungeplanter Innenbereich, richtet sich nach Umgebungsbebauung
Baufenster, Baulinie und -grenze Bebauung möglich bis zum südlichen Rand des jetzigen bestehenden Gebäudes
Randbebauung siehe Bilder
Anzahl Stellplatz zwei Garagenplätze für uns, zwei Garagenplätze für den benachbarten Schwiegervater auf unserem Grundstück zu errichten, also insgesamt zwei Doppelgaragen
Geschossigkeit umgebende Bebauung ist 1,5 geschossig mit Satteldächern
Dachform Satteldächer beziehungsweise Krüppelwalmdach
Stilrichtung nicht vorhanden
Ausrichtung nord-Süd
Maximale Höhen/Begrenzungen Höhe der Nachbargebäude ist unbekannt
weitere Vorgaben
Anforderungen der Bauherren
Stilrichtung, Dachform, Gebäudetyp
wir mögen gerne die mediterrane Stilrichtung und würden uns wahrscheinlich am ehesten für ein Krüppelwalmdach mit Nord Süd Ausrichtung entscheiden. Stilistisch am schönsten finden wir eigentlich ein flaches Walmdach im toskanischen Stil, wobei hier die Frage ist ob sich dieses mit einer 1,5 geschossigkeit und ausreichend Wohnfläche vereinbaren lässt.
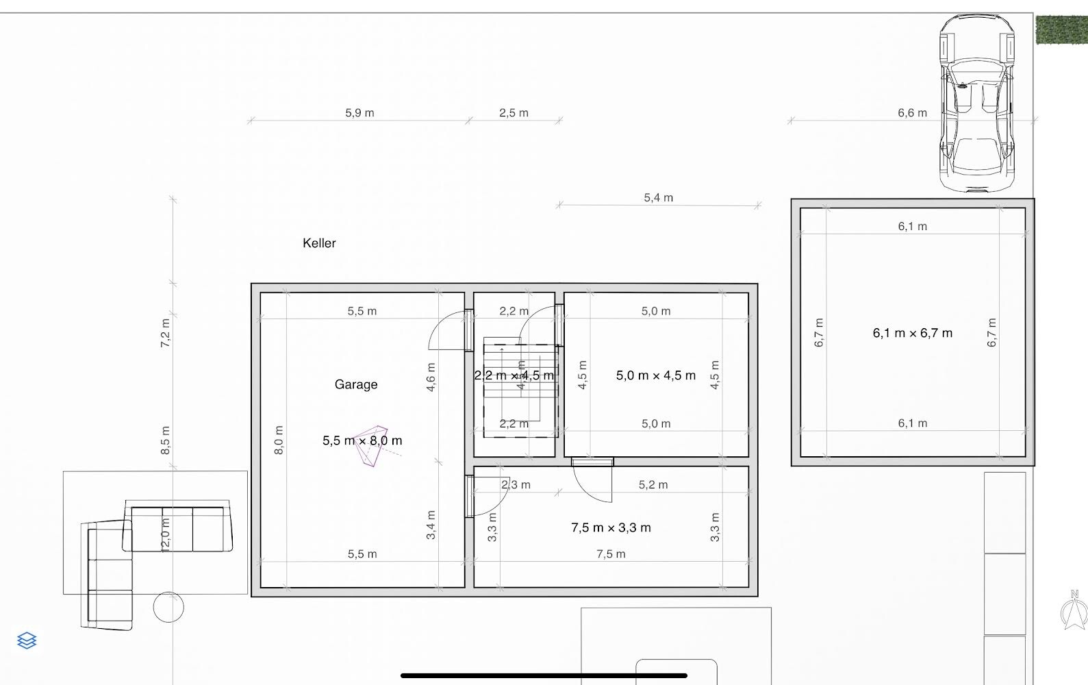
Keller, Geschosse. Unsere Idee wäre ein Keller auf Höhe der Straßenebene und das Erdgeschoss mit Wohnbereich auf Höhe der Terrassenebene zu setzen. Allerdings ist als Einschränkung zu sehen, dass die umgebenden Gebäude durch die Felsen Probleme bei der Kellererstellung hatten. Die Garage beziehungsweise eine Doppelgarage würden wir gegebenenfalls in den Keller integrieren. Das erste Obergeschoss wäre dann der Schlafbereich, wahrscheinlich aufgrund der anderen Gebäude mit Dachschräge als Halbgeschoss.
Anzahl der Personen, Alter Momentan zwei Personen (mitte 30), wobei zwei Kinder geplant sind.
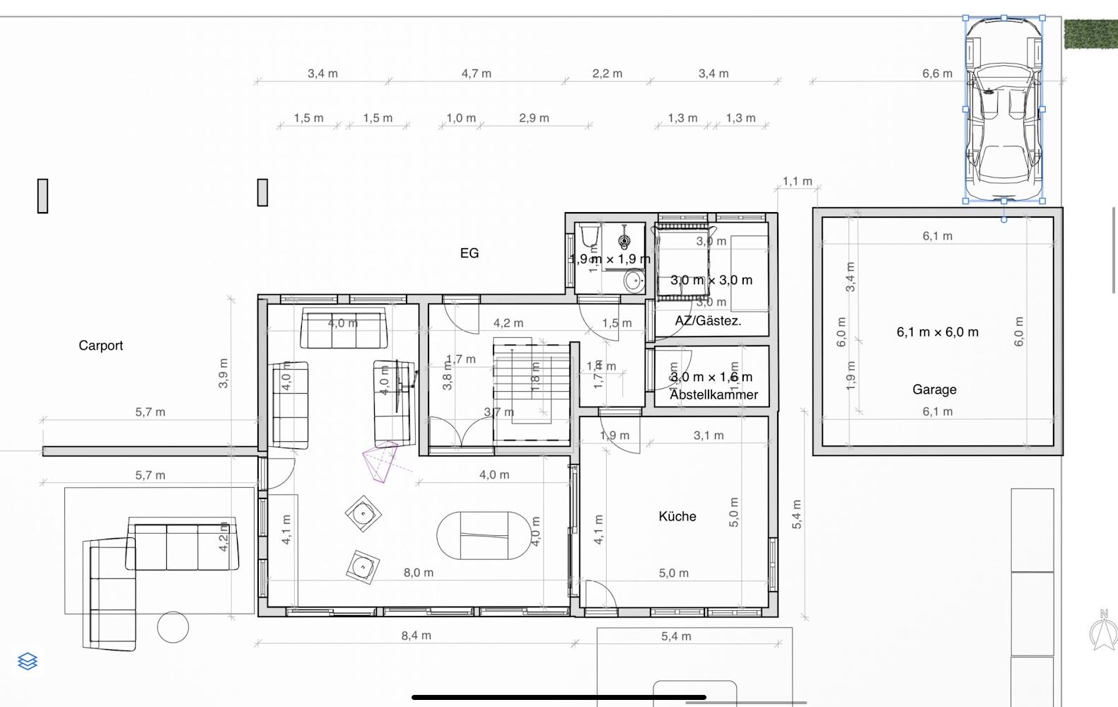
Raumbedarf im EG, OG Das Erdgeschoss sollte Platz für eine große Küche bieten, die sich mit einer Schiebe Tür von dem anschließenden Esszimmer trennen lässt. Darüber hinaus sollte Platz für ein großes Wohnzimmer sowie eine Abstellkammer ein Büro und ein kleines Bad mit Dusche sein ( circa 100 m²?).
Das Obergeschoss sollte Platz für ein Schlafzimmer mit einem begehbaren Kleiderschrank, ein großes Bad sowie zwei Kinderzimmer bieten. In dem Bad würden wir gerne eine Sauna errichten. Insgesamt wäre es schön wenn wir noch ein Gästezimmer und einen Fitnessraum unterbringen könnten (Keller?)
Büro: Familiennutzung oder Homeoffice? Home Office, eine Person
Schlafgäste pro Jahr geschätzt zehn/Jahr, da das Grundstück recht ländlich und nicht mit öffentlichen Verkehrsmitteln erreichbar ist. Meine Eltern würden die Schlafmöglichkeit wahrscheinlich häufiger nutzen.
offene oder geschlossene Architektur die Räume des Wohnbereich sollten in einander übergehen wobei wir die Küche gerne mit einer SchiebeTür abtrennen würden. Ein langer Schlauch von Küche Wohnzimmer und Esszimmer, wie er in vielen Entwürfen vorhanden ist, finden wir nicht so attraktiv. Daher würden wir eher eine in „L Lösung“ wählen.
konservativ oder moderne Bauweise eher konservativ (siehe oben)
offene Küche, Kochinsel eine große Küche ist uns sehr wichtig, da wir beide sehr gerne kochen. Diese sollte eine Kochinsel mit Barhocker aufweisen und mit Blick in den Garten und auf den Wohnbereich sein,
Anzahl Essplätze in der Küche 2-4 am Tresen. Unser Esstisch hat Platz für acht Personen.
Kamin prinzipiell sehr gerne im Wohnbereich, da auch ein kleiner Wald mit genügend Holz vorhanden ist. Allerdings sind wir uns unsicher inwieweit dies mit KFW 55 Bauweise und Fußbodenheizung energetisch und ökologisch Sinn macht. Prinzipiell wäre für uns auch ein Gaskamin oder Ähnliches denkbar.
Musik/Stereowand Sonos Boxen sind vorhanden und würden integriert werden
Balkon, Dachterrasse ist unserer Meinung bei einem großen Garten nicht wirklich notwendig
Garage, Carport zwei Garagenstellplätze für uns, am liebsten mit Übergang ins Haus. Da die aktuelle Doppelgarage des Schwiegervaters auf dem Grundstück steht und abgerissen werden wird haben wir uns bereit erklärt für ihn auf unserem Grundstück eine neue Doppelgarage zu errichten, so dass insgesamt zwei Doppelgaragen zu errichten sind. Gegebenenfalls würden wir zusätzlich noch ein Carport errichten, da dies vor allem im Sommer praktischer ist.
Nutzgarten, Treibhaus vor der Küche hätten wir gerne ein paar Hoch Beete mit Nutzpflanzen. Aufgrund der Grundstücksgröße würde sich auch weiter entfernt ein weiterer Nutzgarten mit zum Beispiel Obstbäumen anbieten.
Die Küche steht für uns den wichtigsten Teil des Hauses da, deswegen würden wir diese Richtung Süden mit direktem Zugang zur Terrasse ausrichten. Daran anschließend durch eine Schiebe Tür getrennt würden wir das Esszimmer errichten. Dahinterliegende also nicht direkt Richtung Süden ausgerichtet ist das Wohnzimmer geplant. Wichtig ist uns eine große offene Bauweise. Damit diese nicht ungemütlich wird sollte jedoch eine gewisse Raumstruktur vorhanden sein. Wichtig sind uns außerdem die nach Süden gerichteten großen Fensterflächen sowohl im Erdgeschoss als auch im Obergeschoss, die einen schönen Blick auf den angrenzenden Wald und die Felder an ermöglichen sollen. Wir würden, falls es unser Budget zulässt, im Garten auch gerne einen Swimmingpool errichten.
Hausentwurf
Von wem stammt die Planung:
Do it yourself
Was gefällt besonders? Warum? Große offene Küche Richtung Süden ausgerichtet sowie großer offener Ess- und Wohnbereich, der optisch jedoch etwas abgegrenzt ist.
Was gefällt nicht? Warum? mit der Raumaufteilung im Obergeschoss sind wir uns noch unsicher sowie der Ausrichtung der Treppe. Des weiteren sind wir uns nicht sicher, ob es sinnvoll wäre den Eingangsbereich im Kellergeschoss, also auf Straßenebene zu legen oder im Erdgeschoss, was wahrscheinlich optisch ansprechender wäre aber eine größere Außentreppe nötig machen würde
Preisschätzung lt Architekt/Planer: zwischen 450.000 und 700.000
Persönliches Preislimit fürs Haus, inkl Ausstattung: eigentlich würden wir gerne mit 500.000 € schlüsselfertig hinkommen, müssen dafür aber wahrscheinlich noch einige Abstriche machen
favorisierte Heiztechnik: Erdwärme beziehungsweise zusätzlich Solarthermie
Wenn Ihr verzichten müsst, auf welche Details/Ausbauten
-könnt Ihr verzichten: Sauna im Bad, Ankleide, Fitnessraum, separates Gästezimmer (gegebenenfalls würden wir eine Schlafcouch ins Büro stellen), eingelassener Pool
-könnt Ihr nicht verzichten: große Küche mit Koch Insel, großes Bad, home-Office, große Fensterfront Richtung Süden
Warum ist der Entwurf so geworden, wie er jetzt ist?
Der Entwurf ist unser eigener. Wir haben auch einige Beispiel Entwürfe von Fertighausfirmen beziehungsweise einem Architekten anfertigen lassen. Bislang müssen wir aber sagen dass unser eigener, etwas überarbeiteter Entwurf uns irgendwie am besten gefällt.
Was ist die wichtigste/grundlegende Frage zum Grundriss in 130 Zeichen zusammengefasst?
Die Frage ist, ob wir trotz des wahrscheinlich vorhandenen Felsens mit Keller bauen sollten. Bzw. wie wir sonst die Höhenunterschiede am Hang ausgleichen würden um den Wohnbereich auf Gartenlevel zu halten. Das OG müsste irgendwie noch mit Schrägen bzw. Gauben geplant werden. Ein Architekt hat aufgrund des Hanges auch Split-level ins Spiel gebracht, hier sind wir uns aber ganz unsicher mit.





wir freuen uns auf euren Input für unsere Planung. Das Grundstück ist fix, der Entwurf, die Bauart (massiv/Holzständer) und das Vorgehen (GU, als Bauherr) noch völlig frei.
Untenstehend findet ihr unseren Fragebogen, ich hoffe er ist vollständig und nicht zu ausführlich beantwortet.
Bebauungsplan/Einschränkungen
Größe des Grundstücks 1000 m² bebaubare Fläche, insgesamt 3600 m² mit Wald und Wiesenflächen
Hang Hang ist vorhanden. Circa eine Geschosshöhe von Straße (Norden) Richtung Garten aufsteigend (Süden)
Grundflächenzahl ungeplanter Innenbereich, richtet sich nach Umgebungsbebauung
Geschossflächenzahl ungeplanter Innenbereich, richtet sich nach Umgebungsbebauung
Baufenster, Baulinie und -grenze Bebauung möglich bis zum südlichen Rand des jetzigen bestehenden Gebäudes
Randbebauung siehe Bilder
Anzahl Stellplatz zwei Garagenplätze für uns, zwei Garagenplätze für den benachbarten Schwiegervater auf unserem Grundstück zu errichten, also insgesamt zwei Doppelgaragen
Geschossigkeit umgebende Bebauung ist 1,5 geschossig mit Satteldächern
Dachform Satteldächer beziehungsweise Krüppelwalmdach
Stilrichtung nicht vorhanden
Ausrichtung nord-Süd
Maximale Höhen/Begrenzungen Höhe der Nachbargebäude ist unbekannt
weitere Vorgaben
Anforderungen der Bauherren
Stilrichtung, Dachform, Gebäudetyp
wir mögen gerne die mediterrane Stilrichtung und würden uns wahrscheinlich am ehesten für ein Krüppelwalmdach mit Nord Süd Ausrichtung entscheiden. Stilistisch am schönsten finden wir eigentlich ein flaches Walmdach im toskanischen Stil, wobei hier die Frage ist ob sich dieses mit einer 1,5 geschossigkeit und ausreichend Wohnfläche vereinbaren lässt.
Keller, Geschosse. Unsere Idee wäre ein Keller auf Höhe der Straßenebene und das Erdgeschoss mit Wohnbereich auf Höhe der Terrassenebene zu setzen. Allerdings ist als Einschränkung zu sehen, dass die umgebenden Gebäude durch die Felsen Probleme bei der Kellererstellung hatten. Die Garage beziehungsweise eine Doppelgarage würden wir gegebenenfalls in den Keller integrieren. Das erste Obergeschoss wäre dann der Schlafbereich, wahrscheinlich aufgrund der anderen Gebäude mit Dachschräge als Halbgeschoss.
Anzahl der Personen, Alter Momentan zwei Personen (mitte 30), wobei zwei Kinder geplant sind.
Raumbedarf im EG, OG Das Erdgeschoss sollte Platz für eine große Küche bieten, die sich mit einer Schiebe Tür von dem anschließenden Esszimmer trennen lässt. Darüber hinaus sollte Platz für ein großes Wohnzimmer sowie eine Abstellkammer ein Büro und ein kleines Bad mit Dusche sein ( circa 100 m²?).
Das Obergeschoss sollte Platz für ein Schlafzimmer mit einem begehbaren Kleiderschrank, ein großes Bad sowie zwei Kinderzimmer bieten. In dem Bad würden wir gerne eine Sauna errichten. Insgesamt wäre es schön wenn wir noch ein Gästezimmer und einen Fitnessraum unterbringen könnten (Keller?)
Büro: Familiennutzung oder Homeoffice? Home Office, eine Person
Schlafgäste pro Jahr geschätzt zehn/Jahr, da das Grundstück recht ländlich und nicht mit öffentlichen Verkehrsmitteln erreichbar ist. Meine Eltern würden die Schlafmöglichkeit wahrscheinlich häufiger nutzen.
offene oder geschlossene Architektur die Räume des Wohnbereich sollten in einander übergehen wobei wir die Küche gerne mit einer SchiebeTür abtrennen würden. Ein langer Schlauch von Küche Wohnzimmer und Esszimmer, wie er in vielen Entwürfen vorhanden ist, finden wir nicht so attraktiv. Daher würden wir eher eine in „L Lösung“ wählen.
konservativ oder moderne Bauweise eher konservativ (siehe oben)
offene Küche, Kochinsel eine große Küche ist uns sehr wichtig, da wir beide sehr gerne kochen. Diese sollte eine Kochinsel mit Barhocker aufweisen und mit Blick in den Garten und auf den Wohnbereich sein,
Anzahl Essplätze in der Küche 2-4 am Tresen. Unser Esstisch hat Platz für acht Personen.
Kamin prinzipiell sehr gerne im Wohnbereich, da auch ein kleiner Wald mit genügend Holz vorhanden ist. Allerdings sind wir uns unsicher inwieweit dies mit KFW 55 Bauweise und Fußbodenheizung energetisch und ökologisch Sinn macht. Prinzipiell wäre für uns auch ein Gaskamin oder Ähnliches denkbar.
Musik/Stereowand Sonos Boxen sind vorhanden und würden integriert werden
Balkon, Dachterrasse ist unserer Meinung bei einem großen Garten nicht wirklich notwendig
Garage, Carport zwei Garagenstellplätze für uns, am liebsten mit Übergang ins Haus. Da die aktuelle Doppelgarage des Schwiegervaters auf dem Grundstück steht und abgerissen werden wird haben wir uns bereit erklärt für ihn auf unserem Grundstück eine neue Doppelgarage zu errichten, so dass insgesamt zwei Doppelgaragen zu errichten sind. Gegebenenfalls würden wir zusätzlich noch ein Carport errichten, da dies vor allem im Sommer praktischer ist.
Nutzgarten, Treibhaus vor der Küche hätten wir gerne ein paar Hoch Beete mit Nutzpflanzen. Aufgrund der Grundstücksgröße würde sich auch weiter entfernt ein weiterer Nutzgarten mit zum Beispiel Obstbäumen anbieten.
Die Küche steht für uns den wichtigsten Teil des Hauses da, deswegen würden wir diese Richtung Süden mit direktem Zugang zur Terrasse ausrichten. Daran anschließend durch eine Schiebe Tür getrennt würden wir das Esszimmer errichten. Dahinterliegende also nicht direkt Richtung Süden ausgerichtet ist das Wohnzimmer geplant. Wichtig ist uns eine große offene Bauweise. Damit diese nicht ungemütlich wird sollte jedoch eine gewisse Raumstruktur vorhanden sein. Wichtig sind uns außerdem die nach Süden gerichteten großen Fensterflächen sowohl im Erdgeschoss als auch im Obergeschoss, die einen schönen Blick auf den angrenzenden Wald und die Felder an ermöglichen sollen. Wir würden, falls es unser Budget zulässt, im Garten auch gerne einen Swimmingpool errichten.
Hausentwurf
Von wem stammt die Planung:
Do it yourself
Was gefällt besonders? Warum? Große offene Küche Richtung Süden ausgerichtet sowie großer offener Ess- und Wohnbereich, der optisch jedoch etwas abgegrenzt ist.
Was gefällt nicht? Warum? mit der Raumaufteilung im Obergeschoss sind wir uns noch unsicher sowie der Ausrichtung der Treppe. Des weiteren sind wir uns nicht sicher, ob es sinnvoll wäre den Eingangsbereich im Kellergeschoss, also auf Straßenebene zu legen oder im Erdgeschoss, was wahrscheinlich optisch ansprechender wäre aber eine größere Außentreppe nötig machen würde
Preisschätzung lt Architekt/Planer: zwischen 450.000 und 700.000
Persönliches Preislimit fürs Haus, inkl Ausstattung: eigentlich würden wir gerne mit 500.000 € schlüsselfertig hinkommen, müssen dafür aber wahrscheinlich noch einige Abstriche machen
favorisierte Heiztechnik: Erdwärme beziehungsweise zusätzlich Solarthermie
Wenn Ihr verzichten müsst, auf welche Details/Ausbauten
-könnt Ihr verzichten: Sauna im Bad, Ankleide, Fitnessraum, separates Gästezimmer (gegebenenfalls würden wir eine Schlafcouch ins Büro stellen), eingelassener Pool
-könnt Ihr nicht verzichten: große Küche mit Koch Insel, großes Bad, home-Office, große Fensterfront Richtung Süden
Warum ist der Entwurf so geworden, wie er jetzt ist?
Der Entwurf ist unser eigener. Wir haben auch einige Beispiel Entwürfe von Fertighausfirmen beziehungsweise einem Architekten anfertigen lassen. Bislang müssen wir aber sagen dass unser eigener, etwas überarbeiteter Entwurf uns irgendwie am besten gefällt.
Was ist die wichtigste/grundlegende Frage zum Grundriss in 130 Zeichen zusammengefasst?
Die Frage ist, ob wir trotz des wahrscheinlich vorhandenen Felsens mit Keller bauen sollten. Bzw. wie wir sonst die Höhenunterschiede am Hang ausgleichen würden um den Wohnbereich auf Gartenlevel zu halten. Das OG müsste irgendwie noch mit Schrägen bzw. Gauben geplant werden. Ein Architekt hat aufgrund des Hanges auch Split-level ins Spiel gebracht, hier sind wir uns aber ganz unsicher mit.
S
soneva201218.08.21 20:47500 TE für ein Hanghaus über 200 m2, 2 Doppelgaragen und eine Wunschliste, die eine Seite lang ist (Sauna, Pool, Fitness und und und)???
Ich denke es bringt nichts, den Grundriss zu diskutieren - man muss zuerst rechnen wie viele M2 man mit dem Budget auf diesem Grundstück bauen kann.
Ich denke es bringt nichts, den Grundriss zu diskutieren - man muss zuerst rechnen wie viele M2 man mit dem Budget auf diesem Grundstück bauen kann.
marvel-online schrieb:
Der Entwurf ist unser eigener. Wir haben auch einige Beispiel Entwürfe von Fertighausfirmen beziehungsweise einem Architekten anfertigen lassen. Bislang müssen wir aber sagen dass unser eigener, etwas überarbeiteter Entwurf uns irgendwie am besten gefällt.Was soll ich sagen ? - mir fehlt der Vergleich ...https://www.instagram.com/11antgmxde/
https://www.linkedin.com/company/bauen-jetzt/
M
marvel-online18.08.21 20:58Sowohl die Wünsche als auch das Budget sind durchaus anpassbar.
Dass ein eingelassenener Pool nicht in das Hausbudget zählen würde, hätte ich vielleicht noch explizit erwähnen sollen.
Dass ein eingelassenener Pool nicht in das Hausbudget zählen würde, hätte ich vielleicht noch explizit erwähnen sollen.
Die ganzen Wünsche lassen wir mal außen vor!
Aber:
Derzeit liegst Du bei 500000€ mit Standardausstattung plus Keller von 100000€.
Baunebenkosten setze ich mal 100000€ an. Dazu kommen Garage, Terrassen etc.
Aber:
marvel-online schrieb:Wo ist der Hang denn im Entwurf zu sehen?
Hang ist vorhanden. Circa eine Geschosshöhe von Straße (Norden) Richtung Garten aufsteigend (Süden)
marvel-online schrieb:Dann hängt quasi der Eingangsbereich außen in der Luft, denn darunter ist ja das Kellergeschoss.
Unsere Idee wäre ein Keller auf Höhe der Straßenebene und das Erdgeschoss mit Wohnbereich auf Höhe der Terrassenebene zu setzen.
marvel-online schrieb:Wie ist denn das halbe Geschoss bei Dir konstruiert? Kniestock? Dachneigung?
Geschossigkeit umgebende Bebauung ist 1,5
marvel-online schrieb:Wo sind denn die Dachschrägen? Wo die 2-Meter-Linie? Dachflächenfenster sind nicht vorhanden, dafür vertikale, normale Fenster. Das kann so also nicht hinkommen. Treppe begeht man im OG wie? Stößt man an eine Dachschräge oder an eine fensterlose Wand? Wäre der First quer zur Straße, hat der Giebel keine Fenster. Ist der First parallel zur Straße funktionieren unter anderem Treppe und Türen planoben nicht.
as erste Obergeschoss wäre dann der Schlafbereich, wahrscheinlich aufgrund der anderen Gebäude mit Dachschräge als Halbgeschoss.
marvel-online schrieb:Ich seh eigentlich nur den Weg, ein bodenständiges Raumprogramm zu erstellen und damit zu einem Architekten zu gehen, der sich mit Hang auskennt.
Sowohl die Wünsche als auch das Budget sind durchaus anpassbar.
Derzeit liegst Du bei 500000€ mit Standardausstattung plus Keller von 100000€.
Baunebenkosten setze ich mal 100000€ an. Dazu kommen Garage, Terrassen etc.
Ist das Grundstück bebaut?
Eine Auffahrt ist doch vorhanden,
4 Stellplätze unten. Carport statt Garage. Garage geht nicht bei dem Budget
Haus höher, so dass der Fels kein Problem gibt. Das wird richtig teuer, wenn der Bagger nicht weiter kommt. 500 ist utopisch für den Plan 700 höllisch knapp.
Zum Grundriss
wie wird der Eingang betreten? Über eine Strickleiter?
Garderobe fehlt
EG realistisch im Maßstab möblieren
DG Dachschrägen nicht berücksichtigt.
Elternschlafzimmer raus aus dem Süden
Eine Auffahrt ist doch vorhanden,
4 Stellplätze unten. Carport statt Garage. Garage geht nicht bei dem Budget
Haus höher, so dass der Fels kein Problem gibt. Das wird richtig teuer, wenn der Bagger nicht weiter kommt. 500 ist utopisch für den Plan 700 höllisch knapp.
Zum Grundriss
wie wird der Eingang betreten? Über eine Strickleiter?
Garderobe fehlt
EG realistisch im Maßstab möblieren
DG Dachschrägen nicht berücksichtigt.
Elternschlafzimmer raus aus dem Süden
Ähnliche Themen