S
SofiaWegner04.08.16 16:09Hallo Zusammen,
wir planen gerade unser Einfamilienhaus - 2 Vollgeschosse - Stadtvilla.
Leider kommen wir nicht so recht voran.
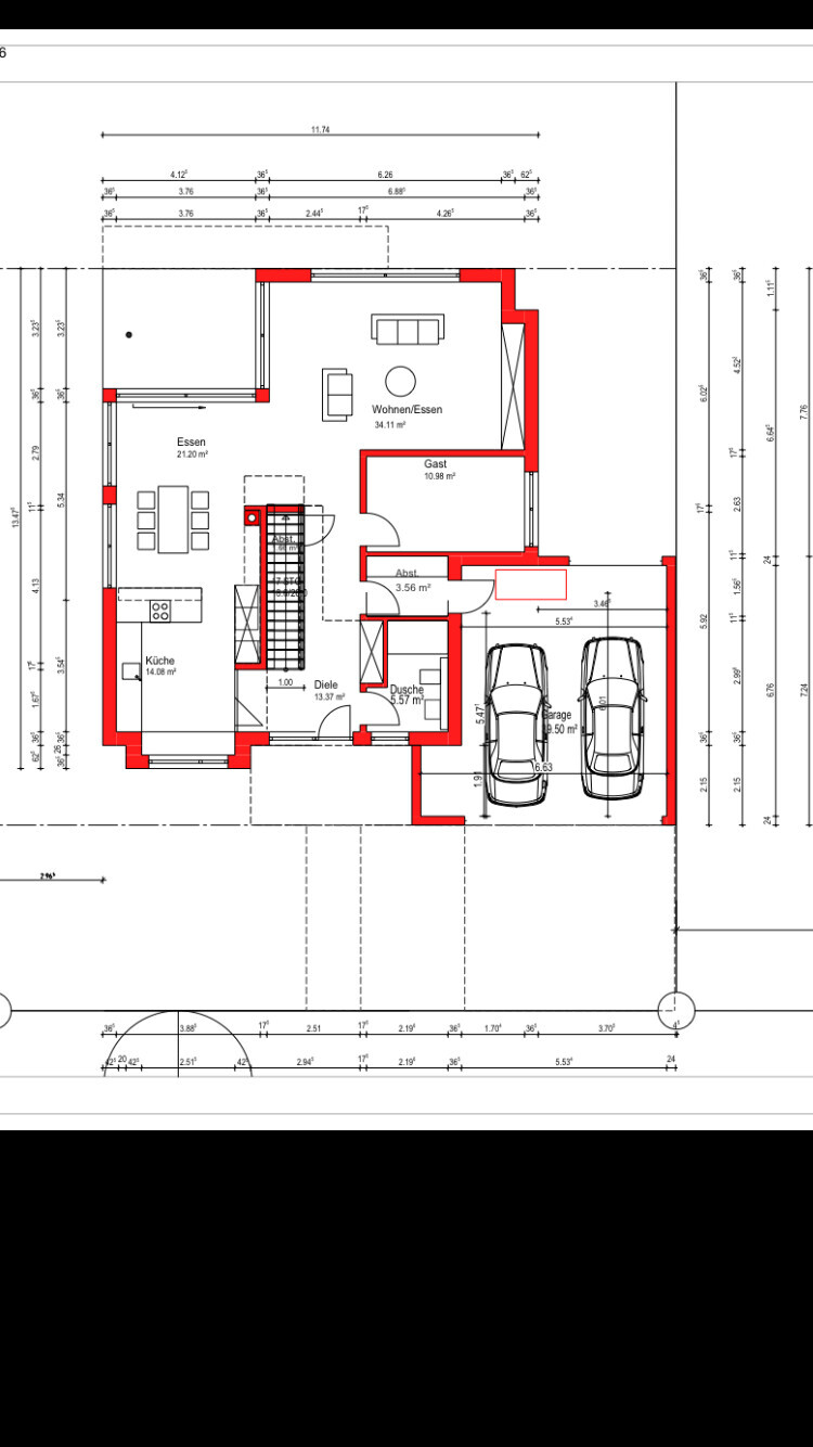
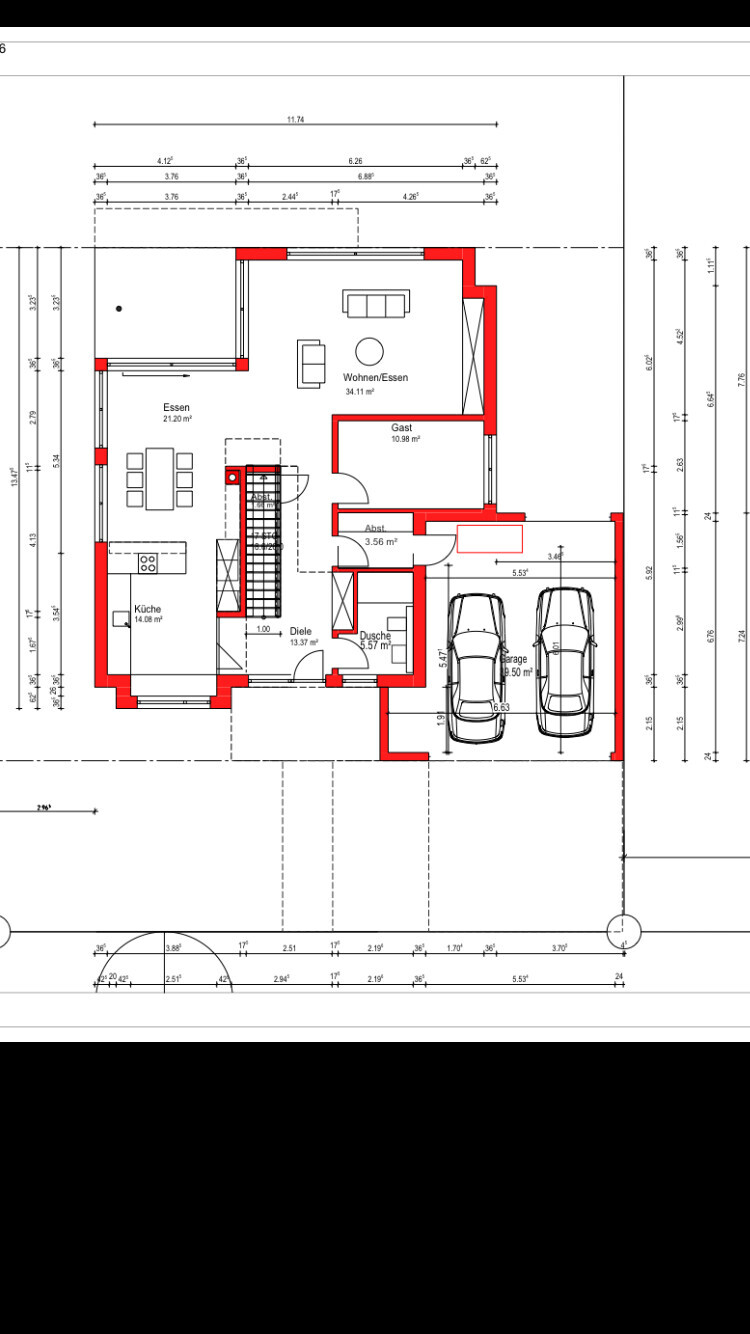
Wir finden einfach keine Ideen mehr wo man geschickt einen Haustechnikraum, der gleichzeitig als kleiner Kellerersatzraum dienen soll, positionieren kann.
Ursprünglich hatten wir eine Unterkellerung der Garage geplant, aufgrund der Kosten haben wir diesen Plan nun verworfen.
Habt ihr evtl Ideen, die uns auf die Sprünge helfen? Wie findet ihr generell den Grundriss?



wir planen gerade unser Einfamilienhaus - 2 Vollgeschosse - Stadtvilla.
Leider kommen wir nicht so recht voran.
Wir finden einfach keine Ideen mehr wo man geschickt einen Haustechnikraum, der gleichzeitig als kleiner Kellerersatzraum dienen soll, positionieren kann.
Ursprünglich hatten wir eine Unterkellerung der Garage geplant, aufgrund der Kosten haben wir diesen Plan nun verworfen.
Habt ihr evtl Ideen, die uns auf die Sprünge helfen? Wie findet ihr generell den Grundriss?
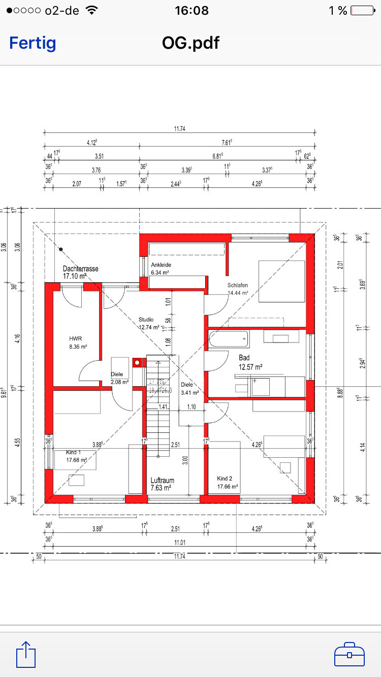
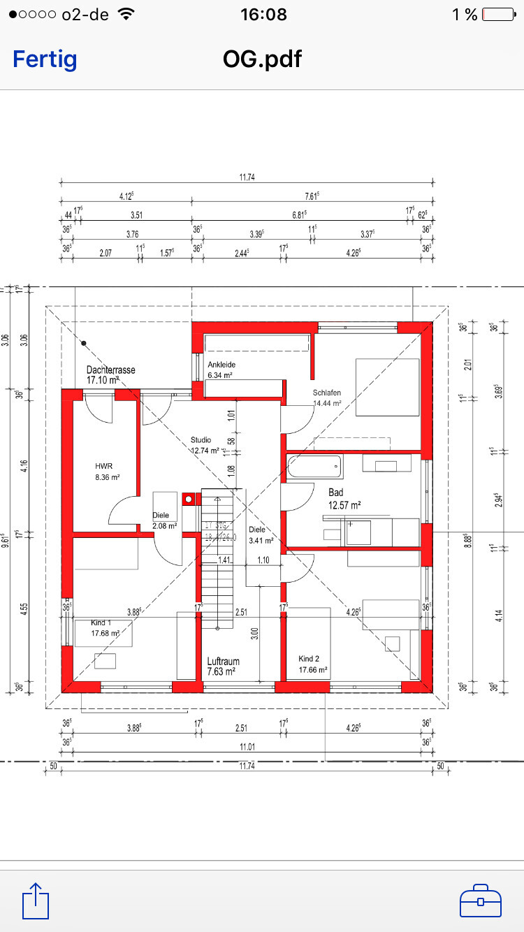
Hallo, eines vorneweg: so richtig "mein" Grundriss wäre es nicht, da ich ihn doch arg verschachtelt finde (z.B. das Gästezimmer, die Fassadenausschnitte v.a. neben der TV-Wand, die unterschiedlichen "Erkertiefen" bei Terrasse bzw. Dachterrasse). Aber die Geschmäcker sind ja verschieden. 🙂
Vermutlich hängt ihr - aus welchen Gründen auch immer - an der Lösung mit Studio und Luftraum? Ihr solltet euch aber bewusst machen, dass es im OG fast 24 qm für Studio, Diele und Luftraum gibt! Das ist wesentlich mehr, als die Kinderzimmer jeweils Platz bieten!
Wenn euer Budget ausgereizt ist, solltet ihr euch vielleicht doch von Luftraum oder Studio verabschieden. Letzteres ist übrigens kaum zu möblieren wegen der vielen Türen.
Ich weiß, es wäre langweilig. 😎 Aber wenn ihr den Luftraum wegnehmt, könnten Kind 1 und 2 von dort aus Türen bekommen (die mind. 60 cm Abstand von den Wänden haben, damit dahinter noch Schränke passen!)
Dann könntet ihr einen guten Teil vom bisherigen Studio dem Hauswirtschaftsraum zuschlagen oder durch zwei hintereinander liegende Räume einen eigenen Technikraum schaffen.
Wenn ihr unbedingt das Studio behalten wollt, dann könnte man zumindest den Luftraum schließen und dort einen kleinen Raum einrichten. (Dann Tür zu Kind 1 wie bisher).
Im EG würde ich übrigens das Bad horizontal spiegeln, so dass direkt neben der Haustüre der Einbauschrank liegt und die Badtür erst nach dem Schmutzbereich liegt.
Vermutlich hängt ihr - aus welchen Gründen auch immer - an der Lösung mit Studio und Luftraum? Ihr solltet euch aber bewusst machen, dass es im OG fast 24 qm für Studio, Diele und Luftraum gibt! Das ist wesentlich mehr, als die Kinderzimmer jeweils Platz bieten!
Wenn euer Budget ausgereizt ist, solltet ihr euch vielleicht doch von Luftraum oder Studio verabschieden. Letzteres ist übrigens kaum zu möblieren wegen der vielen Türen.
Ich weiß, es wäre langweilig. 😎 Aber wenn ihr den Luftraum wegnehmt, könnten Kind 1 und 2 von dort aus Türen bekommen (die mind. 60 cm Abstand von den Wänden haben, damit dahinter noch Schränke passen!)
Dann könntet ihr einen guten Teil vom bisherigen Studio dem Hauswirtschaftsraum zuschlagen oder durch zwei hintereinander liegende Räume einen eigenen Technikraum schaffen.
Wenn ihr unbedingt das Studio behalten wollt, dann könnte man zumindest den Luftraum schließen und dort einen kleinen Raum einrichten. (Dann Tür zu Kind 1 wie bisher).
Im EG würde ich übrigens das Bad horizontal spiegeln, so dass direkt neben der Haustüre der Einbauschrank liegt und die Badtür erst nach dem Schmutzbereich liegt.
S
SofiaWegner04.08.16 22:08Wir suchen eher einen geeigneten Platz im EG...wie könnte man EG sinnvoll & dennoch elegant ändern, um den gewünschten Raum zu erhalten?
An den Grenzen rechts & links wird auch erst noch gebaut, aktuell ist hier noch nichts.
Gegenüber von uns ist ein 4 Parteienhaus mit 6 Balkonen. Weshalb wir auch unbedingt eine Terrassennische wollten, um etwas Gemütlichkeit zu bekommen :-)
An den Grenzen rechts & links wird auch erst noch gebaut, aktuell ist hier noch nichts.
Gegenüber von uns ist ein 4 Parteienhaus mit 6 Balkonen. Weshalb wir auch unbedingt eine Terrassennische wollten, um etwas Gemütlichkeit zu bekommen :-)
S
SofiaWegner04.08.16 22:09Ähnliche Themen