ᐅ Grundriss - Meinungen erwünscht
Erstellt am: 09.08.16 21:49
Loads09.08.16 21:49
Hallo,
eine ganze Weile bin ich schon stiller Mitleser dieses tollen Forums.
Nun haben wir letzte Woche die erste Planung von unserer Baufirma bekommen
und hätte gerne eure Meinungen hierzu.
Straßenseite ist Richtung Norden.
Die Straße steigt von West nach Ost an.
Das Grundstück steigt ebenfalls leicht von der Straße Richtung Süden an.
Lageplan haben wir noch keinen.
Wir sind uns noch unsicher mit der eingerückten Terrasse (obwohl wir das dem Planer vorgegeben hatten).
Was sind eure Meinungen hierzu?
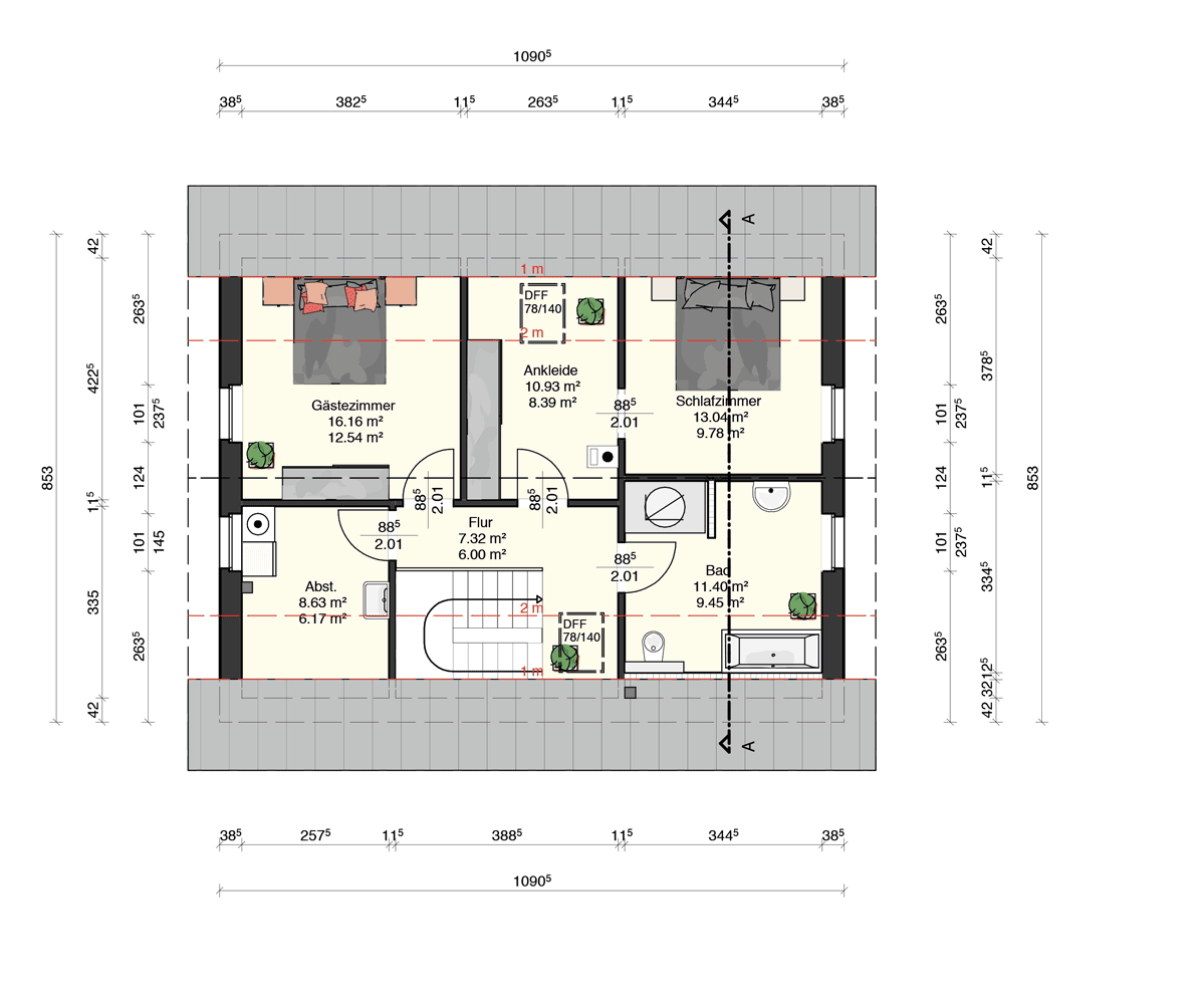
Bad muss auf jeden Fall noch umgeplant werden.
Wir hätte gerne eine Dusche ohne Abtrennung davor.
Weiter möchten wir noch einen Wäscheabwurfschacht einbauen.
So, jetzt freue ich mich auf eure Kritik / Verbesserungsvorschläge.
Viele Grüße aus Unterfranken!

eine ganze Weile bin ich schon stiller Mitleser dieses tollen Forums.
Nun haben wir letzte Woche die erste Planung von unserer Baufirma bekommen
und hätte gerne eure Meinungen hierzu.
Straßenseite ist Richtung Norden.
Die Straße steigt von West nach Ost an.
Das Grundstück steigt ebenfalls leicht von der Straße Richtung Süden an.
Lageplan haben wir noch keinen.
Wir sind uns noch unsicher mit der eingerückten Terrasse (obwohl wir das dem Planer vorgegeben hatten).
Was sind eure Meinungen hierzu?
Bad muss auf jeden Fall noch umgeplant werden.
Wir hätte gerne eine Dusche ohne Abtrennung davor.
Weiter möchten wir noch einen Wäscheabwurfschacht einbauen.
So, jetzt freue ich mich auf eure Kritik / Verbesserungsvorschläge.
Viele Grüße aus Unterfranken!
ypg09.08.16 21:56
Hallo Loads, schau mal hier:
https://www.hausbau-forum.de/threads/grundrissplanung-bitte-vor-Thread-Erstellung-lesen.11714/
Auf den zweiten Blick würde ich Küche mit WZ tauschen!
https://www.hausbau-forum.de/threads/grundrissplanung-bitte-vor-Thread-Erstellung-lesen.11714/
Auf den zweiten Blick würde ich Küche mit WZ tauschen!
Loads09.08.16 22:22
Hallo Yvonne,
sorry hier die Infos:
Bebauungsplan/Einschränkungen
Größe des Grundstücks: 420 QM
Hang: ja
Grundflächenzahl: 0,35
Geschossflächenzahl: 0,8
Baufenster, Baulinie und -grenze
Randbebauung: Garage muss auf Grenze stehen
Anzahl Stellplatz: 2 (Garage)
Geschossigkeit: 1,5
Dachform Satteldach, 45°
Stilrichtung: klassisch
Ausrichtung
Maximale Höhen/Begrenzungen: WH: 6,5
weitere Vorgaben
Anforderungen der Bauherren
Stilrichtung, Dachform, Gebäudetyp: Klassisch
Keller, Geschosse: Keller + 1,5 Geschosse
Anzahl der Personen, Alter: 2 (39, 35)
Raumbedarf im EG, OG: ca. 139QM
Büro: Familiennutzung oder Homeoffice?: Homeoffice
Schlafgäste pro Jahr: 2
offene oder geschlossene Architektur: offen
konservativ oder moderne Bauweise: mix
offene Küche, Kochinsel: ja
Anzahl Essplätze: 6
Kamin: ja
Musik/Stereowand: nein
Balkon, Dachterrasse: nein
Garage, Carport: Garage
Nutzgarten, Treibhaus: nein
weitere Wünsche/Besonderheiten/Tagesablauf
Hausentwurf
Von wem stammt die Planung:
-Planer eines Bauunternehmens
Preisschätzung lt Architekt/Planer:
Persönliches Preislimit fürs Haus, inkl Ausstattung:
favorisierte Heiztechnik: LLWP
sorry hier die Infos:
Bebauungsplan/Einschränkungen
Größe des Grundstücks: 420 QM
Hang: ja
Grundflächenzahl: 0,35
Geschossflächenzahl: 0,8
Baufenster, Baulinie und -grenze
Randbebauung: Garage muss auf Grenze stehen
Anzahl Stellplatz: 2 (Garage)
Geschossigkeit: 1,5
Dachform Satteldach, 45°
Stilrichtung: klassisch
Ausrichtung
Maximale Höhen/Begrenzungen: WH: 6,5
weitere Vorgaben
Anforderungen der Bauherren
Stilrichtung, Dachform, Gebäudetyp: Klassisch
Keller, Geschosse: Keller + 1,5 Geschosse
Anzahl der Personen, Alter: 2 (39, 35)
Raumbedarf im EG, OG: ca. 139QM
Büro: Familiennutzung oder Homeoffice?: Homeoffice
Schlafgäste pro Jahr: 2
offene oder geschlossene Architektur: offen
konservativ oder moderne Bauweise: mix
offene Küche, Kochinsel: ja
Anzahl Essplätze: 6
Kamin: ja
Musik/Stereowand: nein
Balkon, Dachterrasse: nein
Garage, Carport: Garage
Nutzgarten, Treibhaus: nein
weitere Wünsche/Besonderheiten/Tagesablauf
Hausentwurf
Von wem stammt die Planung:
-Planer eines Bauunternehmens
Preisschätzung lt Architekt/Planer:
Persönliches Preislimit fürs Haus, inkl Ausstattung:
favorisierte Heiztechnik: LLWP
kbt0909.08.16 22:51
Nur auf die Schnelle:
- Weg Küche/Terrasse im Schlängelgang
- Ganz schlimm ... die Küchenfenster .. Bauhöhe nur 50 cm, das wird in der Küche aussehen, als wenn man im Keller steht
- Garderobe/Schuhe/Handtaschen/Mützen/Schals usw. im Eingangsbereich .. wo sollen die hin?
- Warum kein kleiner Hauswirtschaftsraum im OG? Mit Waschmaschine/Trockner usw?
- Dusche ohne Glastür sollte richtig groß werden
- Schlafen Richtung Süden? Würde ich wohl eher unters Norddach packen
- 270cm Schrank ... aber ein Riesenraum für ein Bett
- es fehlt eine realistische Möblierung im Wohnbereich. Das Sofa hat z. B. Schenkellängen von 215*150 cm. Der Esstisch ist mit 135x82 cm eingezeichnet.
Maria1609.08.16 22:53
was mir auf Anhieb auffällt:
- die Ankleide wird zu schmal werden, falls ihr zwei Schrankreihen stellen wollt
- ihr habt keine Garderobe - dafür aber eine eingerückte Terrasse direkt neben der Haustür; könnte etwas zu gut einsehbar sein...
- das Gäste-WC würde ich eher noch dem Treppenhaus zuordnen und durch eine Tür vom Wohnbereich abtrennen. finde den Gedanken irgendwie unangenehm, dass die komplette Gästeschar sich auf der Couch unterhält und jedes lautere Tönchen hören könnte
- die Ankleide wird zu schmal werden, falls ihr zwei Schrankreihen stellen wollt
- ihr habt keine Garderobe - dafür aber eine eingerückte Terrasse direkt neben der Haustür; könnte etwas zu gut einsehbar sein...
- das Gäste-WC würde ich eher noch dem Treppenhaus zuordnen und durch eine Tür vom Wohnbereich abtrennen. finde den Gedanken irgendwie unangenehm, dass die komplette Gästeschar sich auf der Couch unterhält und jedes lautere Tönchen hören könnte
ypg09.08.16 23:10
Sollen die Geschosse später geteilt werden in zwei Wohneinheiten?
Ich würde ansonsten immer noch WZ und Küche tauschen, sodass man dort bequem aus der Terrasse gehen kann. WZ braucht keinen Ausgang.
WC noch abteilen und Garderobe bedenken.
Ich glaube zur Zeit doch nicht an Trennung von 2 Wohneinheiten, warum also diese Abschottung der Treppe? Ich finde es immer so befremdlich, mit Socken am Abend mal eben schnell im Bad was zu machen, um dann wieder gemütlich zum Sofa zu gehen. Auch für die Kinder ist das OG dadurch zu separiert. Ist das so durchdacht und gewollt?
Ich würde ansonsten immer noch WZ und Küche tauschen, sodass man dort bequem aus der Terrasse gehen kann. WZ braucht keinen Ausgang.
WC noch abteilen und Garderobe bedenken.
Ich glaube zur Zeit doch nicht an Trennung von 2 Wohneinheiten, warum also diese Abschottung der Treppe? Ich finde es immer so befremdlich, mit Socken am Abend mal eben schnell im Bad was zu machen, um dann wieder gemütlich zum Sofa zu gehen. Auch für die Kinder ist das OG dadurch zu separiert. Ist das so durchdacht und gewollt?
Ähnliche Themen