M
Milka010504.07.25 16:06Hallo zusammen, nach meinem letzten Beitrag zu Kosten usw. hatte mich Ant11 darauf aufmerksam gemacht, mit einem Grundriss hier erstmal in die Bewertung einzusteigen. Dieser besteht nun bereits längere Zeit mit ein paar kleineren Anpassungen, sodass die Vorstellungen sich nicht geändert haben. Ich bin gespannt auf ein paar Bewertungen.
Bebauungsplan/Einschränkungen
Größe des Grundstücks 654 qm
Hang nein
Grundflächenzahl 0,4
Geschossflächenzahl 0,8
Baufenster, Baulinie und -grenze 3m
Randbebauung nur Garagen oder Carport
Anzahl Stellplatz 2
Geschossigkeit max 2
Dachform 0-48 grad
Stilrichtung Einfamilienhaus
Ausrichtung egal
Maximale Höhen/Begrenzungen 6m Wand sowie 9 Gesamt
weitere Vorgaben Zisterne
Anforderungen der Bauherren
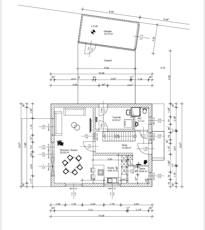
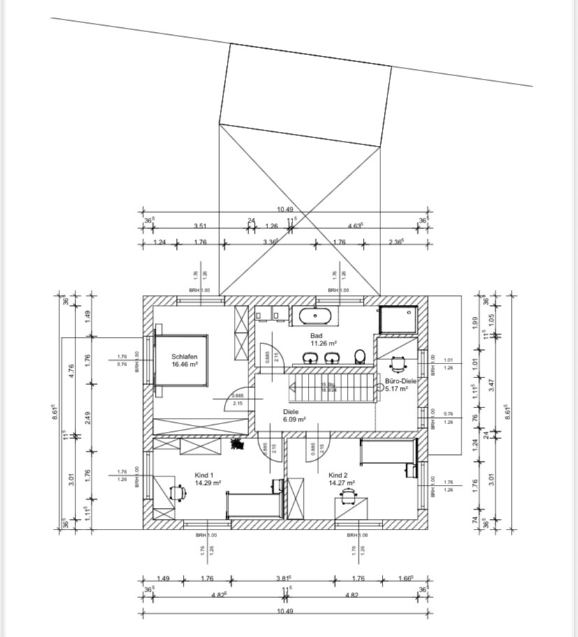
Stilrichtung, Dachform, Gebäudetyp Satteldach
Keller, Geschosse 2
Anzahl der Personen, Alter 2 Erwachsene und potenziell 2 Kinder, aktuell 1
Raumbedarf im EG, OG
Büro: Familiennutzung oder Homeoffice? Beides
Schlafgäste pro Jahr, wenn dann schlafen diese in den Kinderzimmern
offene Küche, Kochinsel offene Küche
Anzahl Essplätze 1
Kamin nein
Musik/Stereowand nein
Balkon, Dachterrasse nein
Garage, Carport ja
Nutzgarten, Treibhaus möglich
weitere Wünsche/Besonderheiten/Tagesablauf, gern auch Begründungen, warum dieses oder das nicht sein soll
Hausentwurf
Von wem stammt die Planung:
-Erstentwurf Architek danach Anpassungen mit Bauunternehmer/Architekt
Was gefällt besonders? Warum? Hauswirtschaftsraum mit separater Tür (Schmutzschleuse), große Speise
Was gefällt nicht? Warum?
Preisschätzung laut Architekt/Planer: 433k
Persönliches Preislimit fürs Haus, inkl. Ausstattung: 500k
favorisierte Heiztechnik: Luftwärmepumpe und Lüftungsanlage zentral
Wenn Ihr verzichten müsst, auf welche Details/Ausbauten
-könnt Ihr verzichten: wenns hart auf hart kommt, dann könnte man auf die separate Tür Hauswirtschaftsraum oder die Speise verzichten,
-könnt Ihr nicht verzichten: Gäste-WC mit Dusche
Warum ist der Entwurf so geworden, wie er jetzt ist? ZB
So klein wie möglich, so groß wie nötig bauen. Grundstück wird nach hinten breiter
also es ist ein Entwurf nach einem Beratungstermin bei Architekten. Dieser wurden dann nochmals mit dem Bauunternehmen abgeändert.
Wir möchten ein funktionierendes Haus, was für 2 Erwachsene und potenziell 2 Kinder (1 vorhanden) funktioniert. Zusätzlich haben wir noch einen Hund, aber der passt sich logischerweise an (Schmutzschleuße aber auch dafür gedacht).
Homeoffice ist generell möglich und auch angedacht. Zuerst haben wir ein Kinderzimmer dafür frei und vorgesehen. Danach die Büronische oder das Schlafzimmer im Og. Wir brauchen nicht viel ausser einen ruhigen Platz zum Arbeiten.
wenn alle stricke reißen, dann wird die Speis zum Arbeitszimmer (möglicherweise auch dann vom Flur aus begehbar gemacht).
Das Bad oben ist durch die schmale Bauweise sowie gerade Treppe etwas länglich gezogen. Die Waschmaschine und Trockner sind oben eingezeichnet und wären dort geplant. Im Hauswirtschaftsraum ebenfalls Anschlüsse. Ansonsten nutzt man den Platz oben oder unten für einen Schrank.
bin auf eure Meinungen gespannt.




Bebauungsplan/Einschränkungen
Größe des Grundstücks 654 qm
Hang nein
Grundflächenzahl 0,4
Geschossflächenzahl 0,8
Baufenster, Baulinie und -grenze 3m
Randbebauung nur Garagen oder Carport
Anzahl Stellplatz 2
Geschossigkeit max 2
Dachform 0-48 grad
Stilrichtung Einfamilienhaus
Ausrichtung egal
Maximale Höhen/Begrenzungen 6m Wand sowie 9 Gesamt
weitere Vorgaben Zisterne
Anforderungen der Bauherren
Stilrichtung, Dachform, Gebäudetyp Satteldach
Keller, Geschosse 2
Anzahl der Personen, Alter 2 Erwachsene und potenziell 2 Kinder, aktuell 1
Raumbedarf im EG, OG
Büro: Familiennutzung oder Homeoffice? Beides
Schlafgäste pro Jahr, wenn dann schlafen diese in den Kinderzimmern
offene Küche, Kochinsel offene Küche
Anzahl Essplätze 1
Kamin nein
Musik/Stereowand nein
Balkon, Dachterrasse nein
Garage, Carport ja
Nutzgarten, Treibhaus möglich
weitere Wünsche/Besonderheiten/Tagesablauf, gern auch Begründungen, warum dieses oder das nicht sein soll
Hausentwurf
Von wem stammt die Planung:
-Erstentwurf Architek danach Anpassungen mit Bauunternehmer/Architekt
Was gefällt besonders? Warum? Hauswirtschaftsraum mit separater Tür (Schmutzschleuse), große Speise
Was gefällt nicht? Warum?
Preisschätzung laut Architekt/Planer: 433k
Persönliches Preislimit fürs Haus, inkl. Ausstattung: 500k
favorisierte Heiztechnik: Luftwärmepumpe und Lüftungsanlage zentral
Wenn Ihr verzichten müsst, auf welche Details/Ausbauten
-könnt Ihr verzichten: wenns hart auf hart kommt, dann könnte man auf die separate Tür Hauswirtschaftsraum oder die Speise verzichten,
-könnt Ihr nicht verzichten: Gäste-WC mit Dusche
Warum ist der Entwurf so geworden, wie er jetzt ist? ZB
So klein wie möglich, so groß wie nötig bauen. Grundstück wird nach hinten breiter
also es ist ein Entwurf nach einem Beratungstermin bei Architekten. Dieser wurden dann nochmals mit dem Bauunternehmen abgeändert.
Wir möchten ein funktionierendes Haus, was für 2 Erwachsene und potenziell 2 Kinder (1 vorhanden) funktioniert. Zusätzlich haben wir noch einen Hund, aber der passt sich logischerweise an (Schmutzschleuße aber auch dafür gedacht).
Homeoffice ist generell möglich und auch angedacht. Zuerst haben wir ein Kinderzimmer dafür frei und vorgesehen. Danach die Büronische oder das Schlafzimmer im Og. Wir brauchen nicht viel ausser einen ruhigen Platz zum Arbeiten.
wenn alle stricke reißen, dann wird die Speis zum Arbeitszimmer (möglicherweise auch dann vom Flur aus begehbar gemacht).
Das Bad oben ist durch die schmale Bauweise sowie gerade Treppe etwas länglich gezogen. Die Waschmaschine und Trockner sind oben eingezeichnet und wären dort geplant. Im Hauswirtschaftsraum ebenfalls Anschlüsse. Ansonsten nutzt man den Platz oben oder unten für einen Schrank.
bin auf eure Meinungen gespannt.
W
wiltshire04.07.25 17:48Milka0105 schrieb:
So klein wie möglich, so groß wie nötig bauen.Das ist gelungen. Mehr ist hier und da schön, aber nicht nötig.Die Raumgröße des Arbeitszimmers kenne ich aus England. Bei Computerarbeiten reicht das völlig aus und mit ein paar Tricks macht man es sich darin auch atmosphärisch sehr schön.
Die Gerade Treppe raubt zwar immer etwas Platz, ist aber gut aufgehoben wo eh kein Tageslicht ist.
Die Küche ist zwar zu klein, um bequem mit mehreren Personen zu kochen aber die Lage der Speis kann Abhilfe schaffen. Ich würde überlegen die Spülmaschine mit einem weiteren kleinen Waschbecken in die Speis zu verlegen um mehr Stauraum im Kochbereich zu schaffen. Du wirst wenig durchgehend hohe Schränke haben können, wenn Du auch nur ein Minimum an Arbeitsfläche wünschst. Die Positionierung des/der Ofen und eines Kühlschranks sind eine Herausforderung.
Die Dusche im EG würde ich mir sparen.
Der Technikraum ist etwas eng, auch wenn die Wäschegeräte im Bad oben stehen. Da würde ich die geplante Technik mit entsprechenden Abstandswerten einmal klären. Als "Drecksschleuse", wenn die Herbstspaziergänge durch die Nässe matschige Schuhe und nassen Hund bedeuten finde ich den Nebeneingang in den Technikraum zwar gut, aber etwas klein. Kann aber funktionieren, wenn der Hund lernt, sich unter dem Carport zu schütteln...
Die Anordnung im Bad oben sieht für mich auf dem Plan ungemütlich aus. Die Toilette in eine Reihe mit den Waschbecken zu setzen - da lehnt sich in mir etwas dagegen auf, ohne, dass ich das objektivieren kann. Die Nische für die Dusche braucht sicher eine gute Belüftung um schimmelfrei zu bleiben.
Küche insgesamt und Bad (hier nicht die Größe, aber Aufteilung) würden mich sehr stören.
Aber mir wären, auch wenn ich allein koche, die Arbeitsfläche zu wenig. Natürlich auch Lagerfläche, denn ich habe ja als Koch keine Lust, mich immer durch einen Schrank in die Speis zu bewegen und etwas zu holen.
Diese ganze Kombi ist nicht durchdacht.
Ähnlich sehe ich das mit der Garderobe und Schmutzschleuse: Garderobe ist ja gerade nur da, um die derzeitigen getragenen Jacken unterzubringen, was aber ist mit den anderen Jacken? Und Schuhen? Wir haben mit Gasheizung und Kontrollierte-Wohnraumlüftung so 8,5qm, dabei aber ca. 3 Meter Küchenschränke auf einer Seite. Den Rest vom Platz teilen sich die Recycling-Güter, Taschen, Putzzeug, was nicht im Schrank steht, Werkzeug und nochmals Taschen. Für unseren Hund braucht es eigentlich genauso viel Platz wie ein Menschenbewohner, als so ca. 60cm Kleiderschrankqualität pro Kopf. Die passt hier nirgends.
Ihr werdet früher oder später den Flur vollgemüllt haben, wenn ihr jetzt keine Staufläche für Alltägliches plant.
Büroecke sehe ich nicht als Problem. Könnte aber eng werden, wenn man noch Drucker und son Gedöns bzw. mehrere Familienordner unterbringen muss.
Wenn man die Wanne dort macht, wo Waschmaschine und Trockner geplant sind, dann an der Stirnseite der Wanne beim Fenster die Toi (Stirnseitig gedreht), und dann zwei Waschtische auf eine lange Arbeitsplatte. Darunter dann dort, wo sich keine Füße stoßen sollen, Waschmaschine und Trockner.
Da man sich auch in der Wanne abbrausen kann, würde auch ich ohne Dusche im EG bauen. Wenn sie für den Hund ist, dann bitte konsequent ohne diese Tür durch den Technikraum, die nur wertvollen Platz verschenkt.
Es ist keine Dachluke eingezeichnet?
Ich sag es als Fazit mal so: es gibt größere Häuser mit 150qm. Hier werden die Funktionen herumgeschoben, sodass der funktionale Aspekt eines Raumes für vieles in der Theorie herhalten muss. Man wird wohl immer irgendwie unzufrieden sein, weil der Raum von der Funktion nicht ausreicht.
Und wer ist schuld? Die gerade Treppe! Zweifach gewendelt macht den Flur kürzer und die Küche breiter. Das Haus ist eh schon schmal - und durch das Grössenlimit halt die Küche (zu) klein.
(..Sagt eine aus einem 2-Personen-Haushalt, die wenig hortet)
wiltshire schrieb:2 Hochschränke, einer zum Krabbeln durch die Speis ist ein wertvoller Platz für einen hochschrank zu wenig. Die Speis bietet noch nicht einmal Platz für einen zweiten Kühlschrank oder Hochschrank (Lage Tür, Fenster)
Die Küche ist zwar zu klein, um bequem mit mehreren Personen zu kochen aber die Lage der Speis kann Abhilfe schaffen. Ich würde überlegen die Spülmaschine mit einem weiteren kleinen Waschbecken in die Speis zu verlegen um mehr Stauraum im Kochbereich zu schaffen. Du wirst wenig durchgehend hohe Schränke haben können, wenn Du auch nur ein Minimum an Arbeitsfläche wünschst. Die Positionierung des/der Ofen und eines Kühlschranks sind eine Herausforderung.
Aber mir wären, auch wenn ich allein koche, die Arbeitsfläche zu wenig. Natürlich auch Lagerfläche, denn ich habe ja als Koch keine Lust, mich immer durch einen Schrank in die Speis zu bewegen und etwas zu holen.
Diese ganze Kombi ist nicht durchdacht.
Ähnlich sehe ich das mit der Garderobe und Schmutzschleuse: Garderobe ist ja gerade nur da, um die derzeitigen getragenen Jacken unterzubringen, was aber ist mit den anderen Jacken? Und Schuhen? Wir haben mit Gasheizung und Kontrollierte-Wohnraumlüftung so 8,5qm, dabei aber ca. 3 Meter Küchenschränke auf einer Seite. Den Rest vom Platz teilen sich die Recycling-Güter, Taschen, Putzzeug, was nicht im Schrank steht, Werkzeug und nochmals Taschen. Für unseren Hund braucht es eigentlich genauso viel Platz wie ein Menschenbewohner, als so ca. 60cm Kleiderschrankqualität pro Kopf. Die passt hier nirgends.
Ihr werdet früher oder später den Flur vollgemüllt haben, wenn ihr jetzt keine Staufläche für Alltägliches plant.
Büroecke sehe ich nicht als Problem. Könnte aber eng werden, wenn man noch Drucker und son Gedöns bzw. mehrere Familienordner unterbringen muss.
wiltshire schrieb:Für mich nicht nur das, auch kann Wanne mit Waschbecken zusammen eng werden:
Die Anordnung im Bad oben sieht für mich auf dem Plan ungemütlich aus.
Wenn man die Wanne dort macht, wo Waschmaschine und Trockner geplant sind, dann an der Stirnseite der Wanne beim Fenster die Toi (Stirnseitig gedreht), und dann zwei Waschtische auf eine lange Arbeitsplatte. Darunter dann dort, wo sich keine Füße stoßen sollen, Waschmaschine und Trockner.
Da man sich auch in der Wanne abbrausen kann, würde auch ich ohne Dusche im EG bauen. Wenn sie für den Hund ist, dann bitte konsequent ohne diese Tür durch den Technikraum, die nur wertvollen Platz verschenkt.
Es ist keine Dachluke eingezeichnet?
Ich sag es als Fazit mal so: es gibt größere Häuser mit 150qm. Hier werden die Funktionen herumgeschoben, sodass der funktionale Aspekt eines Raumes für vieles in der Theorie herhalten muss. Man wird wohl immer irgendwie unzufrieden sein, weil der Raum von der Funktion nicht ausreicht.
Und wer ist schuld? Die gerade Treppe! Zweifach gewendelt macht den Flur kürzer und die Küche breiter. Das Haus ist eh schon schmal - und durch das Grössenlimit halt die Küche (zu) klein.
(..Sagt eine aus einem 2-Personen-Haushalt, die wenig hortet)
Milka0105 schrieb:
Hallo zusammen, nach meinem letzten Beitrag zu Kosten usw. hatte mich Ant11 darauf aufmerksam gemacht, mit einem Grundriss hier erstmal in die Bewertung einzusteigen.Vermutlich bin ich gemeint, mit diesem Beitrag: https://www.hausbau-forum.de/threads/angebotsuebersicht-und-bauleistungsbeschreibung.48939/page-4#post-68499511ant schrieb:
0. Eröffne hier eine Planungsdiskussion, beginnend mit dem ausgefüllten Fragebogen https://www.hausbau-forum.de/threads/grundriss-planung-unbedingt-vor-beitrag-erstellung-lesen.11714/ und einer Darstellung des Grundstücks möglichst mit Höhenpunkten oder -linien;
1. Höre auf, die scheinbare Mehrausgabe einer freien Architektenplanung zu fürchten. Absolviere mindestens das "Modul A" meines "Ein Hausbau-Fahrplan, auch für Sie: das Phasenmodell der HOAI!". An dessen Quelle findest Du auch den Weg zu meinem persönlichen Rat;... wo natürlich vom ganzen Entwurf - nicht nur von einem "Grundriss" die Rede ist;Milka0105 schrieb:
also es ist ein Entwurf nach einem Beratungstermin bei Architekten. Dieser wurden dann nochmals mit dem Bauunternehmen abgeändert.... und ich sagte weiter11ant schrieb:
3. Bespreche nach der Teigruhe und Weichenstellung mit Deinem freien Architekten ausführlich den Aspekt einer eigenen Bauleistungsbeschreibung.... also ausdrücklich freier Architekt, Modul A, Teigruhe und Weichenstellung. Nicht den bestehenden Entwurf abwechselnd von einem Architekten und demselben Bauunternehmen wie zuvor durchkneten lassen - das ist ein unsauberes (ibs. geradezu inzestuöses) Joghurtzuchtverfahren, was nicht gerade von Leseverstehen meines Hausbau-Fahrplanes zeugt. Ungeduldig-schlampig-unvollständiges Redesign führt zu seine Zeugungsbeteiligten nicht lobenden Ergebnissen und durchgeschleppten Keimsequenzen in der DNA, hier in Gestalt der beibehaltenen Treppenkonzeption zu erkennen. MTBF korreliert (schmerzlich kraftschlüssig !) mit Clean Code !Es wäre wichtig gewesen, 1. im Entwurfsprozeß wieder in den Vorentwurf zurückzugehen. Dies ist offenbar nicht geschehen (vermutlich ungeduldig auf die leichte Schulter genommen worden). Dann ist wohl auch 2. die Teigruhe zu kurz gewesen und vermutlich auch 3. die Weichenstellung für überflüssig gehalten worden (weil man sich in den Bauunternehmer schon verliebt hat). Kann man alles machen (oder besser gesagt unterlassen), ist juristisch gesehen nicht strafbar, aber weitgehend unnütz, klug geht anders.
Eine Konkretgrundrißkritik machte somit wenig Sinn, wenn schon im konzeptionellen Vorgehen der Wurm ist. Dennoch bin ich neugierig: was soll das dreiteilige, viereinhalb Meter breite Element aus der ich sachma Familie der Terrassentüren genau darstellen, und weshalb gerade in dieser speziellen Weise ? (nicht nur als Bauberater, sondern durchaus auch als ehemaliger Fensterfritze gefragt).
https://www.instagram.com/11antgmxde/
https://www.linkedin.com/company/bauen-jetzt/
M
Milka010504.07.25 23:08wiltshire schrieb:
Das ist gelungen. Mehr ist hier und da schön, aber nicht nötig.
Die Raumgröße des Arbeitszimmers kenne ich aus England. Bei Computerarbeiten reicht das völlig aus und mit ein paar Tricks macht man es sich darin auch atmosphärisch sehr schön.
Die Gerade Treppe raubt zwar immer etwas Platz, ist aber gut aufgehoben wo eh kein Tageslicht ist.
Die Küche ist zwar zu klein, um bequem mit mehreren Personen zu kochen aber die Lage der Speis kann Abhilfe schaffen. Ich würde überlegen die Spülmaschine mit einem weiteren kleinen Waschbecken in die Speis zu verlegen um mehr Stauraum im Kochbereich zu schaffen. Du wirst wenig durchgehend hohe Schränke haben können, wenn Du auch nur ein Minimum an Arbeitsfläche wünschst. Die Positionierung des/der Ofen und eines Kühlschranks sind eine Herausforderung.
Die Dusche im EG würde ich mir sparen.
Der Technikraum ist etwas eng, auch wenn die Wäschegeräte im Bad oben stehen. Da würde ich die geplante Technik mit entsprechenden Abstandswerten einmal klären. Als "Drecksschleuse", wenn die Herbstspaziergänge durch die Nässe matschige Schuhe und nassen Hund bedeuten finde ich den Nebeneingang in den Technikraum zwar gut, aber etwas klein. Kann aber funktionieren, wenn der Hund lernt, sich unter dem Carport zu schütteln...
Die Anordnung im Bad oben sieht für mich auf dem Plan ungemütlich aus. Die Toilette in eine Reihe mit den Waschbecken zu setzen - da lehnt sich in mir etwas dagegen auf, ohne, dass ich das objektivieren kann. Die Nische für die Dusche braucht sicher eine gute Belüftung um schimmelfrei zu bleiben.Die Küchen lassen wir jetzt mal vom Küchenstudio planen, um zu schauen, wie man sie anordnet. Ansonsten müsste man den Grundriss anpassen. Evtl. kann man die Küche noch etwas in den Raum zum Esstisch reinschieben.
Dusche Eg ist geplant für halt dann 4 Personen Haushalt. Sodass man dann mal unten Duschen kann. Sowie für den Hund, damit er nicht erst durchs komplette Haus laufen muss. Hmm.. sie bietet halt etwas mehr Flexibilität.
Der Technikraum ist mit 8,5qm nicht riesig, aber doch auch nicht klein. Wir hatten halt gedacht, den Platz in der Mitte des Technikraums, nutzt man eh nicht, sodass man ihn auch enger/schmaler machen kann.
W
wiltshire04.07.25 23:14Milka0105 schrieb:
Der Technikraum ist mit 8,5qm nicht riesig, aber doch auch nicht klein. Wir hatten halt gedacht, den Platz in der Mitte des Technikraums, nutzt man eh nicht, sodass man ihn auch enger/schmaler machen kann.So manche Haustechnik (Wärmepumpe, Warmwasserspeicher, Wechselrichter, Batteriespeicher etc.) kommt mit Anforderungen wie viel Abstand zum nächsten Objekt erforderlich ist. Die Geräteabmessungen allein bestimmen nicht wie in einer Küche den Platzbedarf.Ähnliche Themen