ᐅ Grundriss, KfW55EE Doppelhaushälfte 150m², 380m² Grundstück 2. Reihe
Erstellt am: 06.01.22 15:56
W
WolfsonHallo liebe Hausbauerfahrenen. Wir planen den Bau einer KfW55EE Doppelhaushälfte an Bestand und würden uns sehr über Euer Feedback freuen, herzlichen Dank im Voraus dafür!
Bebauungsplan/Einschränkungen
Anforderungen der Bauherren
Hausentwurf
Wenn Ihr verzichten müsst, auf welche Details/Ausbauten
Warum ist der Entwurf so geworden, wie er jetzt ist? ZB
Was ist die wichtigste/grundlegende Frage zum Grundriss in 130 Zeichen zusammengefasst?
Wie kommen wir ohne Keller klar? Feedback zum Grundriss und Planung erwünscht!
Herzlichen Dank im Voraus an jede/n der bis hierher gelesen hat und für jeden Tipp/Hinweis/Anmerkung!

Bebauungsplan/Einschränkungen
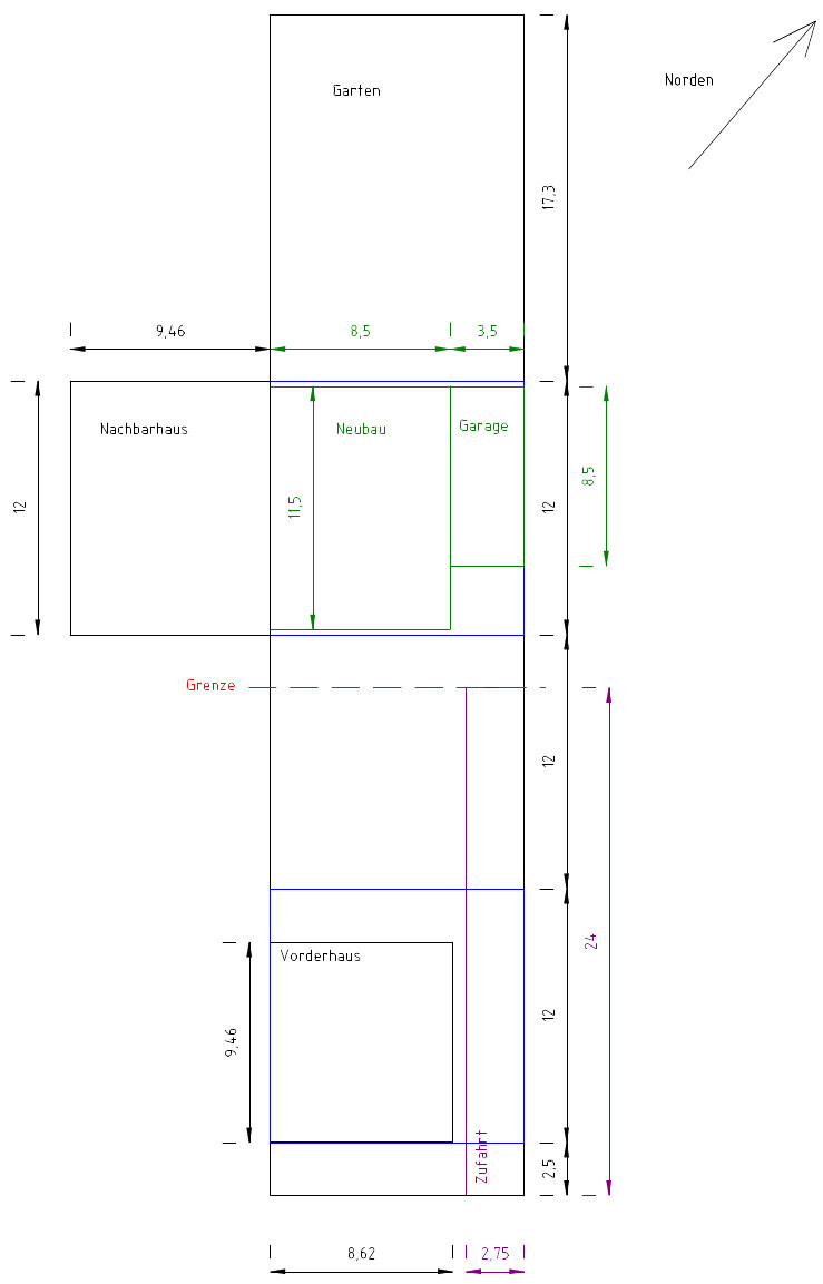
- Größe des Grundstücks: 380 m²
- Hang: nein, fast flach
- Grundflächenzahl: 0,4
- Geschossflächenzahl: 0,6
- Baufenster, Baulinie und -grenze: siehe folgende Skizze
- Randbebauung: Doppelhaushälfte Anbau an Bestand
- Anzahl Stellplatz: 1
- Geschossigkeit: 1 Vollgeschoss
- Dachform: Satteldach 40°
- Stilrichtung: Landhaus
- Ausrichtung: Lichttechnisch herausfordernd, siehe folgende Skizze
- Maximale Höhen/Begrenzungen: Wandhöhe 3,5 - 4,5 m, Sockelhöhe 0,3 - 1 m, Höhe muss an Höhe des Nachbarhauses angepasst werden. Um die Feuerschutzwand zum Nachbarn darf aus Kostengründen nicht aus den Giebelwandmaßen des Nachbarn herausragen (darf keine Witterungswand sein).
- weitere Vorgaben:
- Überschreitung der Grundflächenzahl um 20 m² möglich.
- Bei fehlender Baulastfläche für die Erschließung auf dem vorderen Grundstück (Zufahrt sowie Stellplatz für das Vorderhaus) Übertrag auf hinteres Grundstück mit Hilfe von Flächen- / Nutzungsmaß-Baulast möglich
- keine Nebenanlagen auf der Gartenfläche
- Nachbarhaus muss unterfangen werden. Keller des Nachbarhauses ist 1,5 m von der Grenze and die angebaut werden muss zurückversetzt. In diesem Bereich sind Betonstützen mit 3 - 3,5 m Tiefe als Unterfangung einer vorherigen Terrasse und Schuppen.
- Skizze:
- Nachbarhaus-Giebelwand an die angebaut werden muss:
Anforderungen der Bauherren
- Stilrichtung, Dachform, Gebäudetyp: Holzhaus / Landhaus
- Keller, Geschosse: Keller als Nutzkeller wäre schön um Platz für die Haustechnik, (Lebensmittel-)Lager, Platz für 1-4 Sport-Fahrräder und Werkstatt zu haben, ist aber höchstwahrscheinlich nicht finanzierbar für uns (haben ein Angebot eines lokalen Bauunternehmers vorliegen und mehrere grobe Schätzungen von Fertigkeller Herstellern). Darum wollen wir eine Garage rechts anbauen, auch wenn wir hierbei auf ein Küchenfenster nach Nord-Osten verzichten müssen. In die Garage wollen wir im Idealfall die Haustechnik sowie Werkbank und kleines Lebensmittellager integrieren. Außerdem sollen hier Fahrräder (z.B. Sportfahrräder an die Wände und Stadträder am Boden) rein. Die Garage soll für einen Hänger und kleinen Bagger durchfahrbar sein, also vorne und hinten ein Tor haben. Im Idealfall auch Türen zum unkomplizierten Durchlaufen in den Garten haben. Sollte kein Platz mehr für das Auto bleiben wäre das nicht dramatisch. Verstehe aber den Bebauungsplan nicht 100% in Sachen Garage...
- Anzahl der Personen, Alter: 2 Erwachsene und 2 Kinder (3, 6)
- Raumbedarf im EG, OG:
- EG:
- soll auch im Alter mit Schlafzimmer und kleinem Bad nutzbar sein (weniger Treppenlaufen)
- Büro/Gästezimmer Kombi
- kleines Duschbad
- Wohn-/Ess-/Küchen-Bereich
- OG:
- 2 Kinderzimmer
- Schlafzimmer
- Bad
- Spitzboden: Speicher, evtl. späterer Ausbau
- Büro: Familiennutzung oder Homeoffice?: Homeoffice, auch nach Pandemie ca. 70%. Außerdem soll der Arbeitsplatz auch privat als kleines Heimstudio/Homerecording genutzt werden. Evtl. muss ein zweiter Arbeitsplatz integriert werden. Für Übernachtungen wäre zusätzlich eine Schlafcouch angedacht. Später (im Alter) soll das Büro mal als Schlafzimmer herhalten können wenn wir das meiste tägliche ebenerdig zur Verfügung haben wollen.
- Schlafgäste pro Jahr: mind. 1 x pro Monat 1-2 Personen, vielleicht 3-4 x pro Jahr 3-5 köpfige Familie mit kleinen Kindern (Improvisieren mit Kinderzimmer Nutzung etc. problemlos möglich)
- offene oder geschlossene Architektur (siehe Erstentwurf)
- konservativ oder moderne Bauweise: Hausbauer inkl. Bauweise steht fest: Hagemann Holzhaus inkl. Holzfassade
- offene Küche, Kochinsel: Ja, Kochinsel mit Herd wäre wünschenswert. Küche wollen wir gebraucht kaufen (privat oder Gebrauchtküchenhandel) sobald die Maße stehen und anpassen.
- Anzahl Essplätze: 4-6 für den Alltag, erweiterbar bis ca. 10
- Kamin: ja, wegen gut gedämmtem Haus und FBH eher ein kleiner freistehender Speicherofen (ca. 4-6 kW)
- Musik/Stereowand: bisherige Anlage klassische 2.0 Stereoanlage, aktuell nichts neues geplant. Wir haben keinen Fernseher. Allerdings wäre eine Option für Filmabende mit der Familie ohne größeren Umbauaufwand gut, z.B. Platz für versteckten Monitor für Anschluss an Laptop sowie geeignete Ausrichtung der Stereoanlage...
- Balkon, Dachterrasse: Holzterrasse mit Ritzen für Versickerung gewünscht
- Garage, Carport: Nicht unbedingt als Stellplatz benötigt, aber eine Garage als Kellerersatz (siehe Keller). Allerdings bin ich mir nicht 100%ig sicher ob das überhaupt geht vom Bebauungsplan her.
- Nutzgarten, Treibhaus: Garten mit aktuell Nussbaum und gewünschten 1-2 neu anzulegenden kleineren Obstbäumen. Außerdem Gemüseanbau, Beerensträucher etc. geplant
- weitere Wünsche/Besonderheiten/Tagesablauf, gern auch Begründungen, warum dieses oder das nicht sein soll
- große Herausforderung ist auf Grund der Ausrichtung Licht, allerdings müssen wir hier auf Grund der Finanzierbarkeit Kompromisse fahren (z.B. Küchenfenster für Garage als Kellerersatz einsparen oder auch Anzahl und größe der Fenster limitieren)
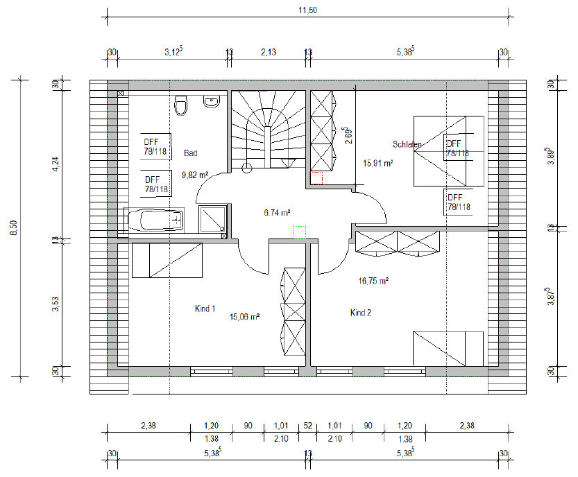
Hausentwurf
- Von wem stammt die Planung: Wir bauen mit Hagemann Haus. Der Entwurf kommt von der über Hagemann beauftragten Architektin. Wir haben bisher 2 Entwürfe
- ohne Keller und mit Hauswirtschaftsraum.
- mit Keller bei dem die Küche durch Wegfall des Hauswirtschaftsraum mehr Platz hat
- Was gefällt besonders? Warum?
- Wir favorisieren den Schnitt mit der größeren Küche, vor allem da wir die Küche gerne etwas eingerückt möchten um eine optisch bessere Trennung vom Wohn-/Essbereich sowie mehr Platz zu haben. Da wir uns den Keller nicht leisten können hoffen wir die Heiztechnik in eine angebaute Garage integrieren zu können. Zu mindest laut unserem Energieberater sollte das möglich sein. Mit der Architektin konnten wir diesbzgl. noch nicht reden bisher.
- Was gefällt nicht? Warum?
- Kochinsel fehlt in dem Plan bisher
- Preisschätzung lt Architekt/Planer: für das Haus (ohne die meisten Baunebenkosten) bisher 290k. Inkl. sind hier alle Gewerke (Sanitär, Elektro, Heizung etc.) bis auf Böden, Innentüren und Malerarbeiten. Hier sind aber manche Details noch nicht drin wie z.B. mehr Fenster als im Standard da wir hier noch eine Nachberechnung mit dem Entwurf der Architektin benötigen. Aktuelle persönliche Abschätzung komplett 435k inkl. sämtlicher Baunebenkosten
- Persönliches Preislimit fürs Haus komplett: 450k
- favorisierte Heiztechnik: Luft-Wasser-Wärmepumpe, außerdem Photovoltaik mit ca. 6,5 kWP (mit Vorbereitung für spätere Speicher-Nachrüstung)
- Die Einfahrt wird bis zur Grundstücksgrenze mit dem Eigentümer des Vorderhauses geteilt, da dieser seinen Stellplatz im hinteren Grundstücksbereich anlegen möchte. Geplant ist hier 2 Fahrstreifen zu pflastern mit einem Grünstreifen in der Mitte. Falls es finanziell zu eng wird evtl. sogar nur Splitt.
- Bisher 2 Entwürfe:
- außen weitestgehend identisch:
- Grundrisse (Möbel sind hier nur exemplarisch, unsere bisherigen Möbel sehen anders aus):
- VERSION 1)mit ausgelagerter Haustechnik, im Plan mit Keller, Idee wäre mit Garage. Im Plan ist bisher ein Carport geplant der aber nicht realisiert werden soll. Anstattdessen im Idealfall dann eben die Garage:
- EG:
- OG:
- Schnitt: Höhe ist fix, man ist so minimal (glaub es waren 2cm) unter der Nachbarhöhe. Entweder mit Treppe oder Luke/Ausklapptreppe erreichbarer Spitzboden (Treppe ist in der Version ohne Keller zu sehen):
- VERSION 2)mit integriertem Hauswirtschaftsraum, falls Garage aus irgendeinem Grund nicht so möglich wäre:
Wenn Ihr verzichten müsst, auf welche Details/Ausbauten
- könnt Ihr verzichten:
- bodentiefe Fenster im OG
- rein theoretisch (wollen wir eigentlich gar nicht) auch auf:
- Kamin (in Kalkulation mit Schornstein mit ca. 10k)
- offene Holzbalkendecke (10k)
- könnt Ihr nicht verzichten:
- Garage für Haustechnik, Werkbank und Stauraum
Warum ist der Entwurf so geworden, wie er jetzt ist? ZB
- Wir haben der Architektin unsere Bedürfnisse an Räume, Leben im Alter etc. mitgeteilt und das war dann der Entwurf dazu.
- Was macht ihn in Euren Augen besonders gut oder schlecht? Fast alle Bedürfnisse sind erfüllt, bis auf Platz für Werkbank, Sportfahrräder, Getränkekisten etc. in der Kellerlosen Variante.
Was ist die wichtigste/grundlegende Frage zum Grundriss in 130 Zeichen zusammengefasst?
Wie kommen wir ohne Keller klar? Feedback zum Grundriss und Planung erwünscht!
Herzlichen Dank im Voraus an jede/n der bis hierher gelesen hat und für jeden Tipp/Hinweis/Anmerkung!
Wolfson schrieb:
Gebäudetyp: Holzhaus / Landhaus [...] Verstehe aber den Bebauungsplan nicht 100% in Sachen Garage...Dann nenne den Plan mal (Vorsicht, ohne Link !). Ich bin ein wenig verwirrt: die Grundrisse zeigen Öffnungsmaße, die eher für Steinbau üblich wären, aber die Ansichten ein verbrettertes Haus (?)https://www.instagram.com/11antgmxde/
https://www.linkedin.com/company/bauen-jetzt/
Wolfson schrieb:
Bebauungsplan: 819 Baublock Mitteltor-, Alte Friedrich-, Teutschneureuter und Pfarrer-Graebener-Straße.Ach guck, der alte Thread war mir schon entfallen 🙂https://www.instagram.com/11antgmxde/
https://www.linkedin.com/company/bauen-jetzt/
Ähnliche Themen