R
Regina_Matthias22.07.15 11:38Nachdem wir lange hier im Forum mitgelesen und viele Ideen gesammelt haben, ist nun unser erster Vorentwurf fertig. Wir lassen über einen regionalen Bauunternehmer bauen. Den Entwurf stammt vom Architekten des Bauunternehmers.
Bebauungsplan/Einschränkungen
Größe des Grundstücks: 950 qm inkl. Stichweg
leichter Hang
Anzahl Stellplätze: 2
Geschosse: EG, DG
Dachform: Satteldach 27%
Stilrichtung: Villenstil
Anforderungen der Bauherren
Villenstil
helle Räume
Keller: ja
Anzahl der Personen: 4 (35 Jahre, 29 Jahre, 1,5 Jahre + 1 weiteres Kind)
Raumbedarf im EG, OG
Gasheizung mit Solar (Solar wurde und empfohlen)
Dezentrale Lüftungsanlage (wird angeblich laut Energieverordnung gefordert?)
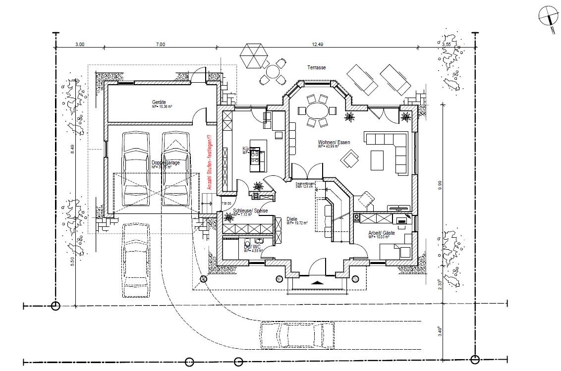
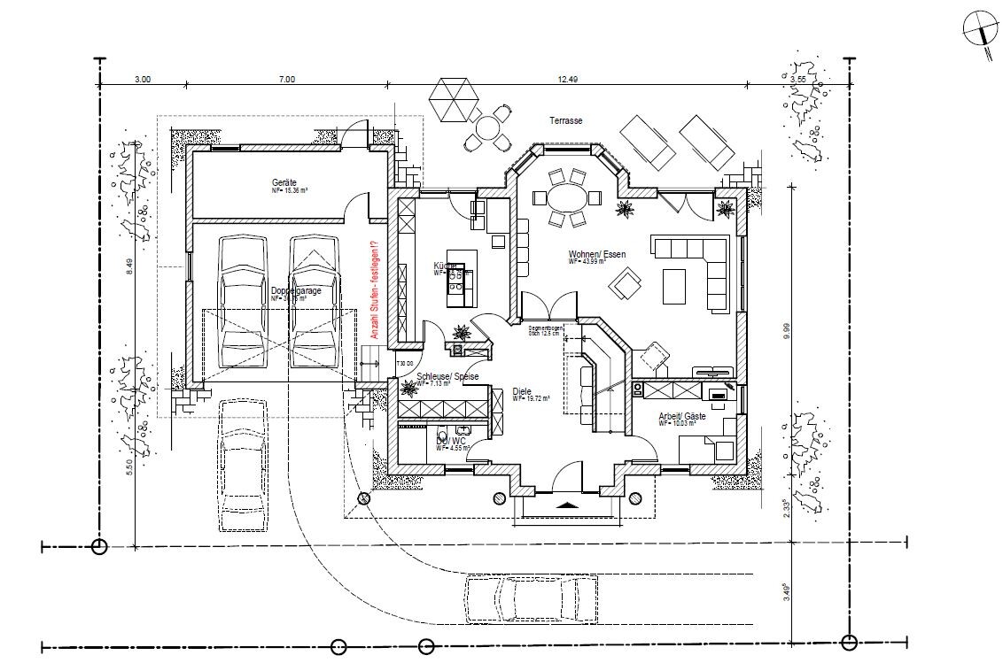
EG:
Großes Wohnzimmer mit Erker
Geschlossene Küche mit Kochinsel
Anzahl Essplätze: 6 (im Wohn-/Esszimmer)
Kamin
Schleuse mit Durchgang vom Haus zur Garage
Speise mit Zugang von Küche
Büro: Arbeitszimmer und bei Bedarf Gästezimmer
Schlafgäste pro Jahr: 2-3 Übernachtungen von 1 Person
Doppelgarage mit Geräteraum
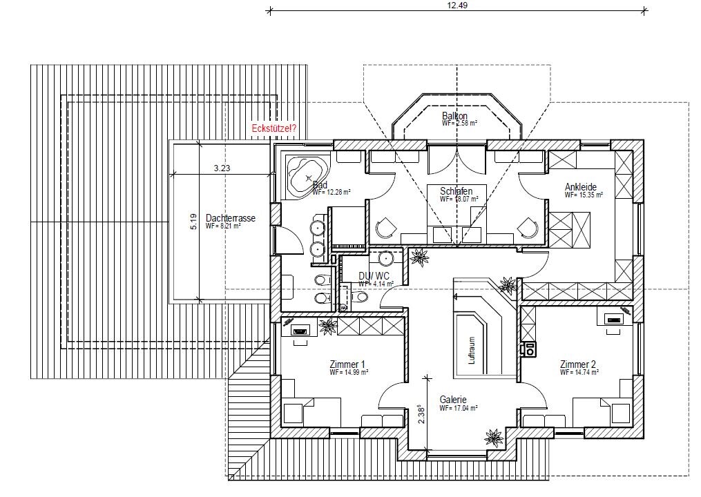
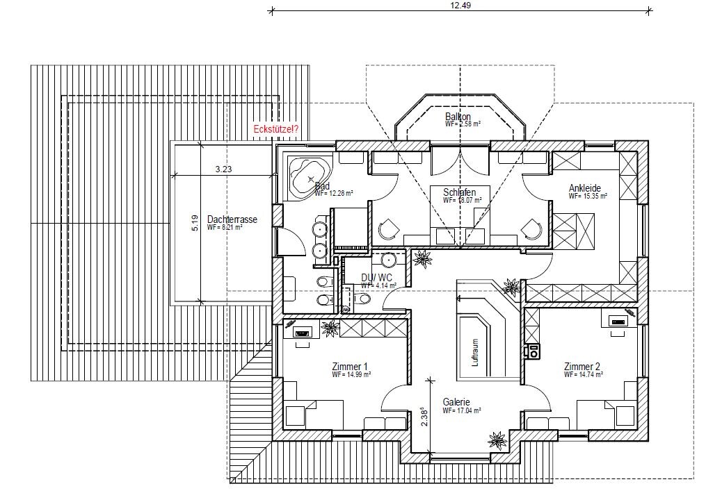
OG:
Galerie
Die beiden Kinderzimmer sollen etwa gleich groß sein
Großes Ankleidezimmer für gesamte Kleidung (keine Kleiderschränke in den Zimmern)
Schafzimmer mit Balkon (Bergblick)
Elternbad mit Eckbadewanne (Bergblick)
Wäscheabwurf soll aus dem Elternbad und Kinderbad sowie aus der Schleuse erreichbar sein
Hausentwurf
Von wem stammt die Planung: Architekt des Bauunternehmers
Preisschätzung lt. Architekt/Planer: 548.000 EUR
Persönliches Preislimit fürs Haus, ohne Ausstattung und Außenanlagen: 400.000 EUR
Das Angebot unseres Bauunternehmers liegt knapp 150.000 EUR über unserem Maximalbudget.
Wir müssen dringend einsparen, um das Bauvorhaben realisieren zu können. Die Dachterrasse wurde im Angebot bereits nicht berücksichtigt. Wir sind um jeden Ratschlag dankbar.
Vielen Dank!
Regina und Matthias



Bebauungsplan/Einschränkungen
Größe des Grundstücks: 950 qm inkl. Stichweg
leichter Hang
Anzahl Stellplätze: 2
Geschosse: EG, DG
Dachform: Satteldach 27%
Stilrichtung: Villenstil
Anforderungen der Bauherren
Villenstil
helle Räume
Keller: ja
Anzahl der Personen: 4 (35 Jahre, 29 Jahre, 1,5 Jahre + 1 weiteres Kind)
Raumbedarf im EG, OG
Gasheizung mit Solar (Solar wurde und empfohlen)
Dezentrale Lüftungsanlage (wird angeblich laut Energieverordnung gefordert?)
EG:
Großes Wohnzimmer mit Erker
Geschlossene Küche mit Kochinsel
Anzahl Essplätze: 6 (im Wohn-/Esszimmer)
Kamin
Schleuse mit Durchgang vom Haus zur Garage
Speise mit Zugang von Küche
Büro: Arbeitszimmer und bei Bedarf Gästezimmer
Schlafgäste pro Jahr: 2-3 Übernachtungen von 1 Person
Doppelgarage mit Geräteraum
OG:
Galerie
Die beiden Kinderzimmer sollen etwa gleich groß sein
Großes Ankleidezimmer für gesamte Kleidung (keine Kleiderschränke in den Zimmern)
Schafzimmer mit Balkon (Bergblick)
Elternbad mit Eckbadewanne (Bergblick)
Wäscheabwurf soll aus dem Elternbad und Kinderbad sowie aus der Schleuse erreichbar sein
Hausentwurf
Von wem stammt die Planung: Architekt des Bauunternehmers
Preisschätzung lt. Architekt/Planer: 548.000 EUR
Persönliches Preislimit fürs Haus, ohne Ausstattung und Außenanlagen: 400.000 EUR
Das Angebot unseres Bauunternehmers liegt knapp 150.000 EUR über unserem Maximalbudget.
Wir müssen dringend einsparen, um das Bauvorhaben realisieren zu können. Die Dachterrasse wurde im Angebot bereits nicht berücksichtigt. Wir sind um jeden Ratschlag dankbar.
Vielen Dank!
Regina und Matthias
Regina_Matthias schrieb:
Nachdem wir lange hier im Forum mitgelesen und viele Ideen gesammelt haben, ist nun unser erster Vorentwurf fertig.Wenn man die Beiträge (insbesondere die von Bauexperte) einigermaßen gelesen hätte, wäre es eigentlich klar gewesen, dass man bei 200m² nicht mit dem Budget hinkommt. Ich würde sagen zurück auf Anfang und alles eine Nummer kleiner.
Öhm...naja, das ist der Preis für eine Villa....wolltet ihr doch, oder?
Aber im Ernst: 150TEUR sparen könnt ihr v.a durch Verkleinerung! Gibt ja auch kleine Schöne Villen 😉
Aber im Ernst: 150TEUR sparen könnt ihr v.a durch Verkleinerung! Gibt ja auch kleine Schöne Villen 😉
B
Bauexperte22.07.15 12:30Hallo,
Grüße, Bauexperte
Regina_Matthias schrieb:Was heißt denn "regional" ...? Leider hast Du Dein Profil nicht ausgefüllt 😱
Wir lassen über einen regionalen Bauunternehmer bauen.
Grüße, Bauexperte
Bei uns hat´s gereicht für ein Haus in dieser Größe mit eurem Limit. Allerdings ohne Keller und Garage. :-)
Aber mal zum Grundriss:
- eine Villa und dann ein kleines Kinderbad ohne Tageslicht = noGo
- kein Durchgang von Küche zu Wohn-Esszimmer?
- riesen Diele aber kaum Platz für Möbel, Garderobe usw.
- das Elternbad ist ja mal total unpraktisch. Um in den Flur zu kommen müsst ihr durch Schlafzimmer und Ankleide!?! Das würde mich mit der Zeit doch sehr nerven.
- Schlafzimmer als gefangener Raum finde ich auch nicht gut.
Ich finde aus der Fläche kann man deutlich mehr rausholen als das jetzige.
Und was das Budget angeht: kleiner bauen, Garage und/oder Keller weglassen oder eben Budget aufstocken.
Aber mal zum Grundriss:
- eine Villa und dann ein kleines Kinderbad ohne Tageslicht = noGo
- kein Durchgang von Küche zu Wohn-Esszimmer?
- riesen Diele aber kaum Platz für Möbel, Garderobe usw.
- das Elternbad ist ja mal total unpraktisch. Um in den Flur zu kommen müsst ihr durch Schlafzimmer und Ankleide!?! Das würde mich mit der Zeit doch sehr nerven.
- Schlafzimmer als gefangener Raum finde ich auch nicht gut.
Ich finde aus der Fläche kann man deutlich mehr rausholen als das jetzige.
Und was das Budget angeht: kleiner bauen, Garage und/oder Keller weglassen oder eben Budget aufstocken.
Ähnliche Themen