Bebauungsplan/Einschränkungen
Größe des Grundstücks: 606m²
Hang: leichte Hanglage nach Norden (3m auf 34m Länge) Haus: Süd-Nord = 1meter Höhenunterschied
Grundflächenzahl: 0,35 (212m²)
Geschossflächenzahl: 0,40 (242m²)
Baufenster: in blau (ca. 11,8x14,5m)
Grenzbebauung: nein
Anzahl Stellplätze: 2
Geschossigkeit: zwei Vollgeschosse: EG+DG
Dachform: 38-42° Satteldach
Stilrichtung: klassisch
Firstrichtung: Süd-Nord
Maximale Höhen/Begrenzungen: nördliche traufseitige Wandhöhe über natürlichem Gelänge: 3,80m
weitere Vorgaben: Kniestock von OK Rohfussboden bis UK Fußpfette 0,50m (konstruktiv dann ca. 70cm innen)
Anforderungen der Bauherren
Stilrichtung, Dachform, Gebäudetyp: alles laut Bebauungsplan
Keller, Geschosse: KG+EG+DG
Anzahl der Personen, Alter: 28(w) + 30(m) + mind. 1 geplantes Kind
Raumbedarf im KG: Hobbyraum, HAR/Hauswirtschaftsraum, Speisekammer/Abstellplatz, später mal eine Sauna
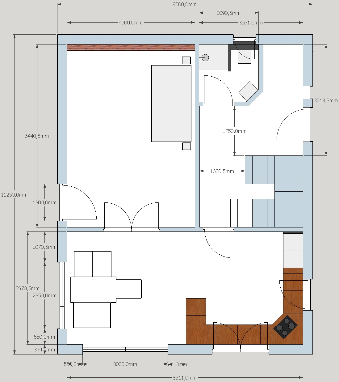
Raumbedarf im EG: Wohnen, Essen+Küche, WC, Flur
Raumbedarf im DG: Eltern, Ankleide, Kind 1 + Kind 2, Flur, Bad
Büro: Homeoffice!
Schlafgäste pro Jahr: zu Ostern und Weihnachten 3Personen
geschlossene Architektur
konservative Bauweise
offene Küche zum Esszimmer
Anzahl Essplätze: 5
Wandkamin im Wohnzimmer mit Ethanol
Musik/Stereowand: ja
Balkon, Dachterrasse: nein
Garage, Carport: 1-oder Doppelgarage
Nutzgarten, Treibhaus: nein
Sonstiges: Flur so groß, dass ein Kinderwagen reingefahren und erst mal abgestellt werden kann z.B. wenn es draußen regnet; Treppe mit 1m breiten Stufen und bequem zum laufen (deswegen Doppel Podest); Wohnzimmer mind. 4,5m Breite; keine Direkte Verbindung zw. Eltern und Kinderzimmer; Treppenaufgang nicht im Schmutzbereich der Eingangstür; alle Innentüren in 985mm Durchgangsmaß; Esszimmer: Hebe-Schiebe-Tür in 3m breite
Hausentwurf
- Von wem stammt die Planung: -Do-it-Yourself
- Was gefällt besonders? Warum?
Doppelpodest-Treppe, Küche und Essen im Süden, Verkehrsfläche auf Nord-Ost-Seite; große Glasfläche im Esszimmer zum Garten, Küche in G-Form, Vergrößerung der Kinderzimmer mit Zwerchgiebeln; Flur sollte hoffentlich großzügig wirken obwohl er noch einen tacken breiter sein dürfte
- Was gefällt nicht? Warum?
Im Bad EG ist kein Platz für ein Pissoir
Keller ist noch nicht gut geplant glauben wir, wie bekommt man einen späteren Saunaraum gut abgetrennt?
Persönliches Preislimit fürs Haus, inkl. Ausstattung: 425.000€
- favorisierte Heiztechnik: Luft-Wasser-Wärmepumpe/Grabenkollektor + Kontrollierte-Wohnraumlüftung mit Wärmerückgewinnung + Fußbodenheizung
Wenn Ihr verzichten müsst, auf welche Details/Ausbauten
- könnt Ihr verzichten: Sichtdachstuhl
- könnt Ihr nicht verzichten: Dusche im WC-EG; Treppe mit geraden Stufen; Treppenaufgang außerhalb des Schmutzbereiches; Garderobe
Warum ist der Entwurf so geworden, wie er jetzt ist?
Viel lesen von Grundrissbewertungen hier, Input von Bauherren-Freunden; gefühlt 100h Grundrisse Zeichen
- Was macht ihn in Euren Augen besonders gut oder schlecht?
in unseren Augen sehr gute Platznutzung bei einem relativ kleinem Haus, angenehme Fluraufteilung
Was ist die wichtigste/grundlegende Frage zum Grundriss in 130 Zeichen zusammengefasst?
Ist dieser Grundriss so praktikabel?
Gibt’s Show-stopper die wir evtl. übersehen haben?
Anbei noch eigene Zeichnungen vom Sketchup / Geländeplan aus dem Bebauungsplan
Unser Grundstück wäre die Nummer [9]
Achtung: Im OG fehlen dummerweise die Fenster. Dort sind an den Giebenseiten 150x138cm geplant, die Zwerchgiebel jeweils ca. 200x138cm und im Treppenaufgang, Eltern und Bad noch zusätzlich ein Doppelflügelfenster 78x160cm





Größe des Grundstücks: 606m²
Hang: leichte Hanglage nach Norden (3m auf 34m Länge) Haus: Süd-Nord = 1meter Höhenunterschied
Grundflächenzahl: 0,35 (212m²)
Geschossflächenzahl: 0,40 (242m²)
Baufenster: in blau (ca. 11,8x14,5m)
Grenzbebauung: nein
Anzahl Stellplätze: 2
Geschossigkeit: zwei Vollgeschosse: EG+DG
Dachform: 38-42° Satteldach
Stilrichtung: klassisch
Firstrichtung: Süd-Nord
Maximale Höhen/Begrenzungen: nördliche traufseitige Wandhöhe über natürlichem Gelänge: 3,80m
weitere Vorgaben: Kniestock von OK Rohfussboden bis UK Fußpfette 0,50m (konstruktiv dann ca. 70cm innen)
Anforderungen der Bauherren
Stilrichtung, Dachform, Gebäudetyp: alles laut Bebauungsplan
Keller, Geschosse: KG+EG+DG
Anzahl der Personen, Alter: 28(w) + 30(m) + mind. 1 geplantes Kind
Raumbedarf im KG: Hobbyraum, HAR/Hauswirtschaftsraum, Speisekammer/Abstellplatz, später mal eine Sauna
Raumbedarf im EG: Wohnen, Essen+Küche, WC, Flur
Raumbedarf im DG: Eltern, Ankleide, Kind 1 + Kind 2, Flur, Bad
Büro: Homeoffice!
Schlafgäste pro Jahr: zu Ostern und Weihnachten 3Personen
geschlossene Architektur
konservative Bauweise
offene Küche zum Esszimmer
Anzahl Essplätze: 5
Wandkamin im Wohnzimmer mit Ethanol
Musik/Stereowand: ja
Balkon, Dachterrasse: nein
Garage, Carport: 1-oder Doppelgarage
Nutzgarten, Treibhaus: nein
Sonstiges: Flur so groß, dass ein Kinderwagen reingefahren und erst mal abgestellt werden kann z.B. wenn es draußen regnet; Treppe mit 1m breiten Stufen und bequem zum laufen (deswegen Doppel Podest); Wohnzimmer mind. 4,5m Breite; keine Direkte Verbindung zw. Eltern und Kinderzimmer; Treppenaufgang nicht im Schmutzbereich der Eingangstür; alle Innentüren in 985mm Durchgangsmaß; Esszimmer: Hebe-Schiebe-Tür in 3m breite
Hausentwurf
- Von wem stammt die Planung: -Do-it-Yourself
- Was gefällt besonders? Warum?
Doppelpodest-Treppe, Küche und Essen im Süden, Verkehrsfläche auf Nord-Ost-Seite; große Glasfläche im Esszimmer zum Garten, Küche in G-Form, Vergrößerung der Kinderzimmer mit Zwerchgiebeln; Flur sollte hoffentlich großzügig wirken obwohl er noch einen tacken breiter sein dürfte
- Was gefällt nicht? Warum?
Im Bad EG ist kein Platz für ein Pissoir
Keller ist noch nicht gut geplant glauben wir, wie bekommt man einen späteren Saunaraum gut abgetrennt?
Persönliches Preislimit fürs Haus, inkl. Ausstattung: 425.000€
- favorisierte Heiztechnik: Luft-Wasser-Wärmepumpe/Grabenkollektor + Kontrollierte-Wohnraumlüftung mit Wärmerückgewinnung + Fußbodenheizung
Wenn Ihr verzichten müsst, auf welche Details/Ausbauten
- könnt Ihr verzichten: Sichtdachstuhl
- könnt Ihr nicht verzichten: Dusche im WC-EG; Treppe mit geraden Stufen; Treppenaufgang außerhalb des Schmutzbereiches; Garderobe
Warum ist der Entwurf so geworden, wie er jetzt ist?
Viel lesen von Grundrissbewertungen hier, Input von Bauherren-Freunden; gefühlt 100h Grundrisse Zeichen
- Was macht ihn in Euren Augen besonders gut oder schlecht?
in unseren Augen sehr gute Platznutzung bei einem relativ kleinem Haus, angenehme Fluraufteilung
Was ist die wichtigste/grundlegende Frage zum Grundriss in 130 Zeichen zusammengefasst?
Ist dieser Grundriss so praktikabel?
Gibt’s Show-stopper die wir evtl. übersehen haben?
Anbei noch eigene Zeichnungen vom Sketchup / Geländeplan aus dem Bebauungsplan
Unser Grundstück wäre die Nummer [9]
Achtung: Im OG fehlen dummerweise die Fenster. Dort sind an den Giebenseiten 150x138cm geplant, die Zwerchgiebel jeweils ca. 200x138cm und im Treppenaufgang, Eltern und Bad noch zusätzlich ein Doppelflügelfenster 78x160cm
Mäh, eigentlich wollte ich uns noch kurz vorstellen aber ich kann den bearbeiten Button nicht mehr finden.
Das Grundstück zum Haus ist so gut wie gekauft, bald ist Notartermin.
Bitte alle Kommentare und Gedanken unverschönt weitergeben, wir freuen uns auf jeden Input und/oder kreativen Vorschlag
Das Grundstück zum Haus ist so gut wie gekauft, bald ist Notartermin.
Bitte alle Kommentare und Gedanken unverschönt weitergeben, wir freuen uns auf jeden Input und/oder kreativen Vorschlag
Mal so drei Spontane Dinge:
Nur ein Mini-Fenster im Wohnzimmer?
Spätestens mit Kind werdet ihr da mehr tun, als nur TV schauen
Lichtschacht 3D passt nicht zum Plan oder hab ich nen Verständnisproblem
Die Asymmetrie der Giebel finde ich sehr ungewöhnlich. Mhmm. Aber eigentlich auch egal. Unsicher.
Nur ein Mini-Fenster im Wohnzimmer?
Spätestens mit Kind werdet ihr da mehr tun, als nur TV schauen
Lichtschacht 3D passt nicht zum Plan oder hab ich nen Verständnisproblem
Die Asymmetrie der Giebel finde ich sehr ungewöhnlich. Mhmm. Aber eigentlich auch egal. Unsicher.
Hi, da hast du vollkommen recht! Beim Keller sind wir uns noch sehr unschlüssig.
Die Fenster Situation im Wohnzimmer ist schon nicht so super ideal, aber die Optionen sind irgendwie nur: Fenster hinter dem Fernseher oder Fenster auf der Nordseite :/
Die Doppelflügeltür zum Essen ist 2110x1960mm und großteils aus Glas. Das Fenster soll eine 1300x2300mm Terrassentür sein, wo dann die späte nachmittags/Abendsonne rein scheint.
Giebel hatten wir erst symmetrisch aber dann ist der treppenaufgang über 4m hoch mit einem unerreichbarem Fenster.
Die Fenster Situation im Wohnzimmer ist schon nicht so super ideal, aber die Optionen sind irgendwie nur: Fenster hinter dem Fernseher oder Fenster auf der Nordseite :/
Die Doppelflügeltür zum Essen ist 2110x1960mm und großteils aus Glas. Das Fenster soll eine 1300x2300mm Terrassentür sein, wo dann die späte nachmittags/Abendsonne rein scheint.
Giebel hatten wir erst symmetrisch aber dann ist der treppenaufgang über 4m hoch mit einem unerreichbarem Fenster.
Ähnliche Themen