Grundriss für "mid sized tiny house" / Einfamilienhaus mit knapp 100qm

4,80 Stern(e) 9 Votes
Zuletzt aktualisiert 24.11.2025
Sie befinden sich auf der Seite 7 der Diskussion zum Thema: Grundriss für "mid sized tiny house" / Einfamilienhaus mit knapp 100qm
>> Zum 1. Beitrag <<

Y

ypg

Ja, darfst Du.
Scanhaus Marlow als Beispiel. Da geht aber wieder super vieles extra, also Kosten.
Aber massiv ist ja günstiger, also werfe ich mal Team Massivhaus in den Raum.
100qm ab 145000... etwas einiges an Extras plus Treppe nach oben zum ausgebauten Gästebereich sind wir bei 200000.
 
G

Grillhendl

Als Grundrissvorschlag für ein 1,5 geschossiges Haus würde ich noch das Haus „Hans“ von der Akost mal in den Raum werfen. Das hat 97qm
 
E

evelinoz

warum ein quadratisches Haus und nicht ein länglicher Bungalow?


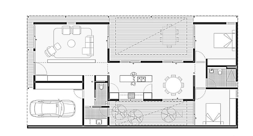
Grundriss eines Hauses mit Wohnzimmer, offener Küche mit Insel, Essbereich, Garage und Terrasse.


die Garage wäre dann der Technikraum, Waschmaschine ist im plan anschließend an die Garage.
 
Climbee

Climbee

Prinzipiell sehe ich hier auch eher einen Bungalow, aber auch wenn das Beispiel von evelinoz echt cool ist, dürfte das den Preisrahmen sprengen. Ecken, Vorsprünge, Einbuchtungen - das alles kostet extra. Ich würde einen Bungalow mit einem privaten Bereich (die zwei Zimmer und Bad) und einen öffentlichen Bereich hier als die beste Lösung sehen. Schlichte Rechtecksform und ggf. die Möglichkeit unter's Dach noch ein Gästezimmerchen zu bauen und den Rest als Stauraum zu verwenden für Dinge, die man nicht so häufig braucht.

Der Vorschlag kam hier schon mal, ich weiß aber nicht mehr, wer es war (haydee? ypg?)
 
Y

ypg

Der Vorschlag kam hier schon mal, ich weiß aber nicht mehr, wer es war (haydee? ypg?)
Ich seh das genauso! Du meintest mich.
Und da der Bauort in Brandenburg liegen soll, wo die Baupreise noch realistisch sind, bzw das günstige Niedersachsen mit ihren Baufirmen nicht weit sind, bekommt man das auch gut mit 200000 nur fürs Haus hin.
 
Zuletzt aktualisiert 24.11.2025
Im Forum Grundrissplanung / Grundstücksplanung gibt es 2536 Themen mit insgesamt 88008 Beiträgen


Ähnliche Themen zu Grundriss für "mid sized tiny house" / Einfamilienhaus mit knapp 100qm
Nr.ErgebnisBeiträge
1Grundrissplanung Bungalow 130/140 qm - Seite 324
2Grundriss Bungalow 125qm konisches Grundstück - Seite 239
3Scanhaus Marlow Erfahrungen, Preise? 36
4Bungalow mit 140qm und Garage im Grundriss - Seite 213
5Bungalow mit Walmdach - Dachausbau sinnvoll? - Seite 221
6Bungalow Grundriss Max. 140 m² - Masse laut der Norm ok? 64
7Bungalow - macht das auf einem solchen Grundstück Sinn? 21
8Neubau unter 400k€ eigentlich noch möglich? 133
9grobe Grundstücksplanung 819m² 53
10Grundriss Bungalow 160qm - Ihre Einschätzungen? 15
11Meinungen zum Grundriss Bungalow 42
12Grundrissplanung Bungalow planen 46
13Entwurf Grundriss Bungalow - Eure Meinungen bitte! 14
14Grundriss Bungalow auf Bodenplatte ca 110 qm - Seite 457
15Bebaute Fläche: Gehören Garage / Carport zur bebauten Fläche? 19
16Bungalow Grundrissdiskussion 169 qm 14
17Grundriss Bungalow - Was gibt es zu beachten? - Seite 6164
18Grundriss Bungalow 150m² - Meinungen erwünscht - Seite 430
19Haus und Garage - Ideen für die Planung erwünscht - Seite 221
20Bungalow mit Satteldach, Randbebauung, 8×17 Meter - Seite 10143

Oben