Grundriss für ein 200m2 HangHaus mit Einliegerwohnung am

4,60 Stern(e) 5 Votes
Zuletzt aktualisiert 23.11.2025
Sie befinden sich auf der Seite 2 der Diskussion zum Thema: Grundriss für ein 200m2 HangHaus mit Einliegerwohnung am
>> Zum 1. Beitrag <<

M

moooooo32

Liegt die Statik schon vor und wurde diese mit eingepreist?

Je nachdem wie die Rückwand auszusehen hat und evlt. die Decke zwischen UG und EG und die Bodenplatte ist euer Baunebenkosten-Budget fast weg
Da schaue ich nochmal ins Angebot, die Rückwand ist als BetonWU Wand eingepreist, soweit ich weiß.
Eine genaue Statik liegt aber ziemlich sicher nicht vor. Auf das Baugrundgutachten warten wir, sollte letzte Woche kommen. Bodenplatte ist im Angebot enthalten.
Zur Decke steht dort: wird entsprechend Statischen Berechnungen als Betondecke eingebracht. Von Mehrkosten steht dort nichts (an anderen Stellen schon).
 
Ibdk14

Ibdk14

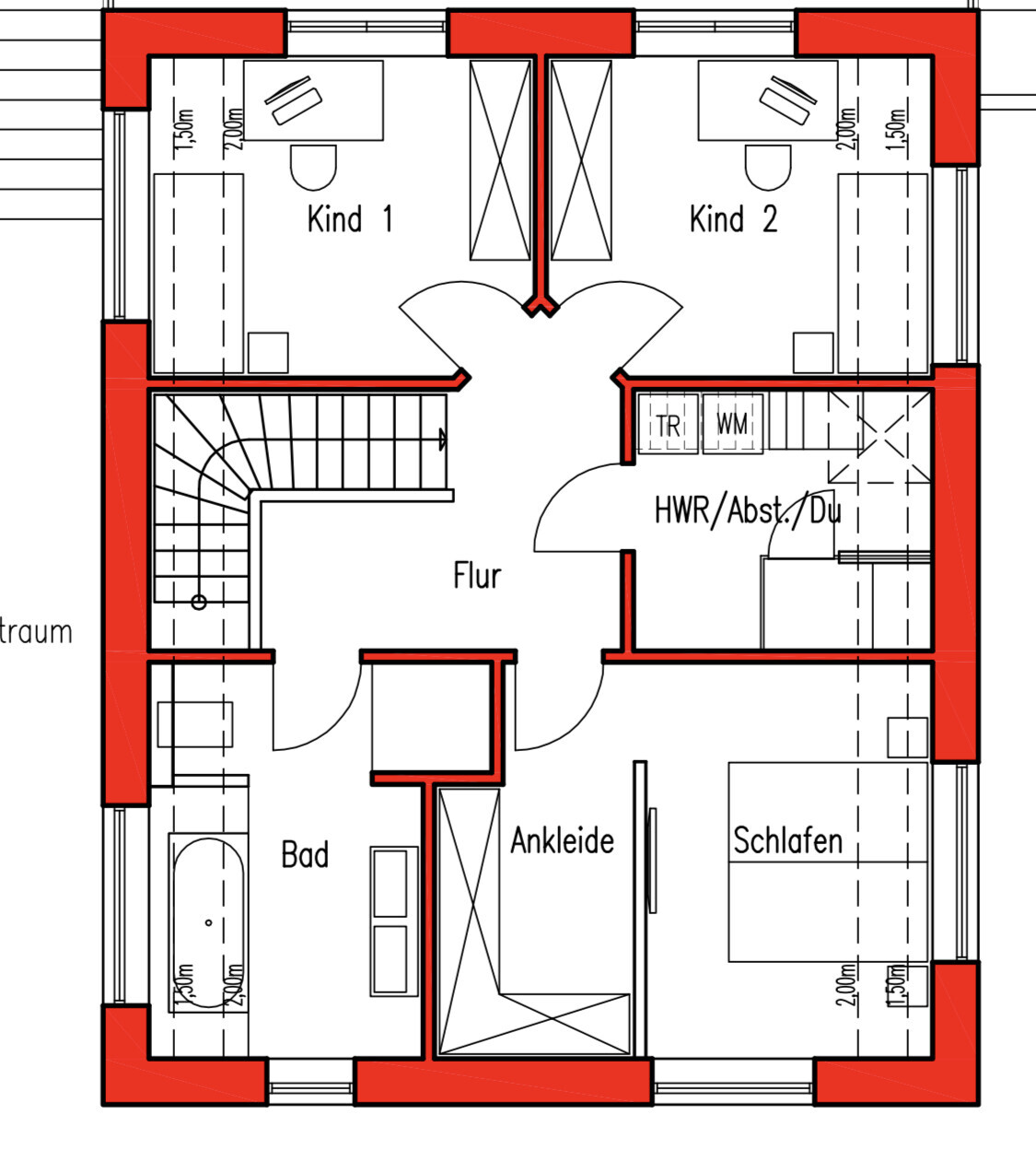
Was mir auf den ersten Blick nicht gefällt ist die Entfernung vom Schlafzimmer zum Bad für die 85jährige. Wenn ich sehe, wie oft meine Eltern nachts aufstehen!
Die Dusche im Treppenauge ist auch etwas seltsam. Wie funktioniert da die Entwässerung?
 
M

moooooo32

Was mir auf den ersten Blick nicht gefällt ist die Entfernung vom Schlafzimmer zum Bad für die 85jährige. Wenn ich sehe, wie oft meine Eltern nachts aufstehen!
Die Dusche im Treppenauge ist auch etwas seltsam. Wie funktioniert da die Entwässerung?
Ja, verstehe ich, ist bei meiner Oma natürlich auch so, habe nur keine kreative Idee, wie man das lösen könnte. Aber werde es nochmal ansprechen. Hatten die Badezimmer extra übereinander gelegt bei der Planung.
Entwässerung keine Ahnung fand es cool, dass der Flur nicht ungenutzt ist. Es gibt noch eine Variante wo die Tür und Flur dort ist, wo die Dusche ist und die Dusche in einer Nische zur Schlafzimmerwand. Dann wäre auch der Flur heller?
Die Dusche zwar kleiner, aber das finde ich nicht schlimm.

Grundriss eines Obergeschosses mit zwei Kinderzimmern, Flur, Bad, Ankleide und Schlafzimmer.
 
M

Myrna_Loy

Ja, verstehe ich, ist bei meiner Oma natürlich auch so, habe nur keine kreative Idee, wie man das lösen könnte. Aber werde es nochmal ansprechen. Hatten die Badezimmer extra übereinander gelegt bei der Planung.
Entwässerung keine Ahnung fand es cool, dass der Flur nicht ungenutzt ist. Es gibt noch eine Variante wo die Tür und Flur dort ist, wo die Dusche ist und die Dusche in einer Nische zur Schlafzimmerwand. Dann wäre auch der Flur heller?
Die Dusche zwar kleiner, aber das finde ich nicht schlimm.
Und die Sofaecke mit Schlafen tauschen?
 
H

haydee

Schau mal nach Bewährung und Betonstärke bei der Wand und im Boden.
Bei uns hat da der Statiker so viel reingehaut, dass der Bauunternehmer etwas laut wurde. Und das bei Bodenklasse 5/6.
Dazu wurde die Decke nochmal verstärkt. Es war ein großer 5stelliger Betrag.
Dann schau mal was alles als Bauseits deklariert wurde und dann noch die Kosten die fehlen wie Baustrom etc.
Der Preis vom Bauunternehmer klingt günstig für die heutige Zeit.

Einliegerwohnung
Wenn die Türen 1 Meter breit sind sollte es recht gut funktionieren. Richtet das Schlafzimmer (Bettposition) mal so ein, wie es später wirklich wird. Ich würde die Türe verschieben so dass sie vom Bett ohne an der Küche hängen zu bleiben Richtung Bad kommt.
Laßt die Vorwandinstallation an der Toilette verstärken, dass ein Griff befestigt werden kann.
Ich würde einen Durchgang eure Wohnung-Oma planen. Sie wird öfter mal Hilfe benötigen da ist der direkte Weg in Hausschuhen besser. Kann ja später verschlossen werden.

Wenn der Esstisch in eurem Bereich 2,6 m lang ist, könnte der Bereich etwas schmal werden für den einen Sitzplatz an der Wand zum Flur
 
PhiIipp

PhiIipp

Ich finde den Grundriss auf den ersten Blick gar nicht schlecht. Kann mir das schon ganz gut vorstellen.
Ein paar Dinge würden mich aber Stören.

Die Situation am Treppenaufgang im OG. In den meisten Fällen geht man zuerst in den Wohnbereich, wenn man aus dem UG kommt. Da muss man sich aber dann an der Gleaswand vorbei durch die Türe schlängeln.
Der ganze Bereich dort bleibt dann auch schlecht nutzbar. Stichwort: Kommoden, Schränke, Bilder... Im gesamten Wohnbereich würden mir die Stellflächen fehlen.

Außentüre HAR/Hauswirtschaftsraum. Warum ist der Zugang von außen vorgesehen? Mit ein wenig Tüftelei könnte man ihn vielleicht vom Flur 1 aus erreichen. Innentüren sind sehr viel günstiger als Außentüren.

Wie die Vorredner gefällt mir die Schlauchigkeit im UG nicht. Das ist keine schöne Wohnung. Das Wohnzimmer wird zur Autobahn und wenn ich aus der Dusche komme muss ich durch den "dreckigen" Eingangsbereich.
Der Grundriss hat in der Ausgangssituation das Potential für bessere Anordnungen.
 
Zuletzt aktualisiert 23.11.2025
Im Forum Grundrissplanung / Grundstücksplanung gibt es 2535 Themen mit insgesamt 87992 Beiträgen


Ähnliche Themen zu Grundriss für ein 200m2 HangHaus mit Einliegerwohnung am
Nr.ErgebnisBeiträge
1Wohnbereich Grundriss einplanen - Seite 462
2Bewertung Grundriss 3 Zi Wohnung 73
3Grundriss Zweifamilienhaus Wohnung EG und DG 25
4Bungalow mit 140qm und Garage im Grundriss 13
5Standard-Grundriss für Stadtvilla mit 130qm - Seite 425
6Grundriss altersgerechtes Wohnen (Neubau) in alter Hofanlage - Seite 234
7Meinungen zum Haus-Grundriss erwünscht - Seite 471
8Grundriss Bungalow 125qm konisches Grundstück - Seite 239
9Umbau bestehende EG Wohnung - zus. Büro 49
10Grundriss-Optimierung | Doppelhaushälfte am Hang mit 192m² Wohnfläche - Seite 1487
11Grundrissfrage: Tausch gerader Treppe durch L-Treppe 31
12Flur-Grundriss vergrößern REH von 1921: Tipps? 27
13Grundriss Einfamilienhaus barrierefrei fürs Alter mit Eltern-Schlafzimmer im EG - Seite 744
14Grundriss Schlafzimmer, Ankleide und Bad en Suite 36
15Hausbau 2.0 - erster Grundriss-Entwurf 155
16Grundriss nach erstem Planungsgespräch, 140m2 1,5-geschossig - Seite 963
17Größe begehbare Dusche - Seite 530
18Grundriss - Eure Meinungen, Ideen und Vorschläge 31
19Meinung zum Grundriss eines geplanten Bauhauses 23
20Badplanung - Spritzschutzwand der Walk-In Dusche lang genug? - Seite 214

Oben