ᐅ Grundriss für ein 200m2 HangHaus mit Einliegerwohnung am
Erstellt am: 25.01.22 11:00
M
moooooo3225.01.22 11:00Bebauungsplan/Einschränkungen
Größe des Grundstücks 388qm
Hang: Ja, nach Nordwest
Grundflächenzahl, Geschossflächenzahl: Darüber hat der Architekt noch nicht gesagt, wir bauen nach Paragraph 34
Baufenster, Baulinie und -grenze: Max Hausbreite 8.80m, ehemalige Hausläbge Altbestand 14m
Anzahl Stellplatz:
Geschossigkeit:
Dachform: Satteldach
Ausrichtung: entsprechend dem Hang, First auch Richtung Nordwest
Anforderungen der Bauherren
Stilrichtung, Dachform, Gebäudetyp: Satteldach
Keller, Geschosse: 2,5 + Spitzboden
Anzahl der Personen, Alter: 5 Personen (Familie zweimal 32, 5 und 2) und in Einliegerwohnung 1 Person (85)
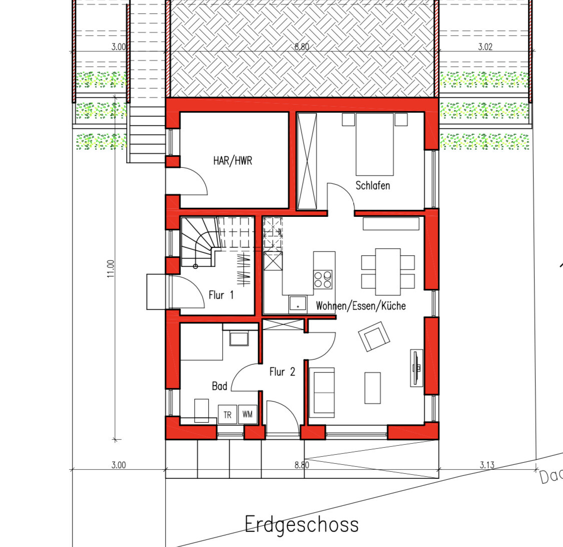
Raumbedarf im EG, OG: Einliegerwohnung ~ 50qm, Rest ~150qm
Büro: Familiennutzung oder Homeoffice? Office, da Lehrerpaar
Schlafgäste pro Jahr: variiert, aber viel Familie und Freunde aus ganz Deutschland
offene Küche, Kochinsel: Offen, gerne Kochinsel aber nicht ultimativ nötig
Anzahl Essplätze: 6-8
Kamin: erstmal nicht geplant, vllt jetzt anders durch den KFW Stopp
Balkon, Dachterrasse: Perspektivisch wäre vllt eine kleine „Dachterasse“ über der Terrasse der Einliegerwohnung nett, aber aus Kostengründen nicht mit eingeplant (Aussicht super)
Garage, Carport: es steht noch eine Garage (1995) auf dem Grundstück, an ungünstiger Stelle, die bleibt erstmal.
weitere Wünsche/Besonderheiten/Tagesablauf, gern auch Begründungen, warum dieses oder das nicht sein soll
Das Grundstück ist sehr eingebaut, daher haben wir versucht, die Stellen, an denen wir eine gute Aussicht haben, heraus zu arbeiten, das war lange Tüftelei von mir. Gute Aussicht nach Nordosten und Westen
Hausentwurf
Von wem stammt die Planung:
Architekt und Do-it-Yourself: Im Prinzip von mir, der Architekt, hatte dann so verändert, dass uns einiges nicht gefiel (UTreppe, Anordnung der anderen Räume schwierig), jetzt im Prinzip doch Zeichnung nach meinen Entwürfen, aber mit guten Verbesserungen vom Architekten
Was gefällt besonders? Warum? Treppe, Integration WC in OG, Lofttür zum Allraum als Verbindung zum „Treppenhaus“
Eingang in HAR soll noch unter die Treppe im EG, dafür die Wand der Einliegerwohnung verschoben,
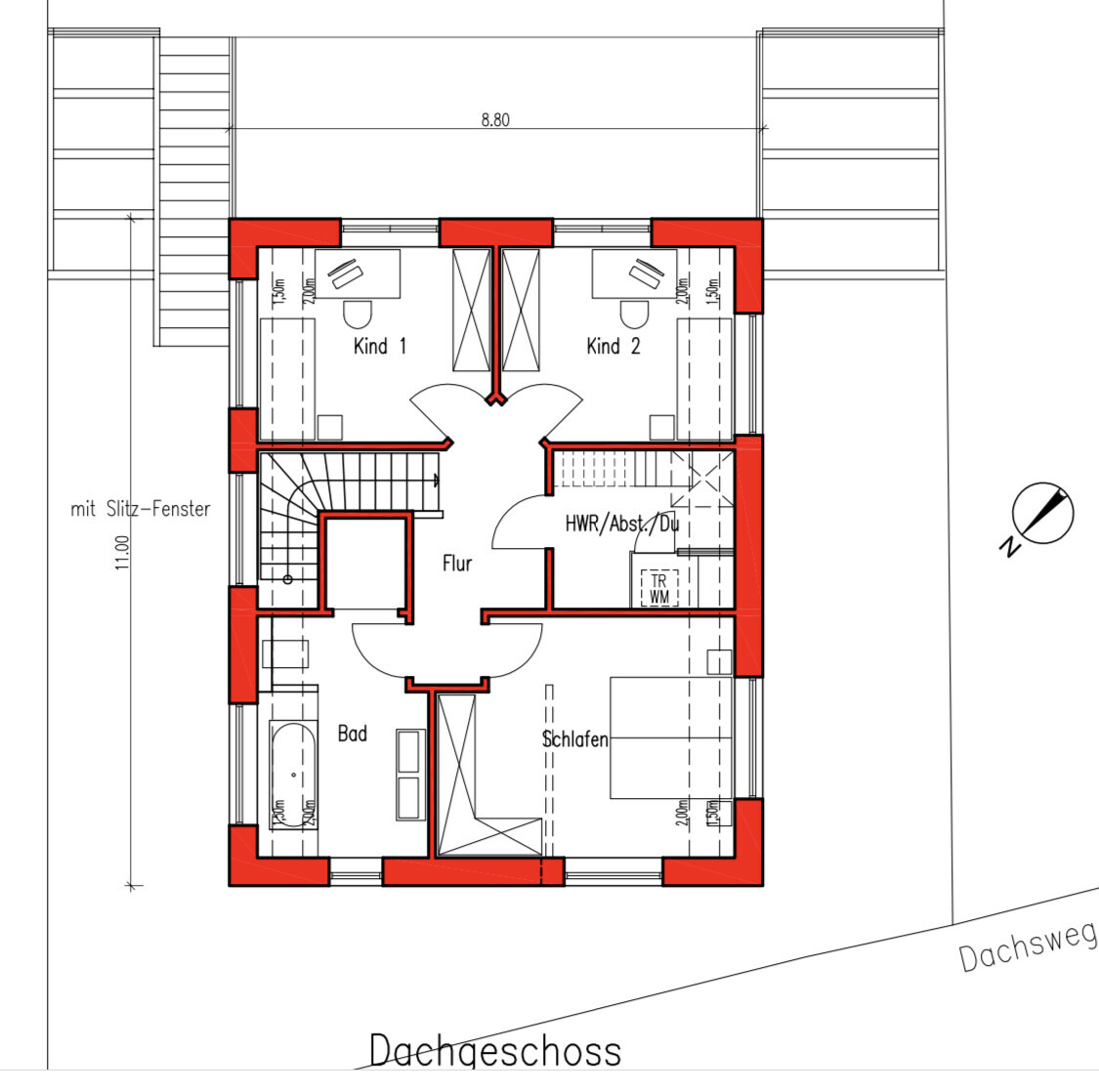
Kinderzimmer gleich groß, Raumspartreppe zum Spitzboden (Hammer Aussicht von dort), Nutzung des Spitzboden als Spielezimmer, ggf Gästeunterbringung ,
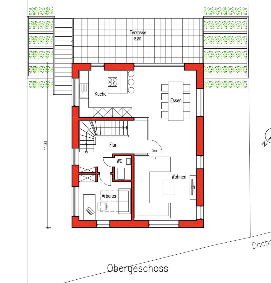
Wohnraumerhöhung (auf 2,70) im OG geplant.
Was gefällt nicht? Warum?
Eingang in HAR soll noch unter die Treppe im EG, dafür die Wand der Einliegerwohnung verschoben.
Fenster generell überarbeiten, im WZ Richtung Westen ggf als unechtes „Eckfenster“ (mit Stützfeiler) aufgrund von Aussicht.
Fenster in Küche Richtung Nordosten soll unbedingt als Sitzfenster
Preisschätzung lt Architekt/Planer:
Inkl Bodenarbeiten 540.000€, allerdings mit KFW 55, was wir aus zeittechnischen Gründen nicht geschafft haben einzureichen. Jetzt müssen wir generell gucken, da wir eigentlich KFW40 für 2 Wohneinheiten mitnehmen wollten 😡
Persönliches Preislimit fürs Haus, inkl Ausstattung: 540.000€ wären schon wünschenswert, Preissimulation der GUs kommt auch grob hin.
favorisierte Heiztechnik: Geplant war Wärmepumpe, natürlich Fußbodenheizung
Wenn Ihr verzichten müsst, auf welche Details/Ausbauten
-könnt Ihr verzichten: Spitzboden erst später, Glastür/Lofttür zum WZ erst später, geplant sind keine Hebeschiebetüren und sonstiger Schnickschnack
-könnt Ihr nicht verzichten: Holzboden denke ich, ausreichend Fenster, Barrierefreiheit im EG
Warum ist der Entwurf so geworden, wie er jetzt ist? ZB
Lange Tüftelei von meiner Seite aus, tlw Inspiration von Pintrest, insgesamt aber stark vorgebene Außenhülle
Was ist die wichtigste/grundlegende Frage zum Grundriss in 130 Zeichen zusammengefasst?
Gibt es was, was so nicht funktioniert? Haben wir was übersehen? Wie sieht es aus mit der Fensterplanung (die wollen wir noch überarbeiten), macht das so Sinn wie vom Architekten vorgeschlagen? Wir wollen ein paar der Fenster sogar streichen (Z.B. im Schlafzimmer)



Größe des Grundstücks 388qm
Hang: Ja, nach Nordwest
Grundflächenzahl, Geschossflächenzahl: Darüber hat der Architekt noch nicht gesagt, wir bauen nach Paragraph 34
Baufenster, Baulinie und -grenze: Max Hausbreite 8.80m, ehemalige Hausläbge Altbestand 14m
Anzahl Stellplatz:
Geschossigkeit:
Dachform: Satteldach
Ausrichtung: entsprechend dem Hang, First auch Richtung Nordwest
Anforderungen der Bauherren
Stilrichtung, Dachform, Gebäudetyp: Satteldach
Keller, Geschosse: 2,5 + Spitzboden
Anzahl der Personen, Alter: 5 Personen (Familie zweimal 32, 5 und 2) und in Einliegerwohnung 1 Person (85)
Raumbedarf im EG, OG: Einliegerwohnung ~ 50qm, Rest ~150qm
Büro: Familiennutzung oder Homeoffice? Office, da Lehrerpaar
Schlafgäste pro Jahr: variiert, aber viel Familie und Freunde aus ganz Deutschland
offene Küche, Kochinsel: Offen, gerne Kochinsel aber nicht ultimativ nötig
Anzahl Essplätze: 6-8
Kamin: erstmal nicht geplant, vllt jetzt anders durch den KFW Stopp
Balkon, Dachterrasse: Perspektivisch wäre vllt eine kleine „Dachterasse“ über der Terrasse der Einliegerwohnung nett, aber aus Kostengründen nicht mit eingeplant (Aussicht super)
Garage, Carport: es steht noch eine Garage (1995) auf dem Grundstück, an ungünstiger Stelle, die bleibt erstmal.
weitere Wünsche/Besonderheiten/Tagesablauf, gern auch Begründungen, warum dieses oder das nicht sein soll
Das Grundstück ist sehr eingebaut, daher haben wir versucht, die Stellen, an denen wir eine gute Aussicht haben, heraus zu arbeiten, das war lange Tüftelei von mir. Gute Aussicht nach Nordosten und Westen
Hausentwurf
Von wem stammt die Planung:
Architekt und Do-it-Yourself: Im Prinzip von mir, der Architekt, hatte dann so verändert, dass uns einiges nicht gefiel (UTreppe, Anordnung der anderen Räume schwierig), jetzt im Prinzip doch Zeichnung nach meinen Entwürfen, aber mit guten Verbesserungen vom Architekten
Was gefällt besonders? Warum? Treppe, Integration WC in OG, Lofttür zum Allraum als Verbindung zum „Treppenhaus“
Eingang in HAR soll noch unter die Treppe im EG, dafür die Wand der Einliegerwohnung verschoben,
Kinderzimmer gleich groß, Raumspartreppe zum Spitzboden (Hammer Aussicht von dort), Nutzung des Spitzboden als Spielezimmer, ggf Gästeunterbringung ,
Wohnraumerhöhung (auf 2,70) im OG geplant.
Was gefällt nicht? Warum?
Eingang in HAR soll noch unter die Treppe im EG, dafür die Wand der Einliegerwohnung verschoben.
Fenster generell überarbeiten, im WZ Richtung Westen ggf als unechtes „Eckfenster“ (mit Stützfeiler) aufgrund von Aussicht.
Fenster in Küche Richtung Nordosten soll unbedingt als Sitzfenster
Preisschätzung lt Architekt/Planer:
Inkl Bodenarbeiten 540.000€, allerdings mit KFW 55, was wir aus zeittechnischen Gründen nicht geschafft haben einzureichen. Jetzt müssen wir generell gucken, da wir eigentlich KFW40 für 2 Wohneinheiten mitnehmen wollten 😡
Persönliches Preislimit fürs Haus, inkl Ausstattung: 540.000€ wären schon wünschenswert, Preissimulation der GUs kommt auch grob hin.
favorisierte Heiztechnik: Geplant war Wärmepumpe, natürlich Fußbodenheizung
Wenn Ihr verzichten müsst, auf welche Details/Ausbauten
-könnt Ihr verzichten: Spitzboden erst später, Glastür/Lofttür zum WZ erst später, geplant sind keine Hebeschiebetüren und sonstiger Schnickschnack
-könnt Ihr nicht verzichten: Holzboden denke ich, ausreichend Fenster, Barrierefreiheit im EG
Warum ist der Entwurf so geworden, wie er jetzt ist? ZB
Lange Tüftelei von meiner Seite aus, tlw Inspiration von Pintrest, insgesamt aber stark vorgebene Außenhülle
Was ist die wichtigste/grundlegende Frage zum Grundriss in 130 Zeichen zusammengefasst?
Gibt es was, was so nicht funktioniert? Haben wir was übersehen? Wie sieht es aus mit der Fensterplanung (die wollen wir noch überarbeiten), macht das so Sinn wie vom Architekten vorgeschlagen? Wir wollen ein paar der Fenster sogar streichen (Z.B. im Schlafzimmer)
M
moooooo3225.01.22 11:56Da Altbestand abgerissen wird, ist die zu bebauende Fläche quasi eben, lediglich die Wand vorm Hang (Beton) muss verfüllt werden, da der Altbestand tiefer in den Hang rein reicht.
Der Abriss ist ist im Grundstückspreis enthalten und exklusive. Das teurere Angebot vom GU (mit recht guter Ausstattung) liegt bei 470t plus Baunebenkosten. Zugegebenermaßen ist die Küche noch on Top, haben einen Puffer von 30t €, den wir nicht einbringen, der auch u.a. für die Küche herhalten könnte.
So unrealistisch?
Edit: Die Zeichnung der Wände meinst du mit 55er Bau? Hier ist schon der KFW 40 Standard eingezeichnet, der es jetzt wohl nicht wird. Die Zusatzkosten kämen wohl in Top.
Der Abriss ist ist im Grundstückspreis enthalten und exklusive. Das teurere Angebot vom GU (mit recht guter Ausstattung) liegt bei 470t plus Baunebenkosten. Zugegebenermaßen ist die Küche noch on Top, haben einen Puffer von 30t €, den wir nicht einbringen, der auch u.a. für die Küche herhalten könnte.
So unrealistisch?
Edit: Die Zeichnung der Wände meinst du mit 55er Bau? Hier ist schon der KFW 40 Standard eingezeichnet, der es jetzt wohl nicht wird. Die Zusatzkosten kämen wohl in Top.
Das Budget wird nicht reichen.
Es fehlen Maße um was zu sagen.
Zeichnet immer eure vorhandenen und gewünschten Möbel im Maßstaab ein. Bewegungsräume berücksichtigen. So merkt ihr am ehesten was paßt.
Wie rüstig ist die 85 jährige Person? Wie lange (bis zu welchem Handycap) soll sie in der Einliegerwohnung leben? Was habt ihr mit der Wohnung danach vor?
Es fehlen Maße um was zu sagen.
Zeichnet immer eure vorhandenen und gewünschten Möbel im Maßstaab ein. Bewegungsräume berücksichtigen. So merkt ihr am ehesten was paßt.
Wie rüstig ist die 85 jährige Person? Wie lange (bis zu welchem Handycap) soll sie in der Einliegerwohnung leben? Was habt ihr mit der Wohnung danach vor?
M
moooooo3225.01.22 12:02haydee schrieb:
Das Budget wird nicht reichen.
Es fehlen Maße um was zu sagen.
Zeichnet immer eure vorhandenen und gewünschten Möbel im Maßstaab ein. Bewegungsräume berücksichtigen. So merkt ihr am ehesten was paßt.
Wie rüstig ist die 85 jährige Person? Wie lange (bis zu welchem Handycap) soll sie in der Einliegerwohnung leben? Was habt ihr mit der Wohnung danach vor?Zum Budget habe ich eben oben etwas geschrieben, Gedanken dazu?
Die Maße stimmen größtenteils schon über ein, die Couch ist aus unserer Sicht überdimensioniert, der Esstisch mit ca 2,60m Länge auch eher groß.
Die 85Jährige braucht einen Rollator, die Türen werden 1,00 m breit, das Bad enthält ungefähr Abstandsflächen der Barrierefreiheit soweit ich weiß.
Genauere bemaßt Pläne habe ich noch nicht leider.
Danach soll die Wohnung vermietet werden, daher u.a. der separate Eingang
Ähnliche Themen