ᐅ Grundrissplanung für Einfamilienhaus mit Einliegerwohnung
Erstellt am: 06.03.24 00:38
S
Sleepwalker1S
Sleepwalker106.03.24 00:38Liebe Forenmitglieder,
ich lese hier nun schon einige Zeit mit und konnte auch schon etliche hilfreiche Informationen für unseren geplanten Hausbau sammeln. Hierfür schon einmal vielen Dank!
Wir haben jetzt unseren Grundriss soweit geplant und ich würde mich nun über euren fachlichen Input zu unseren Entwürfen freuen.
P.S. Da die Lage/Ausrichtung von Haus und Garage auf dem Eckgrundstück ziemlich fix und bebauungsplankonform ist, geht es mir in erster Linie um die Dimensionierung der Räume und ob die Raumaufteilung eurer Meinung nach in der Realität so funktioniert. Aber ich bin natürlich offen für sämtliche Anregungen und Verbesserungsvorschläge.
Vielen Dank bereits im Voraus!
Liebe Grüße
Bebauungsplan/Einschränkungen
Größe des Grundstücks: 880 m²
Hang: von Süd nach Nord 3 Meter Gefälle (siehe Anhang Vermessung)
Grundflächenzahl: 0,4
Geschossflächenzahl: 0,8
Baufenster, Baulinie und -grenze: 3 Meter
Randbebauung: Garage direkt an Nachbargrundstück bis 9 m Länge
Anzahl Stellplatz: 2
Anforderungen der Bauherren
ohne Keller, 2 Vollgeschosse
Anzahl der Personen, Alter: 4 Personen (2 Erwachsene Mitte 30, 1 Kleinkind, 1 Kind noch geplant)
Büro: gelegentliches Homeoffice (2 Tage/Woche)
Schlafgäste pro Jahr: vielleicht 4-5 mal
offene Architektur
offene Küche mit Kochinsel
Anzahl Essplätze: 8
KFW-konform EH 40 (mit Einliegerwohnung)
evtl. Kamin vorbereiten (Einbau aufgrund KFW nicht erlaubt)
Garage mit Abstellraum und Carport (fungiert zugleich als Eingangsüberdachung)
Hausentwurf
Von wem stammt die Planung: Architekt
Was gefällt besonders? offener Wohn-/Essbereich, Hauswirtschaftsraum im OG, Abstellkammer mit Gefrierschrank unter Treppe, "Dreckschleuse" im Technikraum, Einliegerwohnung, Podesttreppe, Carport zugleich Eingangsüberdachung
Was gefällt nicht? evtl. das Büro
Preisschätzung laut Architekt: 500.000 €
Persönliches Preislimit fürs Haus, inkl. Ausstattung: ca. 550.000 € (plus Eigenleistung)
favorisierte Heiztechnik: Luft-Wasser-Wärmepumpe
Wenn Ihr verzichten müsst, auf welche Details/Ausbauten
separate Ankleide, T-Lösung im Bad
Warum ist der Entwurf so geworden, wie er jetzt ist?
aufgrund unserer individuellen Vorstellungen und Wünsche





ich lese hier nun schon einige Zeit mit und konnte auch schon etliche hilfreiche Informationen für unseren geplanten Hausbau sammeln. Hierfür schon einmal vielen Dank!
Wir haben jetzt unseren Grundriss soweit geplant und ich würde mich nun über euren fachlichen Input zu unseren Entwürfen freuen.
P.S. Da die Lage/Ausrichtung von Haus und Garage auf dem Eckgrundstück ziemlich fix und bebauungsplankonform ist, geht es mir in erster Linie um die Dimensionierung der Räume und ob die Raumaufteilung eurer Meinung nach in der Realität so funktioniert. Aber ich bin natürlich offen für sämtliche Anregungen und Verbesserungsvorschläge.
Vielen Dank bereits im Voraus!
Liebe Grüße
Bebauungsplan/Einschränkungen
Größe des Grundstücks: 880 m²
Hang: von Süd nach Nord 3 Meter Gefälle (siehe Anhang Vermessung)
Grundflächenzahl: 0,4
Geschossflächenzahl: 0,8
Baufenster, Baulinie und -grenze: 3 Meter
Randbebauung: Garage direkt an Nachbargrundstück bis 9 m Länge
Anzahl Stellplatz: 2
Anforderungen der Bauherren
ohne Keller, 2 Vollgeschosse
Anzahl der Personen, Alter: 4 Personen (2 Erwachsene Mitte 30, 1 Kleinkind, 1 Kind noch geplant)
Büro: gelegentliches Homeoffice (2 Tage/Woche)
Schlafgäste pro Jahr: vielleicht 4-5 mal
offene Architektur
offene Küche mit Kochinsel
Anzahl Essplätze: 8
KFW-konform EH 40 (mit Einliegerwohnung)
evtl. Kamin vorbereiten (Einbau aufgrund KFW nicht erlaubt)
Garage mit Abstellraum und Carport (fungiert zugleich als Eingangsüberdachung)
Hausentwurf
Von wem stammt die Planung: Architekt
Was gefällt besonders? offener Wohn-/Essbereich, Hauswirtschaftsraum im OG, Abstellkammer mit Gefrierschrank unter Treppe, "Dreckschleuse" im Technikraum, Einliegerwohnung, Podesttreppe, Carport zugleich Eingangsüberdachung
Was gefällt nicht? evtl. das Büro
Preisschätzung laut Architekt: 500.000 €
Persönliches Preislimit fürs Haus, inkl. Ausstattung: ca. 550.000 € (plus Eigenleistung)
favorisierte Heiztechnik: Luft-Wasser-Wärmepumpe
Wenn Ihr verzichten müsst, auf welche Details/Ausbauten
separate Ankleide, T-Lösung im Bad
Warum ist der Entwurf so geworden, wie er jetzt ist?
aufgrund unserer individuellen Vorstellungen und Wünsche
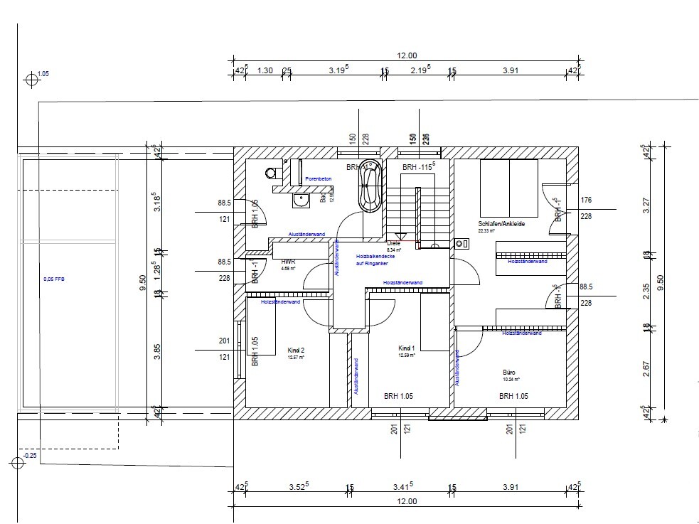
Ich sage, dass hier zuerst das EG geplant wurde und dann hat man sich des unbeliebten OGs angenommen...
Die Einliegerwohnung ist vieles, aber keine richtige Einliegerwohnung, da sie den gleichen Eingang nutzt und nicht separiert ist. Nimmt man es ganz genau teilt Ihr Euch durch das offene Raumkonzept eine Küche und ein Wohnzimmer...
Da ohne die Einliegerwohnung auch kein Gäste-WC im EG existiert, vermute ich, dass hier einfach Förderung verdoppelt werden soll und die (Wohnungs-)Tür zur Einliegerwohnung bleibt durchgängig auf? Falls ja, schaut Euch die Vorgaben nochmal ganz genau an. Ihr seid nicht die ersten, die auf diese Idee kommen...
Wozu ist die zusätzliche Ecke im Hauswirtschaftsraum/Technik gedacht (Planrechts)? Getränke abstellen in der "Speisekammer" oder Gefrierschrank?
Die "Speisekammer" funktioniert als solche durch die fehlenden Abstellmöglichkeiten und Regale nicht.
Der Hauswirtschaftsraum funktioniert so nicht gut. Der Hauswirtschaftsraum ist derzeit zu 50% Verkehrsfläche. Wenn man die Türen sich gegenüberliegend setzen würde, hätte man zumindest planrechts im Raum die Chance, nennenswert Platz für Technik zu haben.
Das OG ist verwinkelt und steht in völligem Kontrast zum großzügigen offenen Konzept des Wohn- und Essbereichs. Bei der Entwicklung des OGs hieß es "Mist, ich hab noch Zimmer übrig, wie werde ich die los?"
Der Flur ist groß aber beengt, von Tageslicht hat er mal was gehört, aber in der Realität kommt oben wenig an, vor allem bei der Kinderecke.
Für was ist die Aussparung vom Bad Richtung Hauswirtschaftsraum geplant? Einbauschrank?
Im Schlafzimmer ist der Kaminzug sehr präsent. Da ihr dort eh keinen Kamin / Bollerofen / etc. installieren könnt, da er mitten in der Verkehrsfläche stehen würde, würde ich den Kaminzug versuchen, besser zu verstecken. Bedeutet ohne vorstehende Wandnase.
Besser wäre natürlich, den Kaminzug ganz wegzulassen, wenn er lt. KFW eh nicht genutzt werden darf. Aber ich gehe davon aus, dass die Regeln wie bei der "Einliegerwohnung" kreativ ausgelegt werden?
Alles in allem gefällt mir ein Viertel des Grundrisses (EG planrechts). Dass ein Architekt das verbrochen haben soll, kann ich mir kaum vorstellen...
War es evtl. ein "Architekt" eines GU, der Eure Wünsche 1:1 auf Papier gebracht hat, ohne nachzudenken?
Die Einliegerwohnung ist vieles, aber keine richtige Einliegerwohnung, da sie den gleichen Eingang nutzt und nicht separiert ist. Nimmt man es ganz genau teilt Ihr Euch durch das offene Raumkonzept eine Küche und ein Wohnzimmer...
Da ohne die Einliegerwohnung auch kein Gäste-WC im EG existiert, vermute ich, dass hier einfach Förderung verdoppelt werden soll und die (Wohnungs-)Tür zur Einliegerwohnung bleibt durchgängig auf? Falls ja, schaut Euch die Vorgaben nochmal ganz genau an. Ihr seid nicht die ersten, die auf diese Idee kommen...
Wozu ist die zusätzliche Ecke im Hauswirtschaftsraum/Technik gedacht (Planrechts)? Getränke abstellen in der "Speisekammer" oder Gefrierschrank?
Die "Speisekammer" funktioniert als solche durch die fehlenden Abstellmöglichkeiten und Regale nicht.
Der Hauswirtschaftsraum funktioniert so nicht gut. Der Hauswirtschaftsraum ist derzeit zu 50% Verkehrsfläche. Wenn man die Türen sich gegenüberliegend setzen würde, hätte man zumindest planrechts im Raum die Chance, nennenswert Platz für Technik zu haben.
Das OG ist verwinkelt und steht in völligem Kontrast zum großzügigen offenen Konzept des Wohn- und Essbereichs. Bei der Entwicklung des OGs hieß es "Mist, ich hab noch Zimmer übrig, wie werde ich die los?"
Der Flur ist groß aber beengt, von Tageslicht hat er mal was gehört, aber in der Realität kommt oben wenig an, vor allem bei der Kinderecke.
Für was ist die Aussparung vom Bad Richtung Hauswirtschaftsraum geplant? Einbauschrank?
Im Schlafzimmer ist der Kaminzug sehr präsent. Da ihr dort eh keinen Kamin / Bollerofen / etc. installieren könnt, da er mitten in der Verkehrsfläche stehen würde, würde ich den Kaminzug versuchen, besser zu verstecken. Bedeutet ohne vorstehende Wandnase.
Besser wäre natürlich, den Kaminzug ganz wegzulassen, wenn er lt. KFW eh nicht genutzt werden darf. Aber ich gehe davon aus, dass die Regeln wie bei der "Einliegerwohnung" kreativ ausgelegt werden?
Alles in allem gefällt mir ein Viertel des Grundrisses (EG planrechts). Dass ein Architekt das verbrochen haben soll, kann ich mir kaum vorstellen...
War es evtl. ein "Architekt" eines GU, der Eure Wünsche 1:1 auf Papier gebracht hat, ohne nachzudenken?
Ich bekomme das Geschoss EG - ehrlich gesagt - mit dem Hang nicht zusammen. Das passt nicht - da sind doch ca. 1,5 Meter Differenz? -0,25 / -1,75
Was sind denn das für Leer-Nischen: im EG im Hauswirtschaftsraum und im Bad OG? Auch die Wanddicken … sorry, das war/ist kein Architekt, der das geplant hat. Muss eine Einliegerwohnung nicht mindestens 26qm haben?
Ich fühle mich veräppelt!
Was sind denn das für Leer-Nischen: im EG im Hauswirtschaftsraum und im Bad OG? Auch die Wanddicken … sorry, das war/ist kein Architekt, der das geplant hat. Muss eine Einliegerwohnung nicht mindestens 26qm haben?
Ich fühle mich veräppelt!
Wo soll die Terrasse hin? Sicherlich irgendwo in der Nähe der Küche und dies ist gleichzeitig der Bereich wo an meisten aufgeschüttet werden soll. Wie soll die Geländesicherung ausschauen und was der Bebauungsplan zu diesem Thema?
Ich persönlich würde den Entwurf in der Runden Ablage verschwinden lassen und mit einem guten Architekten neu starten.
Ich persönlich würde den Entwurf in der Runden Ablage verschwinden lassen und mit einem guten Architekten neu starten.
S
Schorsch_baut06.03.24 09:03Das ist keine Einliegerwohnung, das ist ein Gästezimmer mit eigenem Bad.
Eine Einliegerwohnung muss eine Grundfläche von mindestens 23 qm haben und eine eigene Haushaltsführung erlauben.
Eine Einliegerwohnung muss eine Grundfläche von mindestens 23 qm haben und eine eigene Haushaltsführung erlauben.
Ähnliche Themen