ᐅ Grundriss Entwurf Einfamilienhaus mit 10% Südhang. Hauseingang Podesttreppe
Erstellt am: 02.08.25 23:15
H
Hanger1Unsortierte Gedanken:
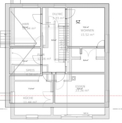
- Zugang Schlafzimmer /Ankleide ist nicht funktional. Man läuft gegen eine Wand, muss erstmal in die Ankleide ausweichen um dann die Tür zu schließen und von da ins Schlafzimmer zu kommen.
- Wohnzimmer sehr eng. Hat was von nem Blinddarm. Bitte mal maßstabsgetreu möblieren um zu schauen, ob man selbst damit zurecht kommt.
- Für das Carport werden die daran anliegenden Zimmer abgewertet (wegen Fenstern). Prioritäten?
- Ob die Küche so funktioniert, weiß ich auch nicht. Durch die vielen Türen wird die schon klein werden. Auch da: möblieren und schauen, ob es für einen selbst passt.
- Für die Grundfläche (11,11x9,49, soweit ich das sehe) kommt mir der Schnitt doch arg zerstückelt vor. Ich glaube, hier ließen sich größere Räume realisieren.
- Zugang Schlafzimmer /Ankleide ist nicht funktional. Man läuft gegen eine Wand, muss erstmal in die Ankleide ausweichen um dann die Tür zu schließen und von da ins Schlafzimmer zu kommen.
- Wohnzimmer sehr eng. Hat was von nem Blinddarm. Bitte mal maßstabsgetreu möblieren um zu schauen, ob man selbst damit zurecht kommt.
- Für das Carport werden die daran anliegenden Zimmer abgewertet (wegen Fenstern). Prioritäten?
- Ob die Küche so funktioniert, weiß ich auch nicht. Durch die vielen Türen wird die schon klein werden. Auch da: möblieren und schauen, ob es für einen selbst passt.
- Für die Grundfläche (11,11x9,49, soweit ich das sehe) kommt mir der Schnitt doch arg zerstückelt vor. Ich glaube, hier ließen sich größere Räume realisieren.
M
MachsSelbst08.09.25 08:02Der Türanschlag in der Ankleide muss auf jeden Fall andersrum sein.
Das Carport klaut kein Licht, weil im Bad ja eh nur Dachflächenfenster und im Kind3 ein Fenster vorgesehen ist. Aber das Carport ist mit Diegeldach schon mächtig und daher wahrscheinlich ziemlich teuer. Wers braucht...
Kind3 möchte man ehrlich gesagt nicht sein, schon Kind2 ist mit 13m² recht klein, wenn man sich überlegt, dass da irgendwann kein 3jähriges Kind, sondern ein 16jähriger Jugendlicher drin lebt...
Im EG hat sich wenig geändert. Der HAR ist unpraktisch groß, der Wohnraum durch viele kleine Räume eher ein Bunker, als ein wohnlicher Gesamtbereich. Die Speisekammer ist in den meisten Fällen unsinnig, Dosen und Konserven kann der Supermarkt um die Ecke besser lagern. Die 4m² mehr der Speisekammer täten der Größe der Küche auf jeden Fall gut.
Und ja, der Raum "Essen" wirkt jetzt stattlich, aber weil er so schmal und über Eck ist, wird das beengt, wenn erstmal ein Esstisch drinsteht. Und da muss man immer, bis an sein Lebensende dran vorbeitanzen, wenn man zum "Wohnen" oder auf die Terrasse will.
Und ein Teil des Raums ist verschenkt, denn der Esstisch geht nicht über Eck. Wenn man sich dran vorbeigequält hat, dann steht man wieder im Tanzbereich...
Das Carport klaut kein Licht, weil im Bad ja eh nur Dachflächenfenster und im Kind3 ein Fenster vorgesehen ist. Aber das Carport ist mit Diegeldach schon mächtig und daher wahrscheinlich ziemlich teuer. Wers braucht...
Kind3 möchte man ehrlich gesagt nicht sein, schon Kind2 ist mit 13m² recht klein, wenn man sich überlegt, dass da irgendwann kein 3jähriges Kind, sondern ein 16jähriger Jugendlicher drin lebt...
Im EG hat sich wenig geändert. Der HAR ist unpraktisch groß, der Wohnraum durch viele kleine Räume eher ein Bunker, als ein wohnlicher Gesamtbereich. Die Speisekammer ist in den meisten Fällen unsinnig, Dosen und Konserven kann der Supermarkt um die Ecke besser lagern. Die 4m² mehr der Speisekammer täten der Größe der Küche auf jeden Fall gut.
Und ja, der Raum "Essen" wirkt jetzt stattlich, aber weil er so schmal und über Eck ist, wird das beengt, wenn erstmal ein Esstisch drinsteht. Und da muss man immer, bis an sein Lebensende dran vorbeitanzen, wenn man zum "Wohnen" oder auf die Terrasse will.
Und ein Teil des Raums ist verschenkt, denn der Esstisch geht nicht über Eck. Wenn man sich dran vorbeigequält hat, dann steht man wieder im Tanzbereich...
H
hanghaus202308.09.25 10:20Danke für die Rückmeldung. Ich finde hier zumindest meinen Beitrag #26 bestätigt. MMn solltest noch um etwas abspecken. 160m2 * 3000 = 480k + CP und Nebenanlagen da wird es knapp. Wohn und Essbereich ist mMn sehr üppig.
So kannst das Haus etwas breiter machen. Was der Raumaufteilung im OG mMn zu gute kommt.

Ich würde das Hau um 1-2 Stufen höher setzen falls es die Höhe erlaubt. Das ist auch besser für die Massenbilanz.
Da wo CP/Eingang steht soll wohl eine überdachte Terrasse hin? Ansonsten sollte man da den CP um Abstellräume erweitern.
So kannst das Haus etwas breiter machen. Was der Raumaufteilung im OG mMn zu gute kommt.
Ich würde das Hau um 1-2 Stufen höher setzen falls es die Höhe erlaubt. Das ist auch besser für die Massenbilanz.
Da wo CP/Eingang steht soll wohl eine überdachte Terrasse hin? Ansonsten sollte man da den CP um Abstellräume erweitern.
H
hanghaus202308.09.25 12:05H
hanghaus202308.09.25 12:14MachsSelbst schrieb:
Der Türanschlag in der Ankleide muss auf jeden Fall andersrum sein.
Das Carport klaut kein Licht, weil im Bad ja eh nur Dachflächenfenster und im Kind3 ein Fenster vorgesehen ist. Aber das Carport ist mit Diegeldach schon mächtig und daher wahrscheinlich ziemlich teuer. Wers braucht...
Kind3 möchte man ehrlich gesagt nicht sein, schon Kind2 ist mit 13m² recht klein, wenn man sich überlegt, dass da irgendwann kein 3jähriges Kind, sondern ein 16jähriger Jugendlicher drin lebt...
Im EG hat sich wenig geändert. Der HAR ist unpraktisch groß, der Wohnraum durch viele kleine Räume eher ein Bunker, als ein wohnlicher Gesamtbereich. Die Speisekammer ist in den meisten Fällen unsinnig, Dosen und Konserven kann der Supermarkt um die Ecke besser lagern. Die 4m² mehr der Speisekammer täten der Größe der Küche auf jeden Fall gut.
Und ja, der Raum "Essen" wirkt jetzt stattlich, aber weil er so schmal und über Eck ist, wird das beengt, wenn erstmal ein Esstisch drinsteht. Und da muss man immer, bis an sein Lebensende dran vorbeitanzen, wenn man zum "Wohnen" oder auf die Terrasse will.
Und ein Teil des Raums ist verschenkt, denn der Esstisch geht nicht über Eck. Wenn man sich dran vorbeigequält hat, dann steht man wieder im Tanzbereich...Das Carportdach kommt uns auch zu wuchtig vor. Haben wir ebenfalls schon auf unsere Liste gesetzt das dies onch angepasst werden muss.Papierturm schrieb:
Unsortierte Gedanken:
- Zugang Schlafzimmer /Ankleide ist nicht funktional. Man läuft gegen eine Wand, muss erstmal in die Ankleide ausweichen um dann die Tür zu schließen und von da ins Schlafzimmer zu kommen.
- Wohnzimmer sehr eng. Hat was von nem Blinddarm. Bitte mal maßstabsgetreu möblieren um zu schauen, ob man selbst damit zurecht kommt.
- Für das Carport werden die daran anliegenden Zimmer abgewertet (wegen Fenstern). Prioritäten?
- Ob die Küche so funktioniert, weiß ich auch nicht. Durch die vielen Türen wird die schon klein werden. Auch da: möblieren und schauen, ob es für einen selbst passt.
Guter Punkt mit der Türe. Das macht wirklich so wenig Sinn.Wir werden die Tage den Grundriss möblieren. Das ist definitiv ein guter Tipp.
Wir waren bereits beim Küchenplaner und hatten eine Küche mit 3x4 12qm geplant und hier kommen wir gut hin bzw. kommt uns eher groß vor.
Geplant wäre hier noch gewesen, dass wir bei der Küche Ostseite eine schmale versteckte Türe in die Küche integriert wodurch wir ebenfalls Platz sparen könnten.
Wir haben aktuelle selbst schon eine Speis und finden es ziemlich praktisch gewisse Sachen darin zu lagern z.B. Getränkekästen, Kaffeemaschine usw.
hanghaus2023 schrieb:
Danke für die Rückmeldung. Ich finde hier zumindest meinen Beitrag #26 bestätigt. MMn solltest noch um etwas abspecken. 160m2 * 3000 = 480k + CP und Nebenanlagen da wird es knapp. Wohn und Essbereich ist mMn sehr üppig.
So kannst das Haus etwas breiter machen. Was der Raumaufteilung im OG mMn zu gute kommt.
Ich würde das Hau um 1-2 Stufen höher setzen falls es die Höhe erlaubt. Das ist auch besser für die Massenbilanz.
Da wo CP/Eingang steht soll wohl eine überdachte Terrasse hin? Ansonsten sollte man da den CP um Abstellräume erweitern.Könntest du mir die Gründe warum du das Haus 1-2 Stufen höher setzen würdest genauer erklären. Versteh ich jetzt nicht ganzCP/Eingang
Die Straße ist auf der Ostseite von daher würden wir eher das CP um Abstellräume erweitern als hier eine Terrasse hinzubauen.
hanghaus2023 schrieb:
Hier mal mein EG, CP 40cm nach O verschoben. Haus dann etwas breiter.

Breiter finden wir gut.Aber würdest du zwischen Flur und Essen/Wohnen/Küche keine Wand einziehen?
Wir sehen hier den großen Nachteil wenn Gäste im Essbereich sind und die Kinder abends nach Hause kommen man alles vom Flur mitbekommt.
Wenn ich mir den Grundriss so anschauen eine Wand wird sich jedoch nicht ausgehen oder was meinst du?
Ähnliche Themen