ᐅ Grundriss Entwurf Einfamilienhaus mit 10% Südhang. Hauseingang Podesttreppe
Erstellt am: 02.08.25 23:15
H
Hanger1M
MachsSelbst06.08.25 23:38Es ist vor allem der Trugschluss mit der m²-Zahl des HAR stiege auch linear die Lagerkapazität. Das stimmt nicht, die Lagerkapazität hängt weitgehend von der nutzbaren Wandfläche ab. Da stellt man Regale, Schränke, Geräte hin bzw. hängt sie an.
Nehme ich einen quadratischen HAR von 6m² habe ich 4x 2,4m Wand, abzüglich Fenster 100cm, abzüglich Tür 90cm (geht gerade bei kleinen HAR sinnigerweise in den Flur auf, um Platz zu gewinnen). Das sind 7,8m Wand.
Jetzt mache ich den HAR 18m² groß, dann habe ich 15,1m Wand (selbes Fenster und die Tür abgezogen), also nicht mal doppelt so viel, aber den dreifachen m²-Aufwand. An den Wänden stehen die Regale, in der Mitte ist die Tanzfläche.
Dazu dann noch die angesprochene Problematik... der HAR ist immer warm und relativ feucht. Entweder steht dort die Wäsche oder der Wäschetrockner und die Waschmaschine brummen. Und bei dem gezeigten Grundriss schleppt man alles immer quer durchs Haus.
Wir haben daher zum Beispiel die Idee verworfen einen zweiten Kühlschrank in den HAR zu stellen und nehmen jetzt lieber einen richtig großen in der Küche. Dort ist es in der Regel kühler und niemand hat Lust ständig für Getränke in den HAR zu latschen...
Die Schiebetüren mögen gewünscht sein, dafür mag es Gründe geben... aber sie machen die Zimmer eben sehr klein und beengt. Mein Arbeitszimmer hat 10m²... wenn ich mir vorstelle da müsste ne gemütliche große Couch, Fernseher, paar Regale rein und da soll ich mich dann abends aufhalten... gruselig. Bunker halt.
Die Treppe vorm Büro ist hingegen fast schon gefährlich. Das wird fast zwangsläufig zum Problem werden.
Herr Müller will sich schnell mit dem Headset auf dem Kopf einen Kaffee holen, geht zur Tür, in den Moment "Herr Müller, was sagen Sie dazu?" Herr Müller fühlt sich ertappt, ist kurz abgelenkt, vergisst den großen Ausfallschritt, den er machen müsste... und liegt 5 Sekunden später vor der Doppeltür zum Essbereich und hält sich den Knöchel... oder den Kopf...
Nehme ich einen quadratischen HAR von 6m² habe ich 4x 2,4m Wand, abzüglich Fenster 100cm, abzüglich Tür 90cm (geht gerade bei kleinen HAR sinnigerweise in den Flur auf, um Platz zu gewinnen). Das sind 7,8m Wand.
Jetzt mache ich den HAR 18m² groß, dann habe ich 15,1m Wand (selbes Fenster und die Tür abgezogen), also nicht mal doppelt so viel, aber den dreifachen m²-Aufwand. An den Wänden stehen die Regale, in der Mitte ist die Tanzfläche.
Dazu dann noch die angesprochene Problematik... der HAR ist immer warm und relativ feucht. Entweder steht dort die Wäsche oder der Wäschetrockner und die Waschmaschine brummen. Und bei dem gezeigten Grundriss schleppt man alles immer quer durchs Haus.
Wir haben daher zum Beispiel die Idee verworfen einen zweiten Kühlschrank in den HAR zu stellen und nehmen jetzt lieber einen richtig großen in der Küche. Dort ist es in der Regel kühler und niemand hat Lust ständig für Getränke in den HAR zu latschen...
Die Schiebetüren mögen gewünscht sein, dafür mag es Gründe geben... aber sie machen die Zimmer eben sehr klein und beengt. Mein Arbeitszimmer hat 10m²... wenn ich mir vorstelle da müsste ne gemütliche große Couch, Fernseher, paar Regale rein und da soll ich mich dann abends aufhalten... gruselig. Bunker halt.
Die Treppe vorm Büro ist hingegen fast schon gefährlich. Das wird fast zwangsläufig zum Problem werden.
Herr Müller will sich schnell mit dem Headset auf dem Kopf einen Kaffee holen, geht zur Tür, in den Moment "Herr Müller, was sagen Sie dazu?" Herr Müller fühlt sich ertappt, ist kurz abgelenkt, vergisst den großen Ausfallschritt, den er machen müsste... und liegt 5 Sekunden später vor der Doppeltür zum Essbereich und hält sich den Knöchel... oder den Kopf...
H
hanghaus202307.08.25 09:58S
Schorsch_baut08.08.25 10:51Noch eine Anmerkung von mir zum HAR. Wir haben gestaunt, wie wenig selbst die freien Wandflächen nutzbar sind, da überall Leitungen verlaufen.
M
MachsSelbst08.08.25 11:55Schorsch_baut schrieb:
Noch eine Anmerkung von mir zum HAR. Wir haben gestaunt, wie wenig selbst die freien Wandflächen nutzbar sind, da überall Leitungen verlaufen.Es empfiehlt sich auf jeden Fall in den Tagen mal beim Bau vorbeizuschauen, in denen Elektriker, Klempner usw. den HAR mit Technik vollstopfen. Wir hatten das extra mit Bauleiter und Co besprochen, an die Wände gezeichnet, wo was hin soll... gemacht wurde es am Ende völlig anders. Und genau in der Woche konnte ich nicht zur Baustelle...
S
Schorsch_baut08.08.25 12:10Absolut! Unser Heizungsbauer hat sich auch nicht an planerische Vorgaben gehalten, die für den Elektriker relevant waren.
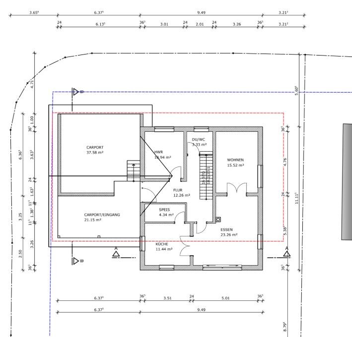
Hallo zusammen,
ich melde mich wieder zurück diesmal nicht mit einem selbstgezeichneten Plan. Wir waren vor knapp 4 Wochen bei unserem Planer und haben nun den ersten Entwurf erhalten. Vielleicht habt ihr etwas Input dazu.
Allgemein:
Er hat uns ebenfalls zu einem Eingang in der Podesttreppe oder im OG abgeraten. Stattdessen hat er den Eingang auf der Westseite mit einer kleinen Treppe zum Carport geplant. Gefällt und grundsätzlich schonmal.
EG:
Du/WC wird unserer Meinung zu knapp werden ich denke aber wenn wir die Mauer nach unten verschieben und dadurch im Raum die Treppe etwas sehen sollten wir alles gut unterbringen können.
Aktuell sind noch Türen zwischen Wohnen und Essen bzw. Essen und Küche eingeplant. Ersteres werden wir defintiv entfernen. Zweiteres möchten wir gerne drinnen lassen.
Kamin fliegt ebenfall noch raus.
Kommentare zum OG
Kind3/Büro und Bad eventuell tauschen.
Dafür bräuchten wir aber eine andere Dachlösung beim Carport da wir aktuell im Bad nur ein Dachfenster drinnen haben und dies in einem Schlafzimmer nicht optimal wäre.
Kommentare zum Carport
Einzig die Dachform. Bei dieser Ausführung müssten wir mit einem Kniestock von 2,2m leben und hätten dadurch im Bad nur ein Dachfenster.
Wäre nicht sonderlich tragisch aber wir überlegen das Bad und Kind3/Büro zu tauschen
Schöne Grüße




ich melde mich wieder zurück diesmal nicht mit einem selbstgezeichneten Plan. Wir waren vor knapp 4 Wochen bei unserem Planer und haben nun den ersten Entwurf erhalten. Vielleicht habt ihr etwas Input dazu.
Allgemein:
Er hat uns ebenfalls zu einem Eingang in der Podesttreppe oder im OG abgeraten. Stattdessen hat er den Eingang auf der Westseite mit einer kleinen Treppe zum Carport geplant. Gefällt und grundsätzlich schonmal.
EG:
Du/WC wird unserer Meinung zu knapp werden ich denke aber wenn wir die Mauer nach unten verschieben und dadurch im Raum die Treppe etwas sehen sollten wir alles gut unterbringen können.
Aktuell sind noch Türen zwischen Wohnen und Essen bzw. Essen und Küche eingeplant. Ersteres werden wir defintiv entfernen. Zweiteres möchten wir gerne drinnen lassen.
Kamin fliegt ebenfall noch raus.
Kommentare zum OG
Kind3/Büro und Bad eventuell tauschen.
Dafür bräuchten wir aber eine andere Dachlösung beim Carport da wir aktuell im Bad nur ein Dachfenster drinnen haben und dies in einem Schlafzimmer nicht optimal wäre.
Kommentare zum Carport
Einzig die Dachform. Bei dieser Ausführung müssten wir mit einem Kniestock von 2,2m leben und hätten dadurch im Bad nur ein Dachfenster.
Wäre nicht sonderlich tragisch aber wir überlegen das Bad und Kind3/Büro zu tauschen
Schöne Grüße
Ähnliche Themen