Hi,
die Terrasse find ich erstmal voll unwichtig.
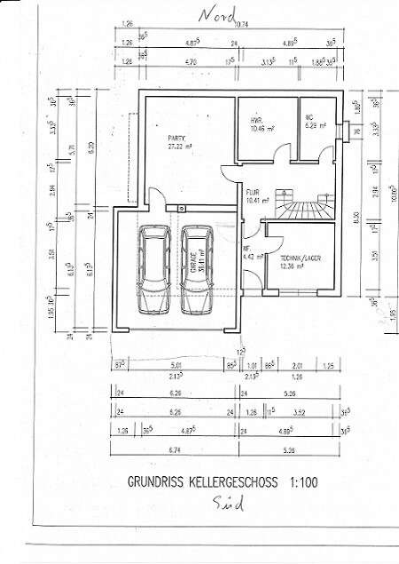
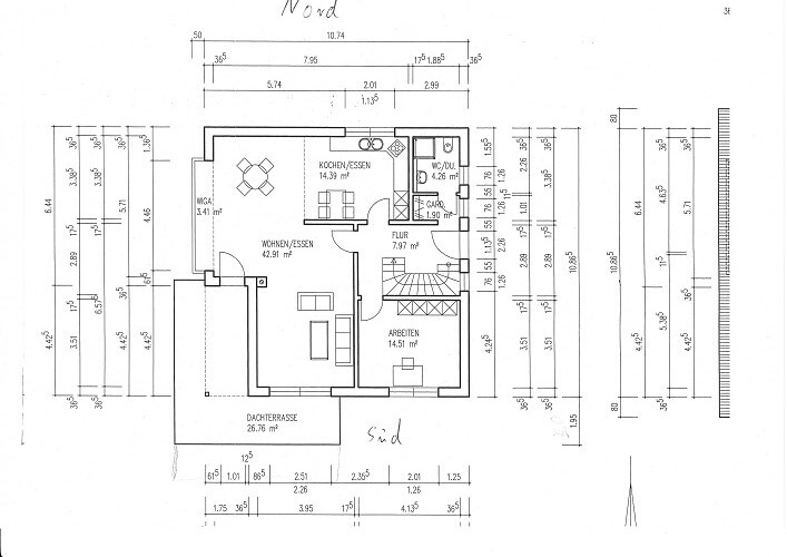
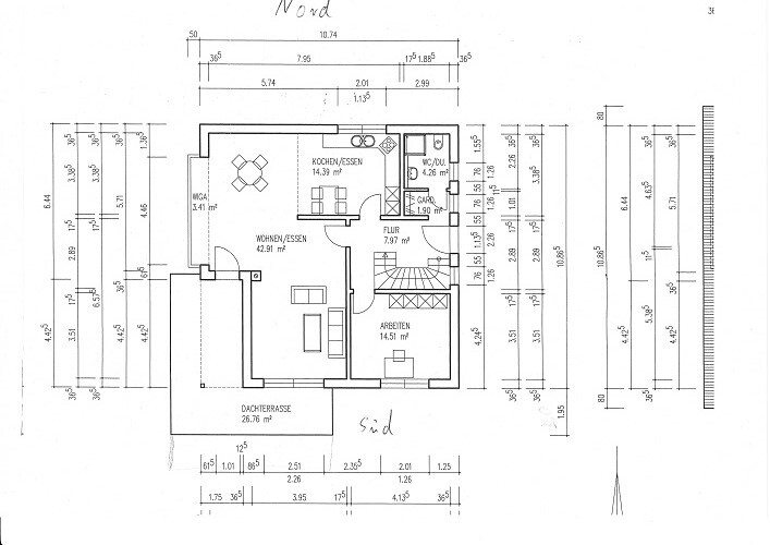
Viel wichtiger ist doch das Haus. Leider finde ich es echt ungemütlich. Dieser lange Tunnel zum Wohnzimmer und dann diese Ecke vom Wohnzimmer - das sieht alles so unbeholfen aus. Der Hauptbereich mit Wohnzimmer / Essen / Küche wirkt dadurch schlauchförmig und das ganze Raumgefühl ist weg. Die Küche ist gefühlt im Eingangsbereich - man hat den Eindruck, gleich mit den Töpfen zwischen den Jacken und Mänteln zu stehen.
Wenn Du mal eben 2m mehr ans Haus dran basteln kannst, scheint's ja nicht am Geld hapern?
Also ehrlich, da find ich Dir sofort sehr viel schönere Grundrisse. Gerade wenn die Grundfläche klein ist, würde ich versuchen, die Räume groß zu halten. Hier mal mein persönlicher Favorit für ein kleines Haus (128m²) von einem recht bekannten Hersteller, nur so als Denkanregung. Im Internet findest Du endlos mehr. Solange Du keine speziellen Wünsche, Gebenheiten oder Baurechte beachten musst, gibt es ja die freie Auswahl.


Vielleicht stöberst Du lieber erstmal die Kataloge durch, denn dieser Grundriss regt m.E. nicht mal zur Diskussion an.
Viel Glück!


die Terrasse find ich erstmal voll unwichtig.
Viel wichtiger ist doch das Haus. Leider finde ich es echt ungemütlich. Dieser lange Tunnel zum Wohnzimmer und dann diese Ecke vom Wohnzimmer - das sieht alles so unbeholfen aus. Der Hauptbereich mit Wohnzimmer / Essen / Küche wirkt dadurch schlauchförmig und das ganze Raumgefühl ist weg. Die Küche ist gefühlt im Eingangsbereich - man hat den Eindruck, gleich mit den Töpfen zwischen den Jacken und Mänteln zu stehen.
Wenn Du mal eben 2m mehr ans Haus dran basteln kannst, scheint's ja nicht am Geld hapern?
Also ehrlich, da find ich Dir sofort sehr viel schönere Grundrisse. Gerade wenn die Grundfläche klein ist, würde ich versuchen, die Räume groß zu halten. Hier mal mein persönlicher Favorit für ein kleines Haus (128m²) von einem recht bekannten Hersteller, nur so als Denkanregung. Im Internet findest Du endlos mehr. Solange Du keine speziellen Wünsche, Gebenheiten oder Baurechte beachten musst, gibt es ja die freie Auswahl.
Vielleicht stöberst Du lieber erstmal die Kataloge durch, denn dieser Grundriss regt m.E. nicht mal zur Diskussion an.
Viel Glück!
Das Haus soll 2 Meter breiter oder länger werden? Dann ergibt sich doch ein ganz anderer Grundriss, oder sehe ist das falsch?
Ich finde den Grundriss jetzt gar nicht so schlecht: klar, das Gästezimmer sowie das Kinderzimmer sind zu schmal, die Mauer zwischen Wohn und Küche macht Küche klein und bringt einen unnützen Verkehrsweg. Küche wäre auch von der möblierung her zu klein: kaum Schränke, wenig Arbeitsfläche. Garderobe finde ich sehr klein für 4 Personen (auch für 3 😉), Süden sind nach meinem Geschmack zu wenig Fenster mit dem einen. Im OG könnte man den Platz des Schrankes im Schlafzimmer der Ankleide zuordnen: Schlafzimmer reicht dann immer noch, Ankleide hätte viel Schrankfläche. Badeinrichtung gefällt mir auch nicht: Badewanne hat einen gemütlicheren Platz verdient, weiter hinten. Dusche steht auch im Weg, könnte in den Bereich der Wanne wandern.
Trotz der vielen Kleinigkeiten denke ich, dass man diese auch beheben kann, wenn man auf süd-westlicher Seite etwas mit den Außenmauern spielt 🙂
Mich würden mal die Ansichten interessieren.
Zur Terrasse: etwas Auflockerung durch das vorgeschlagene "L" wäre positiv.
Aber es ist ja est der erste Entwurf, der Architekt wirds schon richten 🙂
Ich finde den Grundriss jetzt gar nicht so schlecht: klar, das Gästezimmer sowie das Kinderzimmer sind zu schmal, die Mauer zwischen Wohn und Küche macht Küche klein und bringt einen unnützen Verkehrsweg. Küche wäre auch von der möblierung her zu klein: kaum Schränke, wenig Arbeitsfläche. Garderobe finde ich sehr klein für 4 Personen (auch für 3 😉), Süden sind nach meinem Geschmack zu wenig Fenster mit dem einen. Im OG könnte man den Platz des Schrankes im Schlafzimmer der Ankleide zuordnen: Schlafzimmer reicht dann immer noch, Ankleide hätte viel Schrankfläche. Badeinrichtung gefällt mir auch nicht: Badewanne hat einen gemütlicheren Platz verdient, weiter hinten. Dusche steht auch im Weg, könnte in den Bereich der Wanne wandern.
Trotz der vielen Kleinigkeiten denke ich, dass man diese auch beheben kann, wenn man auf süd-westlicher Seite etwas mit den Außenmauern spielt 🙂
Mich würden mal die Ansichten interessieren.
Zur Terrasse: etwas Auflockerung durch das vorgeschlagene "L" wäre positiv.
Aber es ist ja est der erste Entwurf, der Architekt wirds schon richten 🙂
Mir gefällt es so auch schon besser. Das einzigste wo ich noch bedenken hätte ist das Bad im DG. Der Durchgang zwischen Badewanne und Waschbecken sieht sehr schmal aus. Malt euch das Bad mit seiner Möblierung mal in Originalgröße auf dem Boden auf und schaut ob euch der Platz zum durchgehen ausreicht
Ähnliche Themen