ᐅ Pfiffige Schlafzimmer Idee mit Ankleide gesucht
Erstellt am: 07.02.16 00:38
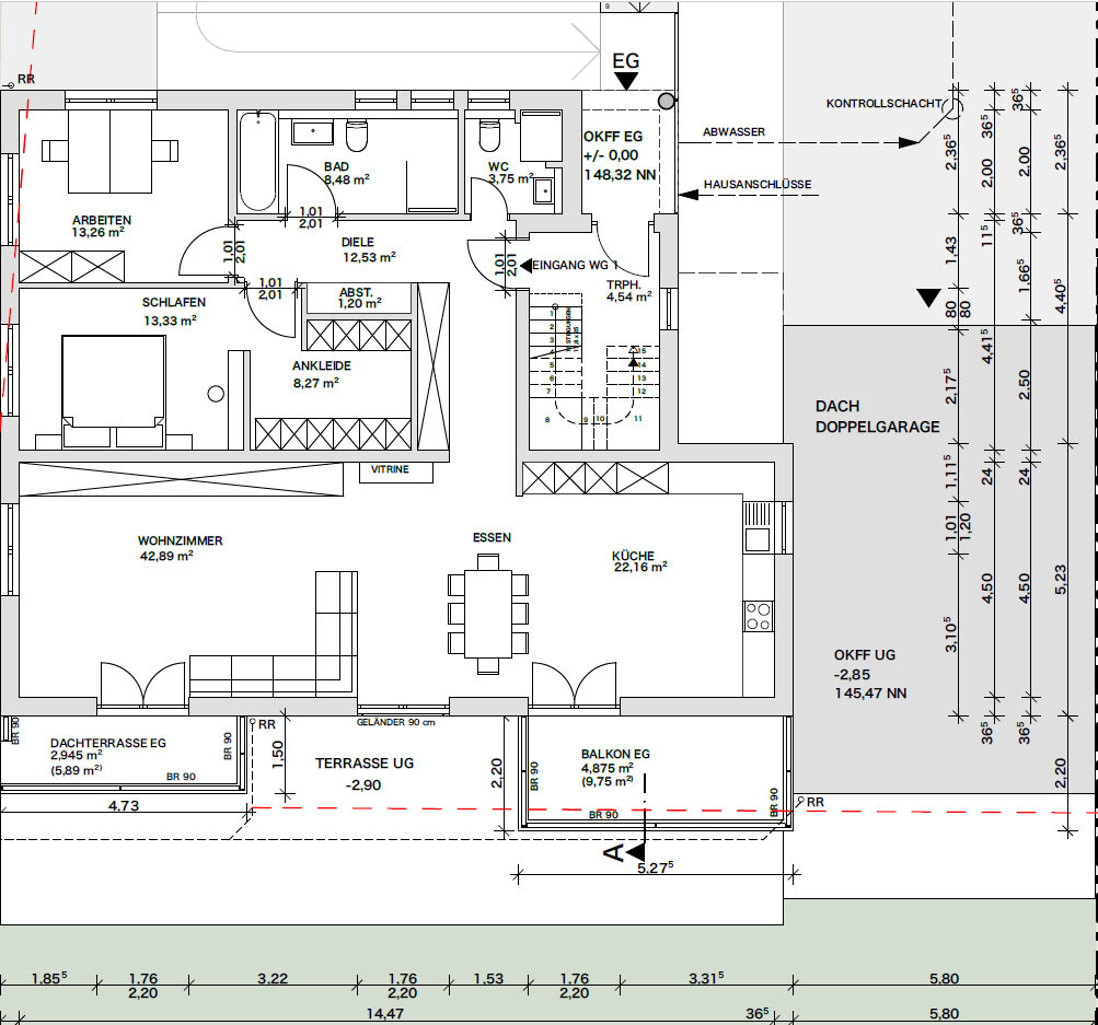
Hallo zusammen,
wir stoßen bei unserer Planung immer wieder über die Größe des Schlafzimmers und die Ankleide.
Irgendwie sind wir mit der Größe des Schlafzimmer noch nicht ganz zufrieden. Wir haben Sorge, dass es zu klein wird.
Auf der anderen Seite verbringen wir jetzt nicht die meiste Zeit dort. Etwas großzügiger als heute (10,5m²) darf es aber schon wirken.
Wir überlegen die Wand der Ankleide noch etwas nach oben Richtung Norden zu schieben, sodass wir zwischen Bett und Wand mehr Platz gewinnen. Wie habt ihr das denn so gelöst bei euch? Wie groß sind Eure Schlafzimmer? Und habt ihr auch eine Ankleide integriert oder wie habt ihr das clever gelöst?
Die Ankleide haben wir übrigens absichtlich im Nordbereich, da dort eine Straße entlang läuft und wir damit noch mal etwas weiter weg sind.
Bin für Ideen dankbar

wir stoßen bei unserer Planung immer wieder über die Größe des Schlafzimmers und die Ankleide.
Irgendwie sind wir mit der Größe des Schlafzimmer noch nicht ganz zufrieden. Wir haben Sorge, dass es zu klein wird.
Auf der anderen Seite verbringen wir jetzt nicht die meiste Zeit dort. Etwas großzügiger als heute (10,5m²) darf es aber schon wirken.
Wir überlegen die Wand der Ankleide noch etwas nach oben Richtung Norden zu schieben, sodass wir zwischen Bett und Wand mehr Platz gewinnen. Wie habt ihr das denn so gelöst bei euch? Wie groß sind Eure Schlafzimmer? Und habt ihr auch eine Ankleide integriert oder wie habt ihr das clever gelöst?
Die Ankleide haben wir übrigens absichtlich im Nordbereich, da dort eine Straße entlang läuft und wir damit noch mal etwas weiter weg sind.
Bin für Ideen dankbar
Irgendwie geht der ganze Bereich nicht. 261 Rohbaumaß fürs Bett und dann planunten noch irgendetwas an der Wand. Da bleiben 20 cm zum Durchzwängen.
Gibt es da im Bereich der Ankleide noch eine 2m-Linie oder ist es ein Vollgeschoss?
Und ja, ich kann Yvonne nur zustimmen, bitte mal den gesamten OG-Plan einstellen. Es wäre ja noch alles änderbar - oder?
Gibt es da im Bereich der Ankleide noch eine 2m-Linie oder ist es ein Vollgeschoss?
Und ja, ich kann Yvonne nur zustimmen, bitte mal den gesamten OG-Plan einstellen. Es wäre ja noch alles änderbar - oder?
M
Masipulami07.02.16 10:27Alles in der Tat zu eng.
Wir hatten Rohbaumaß von 2,35m Wandabstand in der Ankleide. Auf beiden Seiten Kleiderschränke mit 60cm Tiefe verbleiben jetzt noch etwas mehr als 1m zwischen den Schrankreihen. Passt gut so. Deutlich weniger hätten es aber nicht sein dürfen.
Sieht jetzt so aus:

Ein Foto aus anderer Perspektive hab ich gerade leider nicht parat.
Wir hatten Rohbaumaß von 2,35m Wandabstand in der Ankleide. Auf beiden Seiten Kleiderschränke mit 60cm Tiefe verbleiben jetzt noch etwas mehr als 1m zwischen den Schrankreihen. Passt gut so. Deutlich weniger hätten es aber nicht sein dürfen.
Sieht jetzt so aus:
Ein Foto aus anderer Perspektive hab ich gerade leider nicht parat.
@tabtab
Plant ihr mit Ytong? Die Zeichenart kommt mir so bekannt vor.
Ich finden auch den ganzen Bereich zu klein.
Ankleide: Ein schrank mit Schiebetüren hat 65 cm Tiefe, macht 1,30 Meter für 2 Schränke. Bleiben noch 60 cm Durchgangsbreite. Schrank ohne Türen ist 60 cm Tief, da würden noch 70 cm bleiben. Ich würde in der Ankleide eine Durchgangsbreite von 1,00 Meter vorsehen, damit auch mal 2 Personen aneinander vorbeigehen können und man auch nicht direkt vor dem Schrank steht, um Kleidung rauszuholen.
Schlafzimmer: Eine normale Matratze hat 2 Meter Länge. Mit Bettrahmen musst du 2,10 - 2,20 Meter rechnen. Bei 2,60 Meter Raummaß bleiben noch 40 cm Durchgangsbreite.
@Masipulami
Wir wollen es genau so planen wie du, sprich Schränke mit Schiebetüren und am Ende des Raums ein Fenster. Ich wäre dir sehr sehr dankbar, wenn du noch ein paar Bilder einstellen kannst, auch welche, auf denen man beide Schränke sieht. Schwanken zwischen Rohbaubreite 2,40 - 2,60 Meter.
Plant ihr mit Ytong? Die Zeichenart kommt mir so bekannt vor.
Ich finden auch den ganzen Bereich zu klein.
Ankleide: Ein schrank mit Schiebetüren hat 65 cm Tiefe, macht 1,30 Meter für 2 Schränke. Bleiben noch 60 cm Durchgangsbreite. Schrank ohne Türen ist 60 cm Tief, da würden noch 70 cm bleiben. Ich würde in der Ankleide eine Durchgangsbreite von 1,00 Meter vorsehen, damit auch mal 2 Personen aneinander vorbeigehen können und man auch nicht direkt vor dem Schrank steht, um Kleidung rauszuholen.
Schlafzimmer: Eine normale Matratze hat 2 Meter Länge. Mit Bettrahmen musst du 2,10 - 2,20 Meter rechnen. Bei 2,60 Meter Raummaß bleiben noch 40 cm Durchgangsbreite.
@Masipulami
Wir wollen es genau so planen wie du, sprich Schränke mit Schiebetüren und am Ende des Raums ein Fenster. Ich wäre dir sehr sehr dankbar, wenn du noch ein paar Bilder einstellen kannst, auch welche, auf denen man beide Schränke sieht. Schwanken zwischen Rohbaubreite 2,40 - 2,60 Meter.
Ähnliche Themen