ᐅ Grundriss Entwurf Einfamilienhaus mit 10% Südhang. Hauseingang Podesttreppe
Erstellt am: 02.08.25 23:15
H
Hanger1H
hanghaus202309.09.25 16:22Ich habe das mal visualisiert.
@ypg Du hast vollkommen Recht.
Ich bin jetzt bei einem Haus mit 9*11m

![1757426970461.png"]92864[/ATTACH]<br />
<br />
Grundrisse sind ja nicht meins, Aber ich habs trotzdem mal versucht. Eventuell das dann spiegeln.<br />
<br />
<br />
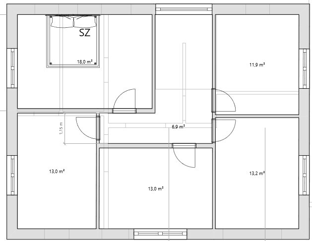
[ATTACH type="full" alt="Detaillierter Grundriss eines Hauses mit Küche, Essbereich, Wohnzimmer und Bad.](https://www.hausbau-forum.de/attachments/92865/)
Technik im NO.

KInderzimmer alle im Süden. Bad im NO.
Eventuell mus die Traufe noch nach unten. Je nach Bezugspunkt. Dann sollte aber das mittige Kinderzimmer eine Gaube oder einen Zwerchgiebel erhalten. Um die breite Südfront zu gliedern kann man noch einen kleinen Erker planen.
Ich würde das Gelände leicht modellieren. So teuer ist Liefermaterial auch nicht.
@ypg Du hast vollkommen Recht.
Ich bin jetzt bei einem Haus mit 9*11m
Technik im NO.
KInderzimmer alle im Süden. Bad im NO.
Eventuell mus die Traufe noch nach unten. Je nach Bezugspunkt. Dann sollte aber das mittige Kinderzimmer eine Gaube oder einen Zwerchgiebel erhalten. Um die breite Südfront zu gliedern kann man noch einen kleinen Erker planen.
Ich würde das Gelände leicht modellieren. So teuer ist Liefermaterial auch nicht.
H
hanghaus202309.09.25 16:28Nicht nur eventuell spiegeln. Sondern auf jeden Fall.
hanghaus2023 schrieb:
Ich habe das mal visualisiert.
@ypg Du hast vollkommen Recht.hanghaus2023 schrieb:
Grundrisse sind ja nicht meins, Aber ich habs trotzdem mal versucht. Eventuell das dann spiegeln.Im Prinzip, wenn man ein Budget ein Haus von 150qm hat, dann geht ein Standardgrundriss. Allerdings Obacht: ohne Podesttreppe, eventuell mit einer Viertelgewendelten neben der Eingangstür. Und man muss sich im OG mit den Raumgrößen etwas reduzieren, ggf. mit nem kleinen Überhang planen, um das Raumprogramm unterzubekommen. Erst OG planen, EG passt sich an.
Die Visualisierung von außen trifft es allerdings ganz gut. Der Erdaushub modelliert dann die Terrasse.
Ich denke, @Hanger1 ist ein bissel stumm, weil man die Planung vom Architekten als eher abstrus einschätzt und dadurch der Architekt nicht wirklich gut weg kommt.
Man könnte meinen, dass dieser Thread überflüssig war oder man sich das hier alles im Forum hätte sparen können.
Man muss sich bei einem schwierigen Grundstück das Ziel erarbeiten, seines durch Brainstorming oder auch durch verschiedene Ideenansätze. Und nicht nur am Küchentisch, sondern auch hier vergisst man manchmal die Voraussetzungen. Da kommt man von hier nach da, und muss sich dann mal wieder resetten, was möglich ist. Man erarbeitet sich quasi von 240qm über 160qm auf 150qm.
Hier ist gesetzt: 500000€, also round about 150qm Haus, Hang mit 10%.
Dann kommt noch dazu, dass der Kinderwunsch nicht mit 2, sondern mit -3 definiert wird.
Das macht grosse Unterschiede bei den Raumplanungen und -Größen. Während man mit einem Kind noch mit 4 Meter Lauflänge in der Küche auskommt, sind es mit 3 Kindern schon 5. Ein Bad kann gut mit 8qm funktionieren, bei 5 Personen sollte man ggf. auf 9-10qm gehen. Während man zu zweit auf Raum inmitten eines Bades verzichten kann, braucht es Raum bei (Klein)kindern.
Während man zu zweit mit einem schlichten Sofa vor dem TV auf 3 Meter Tiefe zurecht kommt, braucht man schon ein zweites Sofa über Eck, ein L-Sofa oder eine grosse Lounge, damit man den Kindern gerecht wird. Ggf dann noch Hocker, Sessel oder Bank.
Während man zu viert mit einem 180er Esstisch zurecht kommt, braucht man schon mindestens 2 Meter Länge. Nicht zu vergessen, dass Kinder auch Besuch mitbringen: ein Kinderbesuch bei einem Kind macht 2, ein Kinderbesuch bei drei Kindern macht 6! Kinder am Esstisch.
Während man einem Kind ein recht geräumiges Zimmer gönnen kann, sieht man zu, dass man bei drei Kindern nahezu drei gleichgrosse Räume hinbekommt. Und wenn das nicht gelingt, braucht es iwie mal ein Highlight, dass das Kind sich wertgeschätzt fühlt, zb ein breiteres Fenster, Süd-Ausrichtung oder eine Bettnische mit versprochenem Höhleneinbau.
In Kombi mit dem Budget sollten bzw müssen einige Wünsche zu Gunsten einer effektiven Familienraumplanung weichen: Zweiter Zugang, 2. Hauswirtschaftsraum im OG, Ankleide, Speis. Und weitere Extras, wofür mir gerade die Fantasie fehlt.
Nun gab es viele Umdrehungen in der Position des Hauses, hoch, tief, gesplittet oder nicht. Letztendlich zählt auch hier wieder das Budget.
Und man kann natürlich auch einen schlichten Carport mit Wellblech verhetzen, aber ich denke, dass das Geld eher ins Haus gesteckt werden sollte als in ein massives Dach eines Carports. Wer mal zusammenrechnet, kommt auf ü50qm für 2 PKWs, knapp ü40 für 3 Kinder.
Beim Haus denke ich an den Grundriss von Maxime 330 in der Variante mit 3 Kinderzimmer. Das käme mit einer Hauslänge von 11,60 genau hin.
Gartenseite würde dann so oder ähnlich aussehen
[ATTACH alt="IMG_1250.jpeg"]92868[/ATTACH]

und ja, auch solche Terrassenanlage kostet Geld, ist aber immer noch mit die günstigste Alternative.
Man muss sich bei einem schwierigen Grundstück das Ziel erarbeiten, seines durch Brainstorming oder auch durch verschiedene Ideenansätze. Und nicht nur am Küchentisch, sondern auch hier vergisst man manchmal die Voraussetzungen. Da kommt man von hier nach da, und muss sich dann mal wieder resetten, was möglich ist. Man erarbeitet sich quasi von 240qm über 160qm auf 150qm.
Hier ist gesetzt: 500000€, also round about 150qm Haus, Hang mit 10%.
Dann kommt noch dazu, dass der Kinderwunsch nicht mit 2, sondern mit -3 definiert wird.
Das macht grosse Unterschiede bei den Raumplanungen und -Größen. Während man mit einem Kind noch mit 4 Meter Lauflänge in der Küche auskommt, sind es mit 3 Kindern schon 5. Ein Bad kann gut mit 8qm funktionieren, bei 5 Personen sollte man ggf. auf 9-10qm gehen. Während man zu zweit auf Raum inmitten eines Bades verzichten kann, braucht es Raum bei (Klein)kindern.
Während man zu zweit mit einem schlichten Sofa vor dem TV auf 3 Meter Tiefe zurecht kommt, braucht man schon ein zweites Sofa über Eck, ein L-Sofa oder eine grosse Lounge, damit man den Kindern gerecht wird. Ggf dann noch Hocker, Sessel oder Bank.
Während man zu viert mit einem 180er Esstisch zurecht kommt, braucht man schon mindestens 2 Meter Länge. Nicht zu vergessen, dass Kinder auch Besuch mitbringen: ein Kinderbesuch bei einem Kind macht 2, ein Kinderbesuch bei drei Kindern macht 6! Kinder am Esstisch.
Während man einem Kind ein recht geräumiges Zimmer gönnen kann, sieht man zu, dass man bei drei Kindern nahezu drei gleichgrosse Räume hinbekommt. Und wenn das nicht gelingt, braucht es iwie mal ein Highlight, dass das Kind sich wertgeschätzt fühlt, zb ein breiteres Fenster, Süd-Ausrichtung oder eine Bettnische mit versprochenem Höhleneinbau.
In Kombi mit dem Budget sollten bzw müssen einige Wünsche zu Gunsten einer effektiven Familienraumplanung weichen: Zweiter Zugang, 2. Hauswirtschaftsraum im OG, Ankleide, Speis. Und weitere Extras, wofür mir gerade die Fantasie fehlt.
Nun gab es viele Umdrehungen in der Position des Hauses, hoch, tief, gesplittet oder nicht. Letztendlich zählt auch hier wieder das Budget.
Und man kann natürlich auch einen schlichten Carport mit Wellblech verhetzen, aber ich denke, dass das Geld eher ins Haus gesteckt werden sollte als in ein massives Dach eines Carports. Wer mal zusammenrechnet, kommt auf ü50qm für 2 PKWs, knapp ü40 für 3 Kinder.
Beim Haus denke ich an den Grundriss von Maxime 330 in der Variante mit 3 Kinderzimmer. Das käme mit einer Hauslänge von 11,60 genau hin.
Gartenseite würde dann so oder ähnlich aussehen
[ATTACH alt="IMG_1250.jpeg"]92868[/ATTACH]
und ja, auch solche Terrassenanlage kostet Geld, ist aber immer noch mit die günstigste Alternative.
H
hanghaus202310.09.25 08:21ypg schrieb:
Im Prinzip, wenn man ein Budget ein Haus von 150qm hat, dann geht ein Standardgrundriss. Allerdings Obacht: ohne Podesttreppe, eventuell mit einer Viertelgewendelten neben der Eingangstür. Ja gewendelte Treppen sind für jeden Entwurf die einfachere Lösung. Sehr wahrscheinlich auch die günstigere.Anstelle der gerade Treppe wollte ich nicht gleich ins Extrem verfallen. Daher die Podesttreppe. Ausserdem mein Programm kann keine gewendelten Treppen. Da muss ich jede Stufe einzeln planen. Die Mühe mache ich nur für meinen eigenen Entwurf. Aber nicht für Forenmitglieder, die eh die Arbeit nicht wertschätzen.
Ähnliche Themen