ᐅ Grundriss Entwurf Einfamilienhaus mit 10% Südhang. Hauseingang Podesttreppe
Erstellt am: 02.08.25 23:15
H
Hanger1Hallo zusammen,
ich hatte vor einiger Zeit schonmal einen Beitrag erstellt bei dem es um die Anordnung bzw. optimale Nutzung unseres ca. 600qm Grundstückes mit ca. 10% Südgefälle ging.
Wir haben jetzt einige Zeit viel gezeichnet, überlegt, radiert usw. und haben nun folgenden Grundriss erstellt.
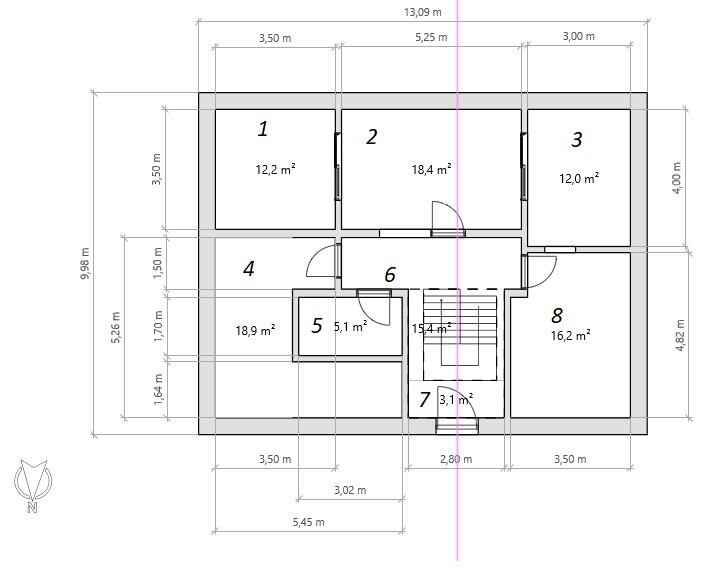
Da wir ca. 10% Gefälle haben möchte ich den Hang optimal Nutzen. Meine Vorstellung ist, dass der Hauseingang in der Podest Treppe ist also in der Ebene zwischen EG und 1.OG. jedoch mit einem vergrößerten Podest.
Anschließend eine halbe Etage rauf ins Obergeschoss (Schlafen) oder eine halbe Etage runter ins EG (Wohnen).
Ideen kam aus der Split Level Methode.
Bebauungsplan/Einschränkungen
Größe des Grundstücks: 600q m
Hang: 10% Südgefälle
Grundflächenzahl 0,3
Geschossflächenzahl 0,6
Anzahl Stellplatz noch offen wahrscheinlich 2
Geschossigkeit aktuell 2 Vollgeschosse geplant
Dachform Sattel oder Walmdach
Stilrichtung Klassisch
Ausrichtung Nord-Süd
Anforderungen der Bauherren
Stilrichtung, Dachform, Gebäudetyp
Keller, Geschosse
Anzahl der Personen, Alter: 2 EW, aktuell 1 Kind, Zukunft 2-3 Kinder
Raumbedarf im EG, OG
Büro: Familiennutzung oder Homeoffice?: Büro könnte im Fall als drittes Kinderzimmer verwendet werden
Schlafgäste pro Jahr vernachlässigbar
offene oder geschlossene Architektur offene Architektur
konservativ oder moderne Bauweise kondservativ
offene Küche, Kochinsel U Küche. Haben wir schon im Küchenstudio geplant. Dabei hat sich für uns 3x4m als optimal herausgestellt. Wir möchten auf der kurzen Seite eine versteckte Türe zum Durchgang in die Abstell/Speis
Anzahl Essplätze 1
Kamin nein
Gäste-WC sollte eine Dusche beinhalten, da meine Frau in Zukunft wieder Schicht arbeiten wird und somit eine Dusche abseits der Schlafzimmer gut ist.
Hausentwurf
Von wem stammt die Planung:
-Planer eines Bauunternehmens: Ideen eines Bauunternehmens jedoch Do it yourself
Was gefällt besonders? Warum?
Was gefällt nicht? Warum? Wir sind uns unser ob auf der Nordseite beim Hauseingang in der Zwischenebene die Ansicht verschachtelt aussieht, da die Fenster für das Obergeschoss bei der Höhe beginnen wo die Haustüre aufhört.
Persönliches Preislimit fürs Haus, inkl. Ausstattung: 500k
favorisierte Heiztechnik: WP
Wenn Ihr verzichten müsst, auf welche Details/Ausbauten
-könnt Ihr verzichten: Gerne weniger qm.
-könnt Ihr nicht verzichten: WC/Dusche im EG.


Folgende Zimmer hätten wir geplant:
1: Wohnen mit Schiebetüre in den Essbereich
2: Essbereich
3: Küche mit Schiebetüre in den Essbereich
4: Hauswirtschaftsraum
5: Gäste-WC/Dusche
6: Flur
7: Podesttreppe mit vergrößertem Podest
8: Abstellraum
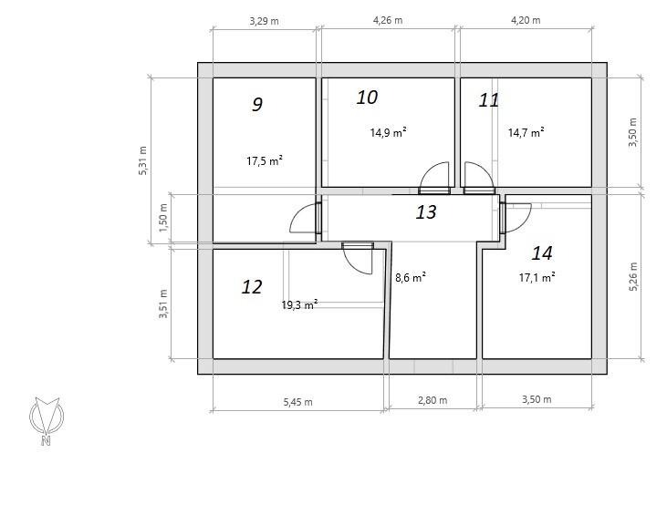
9: Bad
10: Kind I
11: Kind II
12: Eltern. Eventuell mit einer Zwischenwand so, dass man erst durch ein kleines Ankleidezimmer in das Schlafzimmer geht
13: Flur. Hier ist die Podesttreppe nicht eingezeichnet.
14: Büro / Kind III
Ich freue mich auf eure Rückmeldungen!
ich hatte vor einiger Zeit schonmal einen Beitrag erstellt bei dem es um die Anordnung bzw. optimale Nutzung unseres ca. 600qm Grundstückes mit ca. 10% Südgefälle ging.
Wir haben jetzt einige Zeit viel gezeichnet, überlegt, radiert usw. und haben nun folgenden Grundriss erstellt.
Da wir ca. 10% Gefälle haben möchte ich den Hang optimal Nutzen. Meine Vorstellung ist, dass der Hauseingang in der Podest Treppe ist also in der Ebene zwischen EG und 1.OG. jedoch mit einem vergrößerten Podest.
Anschließend eine halbe Etage rauf ins Obergeschoss (Schlafen) oder eine halbe Etage runter ins EG (Wohnen).
Ideen kam aus der Split Level Methode.
Bebauungsplan/Einschränkungen
Größe des Grundstücks: 600q m
Hang: 10% Südgefälle
Grundflächenzahl 0,3
Geschossflächenzahl 0,6
Anzahl Stellplatz noch offen wahrscheinlich 2
Geschossigkeit aktuell 2 Vollgeschosse geplant
Dachform Sattel oder Walmdach
Stilrichtung Klassisch
Ausrichtung Nord-Süd
Anforderungen der Bauherren
Stilrichtung, Dachform, Gebäudetyp
Keller, Geschosse
Anzahl der Personen, Alter: 2 EW, aktuell 1 Kind, Zukunft 2-3 Kinder
Raumbedarf im EG, OG
Büro: Familiennutzung oder Homeoffice?: Büro könnte im Fall als drittes Kinderzimmer verwendet werden
Schlafgäste pro Jahr vernachlässigbar
offene oder geschlossene Architektur offene Architektur
konservativ oder moderne Bauweise kondservativ
offene Küche, Kochinsel U Küche. Haben wir schon im Küchenstudio geplant. Dabei hat sich für uns 3x4m als optimal herausgestellt. Wir möchten auf der kurzen Seite eine versteckte Türe zum Durchgang in die Abstell/Speis
Anzahl Essplätze 1
Kamin nein
Gäste-WC sollte eine Dusche beinhalten, da meine Frau in Zukunft wieder Schicht arbeiten wird und somit eine Dusche abseits der Schlafzimmer gut ist.
Hausentwurf
Von wem stammt die Planung:
-Planer eines Bauunternehmens: Ideen eines Bauunternehmens jedoch Do it yourself
Was gefällt besonders? Warum?
Was gefällt nicht? Warum? Wir sind uns unser ob auf der Nordseite beim Hauseingang in der Zwischenebene die Ansicht verschachtelt aussieht, da die Fenster für das Obergeschoss bei der Höhe beginnen wo die Haustüre aufhört.
Persönliches Preislimit fürs Haus, inkl. Ausstattung: 500k
favorisierte Heiztechnik: WP
Wenn Ihr verzichten müsst, auf welche Details/Ausbauten
-könnt Ihr verzichten: Gerne weniger qm.
-könnt Ihr nicht verzichten: WC/Dusche im EG.
Folgende Zimmer hätten wir geplant:
1: Wohnen mit Schiebetüre in den Essbereich
2: Essbereich
3: Küche mit Schiebetüre in den Essbereich
4: Hauswirtschaftsraum
5: Gäste-WC/Dusche
6: Flur
7: Podesttreppe mit vergrößertem Podest
8: Abstellraum
9: Bad
10: Kind I
11: Kind II
12: Eltern. Eventuell mit einer Zwischenwand so, dass man erst durch ein kleines Ankleidezimmer in das Schlafzimmer geht
13: Flur. Hier ist die Podesttreppe nicht eingezeichnet.
14: Büro / Kind III
Ich freue mich auf eure Rückmeldungen!
N
nordanney02.08.25 23:27Nur eine Anmerkung, danach lohnt es sich nicht mehr, auf den Grundriss einzugehen.
Du planst zwei Geschosse im Hang. 260qm BGF für 500k.
Mit ein wenig Pech langt das Budget nur für eine Etage. Mit Sicherheit aber nicht für beide.
Du planst zwei Geschosse im Hang. 260qm BGF für 500k.
Mit ein wenig Pech langt das Budget nur für eine Etage. Mit Sicherheit aber nicht für beide.
G
Gerddieter02.08.25 23:44Den Grundriss finde ich Katastrophe. Was soll denn das sein - eine Etagenwohnung aus den 70ern? Hat dein Haus auch Fenster? Und die beliebte "offene Gestaltung" des Allraumes mögt ihr auch nicht?
GD
GD
Gibt es einen Grund, warum Raum 5, das Gäste-WC so sperrig in den Technikraum (Raum 4) geht, sodass auch das Gäste-WC kein Fenster bekommt und der Technikraum viel Lauffläche statt Stellfläche bekommt?
Und wo parkt man den Kinderwagen, sprich wo ist die Garderobe, der Flur, der einen empfängt, wo man Schuhe auszieht und Jacken unterbringt?
Bäder sind nicht übereinander, das ist nicht schlimm, aber Bad über dem WZ, das ist nicht fein. Im EG denkt man eher an eine Wohnung statt an ein Einfamilienhaus.
240qm Kosten im Standard so 520000€, ohne Baunebenkosten und ohne Splitlevel. Splitlevel kost jetzt nicht die Welt, aber Mehrkosten gibt es.
Und wo parkt man den Kinderwagen, sprich wo ist die Garderobe, der Flur, der einen empfängt, wo man Schuhe auszieht und Jacken unterbringt?
Bäder sind nicht übereinander, das ist nicht schlimm, aber Bad über dem WZ, das ist nicht fein. Im EG denkt man eher an eine Wohnung statt an ein Einfamilienhaus.
240qm Kosten im Standard so 520000€, ohne Baunebenkosten und ohne Splitlevel. Splitlevel kost jetzt nicht die Welt, aber Mehrkosten gibt es.
Split Level baut man, wenn man es offen haben will. Split Level lebt von Sichtachsen, offene Raumstruktur, die Räume gehen fliessend ineinander über. Was Du da gezeichnet hast, ist kein SplitLevel, sondern die Idee eines Splitlevels, nur nicht umgesetzt. Du hast schlicht zwei Geschosse, einen 2-Geschosser geplant, und den noch nicht einmal gut.
N
nordanney03.08.25 09:29ypg schrieb:
240qm Kosten im Standard so 520000€Da hast du dich wohl verrechnet 😉Ähnliche Themen