ᐅ Grundriss Schlafzimmer mit Bad und Ankleide
Erstellt am: 22.03.23 22:20
Hallo liebe Community,
ich war bisher stille Mitleserin hier im Forum und bin immer wieder begeistert von den Ideen, die hier geteilt werden.
Nun brauche ich selbst Hilfe.
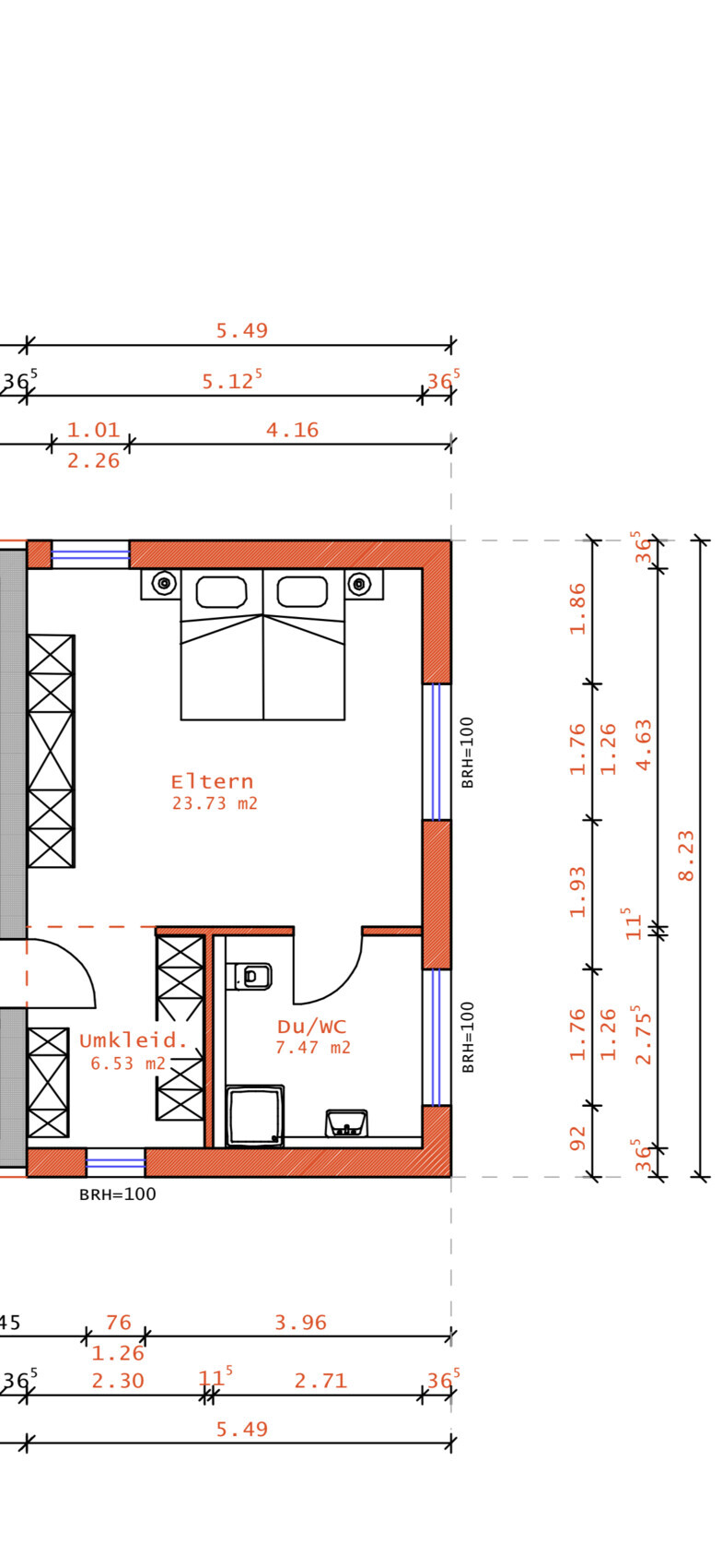
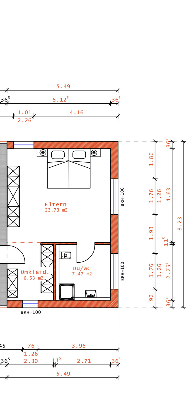
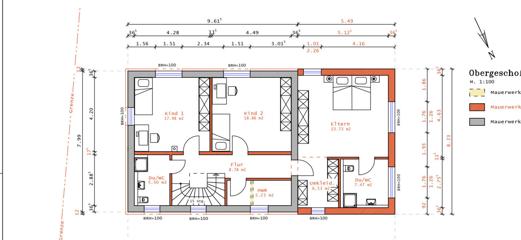
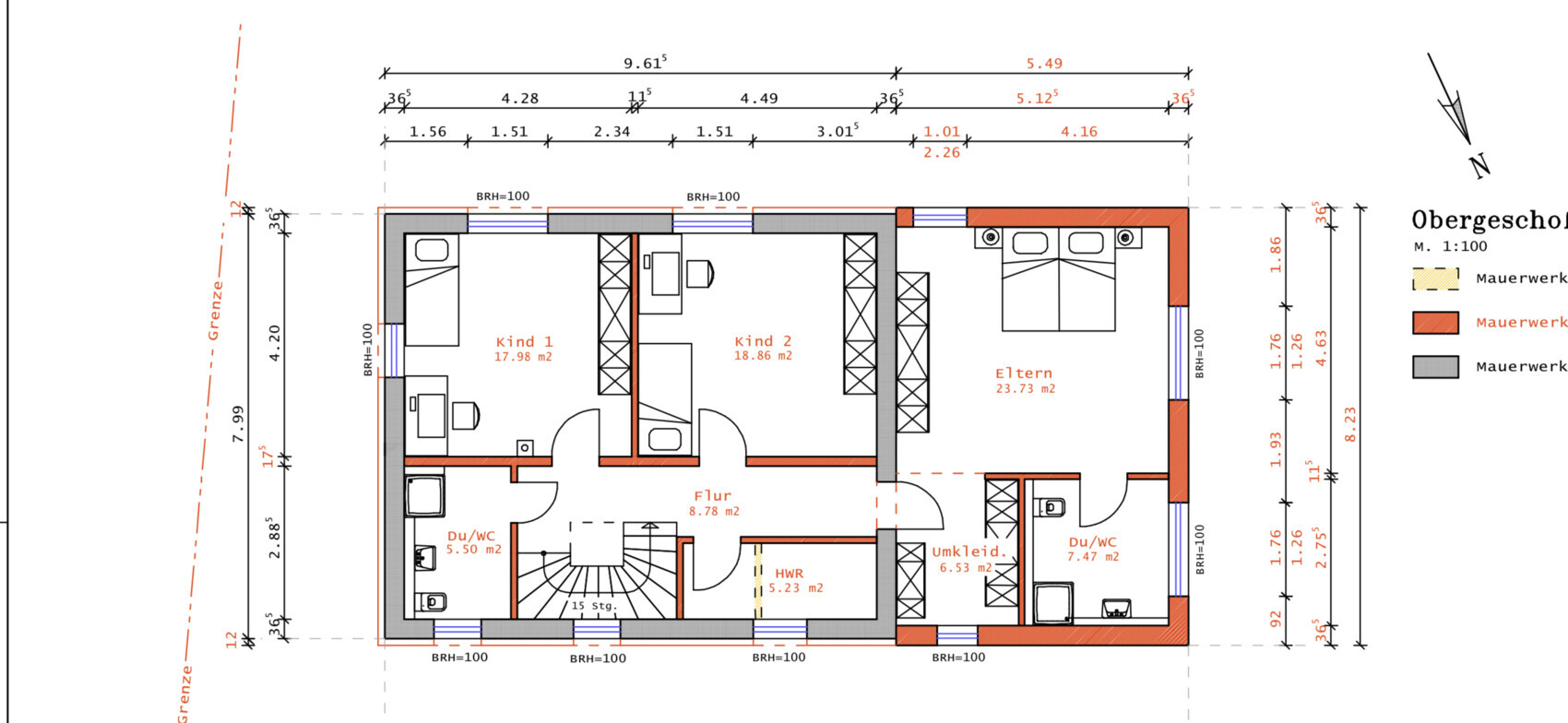
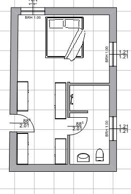
Wir planen aktuell einen Anbau an unserem Haus. Im OG soll dabei unser neues Schlafzimmer mit Bad en suite und Ankleide entstehen. Die bisherige Planung überzeugt uns leider noch nicht ganz. Evtl. könnt ihr uns ja weiterhelfen und habt eine kreative Idee zur Umplanung.
Was uns wichtig ist:
- planunten ist die Nord- und Straßenseite. Deshalb wollen wir den Schlafbereich am liebsten nach Möglichkeit auf der Südseite behalten
- alle Fenster und Wände im Zimmer sind veränderbar. Lediglich die Tür ins Schlafzimmer muss bleiben
Anbei noch der Grundriss. Was meint ihr? Welche Alternativen hätten wir?
Vielen Dank im Voraus für eure Ideen und liebe Grüße
Hannah

ich war bisher stille Mitleserin hier im Forum und bin immer wieder begeistert von den Ideen, die hier geteilt werden.
Nun brauche ich selbst Hilfe.
Wir planen aktuell einen Anbau an unserem Haus. Im OG soll dabei unser neues Schlafzimmer mit Bad en suite und Ankleide entstehen. Die bisherige Planung überzeugt uns leider noch nicht ganz. Evtl. könnt ihr uns ja weiterhelfen und habt eine kreative Idee zur Umplanung.
Was uns wichtig ist:
- planunten ist die Nord- und Straßenseite. Deshalb wollen wir den Schlafbereich am liebsten nach Möglichkeit auf der Südseite behalten
- alle Fenster und Wände im Zimmer sind veränderbar. Lediglich die Tür ins Schlafzimmer muss bleiben
Anbei noch der Grundriss. Was meint ihr? Welche Alternativen hätten wir?
Vielen Dank im Voraus für eure Ideen und liebe Grüße
Hannah
Das ist jetzt der Anbau. Und der soll an ein Bestandshaus?!
Zeigst Du den auch? Ich mein… gibt ja noch andere Möglichkeiten als das plumpe Verlängern eines Hauses für einen Schlafbereich, gerade auch im Süden. Vielleicht auch mit dem nächsten Wasseranschluss… Vor allem, weil der jetzige Vorschlag auch etwas überdimensioniert ist. Oder?
Zeigst Du den auch? Ich mein… gibt ja noch andere Möglichkeiten als das plumpe Verlängern eines Hauses für einen Schlafbereich, gerade auch im Süden. Vielleicht auch mit dem nächsten Wasseranschluss… Vor allem, weil der jetzige Vorschlag auch etwas überdimensioniert ist. Oder?
Danke für deine rasche Antwort! Ja, das wäre der Anbau. Da wir am Bestandshaus wenig ändern wollten, habe ich den mal weggelassen, kann ihn aber gerne nachreichen. Du hast recht, evtl. hat hier jemand ja noch einen Tipp, den wir so gar nicht bedacht hatten… An der Form des Anbaus können wir aber leider nichts mehr ändern 🙁

Ich würd' ja in wenigstens einem der Bäder eine Wanne einplanen. Die Umkleide finde ich relativ klein geraten, dafür noch nen großen schrank(*) im Schlafzimmer? Irgendwie doppelt gemoppelt. Das schöne an einem Entwurf mit Ankleide ist für mich, dass das Schlafzimmer gemütlich und überschaubar wird, weil da eben kein Schrankwand-Koloss drin steht. 🙂
Der Einwand mit der Wanne ist plausibel und wir wollen tatsächlich im Kinderbad eine einbauen. Weder mein Mann noch ich sind nämlich Badewannennutzer…
Das mit dem Schrank stimmt auch. Unsere Befürchtung war nur, dass man sich erschlagen fühlt, wenn man das Schlafzimmer durch eine enge, aber lange Umkleide betritt???
Das mit dem Schrank stimmt auch. Unsere Befürchtung war nur, dass man sich erschlagen fühlt, wenn man das Schlafzimmer durch eine enge, aber lange Umkleide betritt???
Ähnliche Themen