ᐅ Grundriss Entwurf Einfamilienhaus mit 10% Südhang. Hauseingang Podesttreppe
Erstellt am: 02.08.25 23:15
H
Hanger1H
hanghaus202309.09.25 08:41H
hanghaus202309.09.25 08:58Habe ich den Höhenplan übersehen? Wo hat denn der Planer die Höhen her?
Warum hast uns den Grundstücksplan anfangs verheimlicht? Hier fehlen so viele Informationen? Warum auf einmal 3 Kinderzimmer?
Eventuell helfen auch Fotos, damit man sich das Gelände vorstellen kann. Die Umgebung ist auch recht nett zu wissen.
Warum hast uns den Grundstücksplan anfangs verheimlicht? Hier fehlen so viele Informationen? Warum auf einmal 3 Kinderzimmer?
Eventuell helfen auch Fotos, damit man sich das Gelände vorstellen kann. Die Umgebung ist auch recht nett zu wissen.
Habe ich den Höhenplan übersehen? Wo hat denn der Planer die Höhen her?
Hilft Dir das?
Hilft Dir das?
Hanger1 schrieb:
Hallo zusammen,
also die 700 qm sowohl im Titel als auch im ersten Post war ein Tippfehler. Es sollte eigentlich 600 qm heißen da wir exakt 572 qm haben.
Diesmal habe ich das Bild mit den Höhenmessungen tatsächlich angehängt. Hatte es gestern leider vergessen. Der Grund wird Richtung Süden minimal flacher ich denke dies ist aber vernachlässigbar. Nördlich und Westlich ist eine Straße mit 4m Breite. Ich habe dazu ein paar Höhenpunkte aufgenommen. Die Punkte sind mittig auf der Straße (Abstand zum Grund 2m).
@motorradsilke / @ypg
Wir haben eure Idee mit Keller ebenerdig in den Garten für Küche, Essen usw. im OG den Schlafbereich und Zugang von Norden durchdiskutiert.
Wie hättet ihr euch in diesem Fall den Zugang für Gäste vorgestellt. Würden die in der Haustüre in der Nähe der Schlafzimmer reingehen und müssen anschließend eine Etage runter in den Essbereich gehen?
Wir haben etwas recherchiert wie man dies lösen könnte und hätten als Idee eine Art Split Level Lösung. Der Eingangsbereich von der Nordseite ist nahe Ebenerdig zur Straße und das OG (Schlafen) und KG (Wohnen) wäre per halbe Treppe zu erreichen.
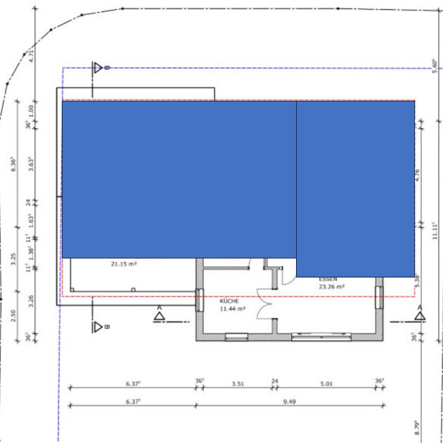
Was haltet ihr davon? Ich habe mir das Beispiel mal skizziert nur zur besseren Veranschaulichung. Der Eingangsbereich und Treppe passen natürlich absolut noch nicht.
Wir haben im Bebauungsplan folgenden Absatz stehen
Sockelhöhe:
Die Oberkante des Rohbodens im Erdgeschoss der Parzelle, deren natürliches Gelände höher als die angrenzende Straße liegt, darf nicht höher als 40cm über dem natürlichen Gelände sein. Gemesen wird an der talseitigen Hausmitte parallel zur Straße.
Was wird in solchen Fällen als Erdgeschoss definiert? Der Keller, das Obergeschoss oder der Eingangsbereich?
hanghaus2023 schrieb:
Kannst Du die Frage aus Beitrag #26 bitte beantworten. Worauf bezieht sich die Höhe der Traufe?
Was spricht gegen so eine Anordnung?

Ich halte diese Variante der Grobplanung auch für das beste!Es gibt keinen Grund, Garage oder Carport auf die Westseite zu verlagern. Dann sieht man zu, dass man den Zugang im Norden ebenerdig macht.
Bei 10% Neigung kommt man bei einem 9 Meter tiefen Haus, welches 3 Meter von der Straße Abstand hält, mit der Terrasse ca. 120cm höher, inkl. der Terrassentiefe 150 oder 160.. wie machen es andere? Den Aushub des Hauses als Terrasse nutzen, Gartenzugang von der Terrasse mit schicker Gartentreppe zu zwei angelegten Rasen/Beet-Ebenen. Man kann auch gleich die Terrasse versetzt anordnen, das belebt. Wenn man Höhen zu überwinden hat, legt man Barrieren, also Treppe nicht zwischen Haus und Garage und auch nicht in voller Höhe vor den Eingang. Da vermittelt man. Wenn es abwärts geht und Splitlevel oder andere Ideen nicht zufriedenstellend sind, legt man die Treppen in den Garten. Der wird nicht an 365 Tagen mehrmals begangen. Das kann man recht schön gestalten und ist ja auch nicht selten.
Ich persönlich würde wohl Splitlevel machen. Anders als mal vom TE geplant, weil ich es offen mag. Mit 2-3 Kindern liegt die Aufteilung für mich aber auch nahe, nur dass das Haus dann wohl teurer als möglich wird. Bleibt wieder der Garten, der durch Treppen mit der Terrasse verbunden wird.
M
MachsSelbst09.09.25 15:01Bei der Hausgröße bzw. Größe des OG und 3 Kindern geht es ohnehin nur so, dass die Eltern mit der Größe von Schlafzimmer und Ankleide zurückstecken, damit jedes Kind zumindest seine 14, 15m² bekommt und das Bad eine vernünftige Größe erhält.
Muss man sich ohnehin mal überlegen, ob es für ein Zimmer, wo man sich 8 Stunden am Tag aufhält, die meiste (nicht die ganze 😉) Zeit schlafend, inkl. Ankleide tatsächlich 20m² sein müssen, während man eine/n 12ährige/n auf 11m² wohnen lassen möchte, der sich dort im Prinzip den ganzen Tag aufhält.
Spätestens mit 12, 13 sitzen die Kinder ja nicht mehr im Wohnzimmer und spielen Lego, sondern sind die meiste Zeit in ihrem Zimmer...
Muss man sich ohnehin mal überlegen, ob es für ein Zimmer, wo man sich 8 Stunden am Tag aufhält, die meiste (nicht die ganze 😉) Zeit schlafend, inkl. Ankleide tatsächlich 20m² sein müssen, während man eine/n 12ährige/n auf 11m² wohnen lassen möchte, der sich dort im Prinzip den ganzen Tag aufhält.
Spätestens mit 12, 13 sitzen die Kinder ja nicht mehr im Wohnzimmer und spielen Lego, sondern sind die meiste Zeit in ihrem Zimmer...
Was macht der Architekt beruflich, und mit welchem Lastenheft wurde er gefüttert ?
Ich muß im übrigen immer an Karl Lagerfelds Meinung über Jogginghosen tragende Menschen denken, wenn ich in Grundrissen Räume zum vor dem Fernseher Abhängen als "Wohnen" bezeichnet lese.
https://www.instagram.com/11antgmxde/
https://www.linkedin.com/company/bauen-jetzt/
Ich muß im übrigen immer an Karl Lagerfelds Meinung über Jogginghosen tragende Menschen denken, wenn ich in Grundrissen Räume zum vor dem Fernseher Abhängen als "Wohnen" bezeichnet lese.
https://www.instagram.com/11antgmxde/
https://www.linkedin.com/company/bauen-jetzt/
Ähnliche Themen