Hausbau - Ratgeber
Bauherrenhilfe
- Bauherrenhilfe vor Vertragsabschluss
-- Warum einen unabhängigen Baubetreuer?
-- Vertragsgrundlagen
-- Bausumme
-- Zahlungsplan zur Kostenkontrolle
-- Pflichten des Bauherren vor Vertragsabschluss
-- Unterlagen beim Hausbau vor Vertragsabschluss
- Bauherrenhilfe nach Vertragsabschluss
-- Bauantrag bei Behörden
-- Bau-Genehmigungsverfahren bei Baubehörden
-- Bauspezifische Versicherungen
-- Bauzeitenplan
-- Baubeginn - die Letzten Pflichten der Bauherrschaft
- Bauherrenhilfe während der Bauzeit
- Gewährleistungsansprüche
- Bauabnahme
Baufinanzierung
- Baufinanzierung - Allgemeine Fragen
- Kreditarten
- Kredit-Konditionen
- Bausparen
- Staatliche Förderungen
- Verkehrswert
- Haushaltsrechnung und Bonität
Hausbau Planung
- Haustypen
- Hausbau Vorbereitungsarbeiten
- Das Baugrundstück
- Baugrund beim Hausbau
- Baurecht
- Gebäudeschutz
- Erdarbeiten und Wasserhaltung
- Stützmauern
- Einfriedung
- Untergeschoss
- Kanalisation
- Tragende Elemente
- Nichttragende Innenwände
- Fundation / Fundament
- Deckenkonstruktionen
- Dächer
- Kaminanlagen
- Treppen Rampen Leitern
- Dachbeläge und Spengler
- Fenster
- Sonnen und Wetterschutz
- Aussenputze
- Einbauten, Küchen, Türen
- Bodenbeläge und Unterlagsböden
- Parkett
- Gips, Wand, Decke
Haustechnik und Energie
- Heiztechnik
- Lüftung und Klimatechnik
- Sanitärtechnik
- Elektrotechnik
- Erneuerbare Energie
Whirlpools / Jacuzzi
Hausbau Magazin
- Baufinanzierung trotz Krise?
- Das Blockhaus
- Moderne Dämmstoffe im Vergleich
- Erker Vor- und Nachteile
- Glasflächen beim Hausbau
- Günstig ein Haus Bauen
- Mediterraner Hausbaustil
- Mehrgenerationenhaus
- Moderne Architektur
- Gartengestaltung leicht gemacht
- Traditioneller Ziegelbau
- Villa als höchster Traum
- Im Eigenheim Ruhestand geniessen
- Altbau sanieren
- Kauf einer Holzgarage
- Immobilienmakler
- Arbeitshandschuhe für den Winter
- Zuhause verschönern
- Outdoor-Plissees
- Schlafzimmer planen
- Terrassenüberdachung
- Wohngebäudeversicherung
- Zaunarten und Eigenschaften
- Hauseingang gestalten
- Der perfekte Grundriss
- Sparsamer heizen im Altbau
- Einfamilienhaus smart finanzieren
- Planung einer PV-Anlage
- Neues Haus
- Immobilienfinanzierung
- Installation einer Photovoltaikanlage
- Asbest erkennen und entfernen
- Gartenpflege im Frühling – worauf achten
- Sauna im Fokus - Wellness zuhause
- Erfolgreich vermieten
- Die perfekte Winterbekleidung
- Das Niedrigenergiehaus
- Der April und seine Stürme
- Architektonische Vielfalt
- Ökologisch und nachhaltig bauen
- Das perfekte Schlafzimmer
- Nachhaltige Energieversorgung
- Zukunftsorientiert bauen
- Nachhaltigkeit beim Hausbau
- Tiny Houses
- Wärmepumpen als nachhaltige Heizvariante
- Maßgeschneiderten Kleiderschrank
- Der richtige Baukredit
- Ratgeber für erfolgreichen Hausbau
- Haus als Altersvorsorge
Do-it-yourself Anleitungen
- Verlegeanleitung für Bodenbeläge und Parkett
- Bodenbeläge und Parkett reinigen und pflegen
- Malerarbeiten am Haus
- Garten Tipps
- Umzug und Reinigung

ᐅ Grundriss Entwurf Einfamilienhaus mit 10% Südhang. Hauseingang Podesttreppe

Erstellt am: 02.08.25 23:15
H
Hanger1
H
Hanger1
04.08.25 23:39
ypg schrieb:

Dein Haus ist ein 2-Geschosser, welches die Haustür im Versatz zwischen den Ebenen hat. Völlig irrer Aufwand, der hier keinem nützt, noch sinnvoll ist.
Hier war letztens auch eine SplitLevel-Idee mit nicht vorhandener dritten Ebene, zwar nicht der Burner, aber immerhin machbar
https://www.hausbau-forum.de/threads/grundriss-zweifamilienhaus-nebeneinander-am-suedhang.49076/
Warum sollte eine Haustüre in einer Zwischenebene in diesem Fall auf Höhe des Podest der Treppe völlig irrer Aufwand sein? Ob ich die Öffnung für die Haustüre im Erdgeschoss, Obergeschoss oder eben in der Zwischenebene auf Höhe des Podests mache solle in der Umsetzung absolut egal sein. Ich nutze ja das Podest für den Eingangsbereich. Einziger Aufwand etwas längeres Podest.

Die Split Level Grundrisse welche ich mir angesehen habe verlieren immer extrem viel Platz unter und über der Split Level Zwischenebene. Die Idee war die Zwischenebene möglichst klein zu halten um dadurch möglichst wenig Platz zu verlieren.
hanghaus2023 schrieb:



11*8m mit 2 Vollgeschosse. Auf 8m hast Du lediglich 0,8m Gefälle. Da macht kein echtes Hanghaus noch SL Sinn.

Wenn ich aber 5m von der Grundstücksgrenze das Haus reinsetzte und den Bereich zwischen Hauseingang Norden und Grundstücksgrenze Ebenerdig auffülle damit ich eben reingehen habe ich schlussendlich auf der Terrassen Seite (5+8= 13m von der Grundstücksgrenze) einen Versatz von 1,3m. Da ich aus der Terrasse Ebenerdig rausgehen möchte wäre dies sehr viel zum auffüllen insbesondere, da das Grundstück bis zur Grenze auf 2,5m fällt (Gesamtlänge 25m).
Papierturm schrieb:

An sich finde ich die ursprüngliche Idee gar nicht mal so schlecht. Bei der Umsetzung aber... erinnert es mich an Geschichten, wo Leute blind der Navi (in dem Fall also der Idee) gefolgt sind und dann mit dem Auto im Meer oder auf der U-Bahn-Treppe landeten.
Zumindest einer der irgendetwas positives auch wenn nur eine Kleinigkeit darin sieht 😉

Ich habe deinen Ansatz mit 11x8m getüftelt und bin jetzt zumindest schonmal auf 11x9m gekommen bei dem ich eure Ratschläge versucht habe umzusetzen.

Mein damalige zweite Idee zu dem Ansatz mit Eingang in der Podestebene wäre Eingang im Obergeschoss, sodass die Gäste in den Wohn und Essbereich eine Etage nach unten gehen müssen. Hier müsste aber das Haus etwas höher Gesetzt werden und auf der Terrassenseite mehr Erde abgetragen werden.
Ich habe jetzt einfach mal einen neuen Entwurf für diese Variante gezeichnet. Vielleicht ist es diesmal etwas besser als Katastrophe 😉

Ein paar Worte noch zu meinen Gedanken
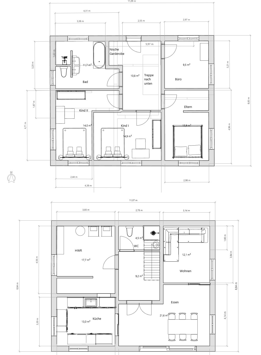
Eingang ist wie oben schon erwähnt im OG. Rechts davon Nische und Garderobe. Kinderwagen usw. könnte in das Büro gestellt werden. Dies ist ja ein überschaubarer Zeitraum. Büro ist ebenfalls ein mögliches drittes Kinderzimmer.
Treppe führt direkt nach unten in den Wohnbereich
Beim Hauswirtschaftsraum bin ich immer noch bei 17,7qm dies wurde jedoch mit der Speis mit Durchgangstüre in die Küche und dem Abstellraum kombiniert.
Wir möchten die Möglichkeit den Wohn (Couch/Fernsehbereich) und Küche räumlich abzutrennen beibehalten deshalb habe ich hier jeweils eine Schiebetüre eingeplant. Ich denke die Eckvariante des Essbereichs ist diesmal aber deutlich offener als in der ersten Variante. Außerdem Lichtdurchfluteter Bereich durch das Treppenhaus + Lofttüre zum Essbereich mit Blick in den Garten.

Wie immer ich freue mich auf euer Feedback
Grundriss eines Hauses mit Küche, Essen, Wohnen, Bad, Eltern- und Kinderzimmer, Büro.

Technische Zeichnung: Haus mit Rechteckkörper, Satteldach und grüner Hilfslinie.
M
MachsSelbst
05.08.25 12:00
Du willst also auf der privaten Ebene ins Haus kommen und da auch der Post aufmachen, Gäste durchschleusen usw.?
Da wo man unter Umständen mal nackt aus der Dusche ins Schlafzimmer rennt? Da wo gerne mal Klamotten, Spielzeuge usw. rumliegen? Und ins Büro springst du dann über die Treppe drüber?
Geschmackssache, aber denk mal drüber nach...

Ohne die Wände würde es großzügig wirken, mit den Wänden und Schiebetüren zwischen Küche, Essen und Wohnen wirkt es sehr beengt alles und wird meiner Meinung auch nicht gut funktionieren.
Wo kommt der Fernseher hin? Wo Schränke für Bücher, Geschirr, Gläser, usw.? Da ist kaum Platz.

Wenn du die Dusche neben dem Eingang in Form des Hauptbades hast, brauchst du im Wohnbereich keine mehr.
Den HAR finde ich nach wie vor lächerlich groß. Meine Nachbarn haben 10m² und das ist schon reichlich. Ich hab 6m², das ist tatsächlich etwas klein, aber auch das geht.
Was soll da alles rein? Fahrräder? Gartengeräte?

Es wirkt auf mich wie der Plan eines Bunkers, wo aus Sicherheitsgründen kein Raum größer als 20m² sein darf und abtrennbar sein muss.

Eure Ankleide im Schlafzimmer ist zu klein, da passen keine 60er Schränke vernünftig rein bzw. gerade mal 2m, wegen der Tür. Das ist sehr, sehr wenig.
Das kleine Kinderzimmer ist durch den Eingangsschlauch auch noch ungünstig geschnitten, diese 2m² sind reiner, nutzloser Laufweg. Und mit den Betten, das ist hoffentlich ein Scherz? Im Schlafzimmer bleiben euch neben dem Bett gerade 50cm?

Bad finde ich gar nicht mal so schlecht.
11ant05.08.25 15:15
Hanger1 schrieb:

Warum sollte eine Haustüre in einer Zwischenebene in diesem Fall auf Höhe des Podest der Treppe völlig irrer Aufwand sein? Ob ich die Öffnung für die Haustüre im Erdgeschoss, Obergeschoss oder eben in der Zwischenebene auf Höhe des Podests mache solle in der Umsetzung absolut egal sein. Ich nutze ja das Podest für den Eingangsbereich. Einziger Aufwand etwas längeres Podest.
Die Split Level Grundrisse welche ich mir angesehen habe verlieren immer extrem viel Platz unter und über der Split Level Zwischenebene.
Ich teile die Kritik an dieser Idee nicht. Allerdings führt es zu nichts, diese Spezialvariante mit "echten Split Level" Bauvorschlägen vergleichen zu wollen.
Hanger1 schrieb:

Ich habe deinen Ansatz mit 11x8m getüftelt und bin jetzt zumindest schonmal auf 11x9m gekommen bei dem ich eure Ratschläge versucht habe umzusetzen.
In Deinen Zeichnungen solltest Du auch selbst gut erkennen können, weshalb ich die Geschoßgrundrisse "top down" zu entwickeln rate. Mit einem Rahmen "Icks x Ypsilon Meter" zu beginnen, führt zu nichts gutem (nämlich regelmäßig zu unbefriedigenden Ergebnissen und der Trugkonsequenz, es müsse wohl doch größer werden). Weshalb willst Du Dich selbst ausgerechnet damit beeindrucken, als Laienplaner-Zauberlehrling auf Anfängerglück zu hoffen - träumst Du (ernsthaft ?) davon, mit einem community-geschliffenen Eigenentwurf das Honorar eines studierten Architekten einsparen zu können (und womöglich gar, daß das dann die Mehr-Hausgröße bezahlen würde) ?
Wo sind Deine Hemmungen, einfach dem Rat zu einem konzeptionellen Vorgehen zu folgen ? - manchmal denke ich, ich schreibe gegen eine Wand; auch und nicht zuletzt mit dem Rat, als Normalfamilie nach Standard-Bauvorschlägen zu schauen.
https://www.instagram.com/11antgmxde/
https://www.linkedin.com/company/bauen-jetzt/
A
Arauki11
05.08.25 15:37
Tatsächlich verstehe ich auch nicht so ganz, warum Du Dich immer und immer wieder daran versuchst.......
Deine Bedürfnisse sind doch eher im Standardbereich zu finden, warum also nicht einen der Trilliarden Grundrisse im Netz zumindest als Basis nehmen und dann die gewünschten Details anpassen?
11ant05.08.25 16:00
Arauki11 schrieb:

warum also nicht einen der Trilliarden Grundrisse im Netz zumindest als Basis nehmen und dann die gewünschten Details anpassen?
Das wurde ja sogar gemacht ...
Hanger1 schrieb:

Planer eines Bauunternehmens: Ideen eines Bauunternehmens jedoch Do it yourself
... und dann auf meine Anregung ...
11ant schrieb:

Deren Version vor der Verdoityourselfung wäre mal interessant.
... mit dem Original (und einer Beschreibung der Änderungspunkte und ihrer Motive) herauszurücken, noch nicht reagiert.
https://www.instagram.com/11antgmxde/
https://www.linkedin.com/company/bauen-jetzt/
Papierturm06.08.25 15:49
Hanger1 schrieb:

[...]
Vorab: Ich liege mit Fieber flach und bin absolut nicht zurechnungsfähig, was ich jetzt beweisen werde!

Ich habe über den neuen Plan nachgedacht und da kam mir, dass ich die Idee wenn dann konsequent zu Ende gehen würde.
Würde für mich (wenn ich davon ausgehe: Hang nach Süden = Aussicht nach Süden, die auch ein wenig hermacht) bedeuten, dass ich überlegen würde die Ebenen zu tauschen und dabei das Haus ein klein wenig tiefer zu setzen (um eine Westterrasse zu erlauben). Hätte mehrere Vorteile:
- beim Eingang ist man nicht im privaten Bereich, sondern im öffentlichen Bereich.
- vom Essbereich aus hat man viel mehr Aussicht.
- im Sommer ist in Sachen Wärmeschutz Schlafräume unten auch angenehmer.
- Terrasse könnte dann als Westterrasse angelegt werden, in einer Höhenlinie mit Haus. Abendsonne ist ohnehin schön.

Hätte auch ein paar Nachteile. Südterrasse würde so nicht gehen. Westfenster würden dann unten schwieriger, da dort nur Lichtbänder dann möglich (bei Neuanordnung Räume unten zu beachten! Hauswirtschaftsraum/Bad/Büro an Westseite daher). Da die Aufteilung eher ungewöhnlich ist, weiß ich auch nicht, wie andere darauf reagieren.

So. Und jetzt mal Papierturms bedröppelte Ideen zur Seite zum eigentlichen Grundriss. Der gefällt mir schon besser. Ich sehe weiterhin zwei große Probleme:
1. Ich glaube nicht, dass der Wohnzimmerbereich so wirklich funktioniert. Ich würde, wenn das mein geplantes Haus wäre, den mal tatsächlich aufm Parkplatz o.ä. mit Seilen und Platzhaltern (z.B. Kartons) nachbilden und überlegen, wie man den sinnvoll möblieren und nutzen will. Egal wie viel geistiges Tetris ich da spiele, ich finde keine gute Lösung.
2. Der Hauswirtschaftsraum ist weiterhin extrem groß. Hier vermute ich etwas: Die Idee, den Hauswirtschaftsraum auch als Kellerersatz zu nutzen. Nach dem Motto da ist Stauraum, da kann man was unterbringen, Speisekammer nun auch mit inkludiert.
Aber: Moderne HWRs sind dafür oft nur bedingt geeignet. Mit entsprechender Technik im Hauswirtschaftsraum, je nachdem, wird es da schon kuschelig warm drin. Ungünstig um bestimmte Sachen (z.B. Getränke, Kartoffeln und co) zu lagern. Auch wieder die Beobachtung, dass der Hauswirtschaftsraum (ein Nutzraum) größer ist als das Wohnzimmer (ein Aufenthaltsraum).
Auch entsteht hier im Hauswirtschaftsraum viel "tote" Fläche in der Raummitte. Böse könnte ich sagen: Was der Hauswirtschaftsraum zu viel hat, hat das Wohnzimmer zu wenig.

Persönlich: Es wird Gründe geben, weshalb die Abtrennung mit Schiebtüren zwischen Küche / Essbereich / Wohnbereich gewünscht wird. Ohne diese Gründe zu kennen fällt es mir schwer, da die Alltagstauglich- bzw. -untauglichkeit einzuschätzen.

Ob das Büro gut zu erreichen ist, mit der so geplanten Treppe, weiß ich auch nicht.
hauswirtschaftsraumeingangtreppeessbereichküchepodestsplitgrundstücksgrenzewohnbereichschlafzimmer