S
Stein202309.11.23 00:01Hallo zusammen,
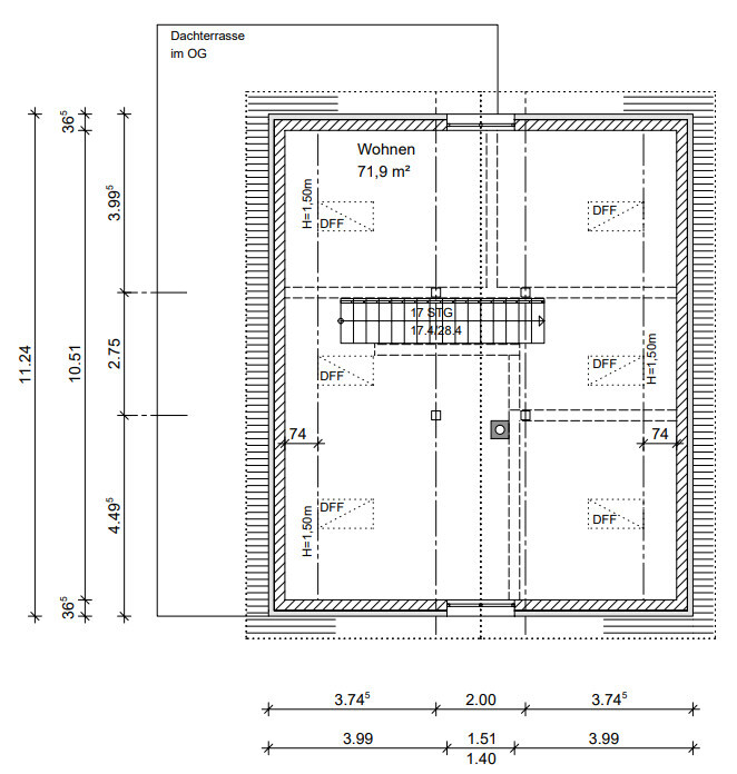
wir sind gerade dabei, Dachfenster zu planen. Nachfolgend findet Ihr das DG, wo die Fenster erstmal provisorisch gesetzt worden sind:

Wie ihr seht, gibt es auch auf der Giebelseite Fenster. Das Dach soll als Studio dienen und hat sonst keinerlei Innenwände.
Sind 6 Dachfenster nicht zu viel? Vielleicht habt ihr Erfahrungswerte.
wir sind gerade dabei, Dachfenster zu planen. Nachfolgend findet Ihr das DG, wo die Fenster erstmal provisorisch gesetzt worden sind:
Wie ihr seht, gibt es auch auf der Giebelseite Fenster. Das Dach soll als Studio dienen und hat sonst keinerlei Innenwände.
Sind 6 Dachfenster nicht zu viel? Vielleicht habt ihr Erfahrungswerte.
Ich nehme an, dieser Thread ist nun die Antwort auf meine Anregung
https://www.instagram.com/11antgmxde/
https://www.linkedin.com/company/bauen-jetzt/
11ant schrieb:Seit
Wenn Du das wundersam nur in der traufseitigen Ansicht vorhandene Zwerchhaus meinst: ich glaube, hier planst Du etwas, das in Deiner eigenen räumlichen Vorstellung noch nicht so ganz angekommen ist. Zeige mal einen Grundriss des Spitzbodens (und insbesondere, wo da eine Ausbaureserve sein soll). Wurde der Keller wieder wegdisponiert ?
Stein2023 schrieb:vor einem halben Jahr ist klugerweise die Laufrichtung der Treppe gedreht worden, sodaß sich nun das ominöse Verlegenheitszwerchhaus wieder erledigt hat. Ich bin gespannt, wie ewig dieses Murmeltier noch grüßt ;-)
wir haben das OG nochmals angepasst
https://www.instagram.com/11antgmxde/
https://www.linkedin.com/company/bauen-jetzt/
S
Stein202309.11.23 09:41kbt09 schrieb:
Sind das weniger als 2 m Höhe, da wo die Treppe endet? Dann sollte dringend direkt ggü. der Treppe planrechts ein Dachfenster in Treppenbreite sein.
Die Frage ist ja, was soll in diesem Raum passieren? Wo ist Norden?Hallo @kbt09 , 2,30 Meter sind es, wo die Treppe endet. Da muss auf jeden Fall ein Fenster hin. Die Frage ist, ob die Fenster planoben und planunten wirklich gebraucht werden, da dort auf der Giebelseite ohnehin Fenster sind.
M
motorradsilke09.11.23 10:48Ich würde versuchen, die Giebelfenster größer zu machen.
motorradsilke schrieb:
Ich würde versuchen, die Giebelfenster größer zu machen.Das auch, ja. Aber vor allem würde ich erst einmal Stakeholder möglicher Nutzungen fokussieren und dann beispielsweise einen Spielflur am Treppenaustritt einhausen. Das ganze Volumen nur so als Heizlastgrab zu bauen, wäre wohl nicht der wahre Jakob. Auch der Rest der Arie Heizung-Lüftung-Klima wäre zu beantworten: (Nicht)teilnahme an der Kontrollierte-Wohnraumlüftung, ...https://www.instagram.com/11antgmxde/
https://www.linkedin.com/company/bauen-jetzt/
Ähnliche Themen