
kbt09
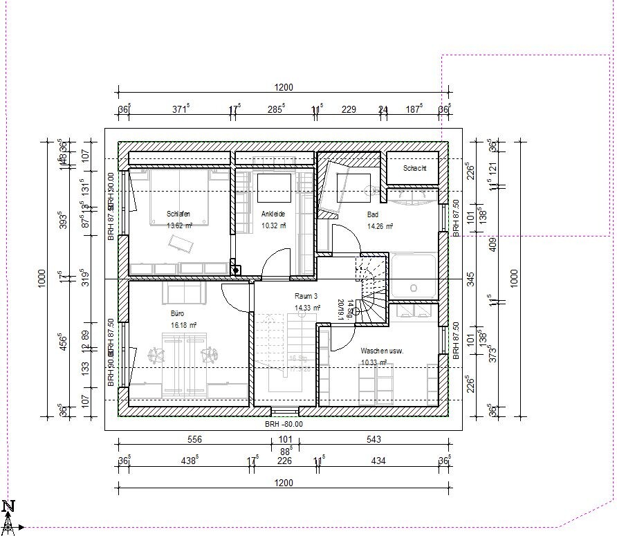
... und eigentlich müsste man auch die Entfernung sofa/TV prüfen. Sieht ja nicht nach Beamerwand aus, aber trotzdem nach ca. 650 cm. Das ist oft zu weit. Und Sofa wirklich vor bodentiefen Fenstern?
Wo soll Terrasse hin und schon mal Weg Küche/TErrasse geprüft?
Fernblick im Norden ... wann kann man ihn genießen ... eher immer mal tagsüber bei diversen Aktionen Küche/essen usw. oder eher dann, wenn man Zeit fürs Sofa hat? Im Winter ja eher dann, wenn es dunkel ist, im Sommer wird man vielleicht solange es hell ist, die Zeit eher auf der Nord?-Terrasse verbringen, gerne mit schnellem Zugang zum gekühltem Getränk.
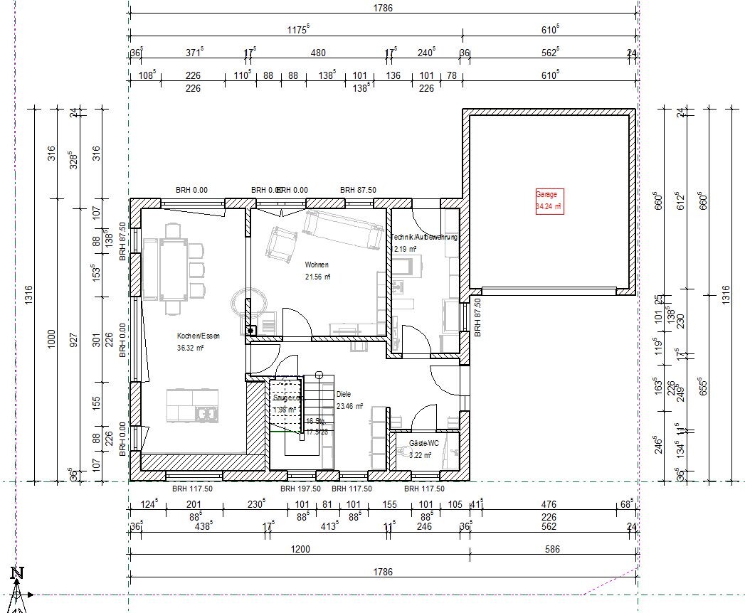
Wo soll Terrasse hin und schon mal Weg Küche/TErrasse geprüft?
Fernblick im Norden ... wann kann man ihn genießen ... eher immer mal tagsüber bei diversen Aktionen Küche/essen usw. oder eher dann, wenn man Zeit fürs Sofa hat? Im Winter ja eher dann, wenn es dunkel ist, im Sommer wird man vielleicht solange es hell ist, die Zeit eher auf der Nord?-Terrasse verbringen, gerne mit schnellem Zugang zum gekühltem Getränk.