Hausbau - Ratgeber
Bauherrenhilfe
- Bauherrenhilfe vor Vertragsabschluss
-- Warum einen unabhängigen Baubetreuer?
-- Vertragsgrundlagen
-- Bausumme
-- Zahlungsplan zur Kostenkontrolle
-- Pflichten des Bauherren vor Vertragsabschluss
-- Unterlagen beim Hausbau vor Vertragsabschluss
- Bauherrenhilfe nach Vertragsabschluss
-- Bauantrag bei Behörden
-- Bau-Genehmigungsverfahren bei Baubehörden
-- Bauspezifische Versicherungen
-- Bauzeitenplan
-- Baubeginn - die Letzten Pflichten der Bauherrschaft
- Bauherrenhilfe während der Bauzeit
- Gewährleistungsansprüche
- Bauabnahme
Baufinanzierung
- Baufinanzierung - Allgemeine Fragen
- Kreditarten
- Kredit-Konditionen
- Bausparen
- Staatliche Förderungen
- Verkehrswert
- Haushaltsrechnung und Bonität
Hausbau Planung
- Haustypen
- Hausbau Vorbereitungsarbeiten
- Das Baugrundstück
- Baugrund beim Hausbau
- Baurecht
- Gebäudeschutz
- Erdarbeiten und Wasserhaltung
- Stützmauern
- Einfriedung
- Untergeschoss
- Kanalisation
- Tragende Elemente
- Nichttragende Innenwände
- Fundation / Fundament
- Deckenkonstruktionen
- Dächer
- Kaminanlagen
- Treppen Rampen Leitern
- Dachbeläge und Spengler
- Fenster
- Sonnen und Wetterschutz
- Aussenputze
- Einbauten, Küchen, Türen
- Bodenbeläge und Unterlagsböden
- Parkett
- Gips, Wand, Decke
Haustechnik und Energie
- Heiztechnik
- Lüftung und Klimatechnik
- Sanitärtechnik
- Elektrotechnik
- Erneuerbare Energie
Whirlpools / Jacuzzi
Hausbau Magazin
- Baufinanzierung trotz Krise?
- Das Blockhaus
- Moderne Dämmstoffe im Vergleich
- Erker Vor- und Nachteile
- Glasflächen beim Hausbau
- Günstig ein Haus Bauen
- Mediterraner Hausbaustil
- Mehrgenerationenhaus
- Moderne Architektur
- Gartengestaltung leicht gemacht
- Traditioneller Ziegelbau
- Villa als höchster Traum
- Im Eigenheim Ruhestand geniessen
- Altbau sanieren
- Kauf einer Holzgarage
- Immobilienmakler
- Arbeitshandschuhe für den Winter
- Zuhause verschönern
- Outdoor-Plissees
- Schlafzimmer planen
- Terrassenüberdachung
- Wohngebäudeversicherung
- Zaunarten und Eigenschaften
- Hauseingang gestalten
- Der perfekte Grundriss
- Sparsamer heizen im Altbau
- Einfamilienhaus smart finanzieren
- Planung einer PV-Anlage
- Neues Haus
- Immobilienfinanzierung
- Installation einer Photovoltaikanlage
- Asbest erkennen und entfernen
- Gartenpflege im Frühling – worauf achten
- Sauna im Fokus - Wellness zuhause
- Erfolgreich vermieten
- Die perfekte Winterbekleidung
- Das Niedrigenergiehaus
- Der April und seine Stürme
- Architektonische Vielfalt
- Ökologisch und nachhaltig bauen
- Das perfekte Schlafzimmer
- Nachhaltige Energieversorgung
- Zukunftsorientiert bauen
- Nachhaltigkeit beim Hausbau
- Tiny Houses
- Wärmepumpen als nachhaltige Heizvariante
- Maßgeschneiderten Kleiderschrank
- Der richtige Baukredit
- Ratgeber für erfolgreichen Hausbau
- Haus als Altersvorsorge
Do-it-yourself Anleitungen
- Verlegeanleitung für Bodenbeläge und Parkett
- Bodenbeläge und Parkett reinigen und pflegen
- Malerarbeiten am Haus
- Garten Tipps
- Umzug und Reinigung

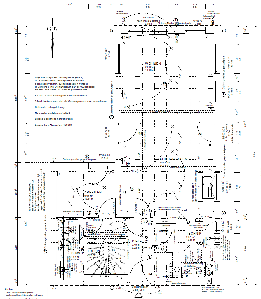
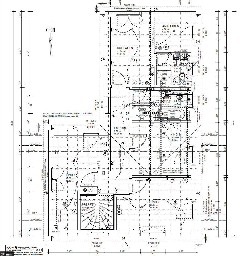
ᐅ Grundriss Einfamilienhaus L-Form 160 qm 35° Satteldach 2,10m Kniestock

Erstellt am: 11.07.22 10:16
D
deuffgyq
D
deuffgyq
11.07.22 10:16
Hallo zusammen,

könnt Ihr bitte einen Blick auf unsere Grundrisse werfen und uns dann sagen, was wir besser machen können.

Was muss sein:

EG: Arbeitszimmer, Gäste-WC mit Dusche.
OG: 3 Kinderzimmer, Elternsuite

Wir haben auch die Garage eingeplant, die Garage liegt an der Seitenwand des Gäste-WCs (Nord-Seite)

Kinderbad haben wir geändert, Das Kinderbad kriegt 2 Waschbecken und eine Dusche 90*90 damit man nicht so eng den Raum begehen kann.

Das Grundstück ist ein Grundstück mit Baulast. Deswegen haben wir hier die L-Form.

Gefällt euch der offene Wohn-Ess-Kochbereich von 45,5 qm ?

Müssen wir da ein Trennwand einbauen ?

Danke für ihr Feedback

Gruß

2D-Grundriss eines Hauses mit Wohnbereich, Küche, Flur, Bad und Treppen, detaillierte Maße.


Grundriss eines Hauses mit Schlafen, Ankleide, Bad/WC, Kind 1–3 und Treppe
D
driver55
11.07.22 10:45
Bitte einen möblierten Grundriss einstellen und kein Installationsplan.

Aber, das Thema Grundriss ist doch ohnehin durch…(Thema „Luftpumpe“…Baugenehmigung…)
C
Costruttrice
11.07.22 11:20
Ich kann auf den Plänen nicht wirklich viel erkennen. Daher nur so viel: Wo bringt ihr Jacken und Schuhe von Eltern plus 3 Kindern unter? In dem Flur gibt es dafür -so weit ich das erkennen kann- keinen Platz.
Ibdk1411.07.22 11:45
Auf die Schnelle nach dem ersten Blick: Wie wollt ihr im Elternschlafzimmer das Bett stellen? Alle möbel einzeichnen wäre gut für eine Bewertung.
T
Tassimat
11.07.22 11:53
Ja, Möbel sauber einzeichen!

Passt da eine ausreichend große Küche hinein?
Passen in die Ankleide die Schränke rein ohne das Fenster zu verdecken?
kbt0911.07.22 12:05
Ohne Möbel wirklich schlecht zu beurteilen, aber folgendes fällt auf:
- Küche sehr klein
- Kind 1 .. der Wurmfortsatz ... wie gesagt Möbel
- beide Bäder .. bitte auch so, wie irgendwelche Planänderungen es sagen, insbesondere Kinderbad Wanne mit ggü. Waschen/WC auf 2 m Breite, wo noch Vorwände kommen ist ziemlich eng
- Elternbereich rechts und links vom Ankleidefenster sind keine 60 cm, Bett, Laufwege
- Eltern im Süden, Kinderzimmer im Norden
- Treppe sieht eng und steil aus.
möbelkinderbadduschekinderzimmergaragegrundstückgrundrissbettküche