Hallo, wir sitzen gerade an unserer Planung und wären sehr dankbar für Eure Ideen und Anregungen.
Folgende Punkte beschäftigen uns aktuell:
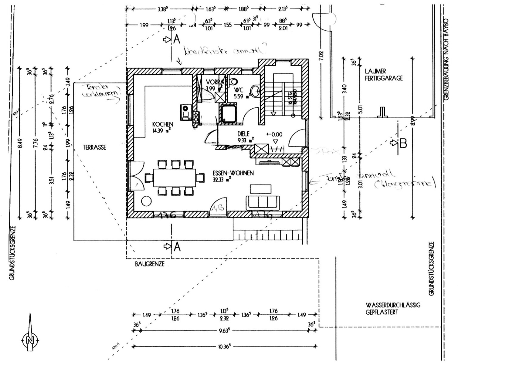
Zugunsten der Stellfläche für Herdplatte und Spüle wollen wir auf das Nordfenster in der Küche verzichten, sind aber noch etwas am Schwanken.
Auch die Möglichkeit den Vorratsraum waagrecht in den Norden zu verschieben beschäftigt uns.
Das Ostfenster wollen wir evtl. etwas verschmälern, wie das Badfenster im OG.
Im Keller befindet ich übrigens noch ein 20qm grosses Souterrain -Wohnzimmer, sodass der Schwerpunkt im EG auf der Küche liegt.
Die Südfenster im Schlafzimmer und im Kinderzimmer wollen wir verkleinern zugunsten der Stellfläche. Das Fenster im Kinderzimmer 2 möchten wir streichen.
Die aktuelle Badplanung ist leider noch nicht im Plan. Wir überlegen auch noch das Bad etwas zu verkleinern.
Bzgl. der Position der Garage sind wir noch sehr unschlüssig.
Wie ihr seht, gibt es da noch eine Reihen an Fragen, die uns beschäftigen...
Danke für Eure Unterstützung


Folgende Punkte beschäftigen uns aktuell:
Zugunsten der Stellfläche für Herdplatte und Spüle wollen wir auf das Nordfenster in der Küche verzichten, sind aber noch etwas am Schwanken.
Auch die Möglichkeit den Vorratsraum waagrecht in den Norden zu verschieben beschäftigt uns.
Das Ostfenster wollen wir evtl. etwas verschmälern, wie das Badfenster im OG.
Im Keller befindet ich übrigens noch ein 20qm grosses Souterrain -Wohnzimmer, sodass der Schwerpunkt im EG auf der Küche liegt.
Die Südfenster im Schlafzimmer und im Kinderzimmer wollen wir verkleinern zugunsten der Stellfläche. Das Fenster im Kinderzimmer 2 möchten wir streichen.
Die aktuelle Badplanung ist leider noch nicht im Plan. Wir überlegen auch noch das Bad etwas zu verkleinern.
Bzgl. der Position der Garage sind wir noch sehr unschlüssig.
Wie ihr seht, gibt es da noch eine Reihen an Fragen, die uns beschäftigen...
Danke für Eure Unterstützung
Hi,
macht euch mal Gedanken darüber ob ihr die Treppe nicht mit dem Gäste-WC tauschen wollt. Ihr habt doch eh nen Keller somit braucht ihr eigentlich auch keine Speisekammer, oder?
Es ist immer einfacher die Treppe in der Mitte des Hauses zu haben, damit wird oben der Flur kleiner und ihr bekommt größere Räume. Ihr müsstet oben die Räume dann neu puzzeln, jedoch wäre es das wert.
macht euch mal Gedanken darüber ob ihr die Treppe nicht mit dem Gäste-WC tauschen wollt. Ihr habt doch eh nen Keller somit braucht ihr eigentlich auch keine Speisekammer, oder?
Es ist immer einfacher die Treppe in der Mitte des Hauses zu haben, damit wird oben der Flur kleiner und ihr bekommt größere Räume. Ihr müsstet oben die Räume dann neu puzzeln, jedoch wäre es das wert.
Es gibt hier im Forumsbereich einen angepinnten Beitrag:
https://www.hausbau-forum.de/threads/grundrissplanung-unbedingt-vor-Beitrag-Erstellung-lesen.11714/
Wäre nett, wenn du den liest und dann hier entsprechend die Infos zur Verfügung stellst. Also auch Lageplan. Dann wäre es ebenfalls nett, wenn du alle Grundrisse einheitlich ausrichtest und auch so zuschneidest, dass man nicht so eine irre großen weißen Rand wie beim OG-Grundriss hat.
Wenn sowieso so einige Änderungen schon feststehen, dann vielleicht auch kurz im Grundriss markieren.
Und dann sinnvollerweise alle Infos zusammen hier noch mal in eine Antwort packen.
https://www.hausbau-forum.de/threads/grundrissplanung-unbedingt-vor-Beitrag-Erstellung-lesen.11714/
Wäre nett, wenn du den liest und dann hier entsprechend die Infos zur Verfügung stellst. Also auch Lageplan. Dann wäre es ebenfalls nett, wenn du alle Grundrisse einheitlich ausrichtest und auch so zuschneidest, dass man nicht so eine irre großen weißen Rand wie beim OG-Grundriss hat.
Wenn sowieso so einige Änderungen schon feststehen, dann vielleicht auch kurz im Grundriss markieren.
Und dann sinnvollerweise alle Infos zusammen hier noch mal in eine Antwort packen.
Baufix7 schrieb:
Zugunsten der Stellfläche für Herdplatte und Spüle wollen wir auf das Nordfenster in der Küche verzichten,Baufix7 schrieb:
Die Südfenster im Schlafzimmer und im Kinderzimmer wollen wir verkleinern zugunsten der Stellfläche. Das Fenster im Kinderzimmer 2 möchten wir streichen.Wenn ich recht interpretiere, wollt Ihr im Wohnzimmer zwei Fenster so ändern, daß sie niedrigere Brüstungen bekommen, das gefällt mir besser als die bloßweilallediehaben bodentiefe Variante. An allen anderen Stellen halte ich Eure Fensteränderungsvorhaben für nicht gut, bzw. zumindest unnötig:An der Südwand (es ist im übrigen bequemer zu betrachten, alle Grundrisse gleichmäßig zu norden) haben die Fenster im OG wohl 150 cm Brüstungshöhe. Für Schrankstellfläche schiebt Ihr besser die Tür des Kinderzimmers mehr aus der Ecke heraus.
Herd und Spüle werden durch das Fenster nicht gestört, man kann ja dem Fenster einen so etwa 20 - 25 cm hohen, feststehenden unteren Teil geben. Dann kann es bequem über Wasserhahn und Töpfe hinwegschwenken.
Die Fensterpositionen erscheinen mir planerisch-handwerklich gut gewählt und auch dimensioniert.
Zaba12 schrieb:
Ihr habt doch eh nen Keller somit braucht ihr eigentlich auch keine Speisekammer, oder?Die Speisekammer ist da schon richtig. Eine Speiserumpelkammer soll es ja gar nicht sein, wie ich der Verkleinerung entnehme.https://www.instagram.com/11antgmxde/
https://www.linkedin.com/company/bauen-jetzt/
Hallo,
hier noch die zusätzlichen Infos.
Idee wäre im OG die Südfenster auf 1,13 zu verkleinern und die Fenster im Norden wegzulassen.
Die fixen Änderungen habe ich bereits per Hand im Plan ergänzt






hier noch die zusätzlichen Infos.
- Grundstück 695qm (Eckgrundstück Süd und Westseite frei), leichte Hanglage ca. 2m Gefälle im Baufenster
- Satteldach 28 Grad
- 2,5 Geschosse (Keller, EG, OG mit 2m Kniestock)
- Aktuell sind wir zu zweit- planen jedoch Nachwuchs.
- Ziel ist bzw. war möglichst klein zu bauen
- Der Grundriss soll flexibel sein (z.B. spätere Teilung von Wohnen und Küche als Option), wir planen daher die nichttragenden Wände in Trockenbau.
- Das Treppenhaus ist am Rand, um eine spätere Abteilung der beiden Geschosse zu ermöglichen.
Idee wäre im OG die Südfenster auf 1,13 zu verkleinern und die Fenster im Norden wegzulassen.
Die fixen Änderungen habe ich bereits per Hand im Plan ergänzt
Baufix7 schrieb:
Idee wäre im OG die Südfenster auf 1,13In der Höhe? Oder wie?Zur Küche .. Küchenplan machen, dann weiß man welche Fenster entfallen oder vielleicht einfach statt Brüstungshöhe 90 cm besser Brüstungshöhe 125 cm haben. Da kann man dann sogar ein Kochfeld vors Fenster setzen und Decken-Dunstabzugshaube dazu.
Welche Kniestockhöhe hat denn das OG? Die Südfenster mit ihrer Fensterausschnittshöhe von 76 cm (Glashöhe ist ja dann Max. 65 cm) beginnen bei welcher Brüstungshöhe? Und ein Fenster über dem Kopf vom Elternbett finde ich auch nicht so praktisch, da eher überlegen, das Elternzimmer mit Kind 2 zu tauschen. Die Fenstergröße im Abstellraum sollte man schmaler machen, damit rechts und links vom Fenster auch etwas stehen kann.
Wenn du jetzt eine Haupttreppe so setzt, dass man das Haus mal trennen kann, dann musst du das OG auch so durchdenken, dass man da jederzeit auch noch eine Küche etc. installieren kann. Und dir überlegen, wie du dann im EG wohnen willst.
Das sehe ich alles nicht so klar und würde daher eher sehen, dass die Treppe so liegt, dass du heute ein gut funktionierendes Haus bekommst.
Leider erkennt man das Gefälle des Geländes auf den Ansichtsbildern gar nicht. Wie viel Platz ist denn noch im Westen? Und kommt im Westen eine Straße?
Was soll denn in der Küche an der Speisekammerwand stehen? Und wo soll überhaupt der Speisekammer-Zugang sein? Durch die Duschausbuchtung (bei Haustrennung dann auch ans eigene Alter denken .. wird die Dusche noch bequem?) bekommt die Speisekammer ja Engstellen.
Ähnliche Themen