Grundriss Einfamilienhaus ca. 200qm ohne Keller

4,70 Stern(e) 6 Votes
Zuletzt aktualisiert 04.10.2025
Sie befinden sich auf der Seite 4 der Diskussion zum Thema: Grundriss Einfamilienhaus ca. 200qm ohne Keller
>> Zum 1. Beitrag <<

B

Bobby007

Dann bist doch wieder so dicht an der Strasse.

Anhang anzeigen 85530


Ich bin nicht sicher ob Du nicht auch die üblichen 5 m vor der Garage einhalten musst.
Dann bist doch wieder so dicht an der Strasse.

Anhang anzeigen 85530


Ich bin nicht sicher ob Du nicht auch die üblichen 5 m vor der Garage einhalten musst.
Ach so, nein ich würde mit deinen Grundflächen von 9x11 ins Rennen gehen und die Garage weiterhin "hinten" lassen. Mal schauen, ob das mit den Abmessungen dann noch einigermaßen hinhaut aber der Grundriss gefällt uns jetzt besser mit dem Eingangsbereich im Osten und der langen Treppe. Bei uns reichen wohl 4m vor der Garage....
 
H

hanghaus2023

Ich würde auf jeden Fall die Garage mit Abstelle (max 9 m ) an die Grenze platzieren. Und auch nach hinten an die Grenze.
 
B

Bobby007

Was ist das denn für ein Weg/Strasse, dass die Überbauung genehmigt wird?
Es handelt sich um eine normale 30er Zone. Denke, dass es vielleicht mit dem 34er zu tun hat und der Beurteilung der umliegenden Häuser. Hier ist jedes 4 oder 5 Haus ziemlich nah an der Straße gebaut (vermutlich auch wegen der unpraktischen Flurstücksgrößen geschuldet). Das gegenüberliegende Haus ist ja auch nah an der Straße gebaut mit vielleicht 3m bis zur Garage. Des Weiteren liegt der Fahrbahnrand auch nochmal deutlich hinter der Grenze.
 
B

Bobby007

Ich habe meinen Entwurf korrigiert. Ich hatte vorhin nur den Text angepasst. Nun auch das Haus.

Anhang anzeigen 85507
Ich sehe das wie @ypg. Abstandsflächen sollte man nicht verletzen. Selbst wenn Dein Architekt meint das Er das genehmigt bekommt. Mein Vorschlag:

Anhang anzeigen 85501

Eingang dann im Osten. Garage 7*8m Haus 9*13m. Wenn Du den 3. Giebel unbedingt haben willst, dann kann man den ja andeuten.
Habe mal versucht den Eingangsbereich jetzt über die Ostseite darzustellen. Jetzt gefällt es mir auch besser.....
Vier Ansichten eines Hauses mit Satteldach, Front- und Seitenansichten samt Garage.

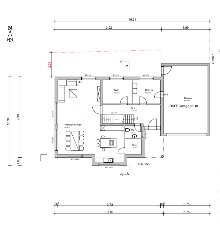
Grundriss eines Hauses mit Wohnen/Kochen, Gym, Flur, HWR, WC, Abst., Garage

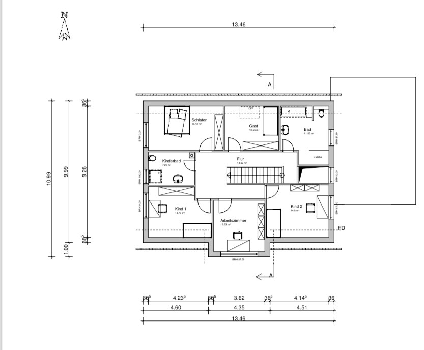
Grundriss eines Hauses mit Schlafzimmer, Gästezimmer, Kinderbad, Arbeitszimmer, Flur, Kind 1, Kind 2
 
Y

ypg

Also, wenn, dann richtig. Zb eine Garderobe, und auch wenn da die Straße ist, dann bekommt mehr mehr Offenheit und Bezug zum Garten, wenn man Terrassentüren setzt und davor eine Hecke mit kleinem Weg.
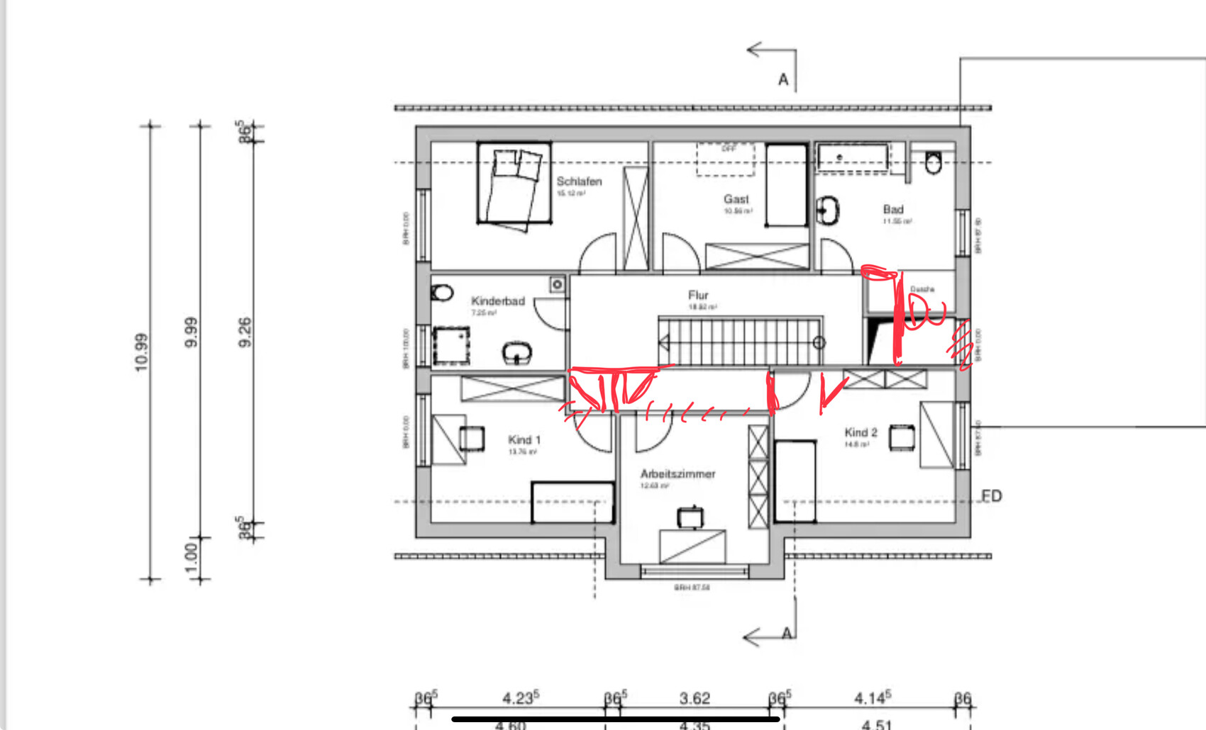
Oben der Luftraum bringt gar nichts, weil die Wände links und rechts das Licht abschotten wie ein Nadelöhr. Auf den halben Flur kann man auch verzichten..
Grundriss einer Etage: Schlafzimmer, Gast, Kinderbad, Kind 1, Kind 2, Arbeitszimmer, Flur, Treppe.

Grundriss eines Hauses mit Wohnen/Kochen, Gym, Flur, WC, Abstellraum, Garage; rote Markierungen.
 
Zuletzt aktualisiert 04.10.2025
Im Forum Grundrissplanung / Grundstücksplanung gibt es 2509 Themen mit insgesamt 87151 Beiträgen


Ähnliche Themen zu Grundriss Einfamilienhaus ca. 200qm ohne Keller
Nr.ErgebnisBeiträge
1Entwurf Einfamilienhaus mit Garage/Carport - bitte um Bewertung 22
2Grundriss Einfamilienhaus mit Garage 18
3Grundrissplanungen Einfamilienhaus und Garage - Seite 332
4Einfamilienhaus 145qm mit Garage ohne Keller 25
5Garage direkt an Einfamilienhaus. Fundament ausreichend? 20
6Hausfinanzierung - Haus, Garage und Bodenplatte ca. 290.000 EUR 11
7Technikraum in Garage einbauen? Ist dies möglich? 35
8Beheizung Garage. Was ist die beste / günstigste Lösung? 10
9Wo stellen wir Haus und Garage hin? 10
10Kostenschätzung Einfamilienhaus mit Garage 11
11Bungalow mit 140qm und Garage im Grundriss 13
12Erstes Angebot, 157m2 mit Keller, KFW 70, Garage 14
13Grundrissentwurf eines Passivhauses 170m² mit Garage - Seite 218
14Garage: Gestaltungsmöglichkeit des Daches, Erscheinungsbild 14
15Hausausrichtung / Hauseingang und Garage - Seite 214
16Begehbare Garage (Terrasse) 11
17Planung optimale Anordnung Haus, Garage und Einfahrt 13
18Grundriss mit Garage auf Grundstück realisierbar? 29
19Wo günstige Garage beziehen? - Seite 211
20Regenspeicher in der Garage? 11

Oben