ᐅ Grundriss Einfamilienhaus ca. 158qm mit Kinderschlafzimmer im DG
Erstellt am: 06.09.24 19:57
A
AbartigHallo Zusammen,
Bebauungsplan/Einschränkungen
Größe des Grundstücks: 713qm
Hang: im Baufenster ziemlich eben
Grundflächenzahl: 0,3
Geschossflächenzahl: 2 Zahl der Vollgeschosse als Höchstmaß
Baufenster, Baulinie und -grenze: siehe Bilder
Randbebauung: nein
Anzahl Stellplatz: 2
Geschossigkeit 2 Zahl der Vollgeschosse als Höchstmaß
Dachform: SD & WD 22°-38° / versetztes PD 15-19°
Stilrichtung: modern würde ich sagen
Ausrichtung: Hauptfirstrichtung ost-west
Maximale Höhen/Begrenzungen: FH745,3 , TH 742,15
weitere Vorgaben
Anforderungen der Bauherren
Stilrichtung, Dachform, Gebäudetyp: Sind wir offen finden die Idee bis jetzt gut mit Kinderbett im DG.
Keller, Geschosse: 2 Vollgeschosse, Keller ist im Budget nicht drin.
Anzahl der Personen, Alter: 4 Personen, 34, 31, 3, 1
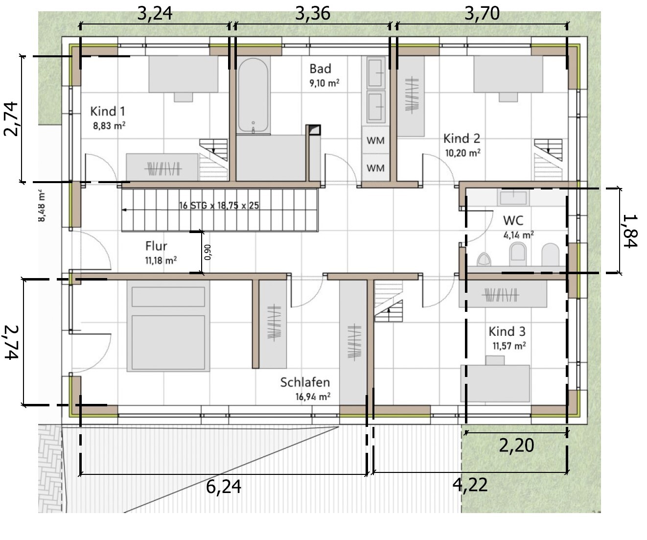
Raumbedarf im EG: Wir hätten gerne im EG ein Spielezimmer(Gast), OG: Kind1 wäre Büro (siehe Bilder), 2 Kinderschlafzimmer, 1 Elternschlafzimmer
Büro: Familiennutzung oder Homeoffice? Homeoffice im OG
Schlafgäste pro Jahr: ca. 1
moderne Bauweise
offene Küche und Kochinsel
Anzahl Essplätze: innen einer
Kamin: Nein KFW300
Balkon, Dachterrasse: -
Garage, Carport: Doppeltgarage
Nutzgarten, Treibhaus
weitere Wünsche/Besonderheiten/Tagesablauf, gern auch Begründungen, warum dieses oder das nicht sein soll
Hausentwurf
Von wem stammt die Planung: Architekt
Was gefällt besonders? Warum? Wohnzimmer/Esszimmer im Süden, Küche mit Kücheninsel,
Was gefällt nicht? Warum? Technikraum Breite 1,73m find ich etwas zu wenig, Flur 1m bin ich mir nicht ganz sicher, Überdachung von Garage ins Haus fehlt.
Preisschätzung laut Architekt/Planer: 600000
Persönliches Preislimit fürs Haus, inkl. Ausstattung: 600000
favorisierte Heiztechnik: Luft-Wasser-Wärmepumpe (Kfw 300)
Wenn Ihr verzichten müsst, auf welche Details/Ausbauten
-könnt Ihr verzichten: Zweites Bad im OG
-könnt Ihr nicht verzichten: 2Kinderzimmer und 1Büro, Doppeltgarage
Warum ist der Entwurf so geworden, wie er jetzt ist? ZB
Empfehlung vom Architekt, es gibt nur einen direkten Nachbar im Osten (Privatsphäre). Deshalb wurde die Garage in den osten gesetzt und zusätzlich entsteht ein Innenhof.
Was meint ihr dazu?
Mich stören die 1,73 m im Technikraum. Denkt ihr, wir bekommen dort alles unter?
Laut DIN 18012 müsste die Raumbreite doch mindestens 1,80 m betragen, oder sehe ich das falsch?
Wir haben vorsichtshalber die Waschmaschine auch im Obergeschoss eingeplant.
Ist ein 1 m breiter Flur ausreichend? Gibt es für KfW 300 spezifische Vorgaben für die Breite des Flurs?
Im Vorentwurf fehlen leider die Maßangaben. Ich habe sie nachträglich eingezeichnet.
Vielen lieben Dank für eure Unterstützung.
Viele Grüße





Bebauungsplan/Einschränkungen
Größe des Grundstücks: 713qm
Hang: im Baufenster ziemlich eben
Grundflächenzahl: 0,3
Geschossflächenzahl: 2 Zahl der Vollgeschosse als Höchstmaß
Baufenster, Baulinie und -grenze: siehe Bilder
Randbebauung: nein
Anzahl Stellplatz: 2
Geschossigkeit 2 Zahl der Vollgeschosse als Höchstmaß
Dachform: SD & WD 22°-38° / versetztes PD 15-19°
Stilrichtung: modern würde ich sagen
Ausrichtung: Hauptfirstrichtung ost-west
Maximale Höhen/Begrenzungen: FH745,3 , TH 742,15
weitere Vorgaben
Anforderungen der Bauherren
Stilrichtung, Dachform, Gebäudetyp: Sind wir offen finden die Idee bis jetzt gut mit Kinderbett im DG.
Keller, Geschosse: 2 Vollgeschosse, Keller ist im Budget nicht drin.
Anzahl der Personen, Alter: 4 Personen, 34, 31, 3, 1
Raumbedarf im EG: Wir hätten gerne im EG ein Spielezimmer(Gast), OG: Kind1 wäre Büro (siehe Bilder), 2 Kinderschlafzimmer, 1 Elternschlafzimmer
Büro: Familiennutzung oder Homeoffice? Homeoffice im OG
Schlafgäste pro Jahr: ca. 1
moderne Bauweise
offene Küche und Kochinsel
Anzahl Essplätze: innen einer
Kamin: Nein KFW300
Balkon, Dachterrasse: -
Garage, Carport: Doppeltgarage
Nutzgarten, Treibhaus
weitere Wünsche/Besonderheiten/Tagesablauf, gern auch Begründungen, warum dieses oder das nicht sein soll
Hausentwurf
Von wem stammt die Planung: Architekt
Was gefällt besonders? Warum? Wohnzimmer/Esszimmer im Süden, Küche mit Kücheninsel,
Was gefällt nicht? Warum? Technikraum Breite 1,73m find ich etwas zu wenig, Flur 1m bin ich mir nicht ganz sicher, Überdachung von Garage ins Haus fehlt.
Preisschätzung laut Architekt/Planer: 600000
Persönliches Preislimit fürs Haus, inkl. Ausstattung: 600000
favorisierte Heiztechnik: Luft-Wasser-Wärmepumpe (Kfw 300)
Wenn Ihr verzichten müsst, auf welche Details/Ausbauten
-könnt Ihr verzichten: Zweites Bad im OG
-könnt Ihr nicht verzichten: 2Kinderzimmer und 1Büro, Doppeltgarage
Warum ist der Entwurf so geworden, wie er jetzt ist? ZB
Empfehlung vom Architekt, es gibt nur einen direkten Nachbar im Osten (Privatsphäre). Deshalb wurde die Garage in den osten gesetzt und zusätzlich entsteht ein Innenhof.
Was meint ihr dazu?
Mich stören die 1,73 m im Technikraum. Denkt ihr, wir bekommen dort alles unter?
Laut DIN 18012 müsste die Raumbreite doch mindestens 1,80 m betragen, oder sehe ich das falsch?
Wir haben vorsichtshalber die Waschmaschine auch im Obergeschoss eingeplant.
Ist ein 1 m breiter Flur ausreichend? Gibt es für KfW 300 spezifische Vorgaben für die Breite des Flurs?
Im Vorentwurf fehlen leider die Maßangaben. Ich habe sie nachträglich eingezeichnet.
Vielen lieben Dank für eure Unterstützung.
Viele Grüße
Hallo Du,
ich bin skeptisch mit dem Plan, das vorweg. Ich werde nicht warm!
Hier ist allerdings eine geschlossene Treppe eingeplant. Der Flur wird quasi enger. Noch enger wird es, wenn man in dem Meter Türen und Schubladen öffnet. Ich gestehe, ich bin kein Freund von diesem Wirrwarr unter der Treppe, aber hier behindert man sich halt auch: zwei Negativ-Punkte zusammen: enger Flur in Kombi mit Schränken.
Tja, warum bin ich skeptisch? Ich weiß nicht, was es ist: zurückliegender Eingangsbereich, der Flurkanal, für mich nicht vorhandene Garderobe (Schrank unter Treppe ist für mich Stauraum, aber kein Schrank für Jacken),
Küche mit Nadelöhrzugang und ohne Wendemöglichkeit. Das zum EG.
OG ist gar nicht meins. Knapp ü 8 qm für ein Kinderzimmer. . wer macht denn bei den Kids die Betten? Wer sitzt am Krankenbett? Wer holt dem nörgelndem Kind, Wasser, Knabberzeugs und Tempo ans Bett? Sprich: wer will sich früher oder später, also die nächsten 10 - 12 Jahre seine Beine brechen, nur weil kein Bett im Kinderzimmer Platz hat? Ich halte davon gar nichts. Das mag eine kleine Nice-to-have-Höhle sein, aber kein Hauptbett.
Ich halte auch nichts von Toiletten, die von der Dusche weiter entfernt sind als ein Meter - dafür habe ich schon zu viele Magen-Darm-Probleme erlebt, wo die Trennung gar nicht geht.
ich bin skeptisch mit dem Plan, das vorweg. Ich werde nicht warm!
Abartig schrieb:wozu muss die sein?
Überdachung von Garage ins Haus fehlt.
Abartig schrieb:Ich denke, das ist in Ordnung. Ich könnte damit leben: keine unnötige Freifläche in der Mitte
Mich stören die 1,73 m im Technikraum. Denkt ihr, wir bekommen dort alles unter?
Abartig schrieb:Für einen HAR eines Mehrfamilienhaus?
Laut DIN 18012 müsste die Raumbreite doch mindestens 1,80 m betragen, oder sehe ich das falsch?
Abartig schrieb:Warum sollte?
Gibt es für KfW 300 spezifische Vorgaben für die Breite des Flurs?
Abartig schrieb:Was natürlich für das Bad keinen Mehrwert ist, eher nachteilig.
Wir haben vorsichtshalber die Waschmaschine auch im Obergeschoss eingeplant.
Abartig schrieb:Normalerweise kann man sich wohl damit arrangieren. Meist geben parallel liegende offene Treppen noch ein größeres Raumgefühl.
Ist ein 1 m breiter Flur ausreichend?
Hier ist allerdings eine geschlossene Treppe eingeplant. Der Flur wird quasi enger. Noch enger wird es, wenn man in dem Meter Türen und Schubladen öffnet. Ich gestehe, ich bin kein Freund von diesem Wirrwarr unter der Treppe, aber hier behindert man sich halt auch: zwei Negativ-Punkte zusammen: enger Flur in Kombi mit Schränken.
Tja, warum bin ich skeptisch? Ich weiß nicht, was es ist: zurückliegender Eingangsbereich, der Flurkanal, für mich nicht vorhandene Garderobe (Schrank unter Treppe ist für mich Stauraum, aber kein Schrank für Jacken),
Küche mit Nadelöhrzugang und ohne Wendemöglichkeit. Das zum EG.
OG ist gar nicht meins. Knapp ü 8 qm für ein Kinderzimmer. . wer macht denn bei den Kids die Betten? Wer sitzt am Krankenbett? Wer holt dem nörgelndem Kind, Wasser, Knabberzeugs und Tempo ans Bett? Sprich: wer will sich früher oder später, also die nächsten 10 - 12 Jahre seine Beine brechen, nur weil kein Bett im Kinderzimmer Platz hat? Ich halte davon gar nichts. Das mag eine kleine Nice-to-have-Höhle sein, aber kein Hauptbett.
Ich halte auch nichts von Toiletten, die von der Dusche weiter entfernt sind als ein Meter - dafür habe ich schon zu viele Magen-Darm-Probleme erlebt, wo die Trennung gar nicht geht.
K
K a t j a06.09.24 23:26Schließe mich an. Diese Kinderzimmer mit Bett über die Leiter sind totaler Mist - teuer und schlecht zu nutzen. Dazu sind die Kinderzimmer sehr klein. Ich würde auf die Ankleide verzichten und die qm besser den Kindern zusprechen.
Der lange Eingangsflur wirkt wenig einladend, schmal und trist. Das Wohnzimmer ist mit 3,63m Tiefe schon sehr schlauchig. Irgendwie scheint der Planer auf lange schmale Räume zu stehen. Das ist aber alles andere als attraktiv.
Garage ist doch im Westen oder ist die Skizze nicht genordet? Dieser Innenhof ist in dem Fall einfach nur sinnlos. Der ist nicht innen, sondern klebt am Rand und bildet eine ungemütliche tote Ecke, statt eines zusammenhängenden Planes. Diese riesige Fläche zu versiegeln - was hat das für einen Sinn? Das Geld würde ich eher in mehr Hausgröße stecken. Haus, Garage und "Innenhof" sind zudem so verschwenderisch angeordnet, dass kaum noch eine größere Gartenfläche bleibt.
Ich verstehe auch nicht, warum die Garage nicht als Randbebauung geplant wird. Aber ringsum wieder alles versiegeln - so ein Käse.
Also bei mir wäre der Versuch durchgefallen und landet in Ablage P.
Der lange Eingangsflur wirkt wenig einladend, schmal und trist. Das Wohnzimmer ist mit 3,63m Tiefe schon sehr schlauchig. Irgendwie scheint der Planer auf lange schmale Räume zu stehen. Das ist aber alles andere als attraktiv.
Garage ist doch im Westen oder ist die Skizze nicht genordet? Dieser Innenhof ist in dem Fall einfach nur sinnlos. Der ist nicht innen, sondern klebt am Rand und bildet eine ungemütliche tote Ecke, statt eines zusammenhängenden Planes. Diese riesige Fläche zu versiegeln - was hat das für einen Sinn? Das Geld würde ich eher in mehr Hausgröße stecken. Haus, Garage und "Innenhof" sind zudem so verschwenderisch angeordnet, dass kaum noch eine größere Gartenfläche bleibt.
Ich verstehe auch nicht, warum die Garage nicht als Randbebauung geplant wird. Aber ringsum wieder alles versiegeln - so ein Käse.
Also bei mir wäre der Versuch durchgefallen und landet in Ablage P.
2,74 im Schlafzimmer, bedeutet: knapp 50cm zum Durchlaufen. Man kann das Haus gut um einen Meter einkürzen, indem man diesen Bürozugang weglässt, die Dusche normal plant und der Küche einen Meter von den ü3 Metern Arbeitsplatte planhorizontal einkürzt. Oben geht es genauso, wenn man die separate Toi weglässt. Dann kann man einen Meter mehr in der Tiefe planen und es entzerrt sich einiges.
Innenhof finde ich eigentlich ganz gut, für eine Kpchenterrase,. Würde aber auch eher die Garage an der Grenze sehen und das Haus eventuell gedreht.
Innenhof finde ich eigentlich ganz gut, für eine Kpchenterrase,. Würde aber auch eher die Garage an der Grenze sehen und das Haus eventuell gedreht.
Abartig schrieb:
Mich stören die 1,73 m im Technikraum. Denkt ihr, wir bekommen dort alles unter? [...]
Im Vorentwurf fehlen leider die Maßangaben. Ich habe sie nachträglich eingezeichnet.Was haben einzelne Zentimeter in einem Vorentwurf zu suchen ?https://www.instagram.com/11antgmxde/
https://www.linkedin.com/company/bauen-jetzt/
Ähnliche Themen