Hausbau - Ratgeber
Bauherrenhilfe
- Bauherrenhilfe vor Vertragsabschluss
-- Warum einen unabhängigen Baubetreuer?
-- Vertragsgrundlagen
-- Bausumme
-- Zahlungsplan zur Kostenkontrolle
-- Pflichten des Bauherren vor Vertragsabschluss
-- Unterlagen beim Hausbau vor Vertragsabschluss
- Bauherrenhilfe nach Vertragsabschluss
-- Bauantrag bei Behörden
-- Bau-Genehmigungsverfahren bei Baubehörden
-- Bauspezifische Versicherungen
-- Bauzeitenplan
-- Baubeginn - die Letzten Pflichten der Bauherrschaft
- Bauherrenhilfe während der Bauzeit
- Gewährleistungsansprüche
- Bauabnahme
Baufinanzierung
- Baufinanzierung - Allgemeine Fragen
- Kreditarten
- Kredit-Konditionen
- Bausparen
- Staatliche Förderungen
- Verkehrswert
- Haushaltsrechnung und Bonität
Hausbau Planung
- Haustypen
- Hausbau Vorbereitungsarbeiten
- Das Baugrundstück
- Baugrund beim Hausbau
- Baurecht
- Gebäudeschutz
- Erdarbeiten und Wasserhaltung
- Stützmauern
- Einfriedung
- Untergeschoss
- Kanalisation
- Tragende Elemente
- Nichttragende Innenwände
- Fundation / Fundament
- Deckenkonstruktionen
- Dächer
- Kaminanlagen
- Treppen Rampen Leitern
- Dachbeläge und Spengler
- Fenster
- Sonnen und Wetterschutz
- Aussenputze
- Einbauten, Küchen, Türen
- Bodenbeläge und Unterlagsböden
- Parkett
- Gips, Wand, Decke
Haustechnik und Energie
- Heiztechnik
- Lüftung und Klimatechnik
- Sanitärtechnik
- Elektrotechnik
- Erneuerbare Energie
Whirlpools / Jacuzzi
Hausbau Magazin
- Baufinanzierung trotz Krise?
- Das Blockhaus
- Moderne Dämmstoffe im Vergleich
- Erker Vor- und Nachteile
- Glasflächen beim Hausbau
- Günstig ein Haus Bauen
- Mediterraner Hausbaustil
- Mehrgenerationenhaus
- Moderne Architektur
- Gartengestaltung leicht gemacht
- Traditioneller Ziegelbau
- Villa als höchster Traum
- Im Eigenheim Ruhestand geniessen
- Altbau sanieren
- Kauf einer Holzgarage
- Immobilienmakler
- Arbeitshandschuhe für den Winter
- Zuhause verschönern
- Outdoor-Plissees
- Schlafzimmer planen
- Terrassenüberdachung
- Wohngebäudeversicherung
- Zaunarten und Eigenschaften
- Hauseingang gestalten
- Der perfekte Grundriss
- Sparsamer heizen im Altbau
- Einfamilienhaus smart finanzieren
- Planung einer PV-Anlage
- Neues Haus
- Immobilienfinanzierung
- Installation einer Photovoltaikanlage
- Asbest erkennen und entfernen
- Gartenpflege im Frühling – worauf achten
- Sauna im Fokus - Wellness zuhause
- Erfolgreich vermieten
- Die perfekte Winterbekleidung
- Das Niedrigenergiehaus
- Der April und seine Stürme
- Architektonische Vielfalt
- Ökologisch und nachhaltig bauen
- Das perfekte Schlafzimmer
- Nachhaltige Energieversorgung
- Zukunftsorientiert bauen
- Nachhaltigkeit beim Hausbau
- Tiny Houses
- Wärmepumpen als nachhaltige Heizvariante
- Maßgeschneiderten Kleiderschrank
- Der richtige Baukredit
- Ratgeber für erfolgreichen Hausbau
- Haus als Altersvorsorge
Do-it-yourself Anleitungen
- Verlegeanleitung für Bodenbeläge und Parkett
- Bodenbeläge und Parkett reinigen und pflegen
- Malerarbeiten am Haus
- Garten Tipps
- Umzug und Reinigung

ᐅ Grundriss Einfamilienhaus 215qm Flachdach Modern - Feedback

Erstellt am: 01.09.19 17:24
C
CliffDonald
C
CliffDonald
01.09.19 17:24
Hallo,

nach langem, stillen Mitlesen freuen wir uns unseren "Plan vom Haus" zur Diskussion zu stellen.

- Wir hoffen auf ehrliche Rückmeldung um die großen Fehler zu vermeiden


Bebauungsplan/Einschränkungen
Größe des Grundstücks: 785 qm
Hang: 7,1% (2,00m auf 28m Grundstück)
Grundflächenzahl: 0,6
Geschossflächenzahl: 0,3
Baufenster, Baulinie und -grenze: siehe Foto
Randbebauung: Ja
Anzahl Stellplatz: 2; 5,00m Abstand zu Straße
Geschossigkeit: 2 Vollgeschosse
Dachform: offen
Stilrichtung: offen
Ausrichtung: siehe Foto
Maximale Höhen/Begrenzungen: 7,80m
weitere Vorgaben: Zisterne, Abgrabungen, Mauern bis 1,00m zulässig

Anforderungen der Bauherren
Stilrichtung, Dachform, Gebäudetyp: Flachdach, kubische Form
Stilrichtung: Modern mit offenem Übergang zum Garten
Keller, Geschosse: kein Keller, 2 Vollgeschosse
Anzahl der Personen, Alter: aktuell 3 (32,31,1) + 1 (Plan)
Raumbedarf im EG, OG:
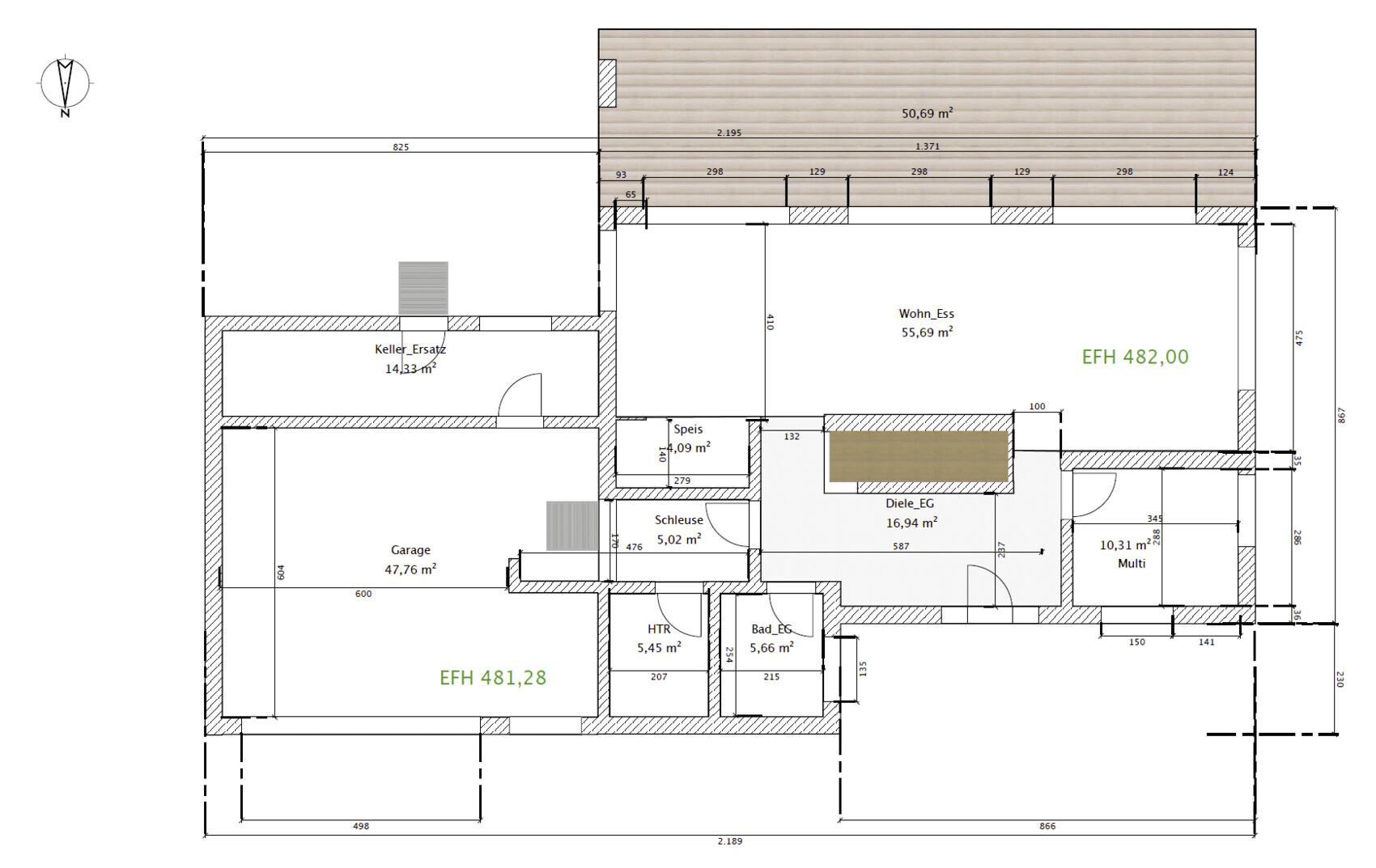
EG: Wohn_Ess_Küche; Arbeitszimmer; DU/WC; Haustechnik (HTR); Kellerersatzraum; Galerie
DG: Schlafzimmer; Kind1; Kind2; Ankleide mit zentrischem Block; Bad; WC; Hauswirtschaftsraum
Büro: 1x p. Woche Homeoffice
Schlafgäste pro Jahr: Au Pair/Austauschschüler geplant
offene oder geschlossene Architektur: offene Architektur
konservativ oder moderne Bauweise: modern
offene Küche, Kochinsel: Insel mit Spüle + Herd; Durchgang Küchenfront zu Speis
Anzahl Essplätze: 8
Kamin: Nein
Musik/Stereowand: Nein
Balkon, Dachterrasse: Nein
Garage, Carport: Doppelgarage + Fahrradstellplätze
Nutzgarten, Treibhaus: Nein
weitere Wünsche/Besonderheiten/Tagesablauf, gern auch Begründungen, warum dieses oder das nicht sein soll:
  • Haus sollte zur Straße hin eher schließend sein
  • maximale Nutzung der Gartenfläche
  • Übergang Wohn_Ess_Küche in Garten
  • keinen Keller
  • Hauswirtschaftsraum in DG
  • Galerie als Wunsch
  • Flachdach als Wunsch
Hausentwurf
Von wem stammt die Planung:
-Planer eines Bauunternehmens: Ja
-Architekt: Nein
-Do-it-Yourself: Ausgangsbasis
Was gefällt besonders? Warum?
  • Lage am Grundstück und zu Nachbarbebauung
  • Südausrichtung Garten + offene Fensterfront
  • Anordnung Garage_Haus
  • Überhang Schlafzimmer
  • Überhang zu Straße
  • Übergang in den Garten
  • Galerie
  • Hauswirtschaftsraum in OG
  • Elternbereich mit Bad+Ankleide
Was gefällt nicht? Warum?
  • Dielenbereich DG etwas groß
Preisschätzung lt Architekt/Planer: 450.000 EUR + Küche + Kontrollierte-Wohnraumlüftung + Malerarbeiten + Baunebenkosten
Persönliches Preislimit fürs Haus, inkl Ausstattung: 550.000 EUR + Außenanlage
favorisierte Heiztechnik: Sole-Wasser-Wärmepumpe mit Ringgrabenkollektor + passive Kühlung + Kontrollierte-Wohnraumlüftung mit Enthalpiewärmetauscher

Wenn Ihr verzichten müsst, auf welche Details/Ausbauten
-könnt Ihr verzichten:
  • Größe allgemein
  • Größe Kinderzimmer
  • WC in DG
  • Speis
  • Übergang Garage
-könnt Ihr nicht verzichten:
  • Galerie
Warum ist der Entwurf so geworden, wie er jetzt ist? ZB
Standardentwurf vom Planer?
  • Basis eigener Wünsche und viele Skizzen + finaler Entwurf durch Planer Generalunternehmer (hier ist nur das SweetHomeModell für die Grundrisse)
  • Funktionsorientierte Anordnung
    • Garage - Schleuse - Küche
    • Hauswirtschaftsraum bei Entstehungsort der Wäsche
    • Elternbereich inkl. Ankleide
    • Fahrräder haben Stellplatz bei Eingang
    • Gartenutensilien können nahe Verbrauchsort gelagert werden ohne Gartenhütte
  • Split Level Garage zur Genehmigung der Grenzbebauung
Entsprechende/Welche Wünsche wurden vom Architekten umgesetzt?
  • Aus unserer Sicht alle
Was ist die wichtigste/grundlegende Frage zum Grundriss in 130 Zeichen zusammengefasst?
  • Das Haus folgt dem Ablauf der Bewohner und bildet unsere Wünsche (Galerie; Funktion; Form) gut ab

--------------

Unser Wunsch an Euch
  • Bitte gebt uns Rückmeldung was Euch gefällt oder auch nicht
  • Wo Ihr Schwächen oder Verbesserungspotentiale erkennt

Grundstücksplan mit rotem Schriftzug Grundstück, Grünflächen, Dachform und Markierungen.


Moderne weiße, zweigeschossige Villa mit großen Fensterflächen, Holzterrasse und Rasen.


Moderne weiße zweigeschossige Villa mit großen Glasfronten und Holzterrasse auf grünem Rasen.


Modernes weißes Haus mit Flachdach, Garage mit Holzverkleidung und grünem Rasen.


Grundriss eines Gebäudes mit Räumen, Türen und Maßangaben.


Grundriss eines Hauses: Schlafen, zwei Kinderzimmer, Bad, Diele, Galerie, Ankleide, HWR, WC


Grundriss eines Hauses: Wohn- und Essbereich, Diele, Garage, Kellerersatz, Speis, Bad und Multi.
H
haydee
01.09.19 17:56
Habt ihr schon mal im Maßstab die gewünschte Möblierung eingezeichnet?

Wo soll das Au-pair-Mädchen schlafen? Du brauchst doch dein Arbeitszimmer?

Sollen die Kinder wirklich durch eure Ankleide in das Familienbad? Oder habe ich das Kinderbad übersehen

Dein Gesamtbudget wird nicht reichen
C
CliffDonald
01.09.19 20:26
haydee schrieb:

Habt ihr schon mal im Maßstab die gewünschte Möblierung eingezeichnet?

Wo soll das Au-pair-Mädchen schlafen? Du brauchst doch dein Arbeitszimmer?

Sollen die Kinder wirklich durch eure Ankleide in das Familienbad? Oder habe ich das Kinderbad übersehen

Dein Gesamtbudget wird nicht reichen


- Ja, maßstäbliche Möblierung ist vorhanden. Nur nicht in dem hier gezeigten letzten Entwurf.
- Nein, das Kinderbad ist für das EG (DU/WC) geplant. WC für nachts direkt bei den Kinderzimmern.
- Homeoffice ist sehr flexibel bei mir/uns --> In den Zeiten von AuPair im Wohnbereich völlig in Ordnung
- Danke für den Hinweis zum Budget. Hier ist noch Puffer vorhanden. Außenanlagen müssen nicht in die 550kEUR. Grundstück schon vorhanden und geht hier auch nicht rein.

Gibt es noch Gedanken zum Grundriss?
face2601.09.19 22:29
CliffDonald schrieb:

Nein, das Kinderbad ist für das EG (DU/WC) geplant. WC für nachts direkt bei den Kinderzimmern.

Verstehe ich das richtig? Deine Kinder sollen also zum Duschen usw. einen Stock tiefer??

Also mal ehrlich...man baut doch keine 215qm mit nem „Masterbereich“ von 50qm und schickt seine Kinder einen Stock tiefer ins Bad!?

Sonst bin ich schlecht drin mir unmöblierte Grundrisse vorzustellen, deswegen halte ich mich da raus.
I
ivenh0
01.09.19 23:07
Threadtitle gelesen und gedacht, wow, da bin ich jetzt auf ein richtiges Brett gespannt. Grundriss gesehen und schwer enttäuscht. Da passt garnix.
- Eingangsbereich viel zu groß wodurch der Wohnbereich etc im Vergleich lächerlich klein ist
- 4,10m Raumbreite viel zu gering für Kochinsel mit Waschbecken. Dafür benötigt man Minimum 5m - > 3m Insel + 1m Durchgang pro Seite. Wie gesagt Minimum
- Technikraum funktioniert mit 5qm nicht. 10 sind angemessen
- Duschbad im EG wird interessant in diesem Raum
- Büro im EG könnte auch ein paar qm mehr vertragen

Beim OG brauchen wir nicht anfangen, da das EG schon so viele Fehler hat, dass der Entwurf so schon fast gestorben ist. Die Krönung ist natürlich das einzelne WC für die Kinder mit Bad im EG

Sorry für die ehrliche Meinung, aber wer auch immer das verbrochen hat, das war nichts
Y
ypg
01.09.19 23:40
Soll „Multi“ Büro sein und Schlafzimmer für ein AuPair? AuPairs oder Austauschschüler bleiben ein Jahr. Wo bleiben denn in dieser Zeit Euer PC, Aktenordner und Familiendrucker? 10qm sind ja jetzt auch nicht gerade einladend... Als AuPair hätte ich auch keine Lust, mir mit Kindern das Duschbad zu teilen. Duschbad für Kinder auf anderer Etage ist auch etwas unbedacht... der Elternbereich ist riesig. Man möge denken, dass Ihr noch keine Kinder habt. Ich würde ehrlich gesagt mich nicht wundern, wenn die kleinen Racker das kleine Pöttchen und unten meiden und Euer Wellnessbad bestürmen

Ansonsten fehlt mir hier total die erwähnte Hanglage.
Der Rest ist ziemlich zusammengemurkst. Mehr Wände als nötig, wirkt schon fast wie ein Labyrinth.
Ah, die Garage ist unter der Ebene... da ist der Hang. Dann sind das angedeutete Stufen. Ist es das, was Ihr wollt? Ich finde das mega unpraktisch, Rasenmäher oder Einkauf durch diese enge Schleuse mit schmaler Treppe.
Budget halte ich auch für zu niedrig.
garageküchegartenankleidehauswirtschaftsraumarchitekturplanerüberhangentwurfgrundrisse