ᐅ Grundriss Einfamilienhaus, 200qm, Holzhaus im amerikanischen Stil, Bodenplatte
Erstellt am: 22.06.24 13:10
TRomz_y22.06.24 13:10
Hi zusammen,
wir wollen ein Fertighaus in Holzständerbauweise im amerikanischen Stil bauen.
Vor der Anbieterauswahl haben wir mit einem Architekten zusammen einen Grundriss erarbeitet. Der letzte Entwurf des Architekten war i.O., allerdings haben wir noch Korrekturen vorgenommen und diese nun in den Grundriss "reingescreenshottet". Ich hoffe, man erkennt trotz allem alles und es genügt zu Beurteilung.
Es geht nun in die dritte Runde mit dem Architekten. Danach ist jegliche Planung/Korrektur wieder mit Kosten verbunden. Daher erhoffen wir uns Tipps & konstruktive Kritik.
Hinweis: auf den Visualisierungen des Hauses hat das Carport ein noch sehr hohes Dach (Planungsfail des Architekten, da man aus den Fenstern im OG auf das Carportdach geguckt hätte...). Die Neigung wird noch gesenkt, so dass nur ein kleines Dach übrig bleibt.
Rückansicht: Auf der Terrasse hinten gibt es kein Geländer, da kleine Dach am Carport soll ein Fahrradstellplatz sein, der aber wegfällt.
Lieben Dank für all eure Mühe vorab.
Bebauungsplan/Einschränkungen
Größe des Grundstücks: 1000qm
Hang: nein
Grundflächenzahl: 0,28
Geschossflächenzahl: k.A.
Baufenster, Baulinie und -grenze: siehe Lageplan
Randbebauung
Anzahl Stellplatz: 2
Geschossigkeit: 1
Dachform: Satteldach, Walmdach, Krüppelwalmdach etc.
Stilrichtung: k.A.
Ausrichtung: S/SW
Maximale Höhen/Begrenzungen: Firsthöhe 9m, Traufhöhe 4,30m
weitere Vorgaben: keine
Anforderungen der Bauherren
Stilrichtung, Dachform, Gebäudetyp: amerikanisches Farmhouse, Satteldach
Keller, Geschosse: kein Keller
Anzahl der Personen, Alter: 2 Erwachsene, 1 Kind
Raumbedarf im EG, OG: ca. 160-170 qm
Büro: Familiennutzung oder Homeoffice? Arbeitszimmer für 2 Personen, beide im Homeoffice, private Nutzung
Schlafgäste pro Jahr: 5
offene oder geschlossene Architektur: offener Küche-Essbereich
konservativ oder moderne Bauweise: Landhaus/modern
offene Küche, Kochinsel: ja
Anzahl Essplätze: 6
Kamin: nein
Musik/Stereowand: nein
Balkon, Dachterrasse: nein
Garage, Carport: Carport, 2 Stellplätze vorgeschrieben
Nutzgarten, Treibhaus: nein
weitere Wünsche/Besonderheiten/Tagesablauf, gern auch Begründungen, warum dieses oder das nicht sein soll:
- Durch den amerikanischen Stil haben wir, neben der Terrasse hinten , auch vorn eine Terrasse. Beide Terrassen sind überdacht. Daher erhoffen wir uns, dass wir nicht den typischen "Schmutzbereich" im Eingangsbereich haben (Schmutz läuft sich auf der Terrasse ab, Schuhe können u.U. draußen bleiben).
- Kein Büro im OG, da Dachschrägen vorhanden sind. Die Schreibtische sind höhenverstellbar, wir haben Bücherschränke darin... das wird kaum unterzukriegen sein.
- Wäscheraum im OG, in dem auch ein Wäscheständer untergebracht ist, find ich klasse: -> kurze Wege
- Wohnzimmer soll abtrennbar sein, wegen Geräuschen aus der Küche (haben derzeit einen offenen Küche-Ess-Wohnbereich und man kann kaum Fernsehen schauen, wenn jmd. in der Küche hantiert).
Hausentwurf
Von wem stammt die Planung: Architekt und unsere Ideen
Was gefällt besonders? Warum? großer Küche-Essbereich
Was gefällt nicht? Warum?
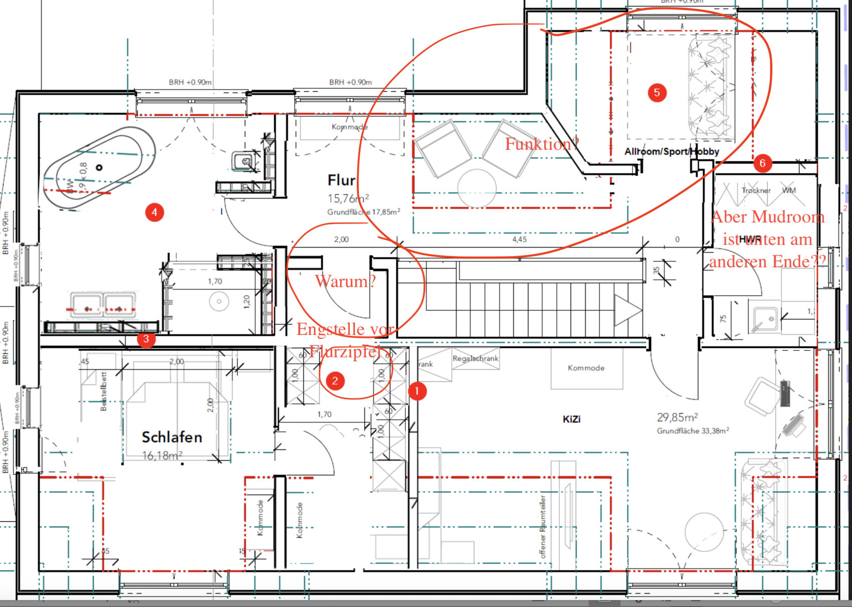
Im OG ist leider einfach zu viel Platz, weil wir - "leider - mehr Räume unten als oben haben. Sieht jemand Potenzial zur qm Einsparung?
Die Garderobe ist dort gelandet, weil der Miniraum "noch übrig" war. Dort war erst das Gästebad ohne Dusche drin. Wir hätten aber gerne 2 Duschen im Haus.
Preisschätzung laut Architekt/Planer: 800.000 EUR
Persönliches Preislimit fürs Haus, inkl. Ausstattung: 800k
favorisierte Heiztechnik: Luft-Wasser-Wärmepumpe, Fußbodenheizung
Wenn Ihr verzichten müsst, auf welche Details/Ausbauten
-könnt Ihr verzichten: "Allraum" (s. Grundriss)
-könnt Ihr nicht verzichten: Schmutzschleuse
Warum ist der Entwurf so geworden, wie er jetzt ist? ZB
Die Grundrissideen sind eine Sammlung aus Haustourvideos, Pinterestinspirationen.
Da die Bauweise sehr auf Symmetrie und Harmonie die Fassade betreffend achtet, ist ein Hin- und Herschieben von Fenstern nicht "einfach so" möglich, sonst herrscht heilloses Durcheinander von außen.
Was macht ihn in Euren Augen besonders gut oder schlecht? Tja, das ist die Frage. Für uns persönlich ist nun eig. alles berücksichtigt, aber ist es auch "logisch"? Sind Planungsfehler enthalten? Was kann man besser machen?






wir wollen ein Fertighaus in Holzständerbauweise im amerikanischen Stil bauen.
Vor der Anbieterauswahl haben wir mit einem Architekten zusammen einen Grundriss erarbeitet. Der letzte Entwurf des Architekten war i.O., allerdings haben wir noch Korrekturen vorgenommen und diese nun in den Grundriss "reingescreenshottet". Ich hoffe, man erkennt trotz allem alles und es genügt zu Beurteilung.
Es geht nun in die dritte Runde mit dem Architekten. Danach ist jegliche Planung/Korrektur wieder mit Kosten verbunden. Daher erhoffen wir uns Tipps & konstruktive Kritik.
Hinweis: auf den Visualisierungen des Hauses hat das Carport ein noch sehr hohes Dach (Planungsfail des Architekten, da man aus den Fenstern im OG auf das Carportdach geguckt hätte...). Die Neigung wird noch gesenkt, so dass nur ein kleines Dach übrig bleibt.
Rückansicht: Auf der Terrasse hinten gibt es kein Geländer, da kleine Dach am Carport soll ein Fahrradstellplatz sein, der aber wegfällt.
Lieben Dank für all eure Mühe vorab.
Bebauungsplan/Einschränkungen
Größe des Grundstücks: 1000qm
Hang: nein
Grundflächenzahl: 0,28
Geschossflächenzahl: k.A.
Baufenster, Baulinie und -grenze: siehe Lageplan
Randbebauung
Anzahl Stellplatz: 2
Geschossigkeit: 1
Dachform: Satteldach, Walmdach, Krüppelwalmdach etc.
Stilrichtung: k.A.
Ausrichtung: S/SW
Maximale Höhen/Begrenzungen: Firsthöhe 9m, Traufhöhe 4,30m
weitere Vorgaben: keine
Anforderungen der Bauherren
Stilrichtung, Dachform, Gebäudetyp: amerikanisches Farmhouse, Satteldach
Keller, Geschosse: kein Keller
Anzahl der Personen, Alter: 2 Erwachsene, 1 Kind
Raumbedarf im EG, OG: ca. 160-170 qm
| Raum | qm |
| Erdgeschoss |
| Wohnzimmer, Küche und Essbereich | 55 |
| Eingangsbereich | 10 |
| Hauswirtschaftsraum/Schmutzschleuse | 10 |
| Technik | 10 |
| Speisekammer | 4 |
| Büro/priv. Computerraum | 15 |
| Gästebad | 4-6? |
| Obergeschoss | |
| Schlafzimmer | 15 |
| Ankleide/begehbarer Kleiderschrank | 10 |
| Kinderzimmer | 20 |
| Bad | 13 |
Büro: Familiennutzung oder Homeoffice? Arbeitszimmer für 2 Personen, beide im Homeoffice, private Nutzung
Schlafgäste pro Jahr: 5
offene oder geschlossene Architektur: offener Küche-Essbereich
konservativ oder moderne Bauweise: Landhaus/modern
offene Küche, Kochinsel: ja
Anzahl Essplätze: 6
Kamin: nein
Musik/Stereowand: nein
Balkon, Dachterrasse: nein
Garage, Carport: Carport, 2 Stellplätze vorgeschrieben
Nutzgarten, Treibhaus: nein
weitere Wünsche/Besonderheiten/Tagesablauf, gern auch Begründungen, warum dieses oder das nicht sein soll:
- Durch den amerikanischen Stil haben wir, neben der Terrasse hinten , auch vorn eine Terrasse. Beide Terrassen sind überdacht. Daher erhoffen wir uns, dass wir nicht den typischen "Schmutzbereich" im Eingangsbereich haben (Schmutz läuft sich auf der Terrasse ab, Schuhe können u.U. draußen bleiben).
- Kein Büro im OG, da Dachschrägen vorhanden sind. Die Schreibtische sind höhenverstellbar, wir haben Bücherschränke darin... das wird kaum unterzukriegen sein.
- Wäscheraum im OG, in dem auch ein Wäscheständer untergebracht ist, find ich klasse: -> kurze Wege
- Wohnzimmer soll abtrennbar sein, wegen Geräuschen aus der Küche (haben derzeit einen offenen Küche-Ess-Wohnbereich und man kann kaum Fernsehen schauen, wenn jmd. in der Küche hantiert).
Hausentwurf
Von wem stammt die Planung: Architekt und unsere Ideen
Was gefällt besonders? Warum? großer Küche-Essbereich
Was gefällt nicht? Warum?
Im OG ist leider einfach zu viel Platz, weil wir - "leider - mehr Räume unten als oben haben. Sieht jemand Potenzial zur qm Einsparung?
Die Garderobe ist dort gelandet, weil der Miniraum "noch übrig" war. Dort war erst das Gästebad ohne Dusche drin. Wir hätten aber gerne 2 Duschen im Haus.
Preisschätzung laut Architekt/Planer: 800.000 EUR
Persönliches Preislimit fürs Haus, inkl. Ausstattung: 800k
favorisierte Heiztechnik: Luft-Wasser-Wärmepumpe, Fußbodenheizung
Wenn Ihr verzichten müsst, auf welche Details/Ausbauten
-könnt Ihr verzichten: "Allraum" (s. Grundriss)
-könnt Ihr nicht verzichten: Schmutzschleuse
Warum ist der Entwurf so geworden, wie er jetzt ist? ZB
Die Grundrissideen sind eine Sammlung aus Haustourvideos, Pinterestinspirationen.
Da die Bauweise sehr auf Symmetrie und Harmonie die Fassade betreffend achtet, ist ein Hin- und Herschieben von Fenstern nicht "einfach so" möglich, sonst herrscht heilloses Durcheinander von außen.
Was macht ihn in Euren Augen besonders gut oder schlecht? Tja, das ist die Frage. Für uns persönlich ist nun eig. alles berücksichtigt, aber ist es auch "logisch"? Sind Planungsfehler enthalten? Was kann man besser machen?
nordanney22.06.24 14:41
TRomz_y schrieb:
Im OG ist leider einfach zu viel Platz, weil wir - "leider - mehr Räume unten als oben haben. Sieht jemand Potenzial zur qm Einsparung?Kurzer Hinweis: Dann bitte einen neuen Entwurf erstellen lassen. Einfach mal qm streichen macht den ganzen Entwurf kaputt.Schorsch_baut22.06.24 17:44
Das Problem fängt schon damit an, dass Amerikanische Häuser dieser Bauart bei 250 qm anfangen und es sehr schwer ist, die Grundrisse runter zu skalieren, ohne dass die Funktion leidet.
Schorsch_baut22.06.24 17:52
Ich mag diese Art Häuser sehr und hab auch schon einige von innen gesehen. Tolles Raumgefühl und kein Vergleich zu deutschen Neubauten. Aber die Kostenschätzung würde ich anzweifeln. Allein die Mehrkosten für die drei Giebel und die zwei Veranden kosten Euch locker 100.000 extra.
Schorsch_baut22.06.24 18:08
Mach bitte mal screenshots, bei denen die Maße außen nicht abgeschnitten sind.
Jentopa22.06.24 20:05
mir gefällt allein schon der Eingangsbereich nicht. Immer wenn ihr ins OG wollt, müsst ihr durch den Schmutzbereich an der Haustür, da die Treppe zu nah an der Haustür ist und sich eure Gäste die Schuhe wohl erst an der geplanten Sitzbank/ Garderobe ausziehen werden.
Ähnliche Themen