W
Watcher7813.08.15 22:29Hallo liebe Forengemeinde,
ich würde Euch mal bitten den Grundriss zu beurteilen. Die Ansichten haben wir noch nicht Enthalten da
wir dem BU erst sagen sollen ob seine Planung in die richtige Richtung geht. Der Grundriss gefällt uns bis
gut. Wir haben einen gewünschten großen Wohn / Essbereich. Die Küche könnte Vorlauf. ein wenig schmal sein und auch es wird
auch schwer Küchenelemente wie Hochschränke zu stellen. Deshalb sollte Vorlauf. der Eingang zum Vorrat versetzt werden.
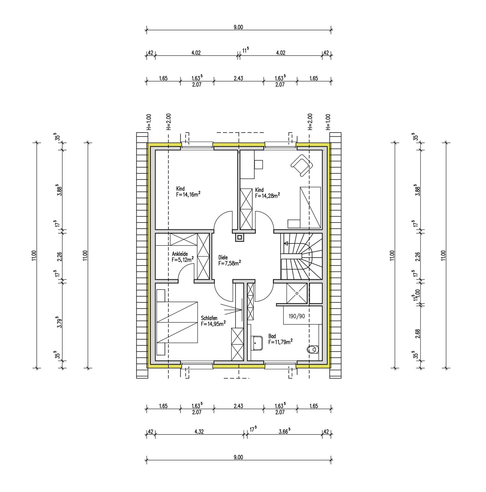
Die bisherige Planung zum Haus ist recht solide keine Gaube und ein Grundriss von 9m x 11m. Der Drempel liegt bei 1,40m
und einem Satteldach mit 45Grad Neigung. Evtl. wird im OG noch eine Spartreppe anstatt Bodeneinschubtreppe vorgesehen.
First läuft von SW zu NO. Grundriss ist NO ausgerichtet. Wir haben vor eine Terrasse geplant SW Ausrichtung und hinten einen Balkon
mit 5m x 3m auf Stelzen mit Weitblick ins Feld.
Im KG sind Hauswirtschaftsraum und 2 weitere Wohnräume + WC geplant. Der Keller wird aufgrund der Hanglage 2 große Fenster Richtung NO haben.
Die Aufteilung der KG Räume ist noch nicht final. Es handelt sich dabei um einen Wohnkeller inkl. Fußbodeheizung.
Wir würden den Grundriss gerne horizontal spiegeln. Wir denken die Ausrichtung des WHZ. nach Süden bzw Süd West wäre besser, als die jetzige Ausrichtung zu SW bzw. WN.
Die Garage ist noch in Planung. Momentan ist eine Doppelgarage eingezeichnet evtl. wird es nur eine Einzelgarage werden.
Bebauungsplan/Einschränkungen
Größe des Grundstücks 650 m²
Hang ja Richtung SW zu NO
Grundflächenzahl 0,3
Baufenster, Baulinie und -grenze
Randbebauung nein
Anzahl Stellplatz 1 - 2
Geschossigkeit 2
Dachform Satteldach
Stilrichtung normal
Ausrichtung First SW zu NO
Anforderungen der Bauherren
Stilrichtung, Dachform, Gebäudetyp
Keller - Ja = Wohnkeller
Anzahl der Personen, 2 - 4
Raumbedarf im EG Wohn Essbereich , OG Schlafen KG Gästezimmer + Rest
offene Küche - durch Schiebetür getrennt
Anzahl Essplätze 6-8
Kamin - Ja
Balkon, Dachterrasse - Terrasse NO
Garage, Carport - Später
weitere Wünsche/Besonderheiten/Tagesablauf - Fronttereasse SW
Hausentwurf
Von wem stammt die Planung:
-Planer eines Bauunternehmens
Was gefällt besonders? großer Wohn / Essbereich und auch schön breit
Was gefällt nicht? Küche Vorlauf. zu schmal ? Schwer möblierbar
Wir freuen Uns über Eure Anregungen bzw. Kritik.




ich würde Euch mal bitten den Grundriss zu beurteilen. Die Ansichten haben wir noch nicht Enthalten da
wir dem BU erst sagen sollen ob seine Planung in die richtige Richtung geht. Der Grundriss gefällt uns bis
gut. Wir haben einen gewünschten großen Wohn / Essbereich. Die Küche könnte Vorlauf. ein wenig schmal sein und auch es wird
auch schwer Küchenelemente wie Hochschränke zu stellen. Deshalb sollte Vorlauf. der Eingang zum Vorrat versetzt werden.
Die bisherige Planung zum Haus ist recht solide keine Gaube und ein Grundriss von 9m x 11m. Der Drempel liegt bei 1,40m
und einem Satteldach mit 45Grad Neigung. Evtl. wird im OG noch eine Spartreppe anstatt Bodeneinschubtreppe vorgesehen.
First läuft von SW zu NO. Grundriss ist NO ausgerichtet. Wir haben vor eine Terrasse geplant SW Ausrichtung und hinten einen Balkon
mit 5m x 3m auf Stelzen mit Weitblick ins Feld.
Im KG sind Hauswirtschaftsraum und 2 weitere Wohnräume + WC geplant. Der Keller wird aufgrund der Hanglage 2 große Fenster Richtung NO haben.
Die Aufteilung der KG Räume ist noch nicht final. Es handelt sich dabei um einen Wohnkeller inkl. Fußbodeheizung.
Wir würden den Grundriss gerne horizontal spiegeln. Wir denken die Ausrichtung des WHZ. nach Süden bzw Süd West wäre besser, als die jetzige Ausrichtung zu SW bzw. WN.
Die Garage ist noch in Planung. Momentan ist eine Doppelgarage eingezeichnet evtl. wird es nur eine Einzelgarage werden.
Bebauungsplan/Einschränkungen
Größe des Grundstücks 650 m²
Hang ja Richtung SW zu NO
Grundflächenzahl 0,3
Baufenster, Baulinie und -grenze
Randbebauung nein
Anzahl Stellplatz 1 - 2
Geschossigkeit 2
Dachform Satteldach
Stilrichtung normal
Ausrichtung First SW zu NO
Anforderungen der Bauherren
Stilrichtung, Dachform, Gebäudetyp
Keller - Ja = Wohnkeller
Anzahl der Personen, 2 - 4
Raumbedarf im EG Wohn Essbereich , OG Schlafen KG Gästezimmer + Rest
offene Küche - durch Schiebetür getrennt
Anzahl Essplätze 6-8
Kamin - Ja
Balkon, Dachterrasse - Terrasse NO
Garage, Carport - Später
weitere Wünsche/Besonderheiten/Tagesablauf - Fronttereasse SW
Hausentwurf
Von wem stammt die Planung:
-Planer eines Bauunternehmens
Was gefällt besonders? großer Wohn / Essbereich und auch schön breit
Was gefällt nicht? Küche Vorlauf. zu schmal ? Schwer möblierbar
Wir freuen Uns über Eure Anregungen bzw. Kritik.
Ich finde es immer so schwer, den Text SW zu NO umzusetzen. Wie wäre es, den entsprechenden Richtungspfeil im Grundriss einzubinden? 😉 Wenn ich es richtig interpretiere, dann würde ich das OG aber gleich noch horizontal spiegeln, damit die Kinderzimmer in den SW kommen.
Ansonsten sollte man über die Möblierung der Küche nachdenken, die Speisekammer dort halte ich in in Anbetracht des Kellers für nur einschränkend und wenig sinnvoll.
Warum soll im EG eine Dusche in das kleine Bad integriert werden? Wenn im Keller noch 2 Zimmer (Gäste?) geplant sind, dann würde ich ein dortiges WC eher mit Dusche ergänzen und im EG eine reines Gäste-WC wählen. Evtl. freiwerdenden Platz dann eher einer Art Garderoben/Staubsaugerraum zuordnen.
Im OG-Bad ist bei der derzeitigen Konstellation unbedingt eine Duschtür einzukalkulieren, die möglichst in die Dusche öffnet, sonst hast du die Duschwasserpfützen gleich beim Reinkommen ins Bad. Den Duschstart mit Beginn der 2m-Linie halte ich für grenzwertig. Überlege, wo der Duschkopf sitzen soll.
Fürs EG sollte man grundsätzlich überlegen, wo Essen/Grillen etc. auf Terrasse/Balkon stattfinden soll. Wenn eher auf den SW-gelegenen Terrassenbereichen, dann würde ich dort die Küche platzieren und den Wohnbereich eher dort, wo jetzt die Küche angedacht ist. Außerdem beim Wohnbereich darauf achten, dass sich Möglichkeiten für das gedachte Sofa ergeben, die nicht damit enden, bodentiefe Fenster zuzustellen.
Ansonsten sollte man über die Möblierung der Küche nachdenken, die Speisekammer dort halte ich in in Anbetracht des Kellers für nur einschränkend und wenig sinnvoll.
Warum soll im EG eine Dusche in das kleine Bad integriert werden? Wenn im Keller noch 2 Zimmer (Gäste?) geplant sind, dann würde ich ein dortiges WC eher mit Dusche ergänzen und im EG eine reines Gäste-WC wählen. Evtl. freiwerdenden Platz dann eher einer Art Garderoben/Staubsaugerraum zuordnen.
Im OG-Bad ist bei der derzeitigen Konstellation unbedingt eine Duschtür einzukalkulieren, die möglichst in die Dusche öffnet, sonst hast du die Duschwasserpfützen gleich beim Reinkommen ins Bad. Den Duschstart mit Beginn der 2m-Linie halte ich für grenzwertig. Überlege, wo der Duschkopf sitzen soll.
Fürs EG sollte man grundsätzlich überlegen, wo Essen/Grillen etc. auf Terrasse/Balkon stattfinden soll. Wenn eher auf den SW-gelegenen Terrassenbereichen, dann würde ich dort die Küche platzieren und den Wohnbereich eher dort, wo jetzt die Küche angedacht ist. Außerdem beim Wohnbereich darauf achten, dass sich Möglichkeiten für das gedachte Sofa ergeben, die nicht damit enden, bodentiefe Fenster zuzustellen.
W
Watcher7814.08.15 07:48qkbt09 - das mit dem WC im EG hatte ich vergessen zu schreiben. Du Dusche macht da natürlich keinen Sinn und es wird eine Dusche im KG geben. Der Balkon hinten wäre schon der Hauptbereich, daher auch die Küche hinten. Die Frage ist ob der Balkon schon der Größe 5 x 3 groß genug ist. Wir haben ja auch noch Garten dahinter.
Kinderzimmer nach NO haben wir so gemacht da der Blick einfach schöner ist, aber klar da könnte man nochmal überlegen ob SW besser
Kinderzimmer nach NO haben wir so gemacht da der Blick einfach schöner ist, aber klar da könnte man nochmal überlegen ob SW besser
W
Watcher7814.08.15 12:25Der Balkon ist sitzen, Grillen etc gedacht da von der schönere Blick ins Tal geht. Ohne müssten wir immer erst runter in den Keller dann in den hinteren Garten.
Es wird auch noch eine Treppe vom Balkon runter gehen zum Garten.
Es wäre schön wenn wir ein wenig über den Grundriss sprechen könnten, sodass wir Änderungen beim nächsten Termin mit einfließen lassen können.
Danke im Voraus
Es wird auch noch eine Treppe vom Balkon runter gehen zum Garten.
Es wäre schön wenn wir ein wenig über den Grundriss sprechen könnten, sodass wir Änderungen beim nächsten Termin mit einfließen lassen können.
Danke im Voraus
Meine sonstigen Anmerkungen zum Grundriss habe ich ja gemacht.
Wenn der Balkon also euer Hauptsitzplatz werden soll, stellt sich die Frage, soll da auch gegrillt werden? Also Platz für Grill berücksichtigen. Am besten die Fläche mal mit Sitzmöbeln, Blumenkübel, Gartenabgang etc. realistisch möblieren. 3x5 m ist schon eine schöne Größe kann aber mit Grill etc. schnell voll werden.
Wenn der Balkon also euer Hauptsitzplatz werden soll, stellt sich die Frage, soll da auch gegrillt werden? Also Platz für Grill berücksichtigen. Am besten die Fläche mal mit Sitzmöbeln, Blumenkübel, Gartenabgang etc. realistisch möblieren. 3x5 m ist schon eine schöne Größe kann aber mit Grill etc. schnell voll werden.
Ähnliche Themen