Grundriss Einfamilienhaus, 2 Vollgeschosse und Staffelgeschoss

4,80 Stern(e) 9 Votes
Zuletzt aktualisiert 19.11.2025
Sie befinden sich auf der Seite 9 der Diskussion zum Thema: Grundriss Einfamilienhaus, 2 Vollgeschosse und Staffelgeschoss
>> Zum 1. Beitrag <<

S

StephanM

Liebes Forum,
seit unserem letzten „Gespräch“ ist zwar etwas Zeit vergangen doch haben wir diese genutzt um unseren Entwurf von einem unabhängigen Architekten auf Herz und Nieren prüfen zu lassen.
Alles in allem handelte es sich dabei aus unserer Sicht um eine hilfreiche Extrarunde, die auch zu einigen Änderungen geführt hat.
Neben der Fassadengestaltung (Fenster und Formate), wurde auch der Grundriss im Staffelgeschoss optimiert, ebenso die Anordnung der Türen und neben einem Bad auch zwei Hebe-Schiebe-Türen gestrichen… Auch die Versorgungsleitungen und die Statik wurde vorgeplant.
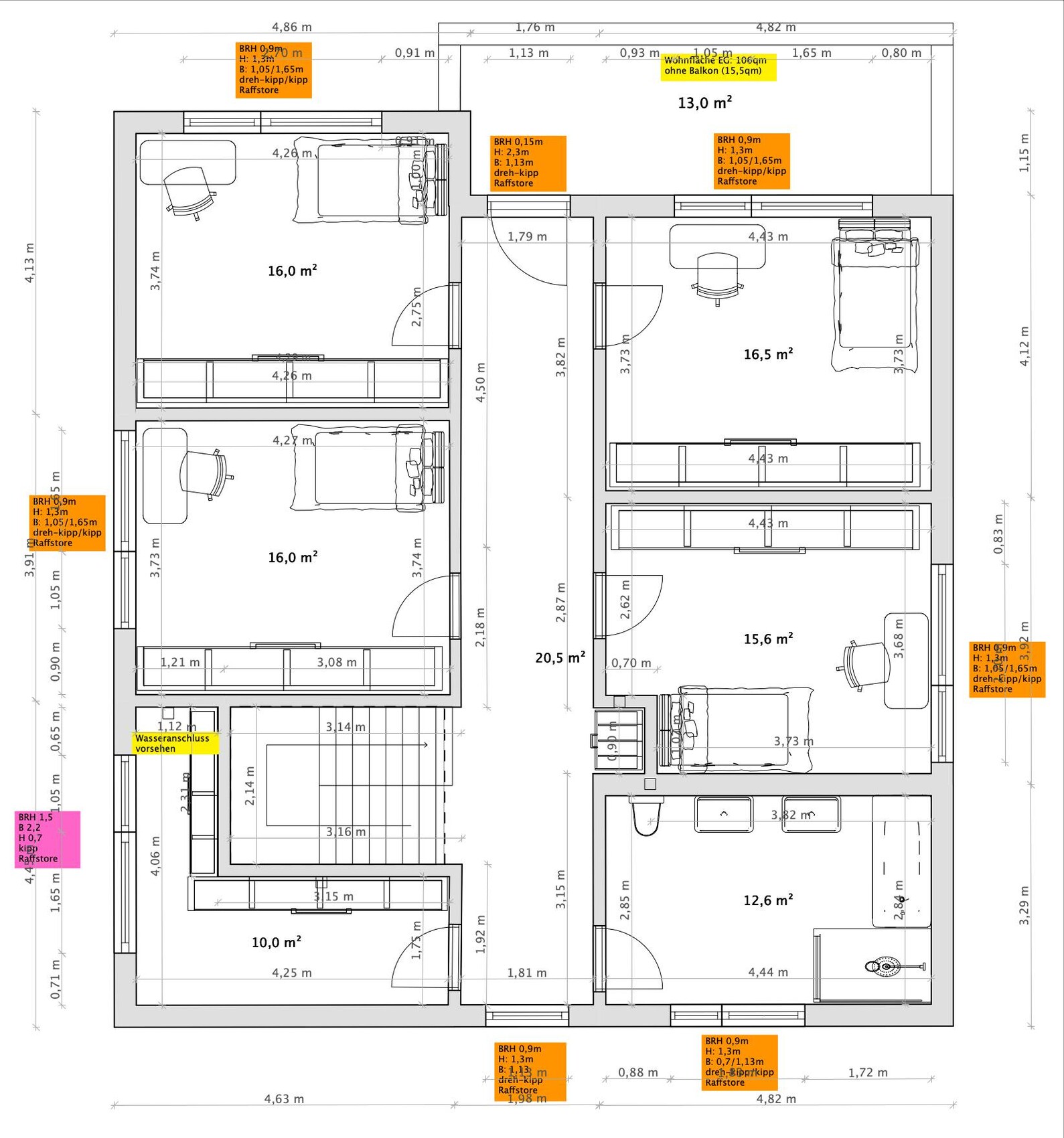
Kurz zusammengefasst, was sich seit der letzten Grundriss-Veröffentlichung (Post 41) geändert hat.
EG:
  • Einbau-Garderobenschrank wurde etwas schmaler, damit er in der Flucht mit der Breite der Treppe liegt. Als Ersatzmaßnahme haben wir an eine Einbaulösung gedacht, welche die Tür des Gästebad umschließt und als Kindergarderobe ausgestaltet wird.
  • Leichtes Verschieben der Tür vom Gästezimmer um dahinter Platz für einen Schrank zu schaffen
1. OG:
  • Zweites Kinderbad (ehemals direkt über dem Gästebad gelegen) ist entfallen. Dieser Raum wird nun als Hauswirtschaftsraum mit Waschmaschine & Trockner bzw. als Stauraum ausgeführt.
  • Leichtes Verschieben der Türen der Kinderzimmer und Bad bzw. Hauswirtschaftsraum um es gefälliger zu machen und Platz für Schränke hinter den Türen zu schaffen
  • Verkleinerung des Einbauschrankes gegenüber der Treppe um die Badplanung mit Badewanne gefälliger zu gestalten. Ausführung der Wände in Leichtbauweise um die „Lebensader“ dahinter zu verstecken.
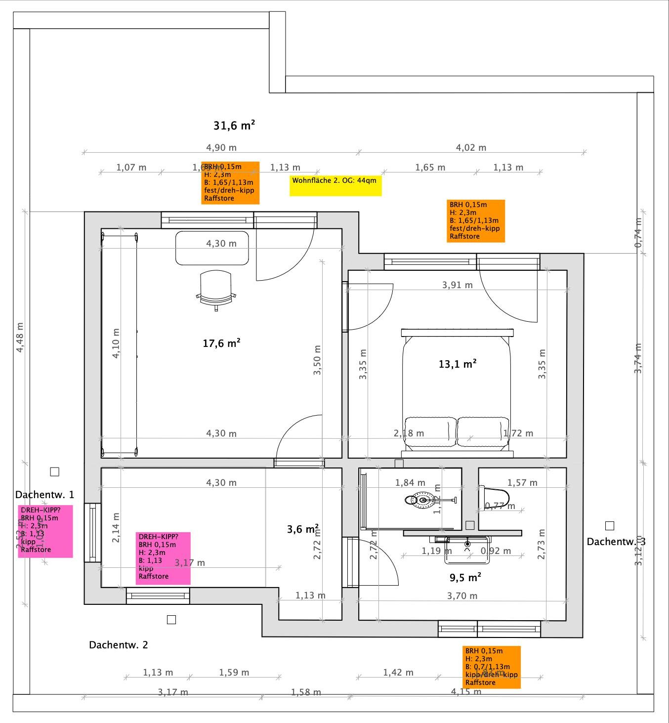
2. OG:
  • Ankleide-/Näh-/Arbeitszimmer ist nun direkt vom Flur zu erreichen und das Schlafzimmer ist damit nicht mehr Durchgangszimmer.
  • Die Badewanne im Elternbad ist nun Geschichte, eine im 1. OG wird reichen! Zudem ist das Bad nun ebenfalls direkt vom Flur erreichbar. Insgesamt scheint uns die Erschließung nun schlüssiger, besonders in Bezug auf die Wege im Alltag (Bett -> Schrank -> Bad)
  • Dadurch ergab sich auch eine schönere Positionierung des Bettes mit Blick nach draußen.
  • Hebeschiebetür im Ankleide-/Näh-/Arbeitszimmer und Schlafzimmer wurde gestrichen und ersetzt durch eine Festverglasung und eine Glastür.
Allgemeine Änderungen: Fensterformate wurden vereinheitlicht und die Anordnung mit Bedacht gewählt.

Nun zu unseren Grundriss-Fragen:
  • Für die Elternetage können wir uns grundsätzlich zwei Versionen vorstellen, die zur selben Quadratmeterzahl führen. Version 1 hat zwei Versprünge (Bad und Schlafzimmer). Vorteil hierbei: die Wasserleitungen (Frisch- und Abwasser) kommen oberhalb der Trockenbauwände des Kinderbades zu liegen bzw. könnten darin unsichtbar geführt/verzogen werden. Version 2 hat keinerlei Versprünge, ist also einfacher zu bauen, dafür liegen die Leitungen nicht über den Leitungen des Kinderbades. Keine Ahnung, ob dies die Leitungsplanung unheimlich verkompliziert… Welche Option würdet ihr bevorzugen und warum oder habt ihr noch eine ganz neue Idee?
  • Der Austritt der Treppe ist im 2. OG lediglich 1,30m. Reicht das gemäß Eurer Erfahrung?

Darüber hinaus haben wir auch technische Fragen. Diese habe ich hier nur informativ aufgeführt, wohlwissend, dass ich diese wahrscheinlich besser in einem anderen Unterforum stelle. Falls ihr dazu dennoch eine Meinung haben solltet: nur raus damit ;-).
Technische Fragestellungen:
  • Fußbodenaufbau: Wir haben etwas Schwierigkeiten mit der maximalen Gebäudehöhe, sodass wir um jeden Zentimeter feilschen. Der GÜ plant in jedem Geschoss mit 19cm Bodenaufbau, der Architekt sagt 15-16cm müssen reichen. Seine Rechnung ist wie folgt: Betondecke -> 50mm Dämmung, darin verlegt Lüftungskanäle mit 50mm Höhe, Vor-/Rücklauf Heizung, Frischwasser, Elektrik, -> auffüllen mit Perlitkugeln -> 20/30mm Dämmung -> 20mm Fußbodenheizung -> 45mm Estrich -> 15mm Fußbodenbelag = 150/160mmm. Deckt sich das mit Euren Erfahrungswerten oder ist das zu optimistisch? Die Entwässerung der Bäder erfolgt hinter Vorbaukästen und wird nicht über den Boden verzogen.
  • Dachentwässerung: Der Architekt hat uns die innenliegende Flachdachentwässerung schmackhaft gemacht und diese auch gleich bei der Medienversorgung eingeplant hinter Trockenbauwänden. Gefällt uns gut, allerdings haben wir keinerlei Erfahrung bezüglich Haltbarkeit, Dichtheit etc. Kann das jeder Dachdecker oder braucht man dafür einen Experten, den ein GÜ wahrscheinlich nicht hat/bezahlen will? Zusätzliche Frage: Kann/darf man Regenfallrohre in der Außendämmung verstecken (bei uns 140mm)? Ist das üblich, schwierig oder Schwachsinn? Zur Info, es soll ein KfW55-Haus werden
  • Regenentwässerung: In unserem Baugebiet ist es nicht gestattet Oberflächenwasser in die Kanalisation einzuleiten. Stattdessen muss es zu einer offenen Rinne in der Straße geführt werden. Unser OKE wird 20cm oberhalb Straßengradient/Rinne liegen. Nun die Gretchenfrage: Wie in aller Welt, können wir das Wasser von den Regenfallrohren von allen vier Hausecken ästhetisch ansprechend und mit möglichst einfachen/günstigen Mitteln zur Rinne an der Straße leiten? Mir fehlt schlicht die Phantasie, vielleicht ist Euch so eine Anforderung schon einmal begegnet? Zur Info: Die Flachdächer sind größtenteils begrünt, sodass das Regenwasser etwas zurück gehalten werden sollte… Diese Planungsaufgabe scheint mir mit innenliegenden Fallrohren, die ja erst unterhalb der Kellerdecke nach draußen geführt werden - und damit bereits unterhalb Straßengradient liegen - noch schwieriger zu lösen als mit außenliegenden Fallrohren, wo ich zumindest etwas Gefälle nutzen kann… Bin um jeden Tipp dankbar! Hatte schon an eine Rigole gedacht mit Überlauf in die Rinne der Straße…

Vielen Dank für Eure Zeit und Eure Gedanken zu den obigen Punkten oder auch ganz anderen;-)…

Gruß
Stephan

Detaillierter Grundriss eines Hauses mit Wohnzimmer, Küche und Essbereich.


Grundriss eines Wohnhauses mit mehreren Schlafzimmern, Wohnzimmer, Küche und Maßangaben.


Dachgeschoss-Grundriss: zwei Zimmer (17,6 m², 13,1 m²), Bad 9,5 m², Flur 3,6 m².


Grundriss eines Dachgeschosses mit Zimmern, Möbeln, Türen und Maßangaben.


Modernes, mehrstöckiges Haus mit großen Glasfenstern, grauer Holzverkleidung und grünem Garten.


Modernes, gestapeltes Gebäudekomplex mit grauer Fassadenverkleidung und Fenster


Moderne weiße zweistöckige Hausfassade mit grauer Garage, mehreren Fenstern und grüner Landschaft.


Moderne zweigeschossige Hausfassade mit weißem Block, grauer Verkleidung und Garage rechts.


Modernes mehrstöckiges Haus mit großen Glasfenstern, grauer Verkleidung und Garten.


Modernes, mehrstöckiges Haus mit weißer Fassade, grauer Holzverkleidung und Garage.
 
S

StephanM

Diese Wände haben eigentlich nur den einen Grund sowohl die Küche als auch das Wohnzimmer voneinander und vom Flur abzutrennen. Unsere Befürchtung ist, dass es ungemütlich wird, wenn der Flur direkt in Küche und Wohnzimmer übergeht... Außerdem sind diese Wände für die Statik ganz förderlich, so der GÜ bzw Architekt. Neben diesen zwei Punkten erfüllen sie keinen weiteren Zweck...
 
Zuletzt aktualisiert 19.11.2025
Im Forum Grundrissplanung / Grundstücksplanung gibt es 2536 Themen mit insgesamt 87979 Beiträgen


Ähnliche Themen zu Grundriss Einfamilienhaus, 2 Vollgeschosse und Staffelgeschoss
Nr.ErgebnisBeiträge
1Grundriss Schlafzimmer, Ankleide und Bad en Suite 36
2Grundriss: Kritisches Feedback sehr erwünscht :) 36
3Meinungen zum Grundriss EG - Seite 210
4Frage zu Grundriss, insbesondere Treppe 13
5Treppe Grundriss Planung, Auftritt und Unterzug 21
6Grundriss Einfamilienhaus barrierefrei fürs Alter mit Eltern-Schlafzimmer im EG - Seite 744
7Grundriss EFH165 qm erster Entwurf - Architekt unzufrieden - Seite 374
8Eure Meinung zum Grundriss für das EG - Seite 528
9Grundriss Stadtvilla / Feedback Statik, Anordnung - Seite 228
10Meinungen zum Haus-Grundriss erwünscht - Seite 471
11Stumpfeinschlagende Türen - Anschlag links oder rechts!? 32
12Stadtvilla mit gerader Treppe, offene moderne Bauweise, 140m² 18
13Einfamilienhaus Neubau 160qm Grundriss - Bitte um Feedback 22
14Grundriss Bungalow ca. 160m2 Wohnfläche - Seite 220
15Treppe im Wohnzimmer als Hype - Pro & Contra? - Seite 426
16Kommentare zur Grundriss-Planung erwünscht - Seite 34344
17Erste Grundriss-Planung Einfamilienhaus 190m2 - Seite 564
18Grundriss altersgerechtes Wohnen (Neubau) in alter Hofanlage - Seite 234
19Grundriss kein konkretes Einfamilienhaus ca. 200m² mit 2 Wohnungen - Seite 1269
20Grundriss Entwurf Neubau Einfamilienhaus - Grundstück 610qm - Meinungen erwünscht - Seite 850

Oben