ᐅ Grundstück auf dem Lande - welches Grundstück welche Bauform - BW
Erstellt am: 10.07.21 13:45
S
SimonHolzwarthS
SimonHolzwarth10.07.21 13:45Hallo zusammen, meine Frau und ich haben uns ein Grundstück in einem ländlichen Dorf reserviert. (Baden Württemberg)
Wir haben großes Interesse dort zu bauen, da wir aus dieser Region stammen. Nun haben wir uns den Bebauungsplan mal ein wenig genauer angeschaut und empfinden die Vorgaben doch als sehr strikt. Wir versuchen aktuell eine sinnvolle Lösung zu bekommen. Zuerst aber mal unsere Anforderungen:
- Wohnfläche ca. 150+ Quadratmeter (mit mindestens 3 Kinderzimmern)
- wir würden auf jeden Fall Unterkellern (allerdings erstmal nicht bewohnbar evtl. später 1-2 Zimmer mit Sonnenlicht da leichte Hanglage)
Nun haben wir uns bereits verschiedenen Punkte überlegt wie wir das Ganze umsetzten können - bzw. wie wir am meisten Wohnraum für möglichst geringe Zusatzkosten wir Erker oder Dachgauben bekommen.
Mittlerweile sind wir bei einem Satteldach gelandet, um im OG wenigstens einen Teil sinnvoll zu nutzen.
Habt Ihr eine Idee ob das ganze z.B. mit einem Flachdach umsetzbar wäre (wir haben leider keine Architektenausbildung und können daher nicht genau verstehen was bei einem Flachdach erfüllt sein muss um es auf 6,7 Meter zu bauen?)?
Wir sind um jede Hilfe und Unterstützung dankbar um unseren Traum zu erfüllen! Danke im Voraus für eure Unterstützung!!
Bebauungsplan/Einschränkungen
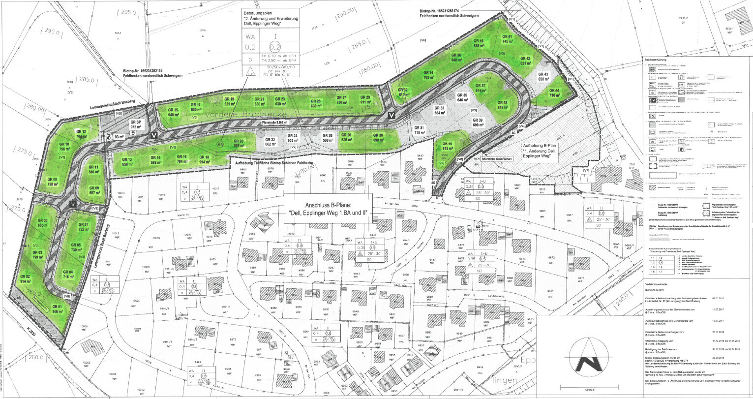
Größe des Grundstücks. 699 QM Nummer 39
Hang: ja / Querschnitt aktuell noch nicht vorhanden
Grundflächenzahl: 0,2
Geschossflächenzahl 0,2
Baufenster, Baulinie und -grenze: keine Vorgaben - nur die aus der BAU VO
Randbebauung
Anzahl Stellplatz: 2 (wir wollen keine Garage)
Geschossigkeit: 1
Dachform: Dachformen: SD/SDv/PD/WD 22° bis 30° / FD 0° bis ≤ 5°
Stilrichtung
Ausrichtung: zur Straße oder nach Himmelsrichtungen
Maximale Höhen/Begrenzungen
weitere Vorgaben:
- 1 Vollgeschoss Grundflächenzahl und Geschossflächenzahl 0,2 (unser Grundstück hat 700 Quadratmeter)
- Firsthöhe 6,7 M (Die maximale Gebäudehöhe wird als Firsthöhe (FH), als höchster Punkt einer baulichen Anlage definiert. Diese wird ab der Bezugshöhe auf der Erdgeschoss - Fußbodenhöhe (Einfamilienhaus) gemessen. FH max. = Höhe Attika Flachdach.)
- Traufhöhe 3,5 M (Die Traufhöhe (TH) wird am höchsten Punkt des Schnittpunktes der Außenwand mit der Dachhaut/Flachdach ab dem festgesetzten Bezugspunkt (Einfamilienhaus) gemessen.)
- Bezugspunkt: Erdgeschoss – Fußbodenhöhe (Einfamilienhaus) Sämtliche Höhen baulicher Anlagen werden ab Einfamilienhaus ermittelt. Das Erdgeschoss eines Gebäudes ist das Geschoss, welches ein Vollgeschoss gemäß § 20 Baunutzungsverordnung ist. Die zur Erreichung der gewählten Höhenlage des Erdgeschosses notwendigen Abgrabungen und Aufschüttungen sind zulässig.
Anforderungen der Bauherren
Stilrichtung, Dachform, Gebäudetyp: Keller mit Wohnraum (ca. 50%)
Keller, Geschosse: Keller + Vollgeschoss + Dachgeschoss
Anzahl der Personen, Alter: aktuell 2x 25 Jahre plus evtl. mal 3-4 Kinder
Raumbedarf im EG, OG
Büro: Homeoffice und meine Frau Lehrer
Schlafgäste pro Jahr: 5
offene oder geschlossene Architektur: egal
konservativ oder moderne Bauweise: egal
offene Küche, Kochinsel: ja
Anzahl Essplätze: 6
Kamin: ja
Musik/Stereowand: nein
Balkon, Dachterrasse: ja
Garage, Carport: nein
Nutzgarten, Treibhaus: nein
weitere Wünsche/Besonderheiten/Tagesablauf, gern auch Begründungen, warum dieses oder das nicht sein soll
Ich hoffe, dass mit den Angaben gearbeitet werden kann.
Ganz möglicherweise könnten wir sogar nochmal das Grundstück wechseln, wir finden das aber wirklich Klasse, da die Wiese gegenüber der Straße nicht bebaut werden darf und wir so einen relativ weiten Blick ins Tal haben!
Gesamtbudget ohne Bauplatz: ca. 450.000 € (und ja Eigenleistungen sind wir bereit zu machen)
(falls mehr infos aus der festsetzung erforderlich sind kann ich diese auch verlinken falls erlaubt 🙂 )
DANKE Im Voraus für euren Einsatz!!!!

Wir haben großes Interesse dort zu bauen, da wir aus dieser Region stammen. Nun haben wir uns den Bebauungsplan mal ein wenig genauer angeschaut und empfinden die Vorgaben doch als sehr strikt. Wir versuchen aktuell eine sinnvolle Lösung zu bekommen. Zuerst aber mal unsere Anforderungen:
- Wohnfläche ca. 150+ Quadratmeter (mit mindestens 3 Kinderzimmern)
- wir würden auf jeden Fall Unterkellern (allerdings erstmal nicht bewohnbar evtl. später 1-2 Zimmer mit Sonnenlicht da leichte Hanglage)
Nun haben wir uns bereits verschiedenen Punkte überlegt wie wir das Ganze umsetzten können - bzw. wie wir am meisten Wohnraum für möglichst geringe Zusatzkosten wir Erker oder Dachgauben bekommen.
Mittlerweile sind wir bei einem Satteldach gelandet, um im OG wenigstens einen Teil sinnvoll zu nutzen.
Habt Ihr eine Idee ob das ganze z.B. mit einem Flachdach umsetzbar wäre (wir haben leider keine Architektenausbildung und können daher nicht genau verstehen was bei einem Flachdach erfüllt sein muss um es auf 6,7 Meter zu bauen?)?
Wir sind um jede Hilfe und Unterstützung dankbar um unseren Traum zu erfüllen! Danke im Voraus für eure Unterstützung!!
Bebauungsplan/Einschränkungen
Größe des Grundstücks. 699 QM Nummer 39
Hang: ja / Querschnitt aktuell noch nicht vorhanden
Grundflächenzahl: 0,2
Geschossflächenzahl 0,2
Baufenster, Baulinie und -grenze: keine Vorgaben - nur die aus der BAU VO
Randbebauung
Anzahl Stellplatz: 2 (wir wollen keine Garage)
Geschossigkeit: 1
Dachform: Dachformen: SD/SDv/PD/WD 22° bis 30° / FD 0° bis ≤ 5°
Stilrichtung
Ausrichtung: zur Straße oder nach Himmelsrichtungen
Maximale Höhen/Begrenzungen
weitere Vorgaben:
- 1 Vollgeschoss Grundflächenzahl und Geschossflächenzahl 0,2 (unser Grundstück hat 700 Quadratmeter)
- Firsthöhe 6,7 M (Die maximale Gebäudehöhe wird als Firsthöhe (FH), als höchster Punkt einer baulichen Anlage definiert. Diese wird ab der Bezugshöhe auf der Erdgeschoss - Fußbodenhöhe (Einfamilienhaus) gemessen. FH max. = Höhe Attika Flachdach.)
- Traufhöhe 3,5 M (Die Traufhöhe (TH) wird am höchsten Punkt des Schnittpunktes der Außenwand mit der Dachhaut/Flachdach ab dem festgesetzten Bezugspunkt (Einfamilienhaus) gemessen.)
- Bezugspunkt: Erdgeschoss – Fußbodenhöhe (Einfamilienhaus) Sämtliche Höhen baulicher Anlagen werden ab Einfamilienhaus ermittelt. Das Erdgeschoss eines Gebäudes ist das Geschoss, welches ein Vollgeschoss gemäß § 20 Baunutzungsverordnung ist. Die zur Erreichung der gewählten Höhenlage des Erdgeschosses notwendigen Abgrabungen und Aufschüttungen sind zulässig.
Anforderungen der Bauherren
Stilrichtung, Dachform, Gebäudetyp: Keller mit Wohnraum (ca. 50%)
Keller, Geschosse: Keller + Vollgeschoss + Dachgeschoss
Anzahl der Personen, Alter: aktuell 2x 25 Jahre plus evtl. mal 3-4 Kinder
Raumbedarf im EG, OG
Büro: Homeoffice und meine Frau Lehrer
Schlafgäste pro Jahr: 5
offene oder geschlossene Architektur: egal
konservativ oder moderne Bauweise: egal
offene Küche, Kochinsel: ja
Anzahl Essplätze: 6
Kamin: ja
Musik/Stereowand: nein
Balkon, Dachterrasse: ja
Garage, Carport: nein
Nutzgarten, Treibhaus: nein
weitere Wünsche/Besonderheiten/Tagesablauf, gern auch Begründungen, warum dieses oder das nicht sein soll
Ich hoffe, dass mit den Angaben gearbeitet werden kann.
Ganz möglicherweise könnten wir sogar nochmal das Grundstück wechseln, wir finden das aber wirklich Klasse, da die Wiese gegenüber der Straße nicht bebaut werden darf und wir so einen relativ weiten Blick ins Tal haben!
Gesamtbudget ohne Bauplatz: ca. 450.000 € (und ja Eigenleistungen sind wir bereit zu machen)
(falls mehr infos aus der festsetzung erforderlich sind kann ich diese auch verlinken falls erlaubt 🙂 )
DANKE Im Voraus für euren Einsatz!!!!
Da stehen auch schon Antworten:
https://www.hausbau-forum.de/threads/traufhoehe-von-3-5-metern-bei-einem-vollgeschoss-sinnvolles-dach.39783/
https://www.instagram.com/11antgmxde/
https://www.linkedin.com/company/bauen-jetzt/
https://www.hausbau-forum.de/threads/traufhoehe-von-3-5-metern-bei-einem-vollgeschoss-sinnvolles-dach.39783/
SimonHolzwarth schrieb:Erlaubt nur innerhalb des Forums. Ansonsten nennst Du z.B. den Bebauungsplan mit Ort, Namen und Nummer (so wie Du es ja lobenswerterweise hier ohne die sonst "üblichen" kindischen Radierungen gemacht hast).
falls mehr infos aus der festsetzung erforderlich sind kann ich diese auch verlinken falls erlaubt
https://www.instagram.com/11antgmxde/
https://www.linkedin.com/company/bauen-jetzt/
S
SimonHolzwarth10.07.21 15:46Ok, ich hoffe dass erstmal mit den Angaben gearbeitet werden kann - das PDF konnte ich aus welchen Gründen auch immer nicht hochladen!
Danke für euren Einsatz!
Danke für euren Einsatz!
S
SimonHolzwarth10.07.21 15:58Nein .. kann man nicht. Es reicht nicht, aus der vorhandenen Grafik, den Abschnitt abzuschneiden ... das hätte ich auch machen können.
Das muss gezielt nochmal gescannt werden und gleich mit passender Auflösung gespeichert werden ... oder du gibst mal die Stichwörter zum selber Googeln bekannt.
Das muss gezielt nochmal gescannt werden und gleich mit passender Auflösung gespeichert werden ... oder du gibst mal die Stichwörter zum selber Googeln bekannt.
Ähnliche Themen