Hallo wir starten mal mit der Liste
Bebauungsplan/Einschränkungen
Es gibt bei unserem Bebauungsplan keinerlei Einschränkungen die unseren Wünschen entgegen stehen.
Übliche Dinge wie 3m Grenzabstand und 5m für die Garage , 2 Stellplätze, ansonsten alles frei.
Grundstück ist knapp 400m², Lage siehe Bilder.
Anforderungen der Bauherren
Stilrichtung, Dachform, Gebäudetyp
moderner / zeitloser Stil, keine Stadtvilla 😎 ,aus Kostengründen und Abstellflächengründen auch kein Flachdach, daher haben wir uns auf satteldach mit wenig / kein dachüberstand eingeschossen.
Keller, Geschosse
kein Keller, 2 Vollgeschosse
Anzahl der Personen, Alter
Wir sind 47+41 + 5 als Stammbewohner und 11 + 14 als Wochenendkinder (Patchwork)
Raumbedarf im EG, OG
EG: Windfang ( es soll nicht bis zum Esszimmer oder Wohnzimmer ziehen wenn man die Haustür öffnet), WZ(eher Rückuigsbereich), Küche, Esszimmer (Familienbereich), Haustechnik, Büro/ Gäste und WC (evtl. mit Dusche)
OG: Elternschlafzmmer (mit Ankleide) und Bad, 2 Kinderzimmer , 2. Duschbad, Abstellfläche/Raum , Büro
Büro: Familiennutzung oder Homeoffice?
Wir machen beide viel Homeoffice
Schlafgäste pro Jahr
Zählen Patchworkkinder als Gäste, ansonsten eher wenig 2-3 mal pro Jahr.
offene oder geschlossene Architektur
gemischt. Wir wollen nicht das die Kinder wenn sie Abends zurück kommen durchs Wohnzimmer müssen um in ihr Zimmer zu kommen. Anonsten kann es offen sein.
konservativ oder moderne Bauweise
gerne sehr modern. Wir sind sehr "faul". Am liebsten ist alles eingebaut oder hoch gehangen das es einfach ist alles zu putzen 🙂
offene Küche, Kochinsel
am liebsten Insel und sehr geradlinig.
Anzahl Essplätze
3 +2 bei Bedarf auch mal eine längere Tafel (Geburtstage und ähnliches)
Kamin
Nein.
Musik/Stereowand
Nein zumindest nichts was man gesondert berücksichtigen müsste.
Balkon, Dachterrasse
Nein
Garage, Carport
ja, Garage mit Abstellraum am Haus mit Durchgang ins Haus (wenn es sinnvoll ist)
Nutzgarten, Treibhaus
Vielleicht aber nicht Prio 1
weitere Wünsche/Besonderheiten/Tagesablauf, gern auch Begründungen, warum dieses oder das nicht sein soll
Hausentwurf
Von wem stammt die Planung:
-Planer eines Bauunternehmens
Was gefällt besonders? Warum?
Ist ein erster Entwurf.
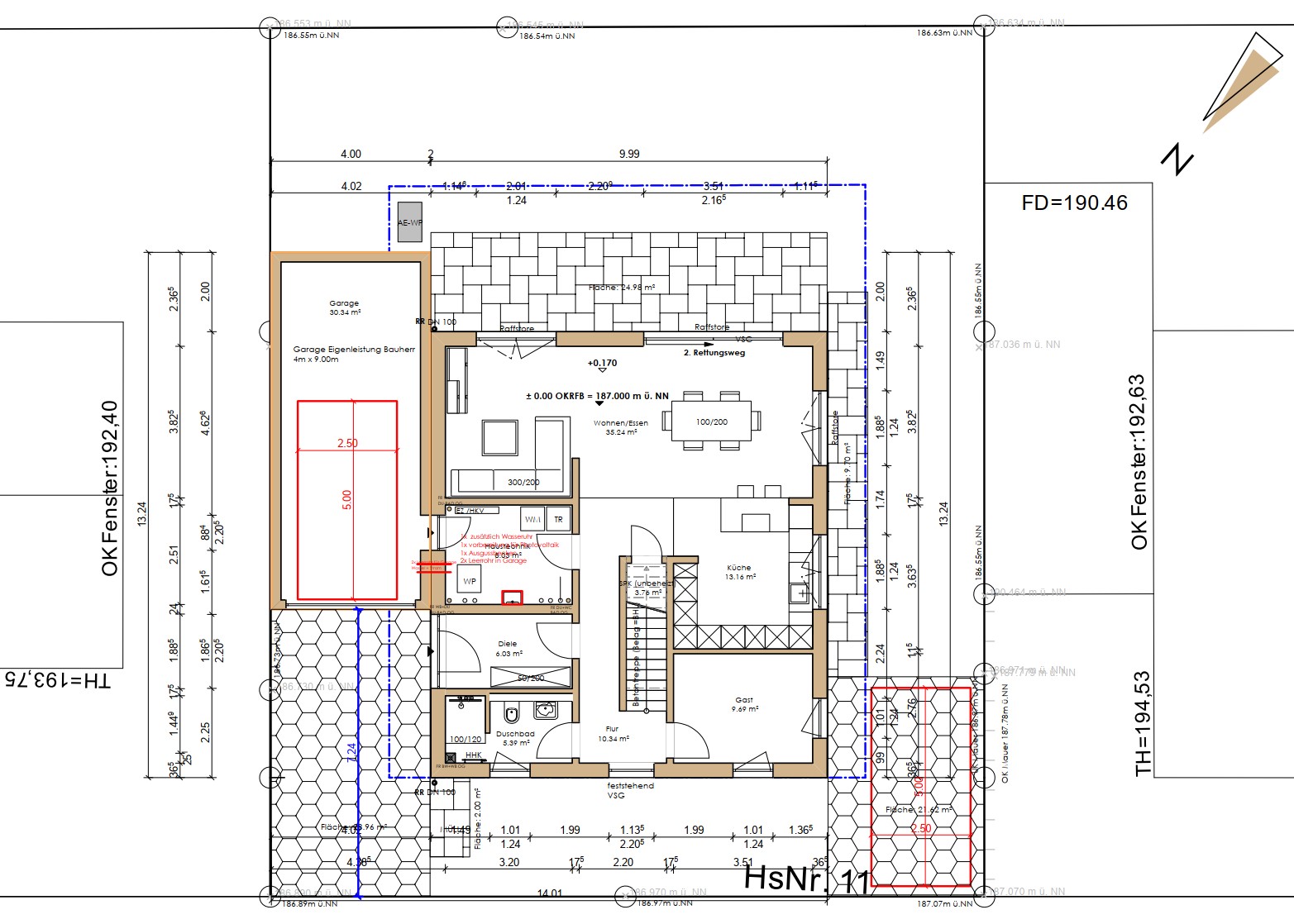
Eingang "vom Hof" - der Windfangbereich scheint aber sehr knapp bemessen.
Wenig Flur, das finden wir eigentlich gut, haben aber Angst das es "gedrungen" oder dunkel wirkt.
Wie würde man das Haus stellen? Eher die Grundstücksbreite maximal bebauen oder schauen das man etwas mehr abstand zum Nachbarn hat an der "Wohnseite"? Uns ist bewußt das man beieinem kleinen Grundstück nicht besonders viele Optionen hat "es besser zu machen"
Unsere Raumwünsche sind soweit berücksichtigt.
Was gefällt nicht? Warum?
Preisschätzung lt Architekt/Planer:
450000€ ohne Garage + Grundstück ( Eigenleistung)
Persönliches Preislimit fürs Haus, inkl Ausstattung:
550000€
favorisierte Heiztechnik:
Wärmepumpe Luft / wasser oder Sole?
Wenn Ihr verzichten müsst, auf welche Details/Ausbauten
-könnt Ihr verzichten:
Gerade Treppe
Dusche unten
Diese komische "symmetrische" Fensteranordnung.
-könnt Ihr nicht verzichten:
Schlafzimmeranzahl, 2 Büroplätze (müssen nicht zwingend 2abgeschlossene Räume sein.)
Wichtiger das es innen schön und luftig ist als dasvon außen die Fenster in der Flucht sitzen.
Warum ist der Entwurf so geworden, wie er jetzt ist? ZB
Standardentwurf vom Planer mit ein paar Wünschen die wir geäußert haben (EIngang Hofseite, Garagenposition, Raumprogramm)
Was macht ihn in Euren Augen besonders gut oder schlecht?
Wirkt für uns wenig modern und durchdacht.
3 Fenster in der Ankleide? Küche und Wohnzimmer tauschen? Wir wollten Küche mit Insel und Wandhohen Schränken dahinter. Flur ohne Fenster oben?
Wie gesagt es ist ein erster Entwurf und vielleicht hilft das "Schwarmwissen" hier uns weiter zu bringen. Wir hatten noch kein wirklich persönliches Planungsgespräch.







Bebauungsplan/Einschränkungen
Es gibt bei unserem Bebauungsplan keinerlei Einschränkungen die unseren Wünschen entgegen stehen.
Übliche Dinge wie 3m Grenzabstand und 5m für die Garage , 2 Stellplätze, ansonsten alles frei.
Grundstück ist knapp 400m², Lage siehe Bilder.
Anforderungen der Bauherren
Stilrichtung, Dachform, Gebäudetyp
moderner / zeitloser Stil, keine Stadtvilla 😎 ,aus Kostengründen und Abstellflächengründen auch kein Flachdach, daher haben wir uns auf satteldach mit wenig / kein dachüberstand eingeschossen.
Keller, Geschosse
kein Keller, 2 Vollgeschosse
Anzahl der Personen, Alter
Wir sind 47+41 + 5 als Stammbewohner und 11 + 14 als Wochenendkinder (Patchwork)
Raumbedarf im EG, OG
EG: Windfang ( es soll nicht bis zum Esszimmer oder Wohnzimmer ziehen wenn man die Haustür öffnet), WZ(eher Rückuigsbereich), Küche, Esszimmer (Familienbereich), Haustechnik, Büro/ Gäste und WC (evtl. mit Dusche)
OG: Elternschlafzmmer (mit Ankleide) und Bad, 2 Kinderzimmer , 2. Duschbad, Abstellfläche/Raum , Büro
Büro: Familiennutzung oder Homeoffice?
Wir machen beide viel Homeoffice
Schlafgäste pro Jahr
Zählen Patchworkkinder als Gäste, ansonsten eher wenig 2-3 mal pro Jahr.
offene oder geschlossene Architektur
gemischt. Wir wollen nicht das die Kinder wenn sie Abends zurück kommen durchs Wohnzimmer müssen um in ihr Zimmer zu kommen. Anonsten kann es offen sein.
konservativ oder moderne Bauweise
gerne sehr modern. Wir sind sehr "faul". Am liebsten ist alles eingebaut oder hoch gehangen das es einfach ist alles zu putzen 🙂
offene Küche, Kochinsel
am liebsten Insel und sehr geradlinig.
Anzahl Essplätze
3 +2 bei Bedarf auch mal eine längere Tafel (Geburtstage und ähnliches)
Kamin
Nein.
Musik/Stereowand
Nein zumindest nichts was man gesondert berücksichtigen müsste.
Balkon, Dachterrasse
Nein
Garage, Carport
ja, Garage mit Abstellraum am Haus mit Durchgang ins Haus (wenn es sinnvoll ist)
Nutzgarten, Treibhaus
Vielleicht aber nicht Prio 1
weitere Wünsche/Besonderheiten/Tagesablauf, gern auch Begründungen, warum dieses oder das nicht sein soll
Hausentwurf
Von wem stammt die Planung:
-Planer eines Bauunternehmens
Was gefällt besonders? Warum?
Ist ein erster Entwurf.
Eingang "vom Hof" - der Windfangbereich scheint aber sehr knapp bemessen.
Wenig Flur, das finden wir eigentlich gut, haben aber Angst das es "gedrungen" oder dunkel wirkt.
Wie würde man das Haus stellen? Eher die Grundstücksbreite maximal bebauen oder schauen das man etwas mehr abstand zum Nachbarn hat an der "Wohnseite"? Uns ist bewußt das man beieinem kleinen Grundstück nicht besonders viele Optionen hat "es besser zu machen"
Unsere Raumwünsche sind soweit berücksichtigt.
Was gefällt nicht? Warum?
Preisschätzung lt Architekt/Planer:
450000€ ohne Garage + Grundstück ( Eigenleistung)
Persönliches Preislimit fürs Haus, inkl Ausstattung:
550000€
favorisierte Heiztechnik:
Wärmepumpe Luft / wasser oder Sole?
Wenn Ihr verzichten müsst, auf welche Details/Ausbauten
-könnt Ihr verzichten:
Gerade Treppe
Dusche unten
Diese komische "symmetrische" Fensteranordnung.
-könnt Ihr nicht verzichten:
Schlafzimmeranzahl, 2 Büroplätze (müssen nicht zwingend 2abgeschlossene Räume sein.)
Wichtiger das es innen schön und luftig ist als dasvon außen die Fenster in der Flucht sitzen.
Warum ist der Entwurf so geworden, wie er jetzt ist? ZB
Standardentwurf vom Planer mit ein paar Wünschen die wir geäußert haben (EIngang Hofseite, Garagenposition, Raumprogramm)
Was macht ihn in Euren Augen besonders gut oder schlecht?
Wirkt für uns wenig modern und durchdacht.
3 Fenster in der Ankleide? Küche und Wohnzimmer tauschen? Wir wollten Küche mit Insel und Wandhohen Schränken dahinter. Flur ohne Fenster oben?
Wie gesagt es ist ein erster Entwurf und vielleicht hilft das "Schwarmwissen" hier uns weiter zu bringen. Wir hatten noch kein wirklich persönliches Planungsgespräch.
M
motorradsilke07.07.22 16:53Was mir auffällt: Die Kids dürfen nicht baden, oder sie müssen dazu durch das Schlafzimmer. Würde mir nicht gefallen. Ich würde den Flur bis planunten ziehen, dann rechts in die Ankleide und links ins Bad gehen. Dann hast du Licht im Flur, das Fenster kannst du ja etwas nach links verschieben. Evtl. braucht man dann gar kein zusätzliches Duschbad? Ich würde auch die Tür links neben der Treppe oben weglassen.
Schöne Mädchennamen 🙂
Dennoch halte ich das Haus total verbaut durch die Treppenlage quer zum Eingang und dann noch mittig. Man läuft als Elternteil einmal im Kreis im Haus um die Treppe herum, um auf Toi gehen zu können, die Ankleide ist ein Platzfresser. Auch die Bäder sind mit den Duschen verbaut… überall ist immer ein zweiter Zugang mit eingebaut anstatt dem Betretenden gleich mal mit einem schönen Einblick in den Raum Willkommen zu heissen. Elternbad ist auch eher ein Schneckenhaus mit der Toi als Ziel.
Der Treppen-Flur im EG ist irgendwie über… könnte man alles besser anordnen.
Garderobe drauf achten, dass ein Kleiderschrank von der Tiefe past. So meine Meinung 🙂
Dennoch halte ich das Haus total verbaut durch die Treppenlage quer zum Eingang und dann noch mittig. Man läuft als Elternteil einmal im Kreis im Haus um die Treppe herum, um auf Toi gehen zu können, die Ankleide ist ein Platzfresser. Auch die Bäder sind mit den Duschen verbaut… überall ist immer ein zweiter Zugang mit eingebaut anstatt dem Betretenden gleich mal mit einem schönen Einblick in den Raum Willkommen zu heissen. Elternbad ist auch eher ein Schneckenhaus mit der Toi als Ziel.
Der Treppen-Flur im EG ist irgendwie über… könnte man alles besser anordnen.
Garderobe drauf achten, dass ein Kleiderschrank von der Tiefe past. So meine Meinung 🙂
Ähnliche Themen