Grundriss Einfamilienhaus 1,5 Geschossig

4,90 Stern(e) 8 Votes
Zuletzt aktualisiert 05.12.2025
Sie befinden sich auf der Seite 4 der Diskussion zum Thema: Grundriss Einfamilienhaus 1,5 Geschossig
>> Zum 1. Beitrag <<

M

Mathis.aenni

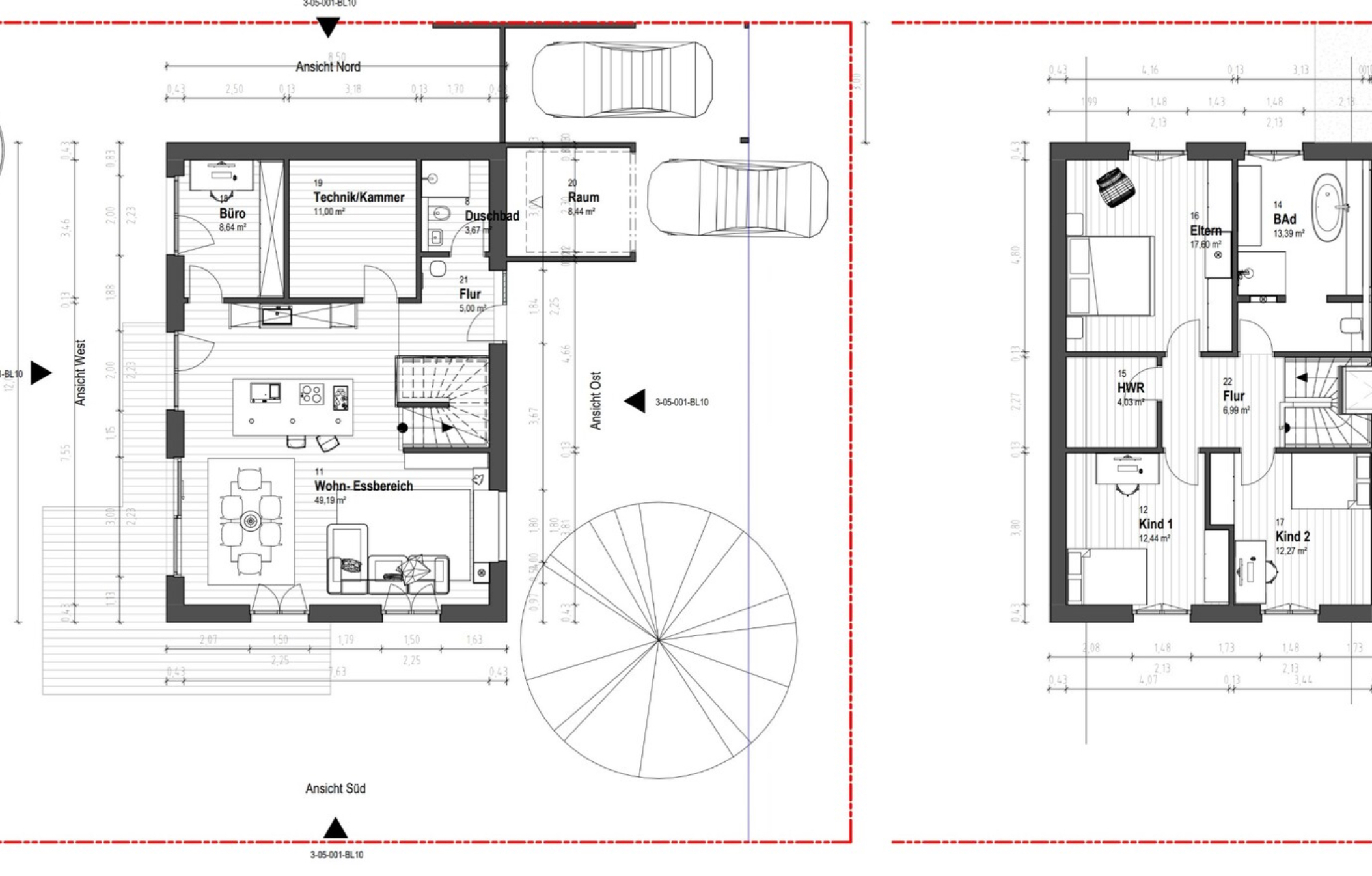
Naja Kochinsel geht schon bei 60m² Wohnzimmer, nur nicht so groß.
Speisekammer und Backup-Küche(?)... das braucht man nicht, auch nicht wenn da regelmäßig 12 Leute essen. Großes Kochfeld, 2 Backöfen. Mehr kann der Laie doch eh nicht handlen.
Um das Thema Backkitchen zu klären, aktuell ist sie noch zu groß geplant, hat aber dennoch ihren Zweck und Sinn. Als Kombination aus Arbeitsfläche/Abstellfläche, Lebensmittel (da kein Keller) und evtl ein zweites Waschbecken plus die Unterbringung etlicher Gerätschaften (und da würde ich mich von einem Laien abgrenzen wollen) erscheint mir ein solcher Bereich hinter der Küche als wirklich sinnvolle Ergänzung.
 
M

Mathis.aenni

Hallo,

ich denke nicht dass der Planer das Problem ist. Stattdessen sind es wohl trendige Wünsche, welche im Kontrast zum Budget bzw. der Hausgröße stehen.
  • Für die Ankleide ist das Haus zu klein
  • Für die freistehende Badewanne ist das Bad zu klein
  • Für die Backup Küche ist das Haus zu klein
  • Für eine Kochinsel ist das Haus zu klein
  • Für einen großzügigen Wohn-Essbereich (darunter verstehe ich 80 m2 und mehr für Küche, Essen und Wohnen) ist das Haus zu klein
All die Sonderlocken gehen zu Lasten der Kinder und Nutzbarkeit. Ich empfehle diverse Fertighausgrundrisse zu prüfen. Die sind meist sehr effizient in Sachen Raumnutzung.

Viele Grüße
Besten Dank für die ehrlichen und konstruktiven Feedbacks, jedoch kann ich diesem Kommentar nicht zustimmen und finde es schon fast frech, einen indirekten Vorwurf "zu Lasten unserer Kinder" zu formulieren. Es ist immerhin unser Traum vom Haus und wir machen uns sehr wohl Gedanken darüber, dass auch die potentiellen Kinder ein schönes zu Hause haben.
 
M

MachsSelbst

Um das Thema Backkitchen zu klären, aktuell ist sie noch zu groß geplant, hat aber dennoch ihren Zweck und Sinn. Als Kombination aus Arbeitsfläche/Abstellfläche, Lebensmittel (da kein Keller) und evtl ein zweites Waschbecken plus die Unterbringung etlicher Gerätschaften (und da würde ich mich von einem Laien abgrenzen wollen) erscheint mir ein solcher Bereich hinter der Küche als wirklich sinnvolle Ergänzung.
Ist dein Haus. Du erkaufst dir den Platz mit Nachteilen im Hauptaufenthaltsbereich.
Und ich will dir nicht zu nahe treten, aber ich bin Hobbykoch, ein enger Verwandter ist Meister... der macht 10 Gänge für 12 Personen in einer 12m² Küche mit einem Ofen und nem 60er Kochfeld...

Bist du gelernter Koch? Wenn nicht, bist du Laie, so wie ich ;)
 
M

MachsSelbst

(...)
Es ist immerhin unser Traum vom Haus und wir machen uns sehr wohl Gedanken darüber, dass auch die potentiellen Kinder ein schönes zu Hause haben.
Ja....potenziell... ihr habt noch keine Kinder und mit allem Respekt und Verständnis... daher habt ihr auch keine Ahnung, wie ein Leben mit Kindern aussieht und was da in den Vordergrund tritt... kein Vorwurf, wusste ich auch nicht... hatte auch ehrlich gesagt überlesen, dass ihr noch keine Kinder habt...

Das ändert quasi alles. Ihr werdet gar keine Zeit mehr haben ständig 12 Leute zu bekochen, wenn da 1, 2 Kinder rumgeistern.
 
Y

ypg

ich denke nicht dass der Planer das Problem ist. Stattdessen sind es wohl trendige Wünsche,
  • Für die Ankleide ist das Haus zu klein
  • Für die freistehende Badewanne ist das Bad zu klein
  • Für die Backup Küche ist das Haus zu klein
  • Für eine Kochinsel ist das Haus zu klein
Naja, wenn man keine Ankleide oder Insel haben möchte, könnten auch 140qm reichen. Man redet als Bauherr 150-160qm, man bekommt 175qm inkl. eines Flugzeugflügels. Mag sein, dass so ein Flügel gewünscht ist. Dann ist es aber Aufgabe des Architektens, etwas Aufklärung zu betreiben. Statt dessen bekommt er das hier:
IMG_1839.jpeg
Schau mal, wie deplatziert das Sofa ist. Da redet der TE etwas von Heimkino und was bekommt er? Einen Ausblick Richtung TK-Tür und dem Treppenantritt. Sowas gibt man doch nicht ab?!
Garderobenschrank? nöööp! Nicht mal ein kleines bisschen? Nochmal nöööp. Kühlschrank und Ofen? Auch hier eine Entscheidung, entweder oder.
Und die Ausrichtungen stimmen auch nicht in seinen Plänen.
Statt dessen gibt es ein Sitzfenster Richtung Straße. Und Blümchen sowie Küchenschneidbrett sind eingezeichnet. Das macht jemand, der seine spielerische Ader wiedergefunden hat.
 
Y

ypg

und da würde ich mich von einem Laien abgrenzen wollen
Liebe Anni (oder Ännie), das liest sich suspekt.
Der, der kochen kann, kann es auch auf 2 Meter und das nur mit Kochtopf und Pfanne. Die Laien erkennt man an ihren überflüssigen E-Geräten, die meist austauschbar sind. Das wissen sie nur nicht, weil es um des Habens Willen geht. Und so verhält es sich ebenso bei einer Vorratshaltung in einem Extraraum oder einer BackupKüche: der, der es kann, der braucht solch ein Chichi nicht. Im Übrigen gibt es hier genügend, die schon kochend eine Familie groß bekommen hat, auch ohne Lieferservice oder Chefkoch, Insta und co. Oft in einer recht kleinen Küche ohne Thermomix, 2. Spüle oder Grillfunktion im Ofen. Und Du willst erzählen, dass Du Dich von einem Laien abgrenzen willst. Dann kommt der Entwurf von Dir?
 
Zuletzt aktualisiert 05.12.2025
Im Forum Grundrissplanung / Grundstücksplanung gibt es 2546 Themen mit insgesamt 88263 Beiträgen


Ähnliche Themen zu Grundriss Einfamilienhaus 1,5 Geschossig
Nr.ErgebnisBeiträge
1Erste Küche geplant - Fragen zum Entwurf 14
2Übertriebene Kosten für die Küche?! - Seite 10241
3Schöne neue Küche im L-Format Neubau, ohne Erfahrung - Seite 239
4Geschlossene oder offene Küche ? 11
5Grundriss, Ideen zur räumlichen Trennung innerhalb der Küche 23
6Varianten für eine Ecklösung in der Küche 18
7Wohnen/Essen/Küche: Wie wohnt ihr oder werdet ihr wohnen? 52
8Planung Wohnraum & Küche eines Doppelhaushälfte in Nürnberg 13
9Probleme bei der aufteilung Küche, Essen , Wohnen 16
10Grundriss Halboffene Küche mit großem Essbereich - Detailfragen 12
11Beleuchtung in Diele und Küche: Deckeneinbau-Strahler benötigt? - Seite 219
12Feedback zur Ikea-Küche - Seite 8167
13Next 125 Küche Erfahrungen / Preiseinschätzung - Seite 339
14Heizkreise/Thermostate für Wohnen/Essen/Küche bei Fußbodenheizung/Wärmepumpe 35
15Küche über ein Jahr vor Fertigstellung kaufen? - Seite 254
16Frage zur Entwässerung / Verrohrung Küche 16
17Grundriss Einfamilienhaus - Problemfall Küche 20
18Steinwand aus Stein/Steinplatten? Wohnzimmer / Küche 69
19Esstisch in einer kleinen Küche 49
20Wasseranschluss außen aus der Küche - möglich? 39

Oben