Grundriss EFH 230qm mit Carport quadratisches Eckgrundstück

4,90 Stern(e) 7 Votes
Zuletzt aktualisiert 26.11.2025
Sie befinden sich auf der Seite 5 der Diskussion zum Thema: Grundriss EFH 230qm mit Carport quadratisches Eckgrundstück
>> Zum 1. Beitrag <<

F

fabreit

Habt ihr die Außenanlagen auch schon komplett durchgeplant? Uns ist nach Fertigstellung des Hausentwurfs bei der Planung der Außenanlagen dann nochmal der ein oder andere Punkt begegnet den wir hätten besser Synchronisieren können. Zum Beispiel welche Beleuchtung wo am Haus angebracht werden soll und die entsprechenden Bewegungsmelder dazu, die Kamerapositionen (falls geplant), die Vorbereitungen für den Pool (wir haben nachträglich einen Technikraum für den Pool im Keller umsetzen müssen), usw.
Mir ist gerade aufgefallen dass auf eurer Terrasse nichts vorgesehen ist zwecks Sonnen- bzw. Evtl. auch Windschutz. Vielleicht sind ja eure Bäume schon so hoch. Wenn nicht würde ich das wirklich nun nachbetrachtet zum Bau gleich einplanen. Das kann ultra nervig sein mit mobilen Sonnenschirmen und kein Mensch setzt sich in die pralle Sonne. Evtl. müssen ja da auch wieder Bohrungen, Leitungen oder Fundamente gemacht werden. Auf das hast später bei diesen Summen keine Lust mehr.
Wir haben einen Rücksprung und Markise. Super wegen Wind und Sonne.
Gute Punkte - die Außensituation haben wir tatsächlich noch nicht ausreichend überlegt, bis auf die grobe Vorstellung eines an der Hauswand befestigten Segels. Die Ausgestaltung von Überdachung, Leuchten und Bewegungsmeldern habe ich für unseren nächsten Architektentermin vorgemerkt. Windeinfall ist tatsächlich aufgrund des Baumbestands und des Nachbargebäudes ein geringeres Problem. Von der eingefassten Außenküche sind wir wie gesagt aus Kostengründen abgekommen, die Anschlüsse werden aber vorgesehen.

Solide Sache. Nur ein paar Winzigkeiten, welche aber nicht zwingend sind:
- die Küchentür versperrt den Laufweg bzw. verknappt ihn schon recht stark, wenn die Schränke so stehen sollen. Dieses Nadelöhr kann auf Dauer nerven.
- viele Schränke sind vom Architekt mit sehr unterschiedlichen Tiefen passgenau eingezeichnet. Sind das alles Schreinermöbel? Falls nicht, kann die Suche nach entsprechenden Markenanbietern evtl. sehr aufwendig werden. Der Raumteiler im WZ bräuchte z.B. eine echte Rückwand und selbst die kann komisch aussehen. Daher würde ich diese Tiefen alle prüfen, ob da mein Wunschmöbel hin passt.
- die Wand zwischen Schlafzimmer und Kinderzimmer würde ich auch schallisolieren bzw. verstärken. Der Weg zum Bett ist nervig lang. Ich würde die Tür vermutlich nach vorn holen (an die Kinderzimmer-Seite). Außerdem wäre das keine Schiebetür.
- dieser Hobbyraum um Keller soll auch Gäste-Schlafzimmer sein? Ist das durchdacht? Was für ein Fenster kommt da rein?
Ansonsten Glückwunsch - das wird sehr schön, denke ich. :)
Küchentür: Guter Punkt, kommt auf die Liste
Schränke: Das haben wir auch im Blick. Wir würden gerne manches zunächst mit Bestandsmöbeln "überbrücken" und ggf. später zimmern lassen. Daher ist der Punkt absolut valide.
Wände im OG werden noch überarbeitet. Aus meiner Sicht sollten alle OG-Wände schallisoliert werden, wir sind ein Musikerhaushalt! :)
Keller ist noch nicht wirklich gut durchdacht. Am liebsten hätten wir diese schrägen Lichtfluter, die den Kellerraum wirklich hell beleuchten im Gäste- und Hobbyraum. Ggf. legen wir diese zwei Räume auch zusammen und installieren eins dieser Betten, die man an die Wand klappen kann. Dann ist das Bad näher am Gästebett, der ganze Raum bekommt Licht und man hat ohne Gäste einen größeren Hobbyraum.


...weiterhin finde ich die mittige Tür zum Allraum sehr ungelungen und langweilig. Doppeltüren können auflockern oder bieder wirken. Hier sehe ich letzteres und würde im Flur eine 1/3 2/3 Lösung bevorzugen, die die Möglichkeit eines Sideboards oder einer Bilderwand bietet. Auch im 9qm-Büro sollte man bei einer Tür bleiben - welche auch immer taktiert die Lebensführung.
Im Gäste-WC würde ich WT und Toi tauschen.
Danke Dir! Die Doppeltür ist gerade als letztes reingekommen, dort war bisher eine durchgehende Wand. Ich lade auch gleich nochmal einen früheren Entwurf hoch. Für mich ist die Garderoben-Flur-Tür-Situation noch nicht rund. Vielleicht müssen wir doch die Diele vergrößern, auch wenn wir davon schon einmal abgekommen waren.

Allgemein bin ich beeindruckt, wie stark Ihr Euch in unsere Grundrisse reindenkt. Vielen Dank dafür, das macht Spaß! Und weitere Ideen sind willkommen! :)
 
F

fabreit

P.S.: ich erneuere jedoch gern meine Einladung, @fabreit möge außer dem Letzt- auch den Erstentwurf einmal zeigen.
Endlich komme ich dazu, Euren Einladungen zu folgen. Nachfolgend zeige ich einen Entwurfsstand vom März. Dort waren wir noch ein Geschoss höher, das Haus war größer (und hat den Garten geradezu verschlungen) und wir hatten noch den Erker im Norden, der die Flursituation etwas geräumiger gemacht hat.

Kritikpunkte waren unter anderen:
  1. Dieses Haus können wir uns nicht leisten
  2. Der Garten wird zu klein
  3. So viel Platz brauchen wir nicht
  4. Ein optionaler Rückzugsort im EG fehlt
  5. Speisekammer in dieser Form ist unnütz


Grundriss eines Einfamilienhauses: Wohnbereich, Kochen/Essen, Diele, Terrasse, Garten, Garage.

Modernes zweistöckiges Haus mit großen Fenstern, Balkonen, Terrasse und Garten.

2D-Grundriss eines Einfamilienhauses mit Wohnzimmer, Schlafzimmer, Kinderzimmer und Bad

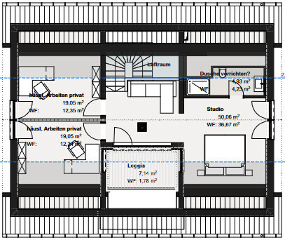
2D-Grundriss eines Hauses mit Loggia, Studio, Flur, WC und Dusche.
 
H

hanghaus2023

Die Belichtung im Eingangsbereich war aber erheblich besser im alten Entwurf (Tür und Fenster im EG und Lichtraum nach oben mit grossen Fenster im OG). Daher mein Vorschlag mit dem zusaetzlichen Fenster in der Garderobe und das Oberlicht im Carport. Das gleicht das nicht aus. Aber besser als nix.

Alternativ wenigstens eine Milchglastür im WC?
 
H

hanghaus2023

Hat es einen besonderen Grund, warum man das Haus nicht mehr paralell zun den N / W Grundstück Grenzen baut?
 
F

fabreit

Hat es einen besonderen Grund, warum man das Haus nicht mehr paralell zun den N / W Grundstück Grenzen baut?
Ein paar Vor- und Nachteile, z. B. Gartengröße Süd-Ost und "Abendsonnenterrasse" in Nord-West-Eck, ist aber noch flexibel. In der Nachbarschaft gibt es beide Varianten, s. u. Was würdest Du empfehlen?

Wie auf dem Satellitenbild auch gezeigt, wird es am Abend auf der geplanten Südterrasse wenig Sonne geben. Welche Hilfsmittel würdet Ihr wählen, um eine gute Simulation der Sonnenstände übers Jahr anzufertigen? Die Lage des Hauses auf dem Grundstück könnte sich stark danach richten.



Luftaufnahme eines Wohnviertels mit Häusern, Straßen, Autos und Gärten.
 
Zuletzt aktualisiert 26.11.2025
Im Forum Grundrissplanung / Grundstücksplanung gibt es 2536 Themen mit insgesamt 88016 Beiträgen


Ähnliche Themen zu Grundriss EFH 230qm mit Carport quadratisches Eckgrundstück
Nr.ErgebnisBeiträge
1Grundriss-Entwurf: Einfamilienhaus mit Keller; 560qm Grundstück - Seite 365
2Unser Grundriss-Entwurf für ein günstiges Haus - Seite 4348
3Entwurf Einfamilienhaus mit ca. 168m² Feedback - Seite 537
4Grundriss Einfamilienhaus ca. 300qm, Grundstück 780qm - Seite 224
5Schalter für Rollläden am Fenster oder an der Tür? 38
6Meinungen zum Grundstück am Hang. - Seite 222
7Entwurf Grundriss Bungalow Meinungen - Seite 422
8Unser Grundriss-Entwurf, eure Meinungen 20
9Grundriss Haus / Grundstück 28
10Entwurf Einfamilienhaus mit Garage/Carport - bitte um Bewertung - Seite 222
11Ausrichtung der Räume bei Nord-Ost Grundstück - Seite 322
12Einbruchschutz - WK2 auf WK3 Fenster aufrüsten - Meldeanlage? 65
13Erster Entwurf Grundriss Einfamilienhaus (ca. 200qm) - Bitte um Feedback - Seite 746
14Allererster Grundriss-Entwurf des Erdgeschosses - Seite 42267
15Schmales Grundstück mit Grenzbebauung - Diverse Fragen / Probleme 26
16Einfamilienhaus (10x8,8qm²) auf 437qm² Grundstück in München - Seite 748
17Einfamilienhaus 180-190qm auf 10x20m Baufenster, erster Entwurf GU - Seite 278
18Bitte um Tipps zum Entwurf EG Grundriss 33
19Einfamilienhaus Entwurf mit Satteldach am Rand vom Baugebiet - Seite 540
20Hausbau im Ruhrgebiet auf vorhandenem Grundstück 70

Oben