Grundriss Bungalow mit Walm-/Satteldach 130qm

4,10 Stern(e) 8 Votes
Zuletzt aktualisiert 23.11.2025
Sie befinden sich auf der Seite 8 der Diskussion zum Thema: Grundriss Bungalow mit Walm-/Satteldach 130qm
>> Zum 1. Beitrag <<

Y

ypg

da es nicht viel ist und auch nicht großartig mehr wird.
Natürlich wird so mehr. Das hat nichts mit Haus zu tun, sondern dass man im Leben auch mal etwas kauft, aber nichts wegwirft.
Mit 40 Jahren wirst Du mehr besitzen als mit 25 Jahren.
Aber egal: Du wurdest darauf hingewiesen. Was Ihr daraus macht, müsst ihr wissen.
Zu den Kosten: da gibt es genug Info-Threads hier, woran man sich orientieren kann. Ist ja nicht so, dass wir jemanden böses wollen, indem wir sagen, dass die Kalkulation zu wackelig ist.
 
J

j.bautsch

also wir haben in unserer Mietwohnung eine 8,4m² Küche mit 1,5m² Speisekammer direkt dran, im Keller befindet sich an Küchen-Sachen ausgelagert nur eines: der raclette grill. alles andere findet in der Küche bzw Speis Platz, der grill würde da auch noch rein passen (in der Speis steht zusätzlich aber auch die Waschmaschine). gehen tut das, aber die Vorstellung mein ganzes leben lang (das ist ja doch die Hoffnung beim Hausbau) nur diese knappen 10m² Platz zu haben (viel mehr darf es nicht werden) wäre nicht meins, dafür baue ich nicht für ein Heiden Geld....
 
Nordlys

Nordlys

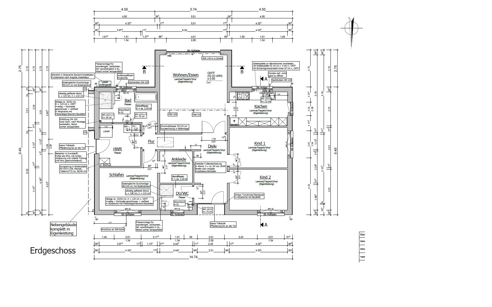
Zunächst ist der Grundriss nicht übel. Nur da in den Hauswirtschaftsraum ja noch die Technik rein muss, also Therme und E Schrank und so, ist er tatsächlich zu eng. Um dann noch zur Hauswirtschaft zu dienen. Die Küche ist gross genug, unsere ist auch so. Aber wir haben den Hauswirtschaftsraum direkt neben Küche und in diesem Waschmaschine und Trockner und Jackenschrank und Vorratsschrank und zweites Spülbecken. Zusätzlich zur Technik. Also, hier überlegt bitte noch mal neu. Der BU wird euch doch beraten, wie es da besser geht.
Wer ohne Keller baut, muss bedenken, wohin die Sachen sollen, die man eben nicht in Küche WZ oder Schlafzimmer haben will. Bei uns wären das Koffer, Winterjacken, Werkzeuge, Gartenkram etc. pp. Als Mann braucht man einen Ort zum Klütern, die Räder der Kindermüsden untergestellt sein, etc. Müssen echt zwei Autos, zwei verzinkte und lackierte und sonstwie geschützte Metallkörper zwingend drinnen stehen? Ist das nicht Verschwendung von Platz und Geld und blosse Gewohnheit der späten 50 er, als Papa seinen Käfer mehr liebte als und öfter wusch als die Kinder gebadet wurden. K.
 
X

xeniatoe

So also wir sind soweit, dass wir den Grundriss in dieser Hinsicht auf jeden Fall ändern werden:
Bad wird um 70 cm verkleinert damit der Hauswirtschaftsraum um diese Maße vergrößert wird.
Dann sollte genug Platz im Hauswirtschaftsraum sein auch für die Waschmaschine und Trockner.
Gästebad bleibt erst mal so, wird aber eine geschlossene Dusche, weil es sonst nicht funktioniert.
Küche sowie Wohn-Esszimmer bleiben so bestehen.
Durch die offene Decke, sollte es nicht so sehr beengt wirken.
 
Zuletzt aktualisiert 23.11.2025
Im Forum Grundrissplanung / Grundstücksplanung gibt es 2535 Themen mit insgesamt 87992 Beiträgen


Ähnliche Themen zu Grundriss Bungalow mit Walm-/Satteldach 130qm
Nr.ErgebnisBeiträge
1Waschmaschine und Trockner im Keller oder OG? 14
2Grundriss Einfamilienhaus ohne Keller, 3 Kinderzimmer und Büro 18
3Grundriss Einfamilienhaus 155m², ohne Keller, 3 Kinderzimmer, 1 Büro 38
4Grundriss Einfamilienhaus 2 Stockwerke ohne Keller 11
5Feedback zu Grundriss Einfamilienhaus erwünscht 18
6Hauswirtschaftsraum im OG - Probleme mit Lärm? - Seite 327
7Einfamilienhaus ohne Keller - Diskussion Grundriss 19
8Grundriss für Einfamilienhaus 210 m² + Keller - Eure Meinungen 16
9Kritik an Einfamilienhaus-Grundriss erwünscht (~175m2/0,9m Kniestock/Keller) 16
10Grundriss Stadtvilla 180m², Keller, 3 Kinder - Eure Meinungen dazu? - Seite 251
11Detailplanung Grundriss Einfamilienhaus mit Keller und Einliegerwohnung 28
12Grundriss 165 m² mit Keller eure Meinung - Seite 352
13Grundriss Einfamilienhaus ca. 200qm mit Keller - Hinterbebauung 20
14Speisekammer vs. größere Küche vs. Hauswirtschaftsraum 13
15Grundriss Einfamilienhaus 2 Vollgeschosse +Keller ca. 130m² Wohnfläche 30
16Grundriss Einfamilienhaus ca. 190qm mit Keller auf Millimeterpapier 78
17Grundriss Einfamilienhaus 190m2 mit Keller Feedback? 41
18Besonderer Grundriss oder langweilig mit Keller? - Seite 220
19Grundriss Einfamilienhaus in Hanglage mit Keller - Seite 651
20Hilfe beim Grundriss des Hauses, Verbesserungsvorschläge? 28

Oben