Im Merkblatt der KfW habe ich tatsächlich keine Mindestgröße gefunden, nur "Wohneinheiten sind in einem abgeschlossenen Zusammenhang liegende und zu dauerhaften Wohnzwecken bestimmte Räume in Wohngebäuden, welche die Führung eines Haushalts ermöglichen (eigener abschließbarer Zugang, Zimmer, Versorgungsanschlüsse für Küche/Kochnische und Bad/WC)."
In Frage käme aktuell "nur" das Programm 297, für die 300 sind wir raus weil es das Grundstück halt schon gibt (klingt komisch aber ist halt so). Da wir ohne QNG bauen würden wären es "nur" 100000€ pro Wohneinheit, für 10 Jahre bei ca 3% weniger Zins pro Jahr als aktuell marktüblich. Würden wir gern mitnehmen, vor allem könnten wir mit doppelter Förderung einen der Kredite mit 10% tilgen um ihn für 0,01%abzuschließen. Kurzum, würden wir gern mitnehmen.
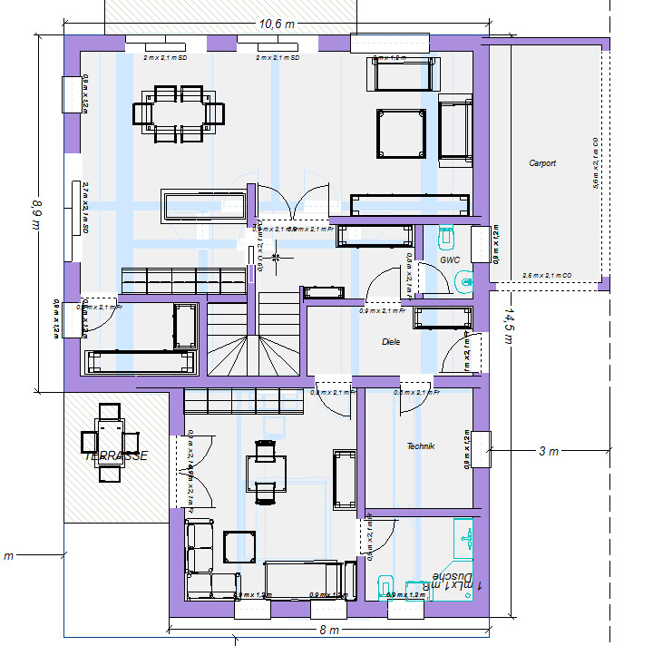
Technikraum mit 8,1m² könnte gern etwas größer vermutlich - Waschmaschine, Trockner, waschbecken, wegen Einliegerwohnung und Photovoltaik eher ein etwas größerer Elektroschrank, Wechselrichter, zumindest Platz für einen Speicher, Lüftungsanlage, Platz für Staubsauger. Wobei der auch in die Speisekammer könnte, aber ein schrank für "gröberes" würde ich da sicher gefüllt bekommen. Und eigentlich auch ein Wäscheständer, damit man nicht alles in den Trockner werfen muss bzw für alles, was nicht darf.
Dem Baumexperten wäre es am liebsten, wenn da neue Haus im vorderen Bereich südlich nicht über den alten Keller hinaus geht, dann könnte man die Kellermauer stehen lassen und für die Wurzeln würde sich nichts ändern - wäre am einfachsten und für den Baum am besten. Die Alternative wäre Wurzelsuchgraben in Handschachtung, als eigentlich archäologisch mit dem Pinsel alle Wurzeln freilegen, wenn möglich umleiten oder sauber kappen mit Wundversorgung. Das wäre auf jeden Fall mit Mehrkosten verbunden

Aber wie gesagt, ich frage ihn mal (bei 10m Breite und 13,5m tiefe war er halt sehr nervös, da wäre der aktuelle Entwurf natürlich schon entspannter. Ein bisschen Buchenbudget haben wir natürlich auch eingeplant, aber recht sicher nicht genug für wochenlanges Pinseln