@ypg trotz das mein Entwurf viel kleiner ist (135m2/112,5m2), sind die nutzbaren Räume größer.
Ich weiß ja nicht, was Dir für Maße in Deinem Programm angezeigt werden, aber bei mir sieht es nach knappen 90qm aus. Kann es sein, dass die Werkstatt/der Carport bei Dir mitberechnet wurde? Als Referenz habe ich die 13,50 von dem Ursprungsplan links genommen.
Aber mal davon abgesehen: jeder hat hier seine Erfahrungen und Meinungen, die der ein oder andere hier kundtut. In vielen Bereichen liegen wir oft auf eine Wellenlänge. Gerade wenn es um Kritik geht. Fehler werden schnell gesehen. So richtig behoben ohne eine andere Engstelle zu kreieren werden sie oft nie.
Kompromisse muss man meist immer in einem Hausentwurf machen. Da spielen die verschiedenen Prioritäten eines jeden eine grosse Rolle. Diejenigen, die 3 Kinder haben, legen mindestens Wert auf eine zweite Dusche, andere haben Hobbys und wollen diese auch im Haus weiterführen. Wellnessliebende legen Wert auf ein Bad, andere ziehen sich nur allein in einer Ankleide aus.
Viele haben den Wunsch, im Alter nach unten zu ziehen und denken, in ihrem 4qm-Dusch-WC plus 8qm Büro glücklich zu werden. Oft wird das auch begründet kritisiert. Zumindest ich halte nichts davon, jegliche Kompromisse auf Prio Alter zu setzen, wenn man gerade anfängt, eine Familie zu gründen. Dazwischen liegen oft 40/50 Jahre und eventuell ein Arbeitsplatzwechsel, zwei Scheidungen, drei Krankheiten, vier Hochzeiten und fünf Enkel
In diesem Fall gibt es die Einliegerwohnung, die nicht nur wegen der Förderung, sondern aufgrund des Familienbestand generiert werden muss. Denn ohne die wird es diesen Hausbau nicht geben.
Wenn ich dann aber so etwas sehe, dass man den barrierearmen Wunsch umsetzt mit Räumen, in denen man sich an allen Wänden fast gleichzeitig abstützen kann, sodass man keinen Stock mehr braucht, dann übe ich dahingehend Kritik. Ich glaube auch nicht, dass der TE seinen Papa soviel übel nimmt, dass er diese Schlaf- und Waschlöcher für ihn bauen wird. So ein Allkoven-Bett mag für Kinder oder im Urlaub ganz nett sein, zur Not auch noch für Studenten, hat aber nichts mit altersgerechtem Wohnen zu tun.
Ich wette, wenn jmd anderes hier in nächster Zeit mit diesen Maßen in seinem Entwurf ankommt, wird das berechtigt kritisiert.
Das gleiche gilt im Übrigen für den direkten Blick auf das Sofa, wen man die Hauptwohnung betritt und den Blick auf die Treppe, wenn man im WZ sitzt. Oder die Sofanähe zur Garderobe, das dann - auch bei disziplinierten Erwachsenen - schneller mal als Ablage für Schal und co genutzt wird als erst einmal die Tür vom garderobenschrank zu öffnen. Die Toi unter der Treppe ist auch eher eine Notlösung im Bestand als eine kluge Neubauidee. Allerdings passt dann schon die Idee, den Verbindungsflur auch zu nutzen.
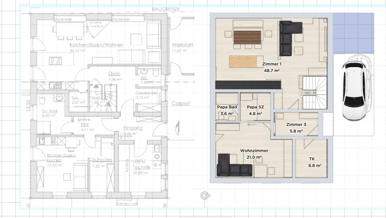
Raumbedarf im Dachboden: 2x „Rückzugsort“ für die Erwachsenen, im Zweifel lagern wir dort halt einen Schaukelstuhl mit Leselampe und eine Nähmaschine auf der einen Seite und einen Spiele-PC auf der anderen Seite.
Jetzt aber mal zu dem ausgebauten Dachboden: ich glaube mittlerweile auch (außer hier kommt jmd noch mit dem richtig innovativen Entwurf), dass man eher auf den Ausbau verzichten sollte als die ganze Grundfläche vom EG im Dachgeschoss zu nutzen.
Und zwar deshalb, weil Ihr
@BucheOnBoard Euch im Spitzboden einen Rückzugsort schaffen wollt. Da geht doch nochmal in Euch. Euer Kind ist ein Jahr alt, eventuell kommt ein zweites. Wie stellt Ihr Euch das mit einem Rückzugsort vor, wenn man eigentlich in der Nähe des oder der Kinder sein müsste. Irgendwann kommt das Kind abends ins Bett und ihr könnt danach chillen. Da werdet ihr wahrscheinlich gar keine Lust haben, nach ganz oben zu gehen, sondern bleibt beim Getränk im EG, bevor Ihr selbst ins Schlafzimmer geht. Und ja, auch das Schlafzimmer ist dann Rückzug, aber ein viel bequemerer. Alternative wäre, das Büro, also Gästezimmer auch für Euch wohnlich zu gestalten.
Und wenn das nicht reichen sollte, dann kann man ja eben ein weiteres Zimmer mit der ausgenutzten Grundfläche im Dachgeschoss generieren. Vielleicht ist im Süden eine schöne Gaube finanziell noch drin, wo ihr den Sessel mit Stehlampe stellen könnt und ein Wandschrank die Nähmaschine beherbergt?
Letztendlich hattet Ihr den Wunsch zum Keller. Der ist zu teuer.
Mal schauen:
Raumbedarf im Keller (Zugang durch gemeinsamen Flur+ zusätzlicher Außeneingang): Technik/HAR mit Wärmepumpe, Lüftung, Elektroverteilung, Wechselrichter, Server; Holz-Heimwerker-Werkstatt; Waschküche; 2x Hobbykeller für großformatige Sammlungen - Lego und Bierdosen, no Kink-Shaming please

, 1x „Lager“ für Deko, Koffer, Campingzeugs und so. Muss also beheizt (und belüftet) sein, aber einfachst gefliest und Aufputzinstallation reichen
Ich sehe da eher den Dachboden als Kellerersatzraum. Erst einmal als Lager und dann für Eure Sammlungen. Ich sage Euch aber zu, dass dafür kaum noch Zeit bleibt
Carport/Dachüberstand direkt am Gebäude wäre schon gut, aber eher für Fahrräder und in (mittelferner) Zukunft für ein E-Auto.
…
mit dem Wunsch auch für beide Eltern (also mich+Frau) einen eigenen Raum zu haben, der eben nicht die
Küche und das Arbeitszimmer sind, einen Raum, den man nicht aufräumen muss, von dem man die Tür knallen kann, wenn man glaubt das sei nötig.
Euer eigener Raum wäre das Schlafzimmer mit einer Tür zum Knallen.
Ich denke, es ist ungefähr klar, wohin die Reise führt: klare Struktur für die Einliegerwohnung, mind. 30qm für die Förderung, Flur braucht es nicht, dafür etwas Bewegungsfreiheit für möbel, über die man nicht stolpern sollte.
Gemeinsamer Flur, der auch gemeinsam für Garderobe genutzt wird. Kleine zusätzliche Garderobe für die Hauptwohnung, falls mal _irgendwann später_ fremd vermietet wird. (Ich rate dennoch dazu, die Technik in der Nordhälfte zu belassen, also auch das Bad der Einliegerwohnung)
Eine Treppe, die fest in den Dachboden führt, dort mindestens Lagerfläche. Im Dachgeschoss ein Allzweckzimmer, der von den Kinderzimmer getrennt ist, damit dort auch abends die Nadel der guten Singer tanzen kann.
Und wer in Iserbrook baut, der sollte sich mit mind 48 Grad Dachneigung arrangieren
