ᐅ Grundriss altersgerechtes Wohnen (Neubau) in alter Hofanlage
Erstellt am: 23.06.22 23:29
K
karl.jonasK
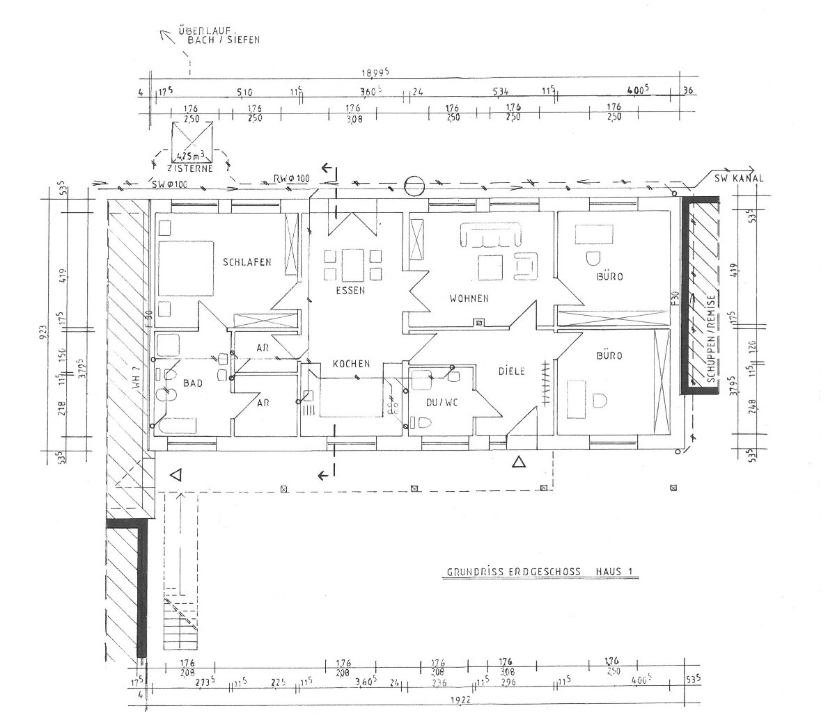
karl.jonas23.06.22 23:29Ich möchte in einer bestehenden Hofanlage (Vierseithof, Ziegelstein) zwei Schuppen durch zwei Häuser ersetzen. Jedes Haus soll im EG und OG jeweils eine Wohnung haben. Der Zugang erfolgt oben über eine Außentreppe / Laubengang, mit Nachrüstmöglichkeit für einen Außenaufzug. Die äußere Baugrenze ist durch die bestehende Hofanlage vorgegeben, die nicht ausgeweitet werden soll. Hier stelle ich erstmal den Grundriss für die erste Wohnung (EG Haus 1) zur Diskussion, in die ich selber einziehen möchte. Ich bin auf eure Kommentare gespannt.
Bebauungsplan/Einschränkungen
Hang: nein
Baufenster, Baulinie und -grenze: innerhalb des bestehenden Hofes
Randbebauung: nein
Maximale Höhen/Begrenzungen: Umgebungsbebauung
Anforderungen der Bauherren
Stilrichtung, Dachform, Gebäudetyp: angepasst an vorhandene Hofanlage; Satteldach; Zweifamilienhaus
Keller, Geschosse: kein Keller, EG, OG
Anzahl der Personen, Alter: 2, Ü60
Raumbedarf: Schlafen, Wohnen, Essen, Kochen, + 2 Räume für Büro/Gäste
Büro: Familiennutzung
Schlafgäste pro Jahr: mehrfach, auch zeitgleich
geschlossene Architektur
konservative Bauweise
offene Küche: ja
Anzahl Essplätze: 6
Kamin: als Option
Garage, Carport: nein
weitere Wünsche: sehr helle Wohnräume; seniorengerecht
Hausentwurf
Von wem stammt die Planung: Architekt
Was gefällt besonders? Warum? Hohe Räume mit hohen Fenstern (-> viel Licht); Symmetrie der Außenansicht (optik)
Was gefällt nicht? Warum?: Unsicherheit bzgl. Nutzflächen. Anmerkung: im Hof sind unbegrenzt weitere Nutzflächen vorhanden
Preisschätzung lt Architekt/Planer: 650.000
favorisierte Heiztechnik: Fußbodenheizung, Wärmepumpe; Holz nach Lust und Freude
Warum ist der Entwurf so geworden, wie er jetzt ist? Familienplanung, Rücksprache mit Freunden, Rücksprache mit Bauleiter, Umsetzung durch den Architekten (zwei Zyklen)
Was macht ihn in Euren Augen besonders gut oder schlecht? Passt in die vorhandene umgebende Bebauung; zwei Zusatzräume; sehr hell
Was ist die wichtigste/grundlegende Frage zum Grundriss in 130 Zeichen zusammengefasst? Wo kann der Grundriss noch optimiert werden?




Bebauungsplan/Einschränkungen
Hang: nein
Baufenster, Baulinie und -grenze: innerhalb des bestehenden Hofes
Randbebauung: nein
Maximale Höhen/Begrenzungen: Umgebungsbebauung
Anforderungen der Bauherren
Stilrichtung, Dachform, Gebäudetyp: angepasst an vorhandene Hofanlage; Satteldach; Zweifamilienhaus
Keller, Geschosse: kein Keller, EG, OG
Anzahl der Personen, Alter: 2, Ü60
Raumbedarf: Schlafen, Wohnen, Essen, Kochen, + 2 Räume für Büro/Gäste
Büro: Familiennutzung
Schlafgäste pro Jahr: mehrfach, auch zeitgleich
geschlossene Architektur
konservative Bauweise
offene Küche: ja
Anzahl Essplätze: 6
Kamin: als Option
Garage, Carport: nein
weitere Wünsche: sehr helle Wohnräume; seniorengerecht
Hausentwurf
Von wem stammt die Planung: Architekt
Was gefällt besonders? Warum? Hohe Räume mit hohen Fenstern (-> viel Licht); Symmetrie der Außenansicht (optik)
Was gefällt nicht? Warum?: Unsicherheit bzgl. Nutzflächen. Anmerkung: im Hof sind unbegrenzt weitere Nutzflächen vorhanden
Preisschätzung lt Architekt/Planer: 650.000
favorisierte Heiztechnik: Fußbodenheizung, Wärmepumpe; Holz nach Lust und Freude
Warum ist der Entwurf so geworden, wie er jetzt ist? Familienplanung, Rücksprache mit Freunden, Rücksprache mit Bauleiter, Umsetzung durch den Architekten (zwei Zyklen)
Was macht ihn in Euren Augen besonders gut oder schlecht? Passt in die vorhandene umgebende Bebauung; zwei Zusatzräume; sehr hell
Was ist die wichtigste/grundlegende Frage zum Grundriss in 130 Zeichen zusammengefasst? Wo kann der Grundriss noch optimiert werden?
haydee schrieb:
Was verstehst du unter altersgerecht bzw bis zu welchem Handicap wollt ihr in der Wohnung lebenDas habe ich mich auch gefragt. Kann nur „alles auf einer Ebene“ gemeint sein, ansonsten nicht „großzügig“ und Türen, soviel der Schreiner liefern kann. 😉driver55 schrieb:
Das habe ich mich auch gefragt. Kann nur „alles auf einer Ebene“ gemeint sein, ansonsten nicht „großzügig“ und Türen, soviel der Schreiner liefern kann. 😉Ging mir nicht nur darum. Es ist ein Unterschied ob eine Ebene oder bis zum Ende mit Krankenbett, Rollator etc geplant ist
haydee schrieb:
Ging mir nicht nur darum. Es ist ein Unterschied ob eine Ebene oder bis zum Ende mit Krankenbett, Rollator etc geplant istSchon klar. Schrieb ich doch indirekt.K
K a t j a24.06.22 08:19Außentreppen finde ich in unseren Breitengraden immer sehr bedenklich. Im Winter kann man da wunderbar runter schlittern und sich den Hals brechen. Das wäre für mich schon ein KO-Kriterium und deshalb ein Neustart zwingend.
Ähnliche Themen