ᐅ Einfamilienhaus ~180m² in der Stadt mit Blick auf Naturschutzgebiet
Erstellt am: 28.06.20 16:55
Z
ZylonHallo liebe Forenmitglieder,
nachdem wir das große Glück haben, auf einem wunderschönen Familiengrundstück nahe der Stadt und trotzdem im Grünen, mit Blick auf das Naturschutzgebiet bauen zu dürfen, stecken meine Freundin und ich mitten in der Planung unseres Einfamilienhaus.
Der Baubeginn ist für Frühjahr 2022 angedacht, die Angebotssondierung im 2. und 3. Quartal 2021.
Wir würden uns sehr über jegliche Tipps und Meinungen zu den angehängten Entwürfen freuen. Vielen Dank schon mal im Voraus.
(Die Bemaßung der angehängten Pläne ist vielleicht nicht optimal, ich bitte das zu verzeihen.)
Bebauungsplan/Einschränkungen:
Größe des Grundstücks: 850 m²
Hang: Nein (leicht abfallendes Gelände, noch nicht genau vermessen)
Grundflächenzahl: Kein Bebauungsplan
Geschossflächenzahl: Kein Bebauungsplan
Baufenster, Baulinie und -grenze: Kein Bebauungsplan (--> nach Landesbauordnung Bayern)
Randbebauung: Doppel-Garage mit 6 x 9 m geplant
Anzahl Stellplatz: 2 Fahrzeug-Stellplätze vor Garage + 2 Fahrzeug-Stellplätze in der Garage
Geschossigkeit: 2 Vollgeschosse
Dachform: Flachdach
Stilrichtung: Modern (angelehnt an Bauhaus-Stil )
Ausrichtung: Nord-Süd mit Eingang im Norden und Fensterfront im Süden
Maximale Höhen/Begrenzungen: Kein Bebauungsplan (Nachbargebäude Ost: 3 Vollgeschosse / West: 2 1/2 Vollgeschosse)
[U]Anforderungen der Bauherren[/U]
Stilrichtung, Dachform, Gebäudetyp: Modernes Einfamilienhaus in der Stadt mit Flachdach im Bauhausstil
Keller, Geschosse: 2 Vollgeschosse, ohne Keller (-->Kosteneinsparung)
Anzahl der Personen, Alter: 2 Personen (33 + 32) + 1-2 Kinder (in Arbeit )
Raumbedarf im EG, OG: ~180 m² über beide Etagen
Büro: Kombi aus Büro (20-40% Homeoffice), Gästezimmer und Elternschlafzimmer im Alter im EG
Schlafgäste pro Jahr: ca. 10-12
offene oder geschlossene Architektur: Mittelweg
konservativ oder moderne Bauweise: modern
offene Küche, Kochinsel: offene Küche zum Essbereich mit Tresen
Anzahl Essplätze: 6-8
Kamin: Nein
Musik/Stereowand: Ja
Balkon, Dachterrasse: Nein (--> Kosteneinsparung)
Garage, Carport: Massive Garage (Optional: Fertiggarage)
Hausentwurf
Von wem stammt die Planung: Eigene Planung mit Sweet Home 3D auf Basis Foreninfos und Gespräche mit anderen Bauherren
Was gefällt besonders? Warum?:
- Eingangsbereich mit Blick durch die Fensterfront im Wohnzimmer in den Garten
- vollständige Südausrichtung aller Wohn-/Schlafzimmer mit vielen Fenstern und Blick auf Naturschutzgebiet
- EG komplett altersgerecht gestaltet
- direkter Zugang zw. Garage und Haus
- fester Überdachung des Außensitzbereichs im EG durch das versetzte OG (somit keine Markise etc. notwendig, welche separat angebracht werden muss)
- alle Zimmer mit Wasseranschluss bzw. Technikraum an der Nordseite gelegen (kurze Leitungswege)
- offener Wohn-/Essbereich inkl. Küche in L-Form (keine direkte Sichtlinie zw. Küche und Wohnzimmer)
- im OG separater Eltern-Trakt mit eigenem Badezimmer, Ankleidebereich durch Wand/optische Trennung zum Schlafbereich abgetrennt
- Nutzung des Bereichs unter der Treppe zur Hälfte für Technikraum und zu Hälfe für Speis möglich
- sep. Waschbereich mit Waschmaschine, Trockner, Wäschekörben (optische Trennung) im OG/Kinderbad
- kl. Garderobe im EG kann zurückgebaut werden um bei Bedarf die Waschmaschine aus dem OG dort hinzustellen (Wasseranschluss hierfür vorgesehen)
- die Wand zw. den beiden Kinderzimmern wird erst nachträglich eingezogen, sodass man zunächst hier einen großen Raum mit ca. 31 m² (für ein Kind) hat
Was gefällt nicht? Warum?:
- momentan ist die Wohnfläche noch etwas über den geplanten 180 m² (was im Hinblick auf die Kostenkalkulation schlecht ist)
Preisschätzung lt. eigener Kalkulation: 400.000 € Haus (mit Fenstern + Bädern + Bodenbelägen + Elektrik), 40.000 € Garage, 30.000 € Küche, 20.000 € Außenanlagen (minimaler Aufwand (Rasen) mit Ausbau in den kommenden Jahrzenten), 20.000€ Nebenkosten (Erschließung, Notar, Bodengutachten, Anwalt, etc.)
Persönliches Preislimit fürs Haus, inkl Ausstattung: 550.000 €
favorisierte Heiztechnik: Gasbrennwerttherme + Solarthermie (Warmwasser)
Wenn Ihr verzichten müsst, auf welche Details/Ausbauten
-könnt Ihr verzichten: Leider fällt uns momentan nichts mehr ein, da wir bereits eine Vielzahl an ursprünglichen Wünschen/Vorstellungen in der Planungsphase aus Kostengründen gestrichen haben
Warum ist der Entwurf so geworden, wie er jetzt ist?
Die ungewöhnliche Architektur mit versetzten Kuben entstand auf Basis unserer Raumbedarfsplanung und passt gleichzeitig zu unserem favorisierten Stil für Wohnhäuser (Bauhaus-Stil angelehnt). Ettliche Anpassungen und Veränderungen innerhalb der letzten 6 Wochen mit Rücksprachen mit Freunden, Bauherren, Eltern etc.
Zusätzliche Fragen:
1. Wir würden gerne auf eigene Kosten vorab das Bodengutachten, die Rodungsarbeiten und die Vermessung durchführen um diese Unterlagen zusammen mit unserem Entwurf + einer groben Entwurfs-Baubeschreibung bei verschiedenen GU/GÜ für die Angebotserstellung einzureichen. Macht das Sinn? Was wäre das beste Vorgehen?
2. Das Grundstück kann aktuell nicht (sinnvoll) notariell übergeben werden (von meinen Eltern auf mich), da der Steuer-Freibetrag innerhalb der letzten 10 Jahre bereits ausgenutzt wurde. Könnte es diesbezüglich während des Baus zu Schwierigkeiten kommen bzw. schränkt es uns ggf. ein hinsichtlich Abstimmungsterminen, Grundschuldeintrag etc.?
3. Wo gibt es noch Optimierungspotenzial bei gewissen Zimmern/Flächen, auch um ggf. noch etwas Fläche einzusparen?
4. Uns ist bewusst, dass die kubisch versetzte Form zu größeren Außenflächen führt = höhere Heizkosten + mehr Dämmmaterial. Führt diese Form darüber hinaus zu zusätzlichen Kosten?







nachdem wir das große Glück haben, auf einem wunderschönen Familiengrundstück nahe der Stadt und trotzdem im Grünen, mit Blick auf das Naturschutzgebiet bauen zu dürfen, stecken meine Freundin und ich mitten in der Planung unseres Einfamilienhaus.
Der Baubeginn ist für Frühjahr 2022 angedacht, die Angebotssondierung im 2. und 3. Quartal 2021.
Wir würden uns sehr über jegliche Tipps und Meinungen zu den angehängten Entwürfen freuen. Vielen Dank schon mal im Voraus.
(Die Bemaßung der angehängten Pläne ist vielleicht nicht optimal, ich bitte das zu verzeihen.)
Bebauungsplan/Einschränkungen:
Größe des Grundstücks: 850 m²
Hang: Nein (leicht abfallendes Gelände, noch nicht genau vermessen)
Grundflächenzahl: Kein Bebauungsplan
Geschossflächenzahl: Kein Bebauungsplan
Baufenster, Baulinie und -grenze: Kein Bebauungsplan (--> nach Landesbauordnung Bayern)
Randbebauung: Doppel-Garage mit 6 x 9 m geplant
Anzahl Stellplatz: 2 Fahrzeug-Stellplätze vor Garage + 2 Fahrzeug-Stellplätze in der Garage
Geschossigkeit: 2 Vollgeschosse
Dachform: Flachdach
Stilrichtung: Modern (angelehnt an Bauhaus-Stil )
Ausrichtung: Nord-Süd mit Eingang im Norden und Fensterfront im Süden
Maximale Höhen/Begrenzungen: Kein Bebauungsplan (Nachbargebäude Ost: 3 Vollgeschosse / West: 2 1/2 Vollgeschosse)
[U]Anforderungen der Bauherren[/U]
Stilrichtung, Dachform, Gebäudetyp: Modernes Einfamilienhaus in der Stadt mit Flachdach im Bauhausstil
Keller, Geschosse: 2 Vollgeschosse, ohne Keller (-->Kosteneinsparung)
Anzahl der Personen, Alter: 2 Personen (33 + 32) + 1-2 Kinder (in Arbeit )
Raumbedarf im EG, OG: ~180 m² über beide Etagen
Büro: Kombi aus Büro (20-40% Homeoffice), Gästezimmer und Elternschlafzimmer im Alter im EG
Schlafgäste pro Jahr: ca. 10-12
offene oder geschlossene Architektur: Mittelweg
konservativ oder moderne Bauweise: modern
offene Küche, Kochinsel: offene Küche zum Essbereich mit Tresen
Anzahl Essplätze: 6-8
Kamin: Nein
Musik/Stereowand: Ja
Balkon, Dachterrasse: Nein (--> Kosteneinsparung)
Garage, Carport: Massive Garage (Optional: Fertiggarage)
Hausentwurf
Von wem stammt die Planung: Eigene Planung mit Sweet Home 3D auf Basis Foreninfos und Gespräche mit anderen Bauherren
Was gefällt besonders? Warum?:
- Eingangsbereich mit Blick durch die Fensterfront im Wohnzimmer in den Garten
- vollständige Südausrichtung aller Wohn-/Schlafzimmer mit vielen Fenstern und Blick auf Naturschutzgebiet
- EG komplett altersgerecht gestaltet
- direkter Zugang zw. Garage und Haus
- fester Überdachung des Außensitzbereichs im EG durch das versetzte OG (somit keine Markise etc. notwendig, welche separat angebracht werden muss)
- alle Zimmer mit Wasseranschluss bzw. Technikraum an der Nordseite gelegen (kurze Leitungswege)
- offener Wohn-/Essbereich inkl. Küche in L-Form (keine direkte Sichtlinie zw. Küche und Wohnzimmer)
- im OG separater Eltern-Trakt mit eigenem Badezimmer, Ankleidebereich durch Wand/optische Trennung zum Schlafbereich abgetrennt
- Nutzung des Bereichs unter der Treppe zur Hälfte für Technikraum und zu Hälfe für Speis möglich
- sep. Waschbereich mit Waschmaschine, Trockner, Wäschekörben (optische Trennung) im OG/Kinderbad
- kl. Garderobe im EG kann zurückgebaut werden um bei Bedarf die Waschmaschine aus dem OG dort hinzustellen (Wasseranschluss hierfür vorgesehen)
- die Wand zw. den beiden Kinderzimmern wird erst nachträglich eingezogen, sodass man zunächst hier einen großen Raum mit ca. 31 m² (für ein Kind) hat
Was gefällt nicht? Warum?:
- momentan ist die Wohnfläche noch etwas über den geplanten 180 m² (was im Hinblick auf die Kostenkalkulation schlecht ist)
Preisschätzung lt. eigener Kalkulation: 400.000 € Haus (mit Fenstern + Bädern + Bodenbelägen + Elektrik), 40.000 € Garage, 30.000 € Küche, 20.000 € Außenanlagen (minimaler Aufwand (Rasen) mit Ausbau in den kommenden Jahrzenten), 20.000€ Nebenkosten (Erschließung, Notar, Bodengutachten, Anwalt, etc.)
Persönliches Preislimit fürs Haus, inkl Ausstattung: 550.000 €
favorisierte Heiztechnik: Gasbrennwerttherme + Solarthermie (Warmwasser)
Wenn Ihr verzichten müsst, auf welche Details/Ausbauten
-könnt Ihr verzichten: Leider fällt uns momentan nichts mehr ein, da wir bereits eine Vielzahl an ursprünglichen Wünschen/Vorstellungen in der Planungsphase aus Kostengründen gestrichen haben
Warum ist der Entwurf so geworden, wie er jetzt ist?
Die ungewöhnliche Architektur mit versetzten Kuben entstand auf Basis unserer Raumbedarfsplanung und passt gleichzeitig zu unserem favorisierten Stil für Wohnhäuser (Bauhaus-Stil angelehnt). Ettliche Anpassungen und Veränderungen innerhalb der letzten 6 Wochen mit Rücksprachen mit Freunden, Bauherren, Eltern etc.
Zusätzliche Fragen:
1. Wir würden gerne auf eigene Kosten vorab das Bodengutachten, die Rodungsarbeiten und die Vermessung durchführen um diese Unterlagen zusammen mit unserem Entwurf + einer groben Entwurfs-Baubeschreibung bei verschiedenen GU/GÜ für die Angebotserstellung einzureichen. Macht das Sinn? Was wäre das beste Vorgehen?
2. Das Grundstück kann aktuell nicht (sinnvoll) notariell übergeben werden (von meinen Eltern auf mich), da der Steuer-Freibetrag innerhalb der letzten 10 Jahre bereits ausgenutzt wurde. Könnte es diesbezüglich während des Baus zu Schwierigkeiten kommen bzw. schränkt es uns ggf. ein hinsichtlich Abstimmungsterminen, Grundschuldeintrag etc.?
3. Wo gibt es noch Optimierungspotenzial bei gewissen Zimmern/Flächen, auch um ggf. noch etwas Fläche einzusparen?
4. Uns ist bewusst, dass die kubisch versetzte Form zu größeren Außenflächen führt = höhere Heizkosten + mehr Dämmmaterial. Führt diese Form darüber hinaus zu zusätzlichen Kosten?
P
Pinky030128.06.20 17:07Nur kurz zu Punkt 2: Wenn das Grundstück dir nicht gehört, wird dir auch das Haus darauf nicht gehören. Wem gehört das Grundstück denn jetzt? Mit Haus drauf ist es dann ja auch mehr wert, sodass es mit dem Freibetrag eventue wieder nichts wird?
P
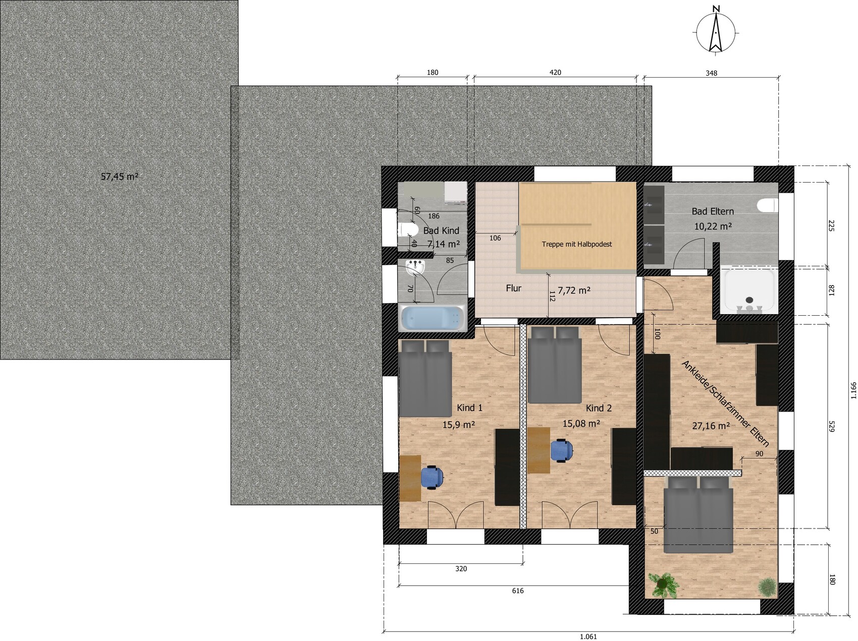
Pinky030128.06.20 17:15Jetzt zum Grundriss, einfach unsortiert was mir auf den ersten Blick auffällt:
- Die Speisekammer ist zu schmal.
- Um zu Küche oder Esstisch zu gelangen, muss man immer am Wohnzimmer vorbei. Das sieht im Grundriss mit den eingezeichnet en Möbeln zum einen zu eng aus, zum anderen hat man so auf dem Sofa keine Ruhe.
- 50cm neben dem Bett sind zu wenig.
- Ihr habt zwar Stauraum in der Garage eingeplant, aber das eignet sich wegen des Klimas nicht für alle Gegenstände.
- Der Eingangsbereich ist sehr/zu großzügig.
- Küchenplanung lässt sich noch optimieren, z. B. ist momentan keine Arbeitsfläche zwischen Spüle und Kochfeld. Sitzplätze am Kochfeld sind wegen Spritzern auch eher suboptimal.
- Die Speisekammer ist zu schmal.
- Um zu Küche oder Esstisch zu gelangen, muss man immer am Wohnzimmer vorbei. Das sieht im Grundriss mit den eingezeichnet en Möbeln zum einen zu eng aus, zum anderen hat man so auf dem Sofa keine Ruhe.
- 50cm neben dem Bett sind zu wenig.
- Ihr habt zwar Stauraum in der Garage eingeplant, aber das eignet sich wegen des Klimas nicht für alle Gegenstände.
- Der Eingangsbereich ist sehr/zu großzügig.
- Küchenplanung lässt sich noch optimieren, z. B. ist momentan keine Arbeitsfläche zwischen Spüle und Kochfeld. Sitzplätze am Kochfeld sind wegen Spritzern auch eher suboptimal.
Der Problematik bin ich mir bewusst. Das Grundstück gehört aktuell meinem Vater. Wir haben erst 2029 wieder die Möglichkeit die vollen 400.000€ Freibetrag für eine Schenkung anzusetzen. Aktuell wäre der Plan beim Grundschuldeintrag für die Bank noch eine Art Nießbrauch mit einzutragen. (D.h. solange ich oder meine Partnerin lebt dürfen wir auf dem Grundstück leben und es in unserem Sinne verwenden).
P
Pinky030128.06.20 17:17Aber das Haus kostet doch schon mehr als 400k und das Grundstück ist ja auch was wert. Wie soll dann 2029 übertragen werden?
Bei Nießbrauch kenne ich mich nicht aus, wie man das eintragen kann. Eventuell kann man so den Hauswert senken?
Bei Nießbrauch kenne ich mich nicht aus, wie man das eintragen kann. Eventuell kann man so den Hauswert senken?
Pinky0301 schrieb:
Jetzt zum Grundriss, einfach unsortiert was mir auf den ersten Blick auffällt:
- Die Speisekammer ist zu schmal.
- Um zu Küche oder Esstisch zu gelangen, muss man immer am Wohnzimmer vorbei. Das sieht im Grundriss mit den eingezeichnet en Möbeln zum einen zu eng aus, zum anderen hat man so auf dem Sofa keine Ruhe.
- 50cm neben dem Bett sind zu wenig.
- Ihr habt zwar Stauraum in der Garage eingeplant, aber das eignet sich wegen des Klimas nicht für alle Gegenstände.
- Der Eingangsbereich ist sehr/zu großzügig.
- Küchenplanung lässt sich noch optimieren, z. B. ist momentan keine Arbeitsfläche zwischen Spüle und Kochfeld. Sitzplätze am Kochfeld sind wegen Spritzern auch eher suboptimal. Danke für die Bewertung!
- Zwischen Speisekammer, Treppe und Technikraum haben wir lange hin und her geschoben. Leider können wir nicht noch mehr Raum schaffen ohne die Außenmaße und damit die Grundflächen wieder zu erweitern (= Kosten). Ziel ist die Fläche unter der Treppe noch sinnvoll zu nutzen.
- Bett wird nochmal verschoben auf 80 cm Durchgangsgröße.
- Die Grundfläche ist jetzt bereits "zu groß", zusätzliche Stauflächen werden daher schwierig.
- Spüle und Kochfeld planen wir nochmal um.
Ähnliche Themen