Frage zu Ausbau von Einfamilienhaus zu Zweifamilienhaus

4,50 Stern(e) 6 Votes
Zuletzt aktualisiert 14.10.2025
Sie befinden sich auf der Seite 2 der Diskussion zum Thema: Frage zu Ausbau von Einfamilienhaus zu Zweifamilienhaus
>> Zum 1. Beitrag <<

Pennraugion

Pennraugion

So ... die letzten Wochen war es ein wenig stressig.
Haben uns einige Angebote eingeholt (Bauträger, Installateur, Elektriker, Fenster, usw.)

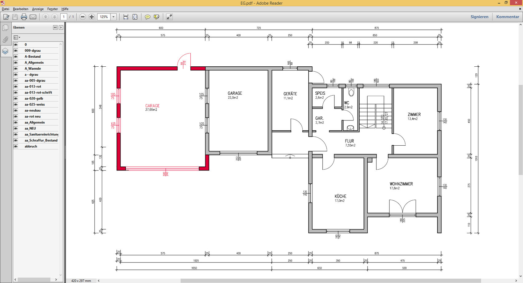
Angefügt habe ich einen Bildschirmabgriff von dem derzeit ungefähren Plan was wir haben wollen (rot = Neubau, weiß = Altbau)
Eingangsbereich wird von uns selber gemacht. Kommt nordseitig beim Stiegenhaus rein (Podest samt Treppe)
Dachboden des Neubaus soll mit dem alten verbunden und benutzbar sein.

Morgen haben wir noch einen Termin zwecks des Angebotes eines Bauträgers.
Danach werden wir uns relativ schnell entscheiden, mit wem wir bauen wollen.

Wir tendieren derzeit stark zu einem Holzmassivbau (nicht Riegel)


Derzeit sehen die Kosten ungefähr wie folgt aus

Elektriker 10k
Installateur 16k (samt Solar, neue Leitungen für den Altbereich sowie neuem Boiler)
2x Bad (Kernsanierung OG sowie neues "Bad" -hust- im EG statt Speis/tlw. Gard) 12k
Holzmassivbau mit Garage (Garage allerdings entweder mit Ziegel oder Holz), Dachstuhl und Bodenplatte ~ 100k
Fenster & Türen ~10k

Sind schon mal etwa 150k
Es fehlen noch diverse kleinere Nebenkosten sowie der Außen- und Innenputz, die Böden, eventuelle Sanierungen im OG, (Böden, Türrahmen und Türen), Baggerarbeiten, Pflaster für die Einfahrt, Grundstückerweiterung (~200 qm) usw. .

Allgemein ist das Haus ansonsten in einem sehr guten Zustand. (liegt an dem pensionierte Tischlermeister und passionierter Handwerker)
Fenster sind alle neu im Altbereich (2 Jahre alt), die Heizung ist 4 Jahre alt und auch ausgelegt für die Größe wie sie werden soll.


Da bin ich gespannt, welche Kosten da auf uns noch zukommen werden. :D
Irgendwie habe ich das Gefühl, dass wir unser selbst gestecktes Budget (~ 250k) wohl sogar überschreiten werden.

2D-Grundrissplan eines Wohnhauses mit Garage, Küche, Wohnzimmer und Flur


Grundrissplan eines Hauses mit Wohnbereich, Küche, Kinderzimmer und Schlafzimmer
 
Zuletzt aktualisiert 14.10.2025
Im Forum Bauplanung gibt es 5062 Themen mit insgesamt 100672 Beiträgen


Ähnliche Themen zu Frage zu Ausbau von Einfamilienhaus zu Zweifamilienhaus
Nr.ErgebnisBeiträge
1Fenster / Türen / Garderobe 13
2Fenster im Gäste-WC/Gästezimmer trotz Garage möglich? 33
3Haus ohne Garage und Keller? Ausbau Dachboden? Fresswarze? - Seite 585
4Tür Haus/Garage: Nebeneingangstür als Brandschutztür? 27
5Angebot Baukosten gerechtfertigt - gemauerte Garage 9x6 m 14
6Fenster Brüstungshöhe 130 im Schlafzimmer / Arbeitszimmer? - Seite 1593
7Sichere Fenster/Haustüre für Randlage - Seite 634
8Garage direkt an Einfamilienhaus. Fundament ausreichend? - Seite 220
9Hilfe bei der Anordnung der Fenster benötigt! 32
10Grundriss mit Garage auf Grundstück realisierbar? - Seite 229
11 Küchenplanung mit tiefen Fenster - Seite 643
12Welche Fenster und Türen empfehlenswert? 21
13Bau Garage auf Grenze geht lt. Architekt nicht. - Seite 211
14Grundriss Einfamilienhaus geplant, Fenster gefallen uns 43
15Grundriss Einfamilienhaus mit Garage, eigenplanung 17
16Grundstück - Baufenster - Lage von Haus und Garage - Seite 644
17Aufmusterung Elektro, Q2, Badfliesen, Drempel, bodentiefe Fenster - Seite 223
18Lage von Haus & Garage im Baufenster planen *Vorplanung* - Seite 15129
19Reedkontakt Alarmanlage Fenster. Wie habt ihr das gelöst? - Seite 212
20Mehrkosten falsch geplante Belüftungsanlage + Bodentiefe Fenster? - Seite 350

Oben