M
markusb8310.08.18 13:55Wir wollen ein Einfamilienhaus mit ca. 170 qm bauen. Wir wollen ohne Keller bauen. Das Grundstück hat Süd-West-Ausrichtung. Mit der bisherigen Ausrichtung der Räume sind wir soweit zu frieden.
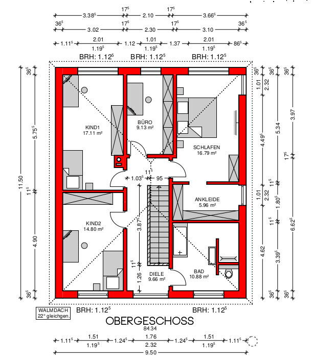
Ein wichtiges Zimmer im Haus wäre ein Arbeitszimmer.
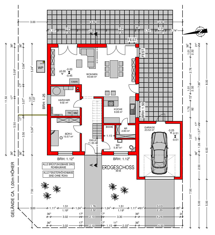
Ein Punkt in dem wir uns nicht sicher sind ist die Aufteilung des Wohn-/Esszimmers und der Küche. Sieht jemand eine Möglichkeit die Küche größer zu gestalten? Sie kommt uns in dieser Form etwas klein vor. Wir hatten schon versucht, das Wohnzimmer und die Küche zu tauschen, dann haben wir allerdings das gleiche Problem mit dem Wohnzimmer.
Im Obergeschoss finden wir, dass die beiden Kinderzimmer ziemlich groß ausgefallen sind. Gäbe es hier noch eine Möglichkeit die Fläche besser aufzuteilen und nutzen zu können.
Bebauungsplan/Einschränkungen
Größe des Grundstücks: 598qm
Hang: Grundstück fällt ca. 1,8 m Richtung Süden ab
Grundflächenzahl:
Geschossflächenzahl:
Baufenster, Baulinie und -grenze: 3m
Randbebauung:
Anzahl Stellplatz
Geschossigkeit: 2 Vollgeschosse
Dachform: -
Stilrichtung: -
Ausrichtung: -
Maximale Höhen/Begrenzungen: -
weitere Vorgaben:-
Anforderungen der Bauherren
Stilrichtung, Dachform, Gebäudetyp: Walmdach, Satteldach
Keller, Geschosse: kein Keller, 2 Vollgeschosse
Anzahl der Personen, Alter: 2 Personen, (2 Kinder)
Raumbedarf im EG, OG
Büro: Familiennutzung oder Homeoffice? Büro
Schlafgäste pro Jahr
offene oder geschlossene Architektur: offen
konservativ oder moderne Bauweise: modern
offene Küche, Kochinsel: offen mit Insel
Hausentwurf
Von wem stammt die Planung:
-Planer eines Bauunternehmens
Was gefällt besonders? Warum?: Abstellraum an Küche
Was gefällt nicht? Warum?: Küche
Preisschätzung lt Architekt/Planer:
Persönliches Preislimit fürs Haus, inkl Ausstattung:
favorisierte Heiztechnik: Wärmepumpe
Wenn Ihr verzichten müsst, auf welche Details/Ausbauten
-könnt Ihr verzichten:
-könnt Ihr nicht verzichten: Büro
Warum ist der Entwurf so geworden, wie er jetzt ist? ZB
Standardentwurf vom Planer? Standardentwurf + Ergänzungen unserer Seits
Was ist die wichtigste/grundlegende Frage zum Grundriss in 130 Zeichen zusammengefasst?
Bekommt man das Wohn-/Esszimmer und den Küchenbereich besser aufgeteilt? Ist die Lage des HAR dort sinnvoll?

Ein wichtiges Zimmer im Haus wäre ein Arbeitszimmer.
Ein Punkt in dem wir uns nicht sicher sind ist die Aufteilung des Wohn-/Esszimmers und der Küche. Sieht jemand eine Möglichkeit die Küche größer zu gestalten? Sie kommt uns in dieser Form etwas klein vor. Wir hatten schon versucht, das Wohnzimmer und die Küche zu tauschen, dann haben wir allerdings das gleiche Problem mit dem Wohnzimmer.
Im Obergeschoss finden wir, dass die beiden Kinderzimmer ziemlich groß ausgefallen sind. Gäbe es hier noch eine Möglichkeit die Fläche besser aufzuteilen und nutzen zu können.
Bebauungsplan/Einschränkungen
Größe des Grundstücks: 598qm
Hang: Grundstück fällt ca. 1,8 m Richtung Süden ab
Grundflächenzahl:
Geschossflächenzahl:
Baufenster, Baulinie und -grenze: 3m
Randbebauung:
Anzahl Stellplatz
Geschossigkeit: 2 Vollgeschosse
Dachform: -
Stilrichtung: -
Ausrichtung: -
Maximale Höhen/Begrenzungen: -
weitere Vorgaben:-
Anforderungen der Bauherren
Stilrichtung, Dachform, Gebäudetyp: Walmdach, Satteldach
Keller, Geschosse: kein Keller, 2 Vollgeschosse
Anzahl der Personen, Alter: 2 Personen, (2 Kinder)
Raumbedarf im EG, OG
Büro: Familiennutzung oder Homeoffice? Büro
Schlafgäste pro Jahr
offene oder geschlossene Architektur: offen
konservativ oder moderne Bauweise: modern
offene Küche, Kochinsel: offen mit Insel
Hausentwurf
Von wem stammt die Planung:
-Planer eines Bauunternehmens
Was gefällt besonders? Warum?: Abstellraum an Küche
Was gefällt nicht? Warum?: Küche
Preisschätzung lt Architekt/Planer:
Persönliches Preislimit fürs Haus, inkl Ausstattung:
favorisierte Heiztechnik: Wärmepumpe
Wenn Ihr verzichten müsst, auf welche Details/Ausbauten
-könnt Ihr verzichten:
-könnt Ihr nicht verzichten: Büro
Warum ist der Entwurf so geworden, wie er jetzt ist? ZB
Standardentwurf vom Planer? Standardentwurf + Ergänzungen unserer Seits
Was ist die wichtigste/grundlegende Frage zum Grundriss in 130 Zeichen zusammengefasst?
Bekommt man das Wohn-/Esszimmer und den Küchenbereich besser aufgeteilt? Ist die Lage des HAR dort sinnvoll?
Hmm ..
2 Büros?
Wie soll Haus auf das abfallende Grundstück? Im Süden aufschütten?
Wie fügt sich das Grundstück in der Umgebung ein? Eckgrundstück? Sinnvoll wäre Lageplan.
Die für den Sommer schöne West/Südwestseite ist hier schlecht nutzbar.
Insbesondere Kind 1 könnte aufgrund der Tiefe von fast 6m ein recht dunkles Zimmer werden. Generell würde ich die Kinderzimmer eher im Süden anordnen.
2 Büros?
Wie soll Haus auf das abfallende Grundstück? Im Süden aufschütten?
Wie fügt sich das Grundstück in der Umgebung ein? Eckgrundstück? Sinnvoll wäre Lageplan.
Die für den Sommer schöne West/Südwestseite ist hier schlecht nutzbar.
Insbesondere Kind 1 könnte aufgrund der Tiefe von fast 6m ein recht dunkles Zimmer werden. Generell würde ich die Kinderzimmer eher im Süden anordnen.
Du wirst sicher noch "fundiertere" Antworten bekommen....aber so auf den ersten Blick, ein paar Fragen/Anmerkungen:
Gibt es ein Grund dass der Technikraum dort ist? Ich würde tendenziell Technik und Büro Tauschen.
Mir würde auch die Position des sofas nicht gefallen. Kann der Kamin auch an die Außenwand zwischen Wohzi und Esszimmer? Dann das Wohnzimmer einfach drehen?
Was meinst Du mit im OG die Fläche besser nutzen? Wenn Du der Meinung bist die Kinderzimmer sind zu groß...wo hättest denn gerne mehr?
Das Haus hat auf der Nordseite ein kleines Fenster? Seh ich das richtig? Sieht von außen bestimmt witzig aus ;-)
Gibt's nen Spitzboden? Wenn die Garage für das Auto sein soll, erscheint mir das sehr wenig Abstellraum etc.
Gibt es ein Grund dass der Technikraum dort ist? Ich würde tendenziell Technik und Büro Tauschen.
Mir würde auch die Position des sofas nicht gefallen. Kann der Kamin auch an die Außenwand zwischen Wohzi und Esszimmer? Dann das Wohnzimmer einfach drehen?
Was meinst Du mit im OG die Fläche besser nutzen? Wenn Du der Meinung bist die Kinderzimmer sind zu groß...wo hättest denn gerne mehr?
Das Haus hat auf der Nordseite ein kleines Fenster? Seh ich das richtig? Sieht von außen bestimmt witzig aus ;-)
Gibt's nen Spitzboden? Wenn die Garage für das Auto sein soll, erscheint mir das sehr wenig Abstellraum etc.
Ich hätte die Kinderzimmer weitgehend quadratisch oben angesiedelt, das Büro aufgeteilt zu den beiden Zimmern. Das Schlafzimmer mit Ankleide dann links unten und zwischen dem einen Kinderzimmer und Bad das Büro.
14 qm empfinde ich als Kinderzimmer schön, weniger geht, aber macht dann eine kreative Möblierung notwendig.
Die Küche kann so funktionieren, aber ich würde dann auf eine Kochinsel verzichten. Lieber eine U-Küche und später, wenn man merkt dass der Platz reicht, noch eine kleine Theke dazu.
Büro und Technikraum im EG hätte ich auch getauscht.
Müssen es wirklich 2 Büros sein oder soll das untere eher ein Gästezimmer werden?
14 qm empfinde ich als Kinderzimmer schön, weniger geht, aber macht dann eine kreative Möblierung notwendig.
Die Küche kann so funktionieren, aber ich würde dann auf eine Kochinsel verzichten. Lieber eine U-Küche und später, wenn man merkt dass der Platz reicht, noch eine kleine Theke dazu.
Büro und Technikraum im EG hätte ich auch getauscht.
Müssen es wirklich 2 Büros sein oder soll das untere eher ein Gästezimmer werden?
Das WZ hat 3,68 Breite... die meisten Sofas (man denke an einen Neukauf) haben ü 3 Meter in der Breite. Zwar mag die Küche gerade mal so in der Breite funktionieren, aber der Allraum insgesamt hat zwei schmale Flügel, in der Mitte fürs Essen den Hauptbereich. Ich finde die Flügel nicht gelungen, somit auch nicht den Allraum gesamt. Alle Wege führen am Sofa vorbei, sogar der Paketbote am Abend darf einen Blick drauf erhaschen. Dafür ist der Weg zur Speis mit den Einkäufen sehr lang... Eingangstür - Flur - Sofa - Esstisch - Küche - endlich Speis!
Für Verbesserungen ist definitiv mal der Lageplan wichtig.
Warum ist das Haus so geplant, wie es ist?
Kein Keller bzw UG trotz 1,80 Hang?????
Für Verbesserungen ist definitiv mal der Lageplan wichtig.
Warum ist das Haus so geplant, wie es ist?
Kein Keller bzw UG trotz 1,80 Hang?????
markusb83 schrieb:Ich sehe eine SO-Ausrichtung... und zukünflich eine überflutete Garage
Das Grundstück hat Süd-West-Ausrichtung.
Kann mich alldem nur anschliessen.. insgesamt sieht es alles nicht durchdacht aus. Ergänzend zu den genannten Punkten:
- Kinderzimmer zu groß? Finde ich nicht. Aber schlecht geschnitten und Richtung Norden unbedingt tauschen und nach Süd Westen, so einen dunklen Schlauch wie jetzt will da doch keiner
- Abstellkammer an Küche ist unpraktisch und nimmt einem die Möglichkeit einer wirklich schön angepassten Küche. Dazu ist es unpraktisch, lieber mehr Stauraum in direkter griffnähe
- T im Badezimmer OG.. kontrovers diskutiert, ich finde es nicht schön
- Schlafzimmer in Relation zu den Kinderzimmer zu groß
- Bad im Obergeschoss sehr unpraktisch zu erreichen... einmal um die Treppe rum, Maximaler weg vom Schlafzimmer, sehe ich auch als unpraktisch an
- So eine kleine Kochinsel ist für Fernsehköche gut, so wie geplant bei euch total unpraktisch. Wer will denn da dran sitzen wenn parallel gebraten wird? Lies hier im Forum zum Thema Kochinsel vs. Arbeits- bzw. Spülinsel
- Kinderzimmer zu groß? Finde ich nicht. Aber schlecht geschnitten und Richtung Norden unbedingt tauschen und nach Süd Westen, so einen dunklen Schlauch wie jetzt will da doch keiner
- Abstellkammer an Küche ist unpraktisch und nimmt einem die Möglichkeit einer wirklich schön angepassten Küche. Dazu ist es unpraktisch, lieber mehr Stauraum in direkter griffnähe
- T im Badezimmer OG.. kontrovers diskutiert, ich finde es nicht schön
- Schlafzimmer in Relation zu den Kinderzimmer zu groß
- Bad im Obergeschoss sehr unpraktisch zu erreichen... einmal um die Treppe rum, Maximaler weg vom Schlafzimmer, sehe ich auch als unpraktisch an
- So eine kleine Kochinsel ist für Fernsehköche gut, so wie geplant bei euch total unpraktisch. Wer will denn da dran sitzen wenn parallel gebraten wird? Lies hier im Forum zum Thema Kochinsel vs. Arbeits- bzw. Spülinsel
Ähnliche Themen