Eure Ideen und Anregungen / Verbesserungen zu unserer Doppelhaushälfte

4,70 Stern(e) 3 Votes
Zuletzt aktualisiert 22.11.2025
Sie befinden sich auf der Seite 3 der Diskussion zum Thema: Eure Ideen und Anregungen / Verbesserungen zu unserer Doppelhaushälfte
>> Zum 1. Beitrag <<

Y

ypg

Mal doch einfach! Du wirst sehen, dass Du Deine Ideen nicht so umsetzen kannst, weil: Mauern nehmen Platz... oder willst Du Räume, in denen Du Dich nicht drehen kannst??? Warum leuchtet es Dir nicht ein? Treppe wurde ja auch schon erwähnt...
 
M

marv45

Mit Verlaub, ich gebe ypg Recht. Das müßte wirklich maßstabsgetreu gezeichnet werden, mit Millimeterpapier. Die Innentüren sind nur kleine Widerhaken im Vergleich zur Eingangstür und wenn der Essplatz ca. 3 m breit ist, bleiben noch ca. 3,5 m für das Wohnzimmer. Da hätten die ganzen Möbel in dieser Form nicht annähernd so viel Raum.
Ein so offener Grundriss ist Geschmacksache, aber wenigstens eine Windfangtür ist zweckmäßig, damit im Winter nicht gleich die ganze Bude kalt wird, wenn einer ins Haus kommt. Die Treppe ist so keine....
Als ganz grobe Skizze ok, aber mehr auch nicht.
 
B

Bauexperte

Hallo,

@Bauexperte. Danke wie immer. Ich hatte in älteren Beiträgen deine Tipps gelesen und dachte mir, Fragen kostet ja nichts :) Ich bin zudem für Anregungen stets dankbar, warum kann man hier nur verlieren? Ich will ja niemanden davon überzeugen, wie toll unsere Idee ist, sondern einfach über den Austausch an Kleinigkeiten feilen. :rolleyes:
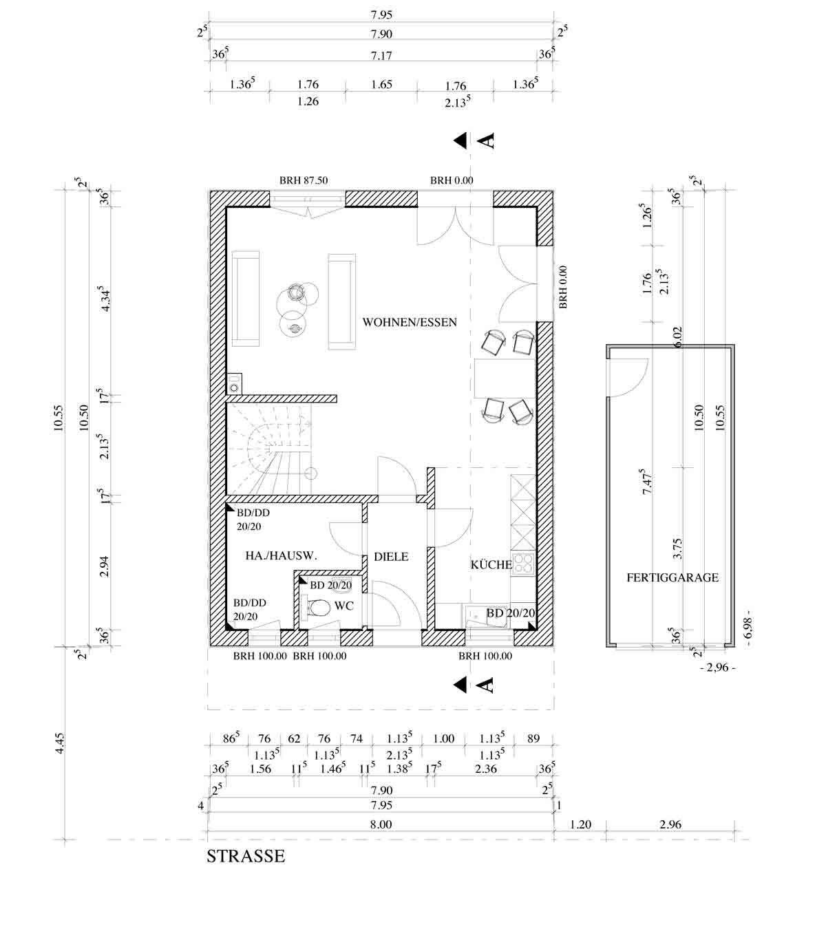
Es geht weniger darum, ob Du Jemanden überzeugen möchtest. Vielmehr darum, daß einer - in diesem Fall wieder mal ich - den Buhmann geben muß. Ich habe Dir ein EG 8.00 m x 10.50 m angehängt; daraus kannst Du schon erkennen, daß Deine Ideen im Eingang nicht funktionieren. Selbst hier ist der Hauswirtschaftsraum eigentlich zu klein - ich weiß, was heute Alles darin untergebracht ist; es war echt eine Zentimeterleistung. Und diese Doppelhaushälfte ist für 2 Personen geplant; kommen auch keine weiteren hinzu :)

Wenn Du Deinen Wunschgrundriss umsetzen möchtest, mußt Du Minimum auf 11.00 m Breite gehen.

Ich weiß leider nicht was ich unter dem Unterzug verstehen kann.
Irgendwo muß ja das Gewicht des DG abgefangen werden; das ist ziemlich schwierig, wenn im EG keine Wand steht. Daher muß ein Träger - sichtbar oder auch unsichtbar - verbaut werden, die Last des DG abzufangen. Wird Dir der Statiker schon noch sagen :)

Grüße, Bauexperte

Detaillierter Hausgrundriss mit Wohnzimmer, Küche, Diele und Bad
 
Zuletzt bearbeitet:
Jaydee

Jaydee

Hallo ypg. Ich verstehs nicht. Was wird nicht funktionieren? Meinst du das wir zu viele Innenwände haben werden? Gruß
Die Anzahl der Innenwände ist es nicht, sondern die Dicke der Innenwände. Die Speis hast Du 1 * 2 m geplant. Du musst davon allerdings mindestens 30 cm (2 * 15 cm) an jeder Seite abziehen. Dann hast Du nicht mehr 2qm Speis, sondern nur 1,19 qm! Das ist ein gewaltiger Unterschied und funktioniert so nicht.

Auch mal eben 50 cm größer zeichnen, weil es "so ungefähr" hinkommt, ist nicht. Die Räume werden durch die Wände schmaler. Ist einfach so.
 
Y

ypg

Mal für denjenigen, der sich ohne Hintergrundwissen (Statik) und Basis einen Grundriss malt:

40cm Außenmauer
60cm Küchenzeile
120cm Arbeitsraum
100cm Tiefe Tresenecke
120cm Durchgang
15cm Mauer
100cm Raum (Garderobe,Speis)
15cm Mauer
160cm Flur
15cm Mauer
130cm WC
15cm Mauer
150cm Breite Hauswirtschaftsraum-Nische
40cm Außenmauer

= 10,80 Meter Breite für die Hausfront

.. so wie es Bauexperte und Jaydee schon geschrieben haben...
 
A

Alex80

@ Bauexperte und ypg und andere. stark. danke. Diese Skizze war ja grob, mit irgendwas muss ich ja starten. Aber nun nähern wir uns durch eure Beiträge den richtigen Raum/Hausgrößen an. D.h. für uns eig. die Planung nochmal überdenken. evtl. seitlicher Eingang...

Wir werden "nur" ungefähr 8x11 m bauen können,wenn ich bei den bevorzugten Räumen bleibe wirds eng, ist mir nun klar. Ideen wie ich es anders lösen kann? :confused:
 
Zuletzt aktualisiert 22.11.2025
Im Forum Grundrissplanung / Grundstücksplanung gibt es 2535 Themen mit insgesamt 87982 Beiträgen


Ähnliche Themen zu Eure Ideen und Anregungen / Verbesserungen zu unserer Doppelhaushälfte
Nr.ErgebnisBeiträge
1Eure Meinung zum Grundriss für das EG - Seite 228
2Grundriss EG + OG für Doppelhaushälfte 29
3Grundriss, Einfamilienhaus, 1,5 Stock, Massivhaus. Ideen und Kommentare. 17
4Grundriss Erstskizze - Verbesserungswürdig? - Seite 542
5Grundriss Stadtvilla 155qm - eure Meinung ist gefragt - Seite 247
6Grundriss Familienhaus in Randlage mit freien Sicht - Seite 22153
7Treppe im Flur, Grundriss steht eigentlich schon :o( 20
8 2 Vollgeschosse, Durchgang Garage, Hauswirtschaftsraum unter Treppe 25
9Frage zu Grundriss, insbesondere Treppe 13
10Treppe Grundriss Planung, Auftritt und Unterzug 21
11Wie findet ihr diesen Grundriss? - Seite 211
12Unser Grundriss von 120qm auf 469qm Grundstück - Seite 1273
13Eure Meinungen zu unserem Grundriss und Angebot - Seite 322
14Grundriss Einfamilienhaus Stadtvilla 37
15Vorplanung mit dem Architekten - eigener Grundriss sinnvoll? 18
16Grundriss Einfamilienhaus. Bitte um Feedback bzw Ideen :-) - Seite 325
17Grundriss Stadtvilla / Feedback Statik, Anordnung - Seite 228
18Meinungen f. Grundriss Einfamilienhaus ca. 160qm - Seite 429
19Feedback zu Grundriss Einfamilienhaus erwünscht 18
20Ideenfindung für Grundriss 120m2 Einfamilienhaus 12

Oben