Hallo,
ich würde mal gerne Eure Meinung zu einem ersten Entwurf (Skizze) hören, den wir gestern von einer unserer präferierten Baufirma bekommen haben.
Grundstück: 835m², Satteldach 35-45°, etwas abschüssig
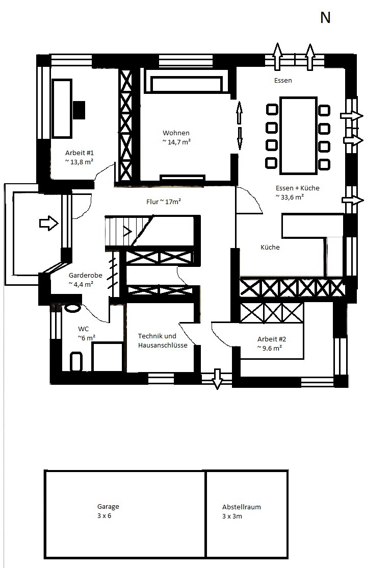
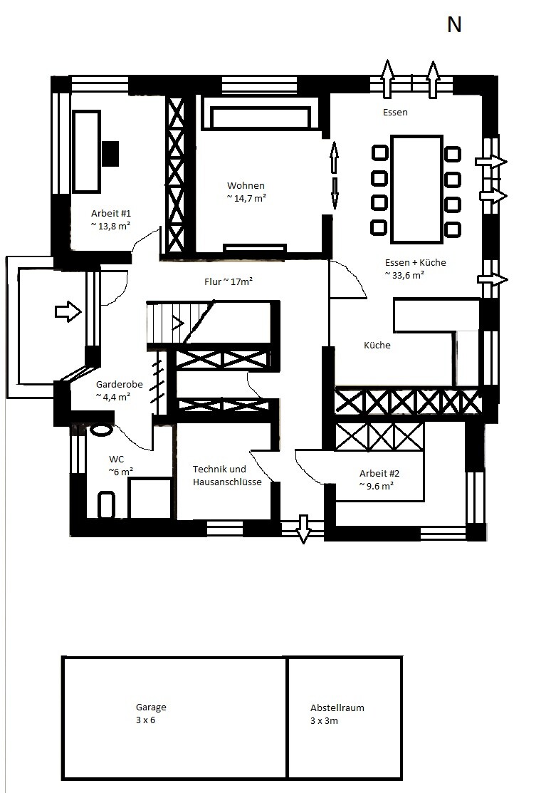
Beim Entwurf handelt es sich um Satteldach mit 35° Neigung. Nach Süden ist es langgezogen, um möglichst viel Platz für Solar zu haben. Dachflächenfenster wollten wir nicht.
Wie möchten mit 4 Personen (aktuell 2) darin leben und durch unsere Jobs auch mehr oder weniger regelmäßig arbeiten - daher 2 AZ + 2 KZ.
Wir wollten extra ein separiertes Wohnzimmer und den Lebensmittelpunkt eher in die Küche / Essbereich legen. Zwischen Wohnen und Essen ist eine Schiebetür. Zwischen Flur und Essen ein (wie auch immer geartetes) Glas / Türen-Element.
Würde mich über ein erstes Feedback freuen - leider habe ich aufgrund des "Skizzen-Charakters" keine genauen Maße.
Gruß
Markus

ich würde mal gerne Eure Meinung zu einem ersten Entwurf (Skizze) hören, den wir gestern von einer unserer präferierten Baufirma bekommen haben.
Grundstück: 835m², Satteldach 35-45°, etwas abschüssig
Beim Entwurf handelt es sich um Satteldach mit 35° Neigung. Nach Süden ist es langgezogen, um möglichst viel Platz für Solar zu haben. Dachflächenfenster wollten wir nicht.
Wie möchten mit 4 Personen (aktuell 2) darin leben und durch unsere Jobs auch mehr oder weniger regelmäßig arbeiten - daher 2 AZ + 2 KZ.
Wir wollten extra ein separiertes Wohnzimmer und den Lebensmittelpunkt eher in die Küche / Essbereich legen. Zwischen Wohnen und Essen ist eine Schiebetür. Zwischen Flur und Essen ein (wie auch immer geartetes) Glas / Türen-Element.
Würde mich über ein erstes Feedback freuen - leider habe ich aufgrund des "Skizzen-Charakters" keine genauen Maße.
Gruß
Markus
M
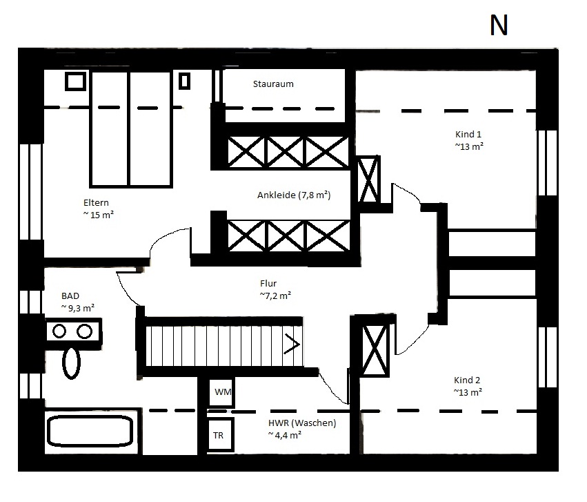
Musketier08.07.15 10:11Wie hoch ist der Kniestock?
Trockner und Badewanne unter der Schräge
Für was ist der kaum begehbare Stauraum im OG unter der Dachschräge?
Warum verschenkt ihr den Platz bei Kind1?
Warum ist der südliche Teil des EG so zurückgesetzt?
ich glaub die Wohnzimmertür sieht blöd aus, wenn die Tür zur Glasteilseite aufschwingt.
Keine Dusche im Bad?
Außenansichten wären sinnvoll.
Trockner und Badewanne unter der Schräge
Für was ist der kaum begehbare Stauraum im OG unter der Dachschräge?
Warum verschenkt ihr den Platz bei Kind1?
Warum ist der südliche Teil des EG so zurückgesetzt?
ich glaub die Wohnzimmertür sieht blöd aus, wenn die Tür zur Glasteilseite aufschwingt.
Keine Dusche im Bad?
Außenansichten wären sinnvoll.
Ohne genaue Maße ist eine tatsächliche Beurteilung schwierig.
Aber, ich finde es viel zu verwinkelt, insbesondere im EG.
Der Weg von "Arbeit 2" zur Toilette z.B. ist nicht akzeptabel. Und wofür genau wollt ihr das Wohnzimmer nutzen ? Bevor ihr einen separaten Raum dieser Größe einplant, solltet ihr den unbedingt mal halbwegs realistisch möblieren. Dann sieht man, ob die Separierung überhaupt Sinn macht.
Die Möblierung des Bades im OG ist vorsichtig ausgedrückt interessant. Und dann die Badewanne direkt unter der Schräge...ich weiß ja nicht, wie groß ihr seid, aber so etwas plant man an sich nicht bei einem normalen Kniestock.
Die Kinderzimmer sind zwar nicht so klein, ich halte sie aber aufgrund der Knicke einigermaßen schwer möblierbar.
Also ich würde diesen Grundriss in die Rundablage tun und von vorne beginnen. Überlegt euch mal, ob ihr nicht einen von der Baufirma unabhängigen Architekten zu Rate zieht. Natürlich kostet der Geld, aber dafür muss man sich später nicht jahrelang ärgern, wenn etwas nicht "passt". Außerdem kann der einem Tipps geben, auf die man selber nicht kommt und die einem die Baufirma aus eigennützigen Gründen nicht geben wird...und so oft baut man nicht im Leben. 🙂
Aber, ich finde es viel zu verwinkelt, insbesondere im EG.
Der Weg von "Arbeit 2" zur Toilette z.B. ist nicht akzeptabel. Und wofür genau wollt ihr das Wohnzimmer nutzen ? Bevor ihr einen separaten Raum dieser Größe einplant, solltet ihr den unbedingt mal halbwegs realistisch möblieren. Dann sieht man, ob die Separierung überhaupt Sinn macht.
Die Möblierung des Bades im OG ist vorsichtig ausgedrückt interessant. Und dann die Badewanne direkt unter der Schräge...ich weiß ja nicht, wie groß ihr seid, aber so etwas plant man an sich nicht bei einem normalen Kniestock.
Die Kinderzimmer sind zwar nicht so klein, ich halte sie aber aufgrund der Knicke einigermaßen schwer möblierbar.
Also ich würde diesen Grundriss in die Rundablage tun und von vorne beginnen. Überlegt euch mal, ob ihr nicht einen von der Baufirma unabhängigen Architekten zu Rate zieht. Natürlich kostet der Geld, aber dafür muss man sich später nicht jahrelang ärgern, wenn etwas nicht "passt". Außerdem kann der einem Tipps geben, auf die man selber nicht kommt und die einem die Baufirma aus eigennützigen Gründen nicht geben wird...und so oft baut man nicht im Leben. 🙂
M
Musketier08.07.15 11:42marv45 schrieb:
Der Weg von "Arbeit 2" zur Toilette z.B. ist nicht akzeptabel.Auf Arbeit hab ich die Toilette auch nicht direkt neben dem Arbeitsplatz. Das wäre für mich kein K.O. Kriterium. Für die Gesundheit wäre es sogar das Beste den Drucker in der Nische der Garderobe zu installieren.;)
Ähnliche Themen