
11ant
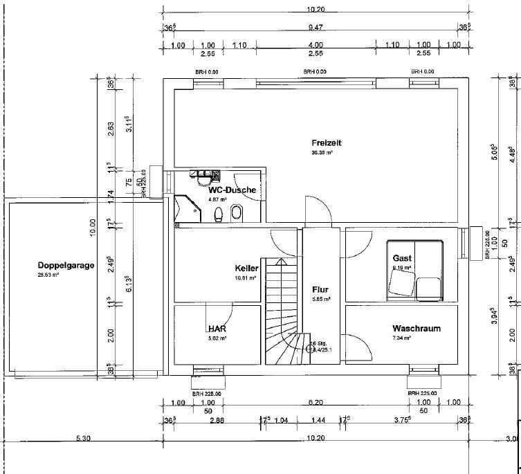
Die Garage - die im ersten Entwurf noch nicht erkennbar war - schaut wenn ich mich nicht verschätze an ihrer Rückseite wenigstens Einsachtzig aus der Erde. Das schreit nach Unterkellerung, und die wiederum nach Nutzung.Wenn man die Garage sinnvoll plant, kann der Raum darunter z.T. als Abstellraum / Gartengeräte / Wintereinlagerung Gartenmöbel etc. genutzt werden und zum anderen Teil als überdachter & geschützter Sitzplatz.
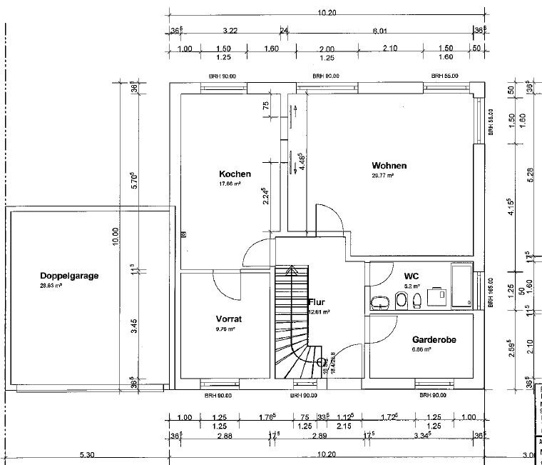
Was ich gestern über den Weg zum Servieren im Wohnbereich sagte, potenziert sich natürlich unter dem Vorzeichen, im Garten zu essen.
Ich würde (und so wie ich die Meinungen hier wahrnehme, bei weitem nicht allein) das Raumprogramm komplett reengineeren: diese Hanglage paßt einfach nicht für die Denkweise "Erd"Geschoss und "Unter"Geschoss. 66 qm Wohnzimmer mit der Küche auf der Ebene des 31 qm Winterwohnzimmers im Eingangsgeschoss sind grober Unfug, den man im Sommerwohnzimmer (das mit 35 qm, oder 42 wenn man sich das Bad da unten wegdenkt, für eine ganzjährige Nutzung groß genug ist) stets beheulen wird. Macht da "oben" Kinderzimmer und ein Kinderbad.
Der Schlüssel zur glücklichen Raumaufteilung heißt hier: "Gehirnwäsche". Weg mit den hier nicht passenden Stockwerksbezeichnungen, und dann das Raumprogramm neu verteilt: auf Gartengeschoss, Eingangsgeschoss und Dachgeschoss. Dann findet man auch vernünftige Anordnungen für Wohnen - Essen - Kochen - Wirtschaften. Legt die Bäder übereinander, vielleicht mit Wäscheabwurfschacht in den Hauswirtschaftsraum.