ᐅ Feedback zu Einfamilienhaus Grundriss 200 m² Stadtvilla mit Walmdach o
Erstellt am: 28.12.18 15:03
S
Seb0907Hallo zusammen,
ich bin aktuell intensiv am Planen unseres Einfamilienhaus vom Typ Stadtvilla mit Baubeginn im nächsten Frühjahr/Sommer. Um hier nicht in Planungsblindheit zu verfallen - falls nicht schon geschehen, würde ich mich sehr über eure Meinung zum aktuellen Stand und die ein oder andere Anregung freuen. Dazu habe ich mal den Grundriss mit einer Visualisierung angehängt und möchte mich schon mal vorab für euer Feedback bedanken!
Bebauungsplan/Einschränkungen
- Größe des Grundstücks: 660 m²
- Hang: Nein
- Grundflächenzahl / Geschossflächenzahl: 0,35 / 0,7
- Baufenster, Baulinie und -grenze: Siehe Plan
- Randbebauung: Möglich (Grenzgarage)
- Anzahl Stellplatz: Min. 2
- Geschossigkeit: Max. 2
- Dachform: 0 – 45°
- Stilrichtung: Keine Vorgabe
- Ausrichtung: Keine Vorgabe
- Maximale Höhen/Begrenzungen: 7 m
- weitere Vorgaben: Keine
Anforderungen der Bauherren
- Stilrichtung, Dachform, Gebäudetyp: Stadtvilla mit Walmdach (18°)
- Keller, Geschosse: Kein Keller, zwei Vollgeschosse
- Anzahl der Personen, Alter 2 (33/30)
- Raumbedarf im EG, OG Ca. 100 m²
- Büro: Familiennutzung oder Homeoffice? Familiennutzung u. teilweise Homeoffice, daher die Größe..
- Schlafgäste pro Jahr: 1 - 4
- offene oder geschlossene Architektur: Offen
- konservativ oder moderne Bauweise: Modern
- offene Küche, Kochinsel: Offene Küche, Koch- bzw. Halbkochinsel
- Anzahl Essplätze: 2 - 6
- Kamin: Ja
- Musik/Stereowand: Nein
- Balkon, Dachterrasse: Nein
- Garage, Carport: Doppelgarage
- Nutzgarten, Treibhaus: Nein
Hausentwurf
- Von wem stammt die Planung: Eigene Planung
- Was gefällt besonders? Warum? Siehe unten
- Was gefällt nicht? Warum? Siehe unten
- Preisschätzung lt Architekt/Planer: 415 T€ ohne Grundstück
- favorisierte Heiztechnik: Wärmepumpe mit Lüftungsanlage
Wenn Ihr verzichten müsst, auf welche Details/Ausbauten
- könnt Ihr verzichten: Diverse Raumgrößen / Anordnung..
- könnt Ihr nicht verzichten: Trifft eigentlich fast Liste „was gefällt mir“
Warum ist der Entwurf so geworden, wie er jetzt ist?
Persönlicher Geschmack (Stadtvilla, offene Bauweise), Grundstücksvorgabe (Ausrichtung und Positionierung, sonstige Tipps von Außen (Schränke etc. vorsehen..)
Was gefällt mir:
Was ist die wichtigste/grundlegende Frage zum Grundriss in 130 Zeichen zusammengefasst?
Mir geht es erst einmal um eure Einschätzung/Feedback zum Grundriss, ich freue mich gerne über konstruktive Punkte/Anregungen oder Ideen die mir vielleicht aufgrund meiner „Planungsblindheit“ gar nicht auffallen und dann auch mal um Feedback zu den Punkten die mir nicht so gefallen..




ich bin aktuell intensiv am Planen unseres Einfamilienhaus vom Typ Stadtvilla mit Baubeginn im nächsten Frühjahr/Sommer. Um hier nicht in Planungsblindheit zu verfallen - falls nicht schon geschehen, würde ich mich sehr über eure Meinung zum aktuellen Stand und die ein oder andere Anregung freuen. Dazu habe ich mal den Grundriss mit einer Visualisierung angehängt und möchte mich schon mal vorab für euer Feedback bedanken!
Bebauungsplan/Einschränkungen
- Größe des Grundstücks: 660 m²
- Hang: Nein
- Grundflächenzahl / Geschossflächenzahl: 0,35 / 0,7
- Baufenster, Baulinie und -grenze: Siehe Plan
- Randbebauung: Möglich (Grenzgarage)
- Anzahl Stellplatz: Min. 2
- Geschossigkeit: Max. 2
- Dachform: 0 – 45°
- Stilrichtung: Keine Vorgabe
- Ausrichtung: Keine Vorgabe
- Maximale Höhen/Begrenzungen: 7 m
- weitere Vorgaben: Keine
Anforderungen der Bauherren
- Stilrichtung, Dachform, Gebäudetyp: Stadtvilla mit Walmdach (18°)
- Keller, Geschosse: Kein Keller, zwei Vollgeschosse
- Anzahl der Personen, Alter 2 (33/30)
- Raumbedarf im EG, OG Ca. 100 m²
- Büro: Familiennutzung oder Homeoffice? Familiennutzung u. teilweise Homeoffice, daher die Größe..
- Schlafgäste pro Jahr: 1 - 4
- offene oder geschlossene Architektur: Offen
- konservativ oder moderne Bauweise: Modern
- offene Küche, Kochinsel: Offene Küche, Koch- bzw. Halbkochinsel
- Anzahl Essplätze: 2 - 6
- Kamin: Ja
- Musik/Stereowand: Nein
- Balkon, Dachterrasse: Nein
- Garage, Carport: Doppelgarage
- Nutzgarten, Treibhaus: Nein
Hausentwurf
- Von wem stammt die Planung: Eigene Planung
- Was gefällt besonders? Warum? Siehe unten
- Was gefällt nicht? Warum? Siehe unten
- Preisschätzung lt Architekt/Planer: 415 T€ ohne Grundstück
- favorisierte Heiztechnik: Wärmepumpe mit Lüftungsanlage
Wenn Ihr verzichten müsst, auf welche Details/Ausbauten
- könnt Ihr verzichten: Diverse Raumgrößen / Anordnung..
- könnt Ihr nicht verzichten: Trifft eigentlich fast Liste „was gefällt mir“
Warum ist der Entwurf so geworden, wie er jetzt ist?
Persönlicher Geschmack (Stadtvilla, offene Bauweise), Grundstücksvorgabe (Ausrichtung und Positionierung, sonstige Tipps von Außen (Schränke etc. vorsehen..)
Was gefällt mir:
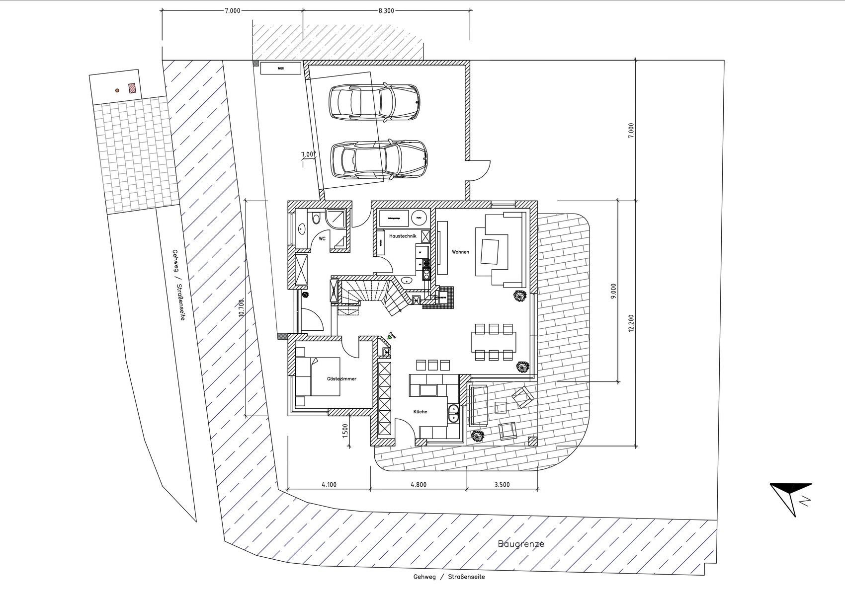
- Lage aller Räume im Allgemeinen auf Grundstücksposition: Schlafzimmer weg von Straße im Osten (Sonnenaufgang); Wohnbereich von Straße weggesetzt, Arbeitszimmer mit großem Fenster mit Westausrichtung (Sonnenuntergangsseite)
- Durchgehender Blick von Eingangsbereich bis in den Garten
- Hausdesign von Außen
- Garagenüberdachung mit Abstellmöglichkeit für Mülltonnen nahe der Straße
- Integration der Küchenzeile und Küchenhochschränke in den Grundriss
- Extrazimmer im EG für Gäste, Hauswirtschaft und aufgrund der Größe als Möglichkeit für späteres vollständiges Schlafzimmer auf EG-Ebene
- Garagenzugang von Innen über den Eingangsbereich („Dreckbereich“ vs. Sauberer Bereich“)
- Zentrale Integration Kamin
- Vorgeplante Integration von Haushaltsschränken in Nischen in EG und OG (Raum unter Treppe soll zusätzlich zugänglich sein).
- Zugang von Wäscheschacht sowohl über Ankleide- und Badezimmer
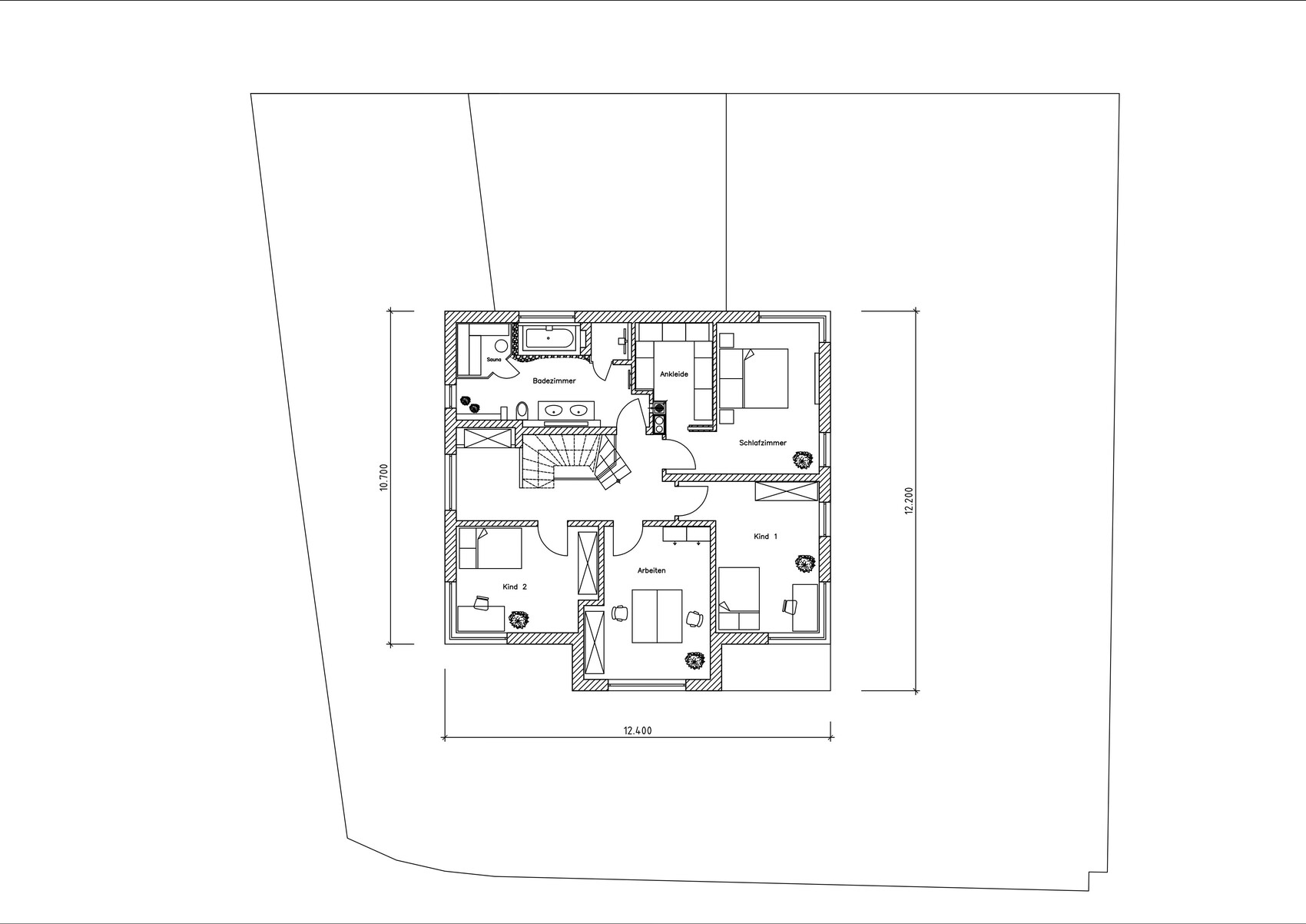
- Heller und offener, großer Flur im OG mit Fenster
- Zentrale Zugangsposition der Treppe..
- Versatz Esstisch zu Kochinsel aufgrund der Durchgangsbreite zum Kamin; Ist „ok“ aber erfordert herumgehen.. Direkt gegenüber stehender Tisch wäre schöner.
- Das Badezimmer ist für mich soweit ok, die Position der Türe und der Ecke gefällt mir nicht so gut, auch wenn die Ecke wohl nicht so stark sichtbar sein wird da die Tür wohl nicht 90° aufgerissen wird und der Durchgang eigentlich auch groß genug ist.. Ich wüsste aber nicht wo ich dafür etwas klauen sollte ohne die Position von Treppe bzw. Schornstein und damit die soweit guten Raum/Durchgangsgrößen in Eingangsbereich, Wohnzimmer, Ankleidezimmer oder Schlafzimmer zu verschlechtern..
- „Tunnel“ im Türbereich von Kinderzimmer 1
Was ist die wichtigste/grundlegende Frage zum Grundriss in 130 Zeichen zusammengefasst?
Mir geht es erst einmal um eure Einschätzung/Feedback zum Grundriss, ich freue mich gerne über konstruktive Punkte/Anregungen oder Ideen die mir vielleicht aufgrund meiner „Planungsblindheit“ gar nicht auffallen und dann auch mal um Feedback zu den Punkten die mir nicht so gefallen..
Spontan finde ich den Grundriss ziemlich gelungen! Kind 2 ist etwas klein aber wenn das Arbeitszimmer für 2 Leute sein muss, dann kann man wohl nicht tauschen?
Den Tunnel bei Kind 1 find ich gar nicht so unpraktisch...dann nimmt die Tür nichts vom Raum weg und das Kind hat noch ein Sekündchen Zeit schnell das Handy beiseite zu legen, bevor die Mutter um die Ecke schauen kann und sieht, dass doch noch gechattet/gespielt wurde, statt zu schlafen
Den Tunnel bei Kind 1 find ich gar nicht so unpraktisch...dann nimmt die Tür nichts vom Raum weg und das Kind hat noch ein Sekündchen Zeit schnell das Handy beiseite zu legen, bevor die Mutter um die Ecke schauen kann und sieht, dass doch noch gechattet/gespielt wurde, statt zu schlafen
Insgesamt guter Ansatz.
Hier würd ich dran arbeiten:
EG:
- Der Eingangsbereich wär mir zu eng im Verhältnis zur Gesamterscheinung dieser stadtlichen Villa. Vermutlich würde ich die Haustür mit Erker nach außen ziehen, statt nach innen zu versetzen.
- die Anordnung des Sofas / Wohnlandschaft scheint mir verkehrt herum. Ich würde ein Ecksofa an der Wand zu Garage / Haustechnik erwarten. Entsprechend gegenüber eine TV-Anlage, welche Fenster in der Süd-Ost-Ecke zulässt.
- relativ viele tote ungenutzte Ecken (Küche und Kamin) - oder sollen das Wandschränke sein?
OG:
Scheint mir nicht ausgereift.
- Kinderzimmer neben dem Elternschlafzimmer ist blöd. Arbeitszimmer als Trennung dazwischen wäre erstrebenswert.
- Kind 2 scheint recht klein
- Eingang Kind 1 gewinnt keinen Preis
- Badtür in dieser Ecke ist ein ärgerlicher Schönheitsfehler
- Ankleide ohne Fenster ist m.E. ein Planungsfehler
- WC direkt neben Waschbecken in dieser Luxusvilla ist schade
- Idealerweise sollte man die Ankleide betreten können, ohne dass Schlafzimmer nochmals zu betreten, damit der Partner weiter schlafen kann.
Der Schornstein hat noch etwas Spiel - möglicherweise geht das noch besser oben. Auch die Frage, wie wichtig der Schrank im Flur oben ist. Ansonsten Hut ab für eine eigene Planung recht gelungen.
Hier würd ich dran arbeiten:
EG:
- Der Eingangsbereich wär mir zu eng im Verhältnis zur Gesamterscheinung dieser stadtlichen Villa. Vermutlich würde ich die Haustür mit Erker nach außen ziehen, statt nach innen zu versetzen.
- die Anordnung des Sofas / Wohnlandschaft scheint mir verkehrt herum. Ich würde ein Ecksofa an der Wand zu Garage / Haustechnik erwarten. Entsprechend gegenüber eine TV-Anlage, welche Fenster in der Süd-Ost-Ecke zulässt.
- relativ viele tote ungenutzte Ecken (Küche und Kamin) - oder sollen das Wandschränke sein?
OG:
Scheint mir nicht ausgereift.
- Kinderzimmer neben dem Elternschlafzimmer ist blöd. Arbeitszimmer als Trennung dazwischen wäre erstrebenswert.
- Kind 2 scheint recht klein
- Eingang Kind 1 gewinnt keinen Preis
- Badtür in dieser Ecke ist ein ärgerlicher Schönheitsfehler
- Ankleide ohne Fenster ist m.E. ein Planungsfehler
- WC direkt neben Waschbecken in dieser Luxusvilla ist schade
- Idealerweise sollte man die Ankleide betreten können, ohne dass Schlafzimmer nochmals zu betreten, damit der Partner weiter schlafen kann.
Der Schornstein hat noch etwas Spiel - möglicherweise geht das noch besser oben. Auch die Frage, wie wichtig der Schrank im Flur oben ist. Ansonsten Hut ab für eine eigene Planung recht gelungen.
Hallo Yosan und Kaho, ich bedanke mich schommal für die guten Anregungen! Spitzen Feedback! Hier mal ein paar Rückmeldungen dazu:
- Stimmt, die Anordnung der TV Landschaft würde anders herum tatsächlich besser rein passen. Lag erst mal daran, dass ich mit einem vorhandenen U-Sofa geplant habe und ich nicht möchte, dass mir der Kamin mein Sofa ankokelt.. Ich plane den TV-Anschluss auch auf der gegenüberliegenden Seite um da flexibel zu sein.
- In den ungenutzten Ecken geht tatsächlich ein bisschen was verloren. Hier sollen aber jeweils Regale eingelassen werden (Sind mit dem X gekennzeichnet..). Der Luftraum dahinter ist futsch, das stimmt. Habe eben mal gemessen, das sind 2x ca. 0,5 m² und haben mir bevor ich's eben gemessen habe ehrlich gesagt mehr weh getan als jetzt..
- Deine OG Punkte kann ich sehr gut verstehen, hier tue ich mir am schwersten damit das zu optimieren. Mal zu den Größen - Kind 1 hat aktuell 17,7 und Kind 2 15,0 m² und das Arbeitszimmer hat 18 m². Was die Position angeht, die Wand zwischen Elternschlafzimmer und Kind 1 ist aus schalldämpfendem Kalksandstein falls du das meinst... Theoretisch kann aber auch das Arbeitszimmer mit Kind 1 getauscht werden..
- Die fensterlose Ankleide war in dem Fall sogar bewusst so ausgeführt um mittels der U-Anordnung maximale Schrankgröße unterzubringen. Gegenüber der Eingangstüre ließe sich ja ein Fenster unterbringen aber hier habe ich mir gedacht, die nötige Ausleuchtung von oben ausreichend hinzubekommen und habe dafür lieber mehr Schrank..
- Ich hatte tatsächlich anfangs mal eine Durchgangstüre von Ankleide in das Badezimmer um den Gang zurück ins Schlafzimmer zu verhindern. Verworfen habe ich das dann wegen des Wäscheschachtes der nun dort sitzt, problematischem Schallschutz zum Badezimmer (im dem Fall Schiebetür..) und auch dem Umstand, dass das Bett ja ohnehin eigentlich um's Eck versetzt ist.
- Das mit dem WC hatte ich noch gar nicht im Blick.. was stört dich genau daran bzw. was würdest du mit dem WC anfangen?
- Genau bei Badtür und Eingang Kind 1 stoße ich an meine Grenzen..
- Du meinst den Einbauschrank im Flur OG? Nun der ist mir tatsächlich schon sehr wichtig als Platzreserve für den ein oder anderen Kram, ob nun Koffer, Bettzeugs, Winterzeugs.. Wie würdest du die Sache mit dem Schornstein verbessern? Das ist aktuell übrigens 40 x 60, ggf. reicht hier auch 40 x 40, da habe ich noch keine Ahnung. Über dem Schornstein ist übrigens der Wäscheschacht, ich weiß nicht ob man das als solchen erkennt, evtl. verwirrt das etwas.
- Stimmt, die Anordnung der TV Landschaft würde anders herum tatsächlich besser rein passen. Lag erst mal daran, dass ich mit einem vorhandenen U-Sofa geplant habe und ich nicht möchte, dass mir der Kamin mein Sofa ankokelt.. Ich plane den TV-Anschluss auch auf der gegenüberliegenden Seite um da flexibel zu sein.
- In den ungenutzten Ecken geht tatsächlich ein bisschen was verloren. Hier sollen aber jeweils Regale eingelassen werden (Sind mit dem X gekennzeichnet..). Der Luftraum dahinter ist futsch, das stimmt. Habe eben mal gemessen, das sind 2x ca. 0,5 m² und haben mir bevor ich's eben gemessen habe ehrlich gesagt mehr weh getan als jetzt..
- Deine OG Punkte kann ich sehr gut verstehen, hier tue ich mir am schwersten damit das zu optimieren. Mal zu den Größen - Kind 1 hat aktuell 17,7 und Kind 2 15,0 m² und das Arbeitszimmer hat 18 m². Was die Position angeht, die Wand zwischen Elternschlafzimmer und Kind 1 ist aus schalldämpfendem Kalksandstein falls du das meinst... Theoretisch kann aber auch das Arbeitszimmer mit Kind 1 getauscht werden..
- Die fensterlose Ankleide war in dem Fall sogar bewusst so ausgeführt um mittels der U-Anordnung maximale Schrankgröße unterzubringen. Gegenüber der Eingangstüre ließe sich ja ein Fenster unterbringen aber hier habe ich mir gedacht, die nötige Ausleuchtung von oben ausreichend hinzubekommen und habe dafür lieber mehr Schrank..
- Ich hatte tatsächlich anfangs mal eine Durchgangstüre von Ankleide in das Badezimmer um den Gang zurück ins Schlafzimmer zu verhindern. Verworfen habe ich das dann wegen des Wäscheschachtes der nun dort sitzt, problematischem Schallschutz zum Badezimmer (im dem Fall Schiebetür..) und auch dem Umstand, dass das Bett ja ohnehin eigentlich um's Eck versetzt ist.
- Das mit dem WC hatte ich noch gar nicht im Blick.. was stört dich genau daran bzw. was würdest du mit dem WC anfangen?
- Genau bei Badtür und Eingang Kind 1 stoße ich an meine Grenzen..
- Du meinst den Einbauschrank im Flur OG? Nun der ist mir tatsächlich schon sehr wichtig als Platzreserve für den ein oder anderen Kram, ob nun Koffer, Bettzeugs, Winterzeugs.. Wie würdest du die Sache mit dem Schornstein verbessern? Das ist aktuell übrigens 40 x 60, ggf. reicht hier auch 40 x 40, da habe ich noch keine Ahnung. Über dem Schornstein ist übrigens der Wäscheschacht, ich weiß nicht ob man das als solchen erkennt, evtl. verwirrt das etwas.
Ich finde ihn auch gut gelungen. Da sind Kleinigkeiten, die dem einen stören, dem anderen nicht... eigentlich zu geringwertig, um genannt zu werden.
Ich mag die Ansicht des Hauses.
Ich hab mich zuerst etwas an der Lage der beiden Fenster links von der Haustür gestört, ein Vermitteln wäre hier schwer. Die Frage ist, ob das längliche nicht im Bad etwas fehltgeplant ist. Auch ein Fenster über der Wanne hat eher Nach- als Vorteile, usw.
Du benutzt sehr viel Grundfläche für das Haus, da kann sich natürlich das ein oder andere sehr gut entwickeln. Der Rest wird meist etwas größer (man sieht es hier an der Freien Mittelfläche).
Allerdings hast Du dadurch die Treppe als eine Barriere in Dein Haus gesetzt: der Eingang wirkt derart von abgeschnitten, dass es einem unbehaglich wird, wenn man sich den Wurm des Flures nur anschaut.
Zwischen Diele und Wohnfläche: sind das zwei Stufen? Oder was ist das? Ich sehe den Flur etwas problematisch, wenn man mal Besuch hat oder gemeinsam als Familie das Haus betreten will. Einladend ist anders
Ich mag die Ansicht des Hauses.
Ich hab mich zuerst etwas an der Lage der beiden Fenster links von der Haustür gestört, ein Vermitteln wäre hier schwer. Die Frage ist, ob das längliche nicht im Bad etwas fehltgeplant ist. Auch ein Fenster über der Wanne hat eher Nach- als Vorteile, usw.
Du benutzt sehr viel Grundfläche für das Haus, da kann sich natürlich das ein oder andere sehr gut entwickeln. Der Rest wird meist etwas größer (man sieht es hier an der Freien Mittelfläche).
Allerdings hast Du dadurch die Treppe als eine Barriere in Dein Haus gesetzt: der Eingang wirkt derart von abgeschnitten, dass es einem unbehaglich wird, wenn man sich den Wurm des Flures nur anschaut.
Zwischen Diele und Wohnfläche: sind das zwei Stufen? Oder was ist das? Ich sehe den Flur etwas problematisch, wenn man mal Besuch hat oder gemeinsam als Familie das Haus betreten will. Einladend ist anders
Im großen und ganzen gefällt mir der Entwurf recht gut - um so mehr finde ich schade, daß die sonst klare Formensprache vom Giebel über dem Arbeitszimmer voll eins vor den Latz geknallt kriegt :-(
https://www.instagram.com/11antgmxde/
https://www.linkedin.com/company/bauen-jetzt/
https://www.instagram.com/11antgmxde/
https://www.linkedin.com/company/bauen-jetzt/
Ähnliche Themen